Votre e-mail a été envoyé.
Certaines informations ont été traduites automatiquement.
Informations principales
- Walking distance to restaurants, business services, bus and train transportation
- 10 minutes driving distance to the Gateway to Napa-Sonoma wine country
- Easy access to Hwy 12 and Interstates 80 and 680
Disponibilité de l’espace (1)
Afficher le tarif en
- Espace
- Surface
- Durée
- Loyer
- Type de loyer
| Espace | Surface | Durée | Loyer | Type de loyer | ||
| 1er étage | 284 m² | 1-10 Ans | 107,96 € /m²/an 9,00 € /m²/mois 30 692 € /an 2 558 € /mois | Brut modifié |
1er étage
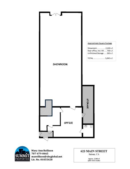
Step inside this LANDMARK BUILDING where historic charm and gothic architecture create a timeless welcome for your business and clients. This space has been meticulously prepared for immediate occupancy, featuring a 2,100 square foot showroom with a highly functional layout. You'll also find flexible areas for office use, storage, supplies, and a private restroom. Ample street parking is available, along with a convenient city lot directly across the street.
- Il est possible que le loyer annoncé ne comprenne pas certains services publics, services d’immeuble et frais immobiliers.
- Entièrement aménagé comme Local commercial standard
- Principalement open space
- Convient pour 8 à 25 personnes
- Landmark Historic listing
Types de loyers
Le montant et le type de loyer que l’occupant (locataire) est tenu de payer au propriétaire (bailleur) sur la durée du bail sont négociés avant la signature du bail par les deux parties. Le type de loyer varie selon les services fournis. Par exemple, le prix d’un loyer triple net est habituellement inférieur à celui d’un bail à service complet puisque l’occupant est tenu d’assumer des dépenses supplémentaires par rapport au loyer de base. Contacter le broker chargé de l’annonce pour bien comprendre les coûts associés ou les dépenses supplémentaires pour chaque type de loyer.
1. Service complet: Un loyer qui comprend des services d’immeuble standards normaux fournis par le propriétaire dans le cadre d’une location annuelle de base.
2. Double net (NN): L’occupant paie seulement deux des frais de l’immeuble. Le propriétaire et l’occupant déterminent ces frais spécifiques avant la signature du bail.
3. Triple net (NNN): Un bail selon lequel l’occupant est responsable de tous les frais liés à sa part proportionnelle d’occupation de l’immeuble.
4. Brut modifié: Le brut modifié est un type général de bail dans lequel l’occupant est en général responsable de sa part proportionnelle d’une ou de plusieurs dépenses. C’est le propriétaire qui paie les frais restants. Consultez la liste ci-dessous pour connaître les structures de loyers bruts modifiés les plus courantes : 4. Plus services publics: Un type de bail brut modifié, où l’occupant est responsable à hauteur de sa part proportionnelle des services publics en plus du loyer. 4. Plus nettoyage: Un type de bail brut modifié, où l’occupant est responsable à hauteur de sa part proportionnelle du nettoyage en plus du loyer. 4. Plus électricité: Un type de bail brut modifié, où l’occupant est responsable à hauteur de sa part proportionnelle du coût de la consommation électrique en plus du loyer. 4. Plus électricité et nettoyage: Un type de bail brut modifié, où l’occupant est responsable à hauteur de sa part proportionnelle du coût de la consommation électrique et du nettoyage en plus du loyer. 4. Plus services publics et charges: Un type de bail brut modifié où l’occupant est responsable à hauteur de sa part proportionnelle des services publics et du coût de nettoyage en plus du loyer. 4. Bail industriel brut: Un type de bail brut modifié dans lequel l’occupant paie un ou plusieurs des frais en plus du loyer. Le propriétaire et l’occupant déterminent ces frais spécifiques avant la signature du bail.
5. Électricité à la charge de l’occupant: Le propriétaire paie pour tous les services et l’occupant est responsable de sa propre utilisation de l’éclairage et des prises électriques dans l’espace qu’il occupe.
6. Négociable ou sur demande: Cette option est utilisée lorsque le contact de location n’indique pas le type de loyer ou de service.
7. À déterminer: À déterminer : utilisé pour les immeubles dont le type de services ou de loyer n’est pas connu, souvent quand l’immeuble n’est pas encore construit.
Plan du site
Sélectionner des occupants à 623 Main St, Suisun City, CA 94585
- Stanley Beverly Lodge
Informations sur l’immeuble
| Espace total disponible | 284 m² | Surface commerciale utile | 743 m² |
| Type de bien | Local commercial | Année de construction | 1855 |
| Sous-type de bien | Boutique |
| Espace total disponible | 284 m² |
| Type de bien | Local commercial |
| Sous-type de bien | Boutique |
| Surface commerciale utile | 743 m² |
| Année de construction | 1855 |
À propos du bien
623 MAIN STREET, is located in Historic Downtown Suisun, California, one block from the picturesque Suisun water-front The building was built in 1855, more recently renovated in 2015, and became listed the National Register of Historic Places in 1978 as "Suisun Masonic Lodge No. 55".The building is also been known locally as the Stanley Beverly Lodge building. Step inside this LANDMARK BUILDING where historic charm and gothic architecture create a timeless welcome for your business and clients. This space has been meticulously prepared for immediate occupancy, featuring a 2,100 square foot showroom, plus an additional 960 square feet dedicated for administrative office, workroom, supply/storage, and a private restroom. Ample convenient parking is available on the street, with a convenient city lot directly across the street.
Principaux commerces à proximité
Présenté par
623 Main St
Hum, une erreur s’est produite lors de l’envoi de votre message. Veuillez réessayer.
Merci ! Votre message a été envoyé.






