Connectez-vous/S’inscrire
Votre e-mail a été envoyé.
Certaines informations ont été traduites automatiquement.
Informations principales sur le parc
- Toit récemment remplacé
- Équipe de direction à plein temps.
- Propriétaires institutionnels impliqués et bien capitalisés.
- Plusieurs tailles et configurations de suites.
Faits sur le parc
| Espace total disponible | 715 m² | Type de parc | Parc industriel |
| Espace total disponible | 715 m² |
| Type de parc | Parc industriel |
Tous les espace disponibles(1)
Afficher les loyers en
Morton Grove Corporate Park
6200-6288 Oakton St - Oakton Plaza II
715 m²
|
Sur demande
Sur demande
Sur demande
Sur demande
Sur demande
Sur demande
Type/Catégorie d’immeuble
Local d'activités/B
Surface de l’immeuble
8 135 m²
Surface du lot
1,45 ha
Année de construction
1971
Développement et livraisons
Maçonnerie
Hauteur libre
4,27 m
Accès plain-pied
9
Portes de quai de chargement
12
Alimentation électrique
Ampères: 200-400 Volts: 208 Phase: 3
Zonage
M2 - General Manufacturing District
- Espace
- Surface
- Durée
- Loyer
- Type de bien
- Aménagement
- Disponible
| Espace | Surface | Durée | Loyer | Type de bien | Aménagement | Disponible |
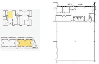
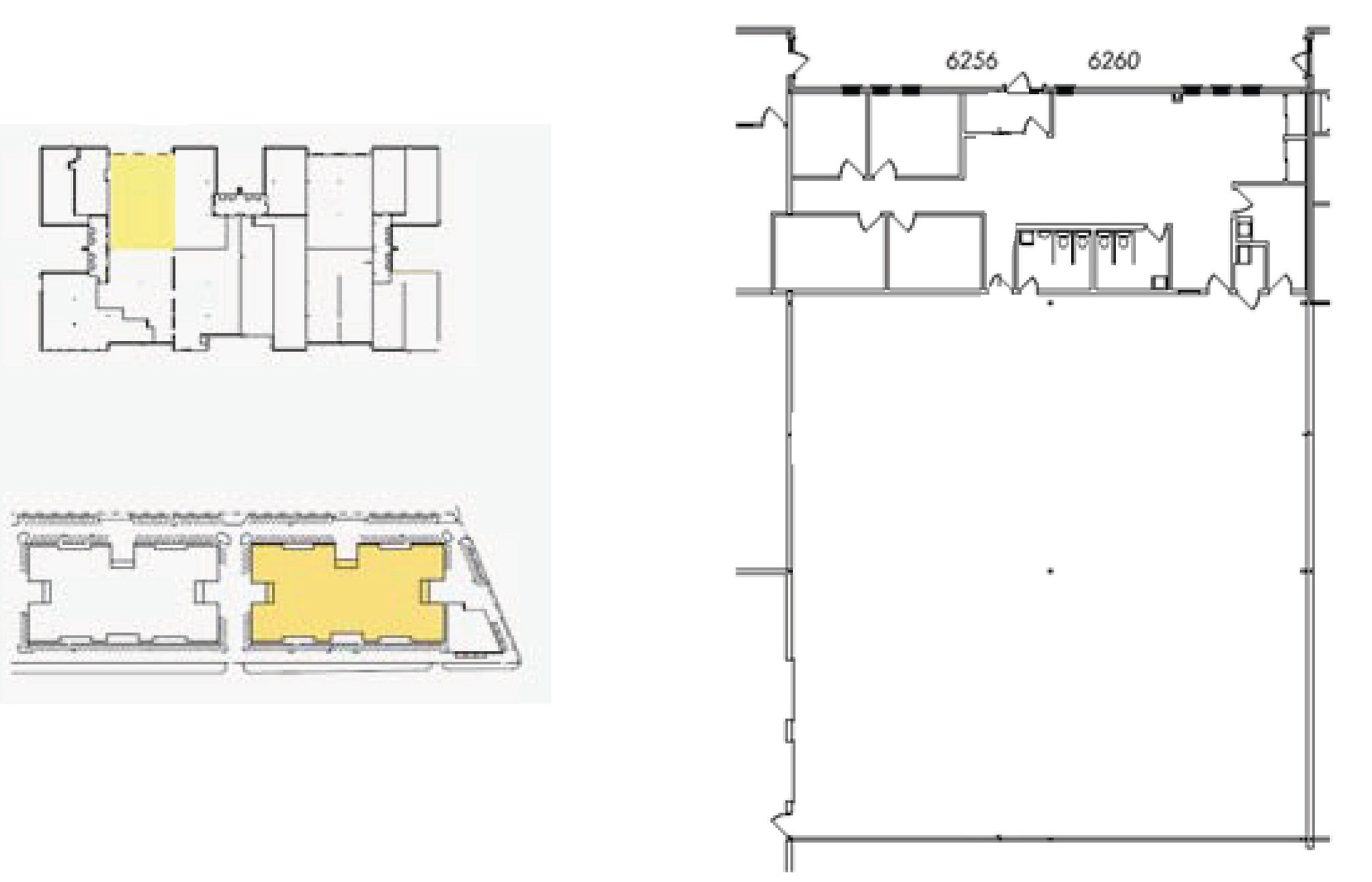
| 1er étage – 6256 | 715 m² | Négociable | Sur demande Sur demande Sur demande Sur demande | Local d’activités | - | 01/07/2026 |
Morton Grove Corporate Park
6200-6288 Oakton St - Oakton Plaza II
715 m²
|
Sur demande
Sur demande
Sur demande
Sur demande
Sur demande
Sur demande
Type/Catégorie d’immeuble
Local d'activités/B
Surface de l’immeuble
8 135 m²
Surface du lot
1,45 ha
Année de construction
1971
Développement et livraisons
Maçonnerie
Hauteur libre
4,27 m
Accès plain-pied
9
Portes de quai de chargement
12
Alimentation électrique
Ampères: 200-400 Volts: 208 Phase: 3
Zonage
M2 - General Manufacturing District
6200-6288 Oakton St - 1er étage – 6256
Surface
715 m²
Durée
Négociable
Loyer
Sur demande
Sur demande
Sur demande
Sur demande
Type de bien
Local d’activités
Aménagement
-
Disponible
01/07/2026
1 sur 1
Vidéos
Visite extérieure 3D Matterport
Visite 3D
Photos
Street view
Rue
Carte
6200-6288 Oakton St - 1er étage – 6256
| Surface | 715 m² |
| Durée | Négociable |
| Loyer | Sur demande |
| Type de bien | Local d’activités |
| Aménagement | - |
| Disponible | 01/07/2026 |
Sélectionner des occupants à ce bien
- Étage
- Nom de l’occupant
- Secteur d’activité
- 1er
- Complete Lighting And Supply
- Manufacture
- 1er
- Kromopan USA Inc
- Grossiste
- 1er
- Schwartz Sports Memorabilia
- Enseigne
Vue d’ensemble du parc
Situé sur Oakton St et Lehigh Avenue, à quelques minutes d'un échangeur quadridirectionnel vers l'I-94 à Dempster St. Tous les logements ont accès à des quais extérieurs communs. Des propriétaires institutionnels impliqués et bien capitalisés, gérés de manière professionnelle par une équipe à plein temps, et des options flexibles disponibles avec plusieurs tailles et configurations de suites.
1 1
Fairly walkable
50/100
Exceptionally drivable
90/100
Some public transit
50/100
Moderately bikeable
60/100
1 sur 13
Vidéos
Visite extérieure 3D Matterport
Visite 3D
Photos
Street view
Rue
Carte
1 sur 1
Présenté par
Morton Grove Corporate Park | Morton Grove, IL 60053
Vous êtes déjà membre ? Connectez-vous
Hum, une erreur s’est produite lors de l’envoi de votre message. Veuillez réessayer.
Merci ! Votre message a été envoyé.






