Votre e-mail a été envoyé.
Certaines informations ont été traduites automatiquement.
Informations principales sur la sous-location
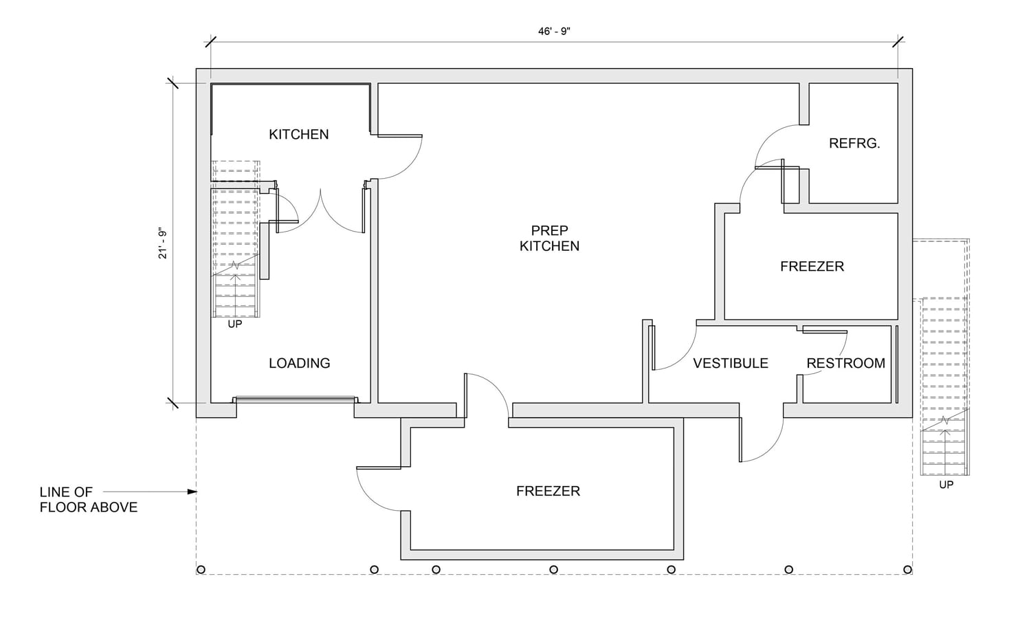
- Commercial kitchen configuration with existing hood, stove, and prep areas
- Drive-in and roll-up loading access enhancing operational efficiency
- Multiple walk-in freezers and refrigeration units included
- Highly connected location near major ports, bridges, and Newark Airport
Caractéristiques
Tous les espaces disponibles(2)
Afficher les loyers en
- Espace
- Surface
- Durée
- Loyer
- Type de bien
- Aménagement
- Disponible
This versatile food production facility offers a unique combination of commercial kitchen infrastructure, cold storage capacity, and retail exposure in one of Central New Jersey’s most strategically connected submarkets. The two story layout provides a functional operational flow for food processing, packaging, distribution, or specialty retail concepts requiring substantial freezer and refrigeration capability.
- Espace en sous-location disponible auprès de l’occupant actuel
- Located near NJ Turnpike
- Ideal for food production and distribution
- Food production space with cold storage
- Includes walk-in freezers and refrigerators
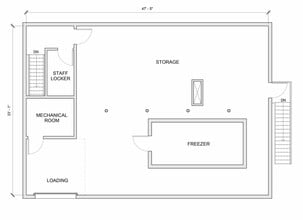
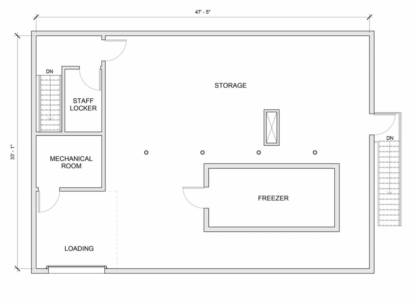
The upper level provides additional freezer space, storage, and an employee locker room, with a secondary roll-up door accessible by forklift, enabling seamless movement of product between floors.
- Espace en sous-location disponible auprès de l’occupant actuel
- Commercial kitchen configuration
- Forklift-accessible second floor roll-up door
- Chambres de congélation
- Multiple walk-in freezers
| Espace | Surface | Durée | Loyer | Type de bien | Aménagement | Disponible |
| 1er étage | 111 m² | Négociable | Sur demande Sur demande Sur demande Sur demande | Industriel/Logistique | Construction partielle | Maintenant |
| 2e étage | 146 m² | Négociable | Sur demande Sur demande Sur demande Sur demande | Industriel/Logistique | Construction partielle | Maintenant |
1er étage
| Surface |
| 111 m² |
| Durée |
| Négociable |
| Loyer |
| Sur demande Sur demande Sur demande Sur demande |
| Type de bien |
| Industriel/Logistique |
| Aménagement |
| Construction partielle |
| Disponible |
| Maintenant |
2e étage
| Surface |
| 146 m² |
| Durée |
| Négociable |
| Loyer |
| Sur demande Sur demande Sur demande Sur demande |
| Type de bien |
| Industriel/Logistique |
| Aménagement |
| Construction partielle |
| Disponible |
| Maintenant |
1er étage
| Surface | 111 m² |
| Durée | Négociable |
| Loyer | Sur demande |
| Type de bien | Industriel/Logistique |
| Aménagement | Construction partielle |
| Disponible | Maintenant |
This versatile food production facility offers a unique combination of commercial kitchen infrastructure, cold storage capacity, and retail exposure in one of Central New Jersey’s most strategically connected submarkets. The two story layout provides a functional operational flow for food processing, packaging, distribution, or specialty retail concepts requiring substantial freezer and refrigeration capability.
- Espace en sous-location disponible auprès de l’occupant actuel
- Food production space with cold storage
- Located near NJ Turnpike
- Includes walk-in freezers and refrigerators
- Ideal for food production and distribution
2e étage
| Surface | 146 m² |
| Durée | Négociable |
| Loyer | Sur demande |
| Type de bien | Industriel/Logistique |
| Aménagement | Construction partielle |
| Disponible | Maintenant |
The upper level provides additional freezer space, storage, and an employee locker room, with a secondary roll-up door accessible by forklift, enabling seamless movement of product between floors.
- Espace en sous-location disponible auprès de l’occupant actuel
- Chambres de congélation
- Commercial kitchen configuration
- Multiple walk-in freezers
- Forklift-accessible second floor roll-up door
Aperçu du bien
Free standing cold storage, commissary and food production space in the heart of Rahway. Featuring 3 freezers, vented kitchen and multiple prep areas with a ground floor and second story drive-in, great space for food production and distribution. Front foyer offers an area for retail and current tenant has been serving the community with walk-in traffic since they opened. Close to downtown and the train station. Features both on street parking, a driveway, and additional parking across the street. Unique opportunity for any active ghost kitchen, food production, and cold storage user looking for in place cold storage and the perfect location nearby everything. Positioned in Rahway, the property benefits from exceptional connectivity to major transportation arteries. It sits within a short distance of the NJ Turnpike, Goethals Bridge, I-78, and the Holland Tunnel, providing direct access to Manhattan, the regional port network, and Newark Liberty International Airport, only 13 miles away. These logistics advantages make the location particularly appealing for food manufacturers, distributors, meal-prep operations, and specialty grocers serving the dense consumer base of Northern and Central New Jersey.
Informations sur l’immeuble
Occupants
- Nom de l’occupant
- Secteur d’activité
- Piece Of Cake
- Grossiste
Présenté par
62 W Inman Ave
Hum, une erreur s’est produite lors de l’envoi de votre message. Veuillez réessayer.
Merci ! Votre message a été envoyé.









