Votre e-mail a été envoyé.
Certaines informations ont été traduites automatiquement.
Informations principales
- Easy access to I-76 and the Philadelphia’s Main Line
Tous les espace disponibles(1)
Afficher les loyers en
- Espace
- Surface
- Durée
- Loyer
- Type de bien
- Aménagement
- Disponible
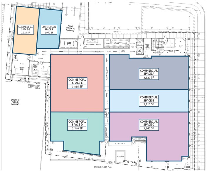
Up to 17,905 SF ground floor retail in the heart of Roxborough’s Ridge Avenue commercial corridor Ground floor retail beneath 82 units located at the Parkline Apartments Excellent frontage and visibility along Ridge Ave & Leverington Ave Unique access and entrance to Roxborough's "Pocket Park" Seeking retail, fitness, grocer & F&B tenants Ample street & off-street parking in the immediate vicinity Located in the heart of Roxborough's "Main Street" Easy access to I-76, City Ave & the Ridge Ave Corridor Sits between Manayunk & Chestnut Hill
- Espace en excellent état
| Espace | Surface | Durée | Loyer | Type de bien | Aménagement | Disponible |
| 1er étage | 221 – 2 016 m² | Négociable | Sur demande Sur demande Sur demande Sur demande | Local commercial | - | Maintenant |
1er étage
| Surface |
| 221 – 2 016 m² |
| Durée |
| Négociable |
| Loyer |
| Sur demande Sur demande Sur demande Sur demande |
| Type de bien |
| Local commercial |
| Aménagement |
| - |
| Disponible |
| Maintenant |
1er étage
| Surface | 221 – 2 016 m² |
| Durée | Négociable |
| Loyer | Sur demande |
| Type de bien | Local commercial |
| Aménagement | - |
| Disponible | Maintenant |
Up to 17,905 SF ground floor retail in the heart of Roxborough’s Ridge Avenue commercial corridor Ground floor retail beneath 82 units located at the Parkline Apartments Excellent frontage and visibility along Ridge Ave & Leverington Ave Unique access and entrance to Roxborough's "Pocket Park" Seeking retail, fitness, grocer & F&B tenants Ample street & off-street parking in the immediate vicinity Located in the heart of Roxborough's "Main Street" Easy access to I-76, City Ave & the Ridge Ave Corridor Sits between Manayunk & Chestnut Hill
- Espace en excellent état
Informations sur l’immeuble
| Espace total disponible | 2 016 m² | Sous-type de bien | Appartement |
| Nb de lots | 94 | Style d’appartement | De hauteur moyenne |
| Min. Divisible | 221 m² | Surface de l’immeuble | 4 702 m² |
| Type de bien | Immeuble residentiel | Année de construction | 2026 |
| Espace total disponible | 2 016 m² |
| Nb de lots | 94 |
| Min. Divisible | 221 m² |
| Type de bien | Immeuble residentiel |
| Sous-type de bien | Appartement |
| Style d’appartement | De hauteur moyenne |
| Surface de l’immeuble | 4 702 m² |
| Année de construction | 2026 |
À propos du bien
Steps from Dunkin, Sunoco, GoPuff, Planet Fitness, Philadelphia Public Library, New Ridge Brewing. Oversized footprint and courtyard.
Principaux commerces à proximité
Présenté par
Parkline | 6174 Ridge Ave
Hum, une erreur s’est produite lors de l’envoi de votre message. Veuillez réessayer.
Merci ! Votre message a été envoyé.





