Votre e-mail a été envoyé.
Certaines informations ont été traduites automatiquement.
Informations principales sur le parc
- Espaces de travail et d'événements intérieurs/extérieurs : jardin de sculptures Noguchi de renommée mondiale, conférences intérieurs-extérieurs, foyer et aire de jeux.
- Options de siège social prêtes à emménager : de grands blocs d'espaces contigus, une opportunité de construction complète et une signalisation au sommet des bâtiments et sur les autoroutes renforcent votre marque.
- OC Culture District : cuisine inspirée par les chefs, boutiques de renommée internationale, quartier artistique et de divertissement de renommée mondiale et vie de luxe.
- Des équipements attrayants : centre de remise en forme KINETIC privé, Mastro's Steakhouse, nouveau café sur place (disponible au printemps 2023) et food trucks rotatifs.
- Options de location flexibles : profitez de l'avantage considérable d'Irvine Company, à des conditions adaptées à votre entreprise.
- Propriétaire leader du secteur : louez en toute confiance auprès d'un propriétaire privé financièrement stable qui soutient ses clients aujourd'hui, demain et au-delà.
Faits sur le parc
| Espace total disponible | 11 384 m² | Type de parc | Parc de bureaux |
| Max. Contigu | 2 446 m² | Caractéristiques | Accès 24 h/24 |
| Espace total disponible | 11 384 m² |
| Max. Contigu | 2 446 m² |
| Type de parc | Parc de bureaux |
| Caractéristiques | Accès 24 h/24 |
Tous les espaces disponibles(20)
Afficher les loyers en
- Espace
- Surface
- Durée
- Loyer
- Type de bien
- Aménagement
- Disponible
Suite Description : $2/SF Broker Bonus for 5+ year lease deals & $1/SF Broker Bonus for 3+ year lease deals for NEW customers. Exclusions apply. Expires 6/30/2025
- Le loyer comprend les services publics, les services de l’immeuble et les frais immobiliers.
- Principalement open space
- Entièrement aménagé comme Bureau standard
| Espace | Surface | Durée | Loyer | Type de bien | Aménagement | Disponible |
| 1er étage, bureau 100 | 386 m² | Négociable | 352,53 € /m²/an 29,38 € /m²/mois 135 951 € /an 11 329 € /mois | Bureau | Construction achevée | Maintenant |
3210 Park Center Dr - 1er étage – Bureau 100
- Espace
- Surface
- Durée
- Loyer
- Type de bien
- Aménagement
- Disponible
New tenants can receive a broker bonus of $2 per square foot for lease deals of five years or more and $1 per square foot for lease deals of three years or more. Exclusions apply. This offer expires on June 30, 2025.
- Le loyer comprend les services publics, les services de l’immeuble et les frais immobiliers.
- Principalement open space
- Entièrement moquetté
- Partiellement aménagé comme Bureau standard
- 2 bureaux privés
Suite Description : $2/SF Broker Bonus for 5+ year lease deals & $1/SF Broker Bonus for 3+ year lease deals for NEW customers. Exclusions apply. Expires 6/30/2026 / This is a Flex Workspace+tm suite : Yes
- Le loyer comprend les services publics, les services de l’immeuble et les frais immobiliers.
Suite Description : $2/SF Broker Bonus for 5+ year lease deals & $1/SF Broker Bonus for 3+ year lease deals for NEW customers. Exclusions apply. Expires 12/31/2025 / This is a Flex Workspace+tm suite : Yes
- Le loyer comprend les services publics, les services de l’immeuble et les frais immobiliers.
- Principalement open space
- Entièrement aménagé comme Bureau standard
$2/SF Broker Bonus for 5+ year lease deals & $1/SF Broker Bonus for 3+ year lease deals for NEW customers. Exclusions apply. Expires 6/30/2026
- Le loyer comprend les services publics, les services de l’immeuble et les frais immobiliers.
Suite Description : $2/SF Broker Bonus for 5+ year lease deals & $1/SF Broker Bonus for 3+ year lease deals for NEW customers. Exclusions apply. Expires 12/31/2025 / This is a Flex Workspace+tm suite : Yes
- Le loyer comprend les services publics, les services de l’immeuble et les frais immobiliers.
- Principalement open space
- Entièrement aménagé comme Bureau standard
Suite Description : $2/SF Broker Bonus for 5+ year lease deals & $1/SF Broker Bonus for 3+ year lease deals for NEW customers. Exclusions apply. Expires 12/31/2025
- Le loyer comprend les services publics, les services de l’immeuble et les frais immobiliers.
- Principalement open space
- Entièrement aménagé comme Bureau standard
| Espace | Surface | Durée | Loyer | Type de bien | Aménagement | Disponible |
| 1er étage, bureau 125 | 397 m² | Négociable | 363,55 € /m²/an 30,30 € /m²/mois 144 286 € /an 12 024 € /mois | Bureau | Construction partielle | 01/09/2026 |
| 2e étage, bureau 210 | 156 m² | Négociable | 347,02 € /m²/an 28,92 € /m²/mois 54 001 € /an 4 500 € /mois | Bureau | - | Maintenant |
| 3e étage, bureau 360 | 366 m² | Négociable | 347,02 € /m²/an 28,92 € /m²/mois 126 927 € /an 10 577 € /mois | Bureau | Construction achevée | Maintenant |
| 5e étage, bureau 560 | 199 m² | Négociable | 374,57 € /m²/an 31,21 € /m²/mois 74 677 € /an 6 223 € /mois | Bureau | - | 01/06/2026 |
| 7e étage, bureau 720 | 508 m² | Négociable | 363,55 € /m²/an 30,30 € /m²/mois 184 850 € /an 15 404 € /mois | Bureau | Construction achevée | 01/05/2026 |
| 11e étage, bureau 1150 | 362 m² | Négociable | 369,06 € /m²/an 30,75 € /m²/mois 133 546 € /an 11 129 € /mois | Bureau | Construction achevée | 15/05/2026 |
3200 Park Center Dr - 1er étage – Bureau 125
3200 Park Center Dr - 2e étage – Bureau 210
3200 Park Center Dr - 3e étage – Bureau 360
3200 Park Center Dr - 5e étage – Bureau 560
3200 Park Center Dr - 7e étage – Bureau 720
3200 Park Center Dr - 11e étage – Bureau 1150
- Espace
- Surface
- Durée
- Loyer
- Type de bien
- Aménagement
- Disponible
Suite Description : $2/SF Broker Bonus for 5+ year lease deals & $1/SF Broker Bonus for 3+ year lease deals for NEW customers. Exclusions apply. Expires 12/31/2025
- Le loyer comprend les services publics, les services de l’immeuble et les frais immobiliers.
- Peut être associé à un ou plusieurs espaces supplémentaires pour obtenir jusqu’à 2 446 m² d’espace adjacent.
Suite Description : $2/SF Broker Bonus for 5+ year lease deals & $1/SF Broker Bonus for 3+ year lease deals for NEW customers. Exclusions apply. Expires 12/31/2025
- Le loyer comprend les services publics, les services de l’immeuble et les frais immobiliers.
- Peut être associé à un ou plusieurs espaces supplémentaires pour obtenir jusqu’à 2 446 m² d’espace adjacent.
| Espace | Surface | Durée | Loyer | Type de bien | Aménagement | Disponible |
| 2e étage, bureau 200 | 1 223 m² | Négociable | 352,53 € /m²/an 29,38 € /m²/mois 431 139 € /an 35 928 € /mois | Bureau | - | 01/09/2026 |
| 3e étage, bureau 300 | 1 223 m² | Négociable | 352,53 € /m²/an 29,38 € /m²/mois 431 139 € /an 35 928 € /mois | Bureau | - | Maintenant |
675 Anton Blvd - 2e étage – Bureau 200
675 Anton Blvd - 3e étage – Bureau 300
- Espace
- Surface
- Durée
- Loyer
- Type de bien
- Aménagement
- Disponible
$2/SF Broker Bonus for 5+ year lease deals & $1/SF Broker Bonus for 3+ year lease deals for NEW customers. Exclusions apply. Expires 12/31/2025
- Le loyer comprend les services publics, les services de l’immeuble et les frais immobiliers.
- Principalement open space
- Entièrement aménagé comme Bureau standard
Suite Description : $2/SF Broker Bonus for 5+ year lease deals & $1/SF Broker Bonus for 3+ year lease deals for NEW customers. Exclusions apply. Expires 6/30/2026
- Le loyer comprend les services publics, les services de l’immeuble et les frais immobiliers.
New tenants can receive a broker bonus of $2 per square foot for lease deals of five years or more and $1 per square foot for lease deals of three years or more. Exclusions apply. This offer expires on June 30, 2025. This is a Flex Workspace+tm suite.
- Entièrement aménagé comme Bureau standard
- Principalement open space
$2/SF Broker Bonus for 5+ year lease deals & $1/SF Broker Bonus for 3+ year lease deals for NEW customers. Exclusions apply. Expires 12/31/2025
- Le loyer comprend les services publics, les services de l’immeuble et les frais immobiliers.
- Principalement open space
$2/SF Broker Bonus for 5+ year lease deals & $1/SF Broker Bonus for 3+ year lease deals for NEW customers. Exclusions apply. Expires 12/31/2025
- Le loyer comprend les services publics, les services de l’immeuble et les frais immobiliers.
- Principalement open space
- Entièrement aménagé comme Bureau standard
| Espace | Surface | Durée | Loyer | Type de bien | Aménagement | Disponible |
| 3e étage, bureau 300 | 1 419 m² | Négociable | 363,55 € /m²/an 30,30 € /m²/mois 515 978 € /an 42 998 € /mois | Bureau | Construction achevée | Maintenant |
| 6e étage, bureau 640 | 532 m² | Négociable | 363,55 € /m²/an 30,30 € /m²/mois 193 327 € /an 16 111 € /mois | Bureau | - | 01/08/2026 |
| 7e étage, bureau 720 | 256 m² | Négociable | 363,55 € /m²/an 30,30 € /m²/mois 92 915 € /an 7 743 € /mois | Bureau | Construction achevée | Maintenant |
| 7e étage, bureau 780 | 190 m² | Négociable | 363,55 € /m²/an 30,30 € /m²/mois 69 238 € /an 5 770 € /mois | Bureau | Meublé et équipé | Maintenant |
| 8e étage, bureau 800 | 709 m² | Négociable | 363,55 € /m²/an 30,30 € /m²/mois 257 634 € /an 21 470 € /mois | Bureau | Construction achevée | Maintenant |
3200 Bristol St - 3e étage – Bureau 300
3200 Bristol St - 6e étage – Bureau 640
3200 Bristol St - 7e étage – Bureau 720
3200 Bristol St - 7e étage – Bureau 780
3200 Bristol St - 8e étage – Bureau 800
- Espace
- Surface
- Durée
- Loyer
- Type de bien
- Aménagement
- Disponible
New tenants can receive a broker bonus of $2 per square foot for lease deals of five years or more and $1 per square foot for lease deals of three years or more. Exclusions apply. This offer expires on June 30, 2025.
- Le loyer comprend les services publics, les services de l’immeuble et les frais immobiliers.
- Principalement open space
- Entièrement aménagé comme Bureau de services professionnels
Suite Description : $2/SF Broker Bonus for 5+ year lease deals & $1/SF Broker Bonus for 3+ year lease deals for NEW customers. Exclusions apply. Expires 6/30/2026 / This is a Flex Workspace+tm suite : Yes
- Le loyer comprend les services publics, les services de l’immeuble et les frais immobiliers.
- Le loyer comprend les services publics, les services de l’immeuble et les frais immobiliers.
- Principalement open space
- Entièrement aménagé comme Bureau standard
$2/SF Broker Bonus for 5+ year lease deals & $1/SF Broker Bonus for 3+ year lease deals for NEW customers. Exclusions apply. Expires 12/31/2025
- Le loyer comprend les services publics, les services de l’immeuble et les frais immobiliers.
$2/SF Broker Bonus for 5+ year lease deals & $1/SF Broker Bonus for 3+ year lease deals for NEW customers. Exclusions apply. Expires 12/31/2025
- Le loyer comprend les services publics, les services de l’immeuble et les frais immobiliers.
$2/SF Broker Bonus for 5+ year lease deals & $1/SF Broker Bonus for 3+ year lease deals for NEW customers. Exclusions apply. Expires 12/31/2025
- Le loyer comprend les services publics, les services de l’immeuble et les frais immobiliers.
| Espace | Surface | Durée | Loyer | Type de bien | Aménagement | Disponible |
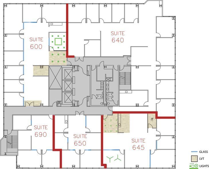
| 6e étage, bureau 600 | 1 267 m² | Négociable | 374,57 € /m²/an 31,21 € /m²/mois 474 753 € /an 39 563 € /mois | Bureau | Construction achevée | Maintenant |
| 6e étage, bureau 620 | 335 m² | Négociable | 369,06 € /m²/an 30,75 € /m²/mois 123 775 € /an 10 315 € /mois | Bureau | - | 01/07/2026 |
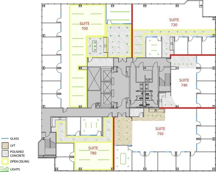
| 7e étage, bureau 700 | 405 m² | Négociable | 374,57 € /m²/an 31,21 € /m²/mois 151 755 € /an 12 646 € /mois | Bureau | Construction achevée | 01/09/2026 |
| 7e étage, bureau 720 | 560 m² | Négociable | 374,57 € /m²/an 31,21 € /m²/mois 209 590 € /an 17 466 € /mois | Bureau | - | 01/09/2026 |
| 7e étage, bureau 740 | 303 m² | Négociable | 374,57 € /m²/an 31,21 € /m²/mois 113 373 € /an 9 448 € /mois | Bureau | - | 01/09/2026 |
| 7e étage, bureau 750 | 589 m² | Négociable | 374,57 € /m²/an 31,21 € /m²/mois 220 587 € /an 18 382 € /mois | Bureau | - | 01/09/2026 |
611 Anton Blvd - 6e étage – Bureau 600
611 Anton Blvd - 6e étage – Bureau 620
611 Anton Blvd - 7e étage – Bureau 700
611 Anton Blvd - 7e étage – Bureau 720
611 Anton Blvd - 7e étage – Bureau 740
611 Anton Blvd - 7e étage – Bureau 750
3210 Park Center Dr - 1er étage – Bureau 100
| Surface | 386 m² |
| Durée | Négociable |
| Loyer | 352,53 € /m²/an |
| Type de bien | Bureau |
| Aménagement | Construction achevée |
| Disponible | Maintenant |
Suite Description : $2/SF Broker Bonus for 5+ year lease deals & $1/SF Broker Bonus for 3+ year lease deals for NEW customers. Exclusions apply. Expires 6/30/2025
- Le loyer comprend les services publics, les services de l’immeuble et les frais immobiliers.
- Entièrement aménagé comme Bureau standard
- Principalement open space
3200 Park Center Dr - 1er étage – Bureau 125
| Surface | 397 m² |
| Durée | Négociable |
| Loyer | 363,55 € /m²/an |
| Type de bien | Bureau |
| Aménagement | Construction partielle |
| Disponible | 01/09/2026 |
New tenants can receive a broker bonus of $2 per square foot for lease deals of five years or more and $1 per square foot for lease deals of three years or more. Exclusions apply. This offer expires on June 30, 2025.
- Le loyer comprend les services publics, les services de l’immeuble et les frais immobiliers.
- Partiellement aménagé comme Bureau standard
- Principalement open space
- 2 bureaux privés
- Entièrement moquetté
3200 Park Center Dr - 2e étage – Bureau 210
| Surface | 156 m² |
| Durée | Négociable |
| Loyer | 347,02 € /m²/an |
| Type de bien | Bureau |
| Aménagement | - |
| Disponible | Maintenant |
Suite Description : $2/SF Broker Bonus for 5+ year lease deals & $1/SF Broker Bonus for 3+ year lease deals for NEW customers. Exclusions apply. Expires 6/30/2026 / This is a Flex Workspace+tm suite : Yes
- Le loyer comprend les services publics, les services de l’immeuble et les frais immobiliers.
3200 Park Center Dr - 3e étage – Bureau 360
| Surface | 366 m² |
| Durée | Négociable |
| Loyer | 347,02 € /m²/an |
| Type de bien | Bureau |
| Aménagement | Construction achevée |
| Disponible | Maintenant |
Suite Description : $2/SF Broker Bonus for 5+ year lease deals & $1/SF Broker Bonus for 3+ year lease deals for NEW customers. Exclusions apply. Expires 12/31/2025 / This is a Flex Workspace+tm suite : Yes
- Le loyer comprend les services publics, les services de l’immeuble et les frais immobiliers.
- Entièrement aménagé comme Bureau standard
- Principalement open space
3200 Park Center Dr - 5e étage – Bureau 560
| Surface | 199 m² |
| Durée | Négociable |
| Loyer | 374,57 € /m²/an |
| Type de bien | Bureau |
| Aménagement | - |
| Disponible | 01/06/2026 |
$2/SF Broker Bonus for 5+ year lease deals & $1/SF Broker Bonus for 3+ year lease deals for NEW customers. Exclusions apply. Expires 6/30/2026
- Le loyer comprend les services publics, les services de l’immeuble et les frais immobiliers.
3200 Park Center Dr - 7e étage – Bureau 720
| Surface | 508 m² |
| Durée | Négociable |
| Loyer | 363,55 € /m²/an |
| Type de bien | Bureau |
| Aménagement | Construction achevée |
| Disponible | 01/05/2026 |
Suite Description : $2/SF Broker Bonus for 5+ year lease deals & $1/SF Broker Bonus for 3+ year lease deals for NEW customers. Exclusions apply. Expires 12/31/2025 / This is a Flex Workspace+tm suite : Yes
- Le loyer comprend les services publics, les services de l’immeuble et les frais immobiliers.
- Entièrement aménagé comme Bureau standard
- Principalement open space
3200 Park Center Dr - 11e étage – Bureau 1150
| Surface | 362 m² |
| Durée | Négociable |
| Loyer | 369,06 € /m²/an |
| Type de bien | Bureau |
| Aménagement | Construction achevée |
| Disponible | 15/05/2026 |
Suite Description : $2/SF Broker Bonus for 5+ year lease deals & $1/SF Broker Bonus for 3+ year lease deals for NEW customers. Exclusions apply. Expires 12/31/2025
- Le loyer comprend les services publics, les services de l’immeuble et les frais immobiliers.
- Entièrement aménagé comme Bureau standard
- Principalement open space
675 Anton Blvd - 2e étage – Bureau 200
| Surface | 1 223 m² |
| Durée | Négociable |
| Loyer | 352,53 € /m²/an |
| Type de bien | Bureau |
| Aménagement | - |
| Disponible | 01/09/2026 |
Suite Description : $2/SF Broker Bonus for 5+ year lease deals & $1/SF Broker Bonus for 3+ year lease deals for NEW customers. Exclusions apply. Expires 12/31/2025
- Le loyer comprend les services publics, les services de l’immeuble et les frais immobiliers.
- Peut être associé à un ou plusieurs espaces supplémentaires pour obtenir jusqu’à 2 446 m² d’espace adjacent.
675 Anton Blvd - 3e étage – Bureau 300
| Surface | 1 223 m² |
| Durée | Négociable |
| Loyer | 352,53 € /m²/an |
| Type de bien | Bureau |
| Aménagement | - |
| Disponible | Maintenant |
Suite Description : $2/SF Broker Bonus for 5+ year lease deals & $1/SF Broker Bonus for 3+ year lease deals for NEW customers. Exclusions apply. Expires 12/31/2025
- Le loyer comprend les services publics, les services de l’immeuble et les frais immobiliers.
- Peut être associé à un ou plusieurs espaces supplémentaires pour obtenir jusqu’à 2 446 m² d’espace adjacent.
3200 Bristol St - 3e étage – Bureau 300
| Surface | 1 419 m² |
| Durée | Négociable |
| Loyer | 363,55 € /m²/an |
| Type de bien | Bureau |
| Aménagement | Construction achevée |
| Disponible | Maintenant |
$2/SF Broker Bonus for 5+ year lease deals & $1/SF Broker Bonus for 3+ year lease deals for NEW customers. Exclusions apply. Expires 12/31/2025
- Le loyer comprend les services publics, les services de l’immeuble et les frais immobiliers.
- Entièrement aménagé comme Bureau standard
- Principalement open space
3200 Bristol St - 6e étage – Bureau 640
| Surface | 532 m² |
| Durée | Négociable |
| Loyer | 363,55 € /m²/an |
| Type de bien | Bureau |
| Aménagement | - |
| Disponible | 01/08/2026 |
Suite Description : $2/SF Broker Bonus for 5+ year lease deals & $1/SF Broker Bonus for 3+ year lease deals for NEW customers. Exclusions apply. Expires 6/30/2026
- Le loyer comprend les services publics, les services de l’immeuble et les frais immobiliers.
3200 Bristol St - 7e étage – Bureau 720
| Surface | 256 m² |
| Durée | Négociable |
| Loyer | 363,55 € /m²/an |
| Type de bien | Bureau |
| Aménagement | Construction achevée |
| Disponible | Maintenant |
New tenants can receive a broker bonus of $2 per square foot for lease deals of five years or more and $1 per square foot for lease deals of three years or more. Exclusions apply. This offer expires on June 30, 2025. This is a Flex Workspace+tm suite.
- Entièrement aménagé comme Bureau standard
- Principalement open space
3200 Bristol St - 7e étage – Bureau 780
| Surface | 190 m² |
| Durée | Négociable |
| Loyer | 363,55 € /m²/an |
| Type de bien | Bureau |
| Aménagement | Meublé et équipé |
| Disponible | Maintenant |
$2/SF Broker Bonus for 5+ year lease deals & $1/SF Broker Bonus for 3+ year lease deals for NEW customers. Exclusions apply. Expires 12/31/2025
- Le loyer comprend les services publics, les services de l’immeuble et les frais immobiliers.
- Principalement open space
3200 Bristol St - 8e étage – Bureau 800
| Surface | 709 m² |
| Durée | Négociable |
| Loyer | 363,55 € /m²/an |
| Type de bien | Bureau |
| Aménagement | Construction achevée |
| Disponible | Maintenant |
$2/SF Broker Bonus for 5+ year lease deals & $1/SF Broker Bonus for 3+ year lease deals for NEW customers. Exclusions apply. Expires 12/31/2025
- Le loyer comprend les services publics, les services de l’immeuble et les frais immobiliers.
- Entièrement aménagé comme Bureau standard
- Principalement open space
611 Anton Blvd - 6e étage – Bureau 600
| Surface | 1 267 m² |
| Durée | Négociable |
| Loyer | 374,57 € /m²/an |
| Type de bien | Bureau |
| Aménagement | Construction achevée |
| Disponible | Maintenant |
New tenants can receive a broker bonus of $2 per square foot for lease deals of five years or more and $1 per square foot for lease deals of three years or more. Exclusions apply. This offer expires on June 30, 2025.
- Le loyer comprend les services publics, les services de l’immeuble et les frais immobiliers.
- Entièrement aménagé comme Bureau de services professionnels
- Principalement open space
611 Anton Blvd - 6e étage – Bureau 620
| Surface | 335 m² |
| Durée | Négociable |
| Loyer | 369,06 € /m²/an |
| Type de bien | Bureau |
| Aménagement | - |
| Disponible | 01/07/2026 |
Suite Description : $2/SF Broker Bonus for 5+ year lease deals & $1/SF Broker Bonus for 3+ year lease deals for NEW customers. Exclusions apply. Expires 6/30/2026 / This is a Flex Workspace+tm suite : Yes
- Le loyer comprend les services publics, les services de l’immeuble et les frais immobiliers.
611 Anton Blvd - 7e étage – Bureau 700
| Surface | 405 m² |
| Durée | Négociable |
| Loyer | 374,57 € /m²/an |
| Type de bien | Bureau |
| Aménagement | Construction achevée |
| Disponible | 01/09/2026 |
- Le loyer comprend les services publics, les services de l’immeuble et les frais immobiliers.
- Entièrement aménagé comme Bureau standard
- Principalement open space
611 Anton Blvd - 7e étage – Bureau 720
| Surface | 560 m² |
| Durée | Négociable |
| Loyer | 374,57 € /m²/an |
| Type de bien | Bureau |
| Aménagement | - |
| Disponible | 01/09/2026 |
$2/SF Broker Bonus for 5+ year lease deals & $1/SF Broker Bonus for 3+ year lease deals for NEW customers. Exclusions apply. Expires 12/31/2025
- Le loyer comprend les services publics, les services de l’immeuble et les frais immobiliers.
611 Anton Blvd - 7e étage – Bureau 740
| Surface | 303 m² |
| Durée | Négociable |
| Loyer | 374,57 € /m²/an |
| Type de bien | Bureau |
| Aménagement | - |
| Disponible | 01/09/2026 |
$2/SF Broker Bonus for 5+ year lease deals & $1/SF Broker Bonus for 3+ year lease deals for NEW customers. Exclusions apply. Expires 12/31/2025
- Le loyer comprend les services publics, les services de l’immeuble et les frais immobiliers.
611 Anton Blvd - 7e étage – Bureau 750
| Surface | 589 m² |
| Durée | Négociable |
| Loyer | 374,57 € /m²/an |
| Type de bien | Bureau |
| Aménagement | - |
| Disponible | 01/09/2026 |
$2/SF Broker Bonus for 5+ year lease deals & $1/SF Broker Bonus for 3+ year lease deals for NEW customers. Exclusions apply. Expires 12/31/2025
- Le loyer comprend les services publics, les services de l’immeuble et les frais immobiliers.
Vue d’ensemble du parc
Pacific Arts Plaza est l'endroit où la culture OC rencontre l'expérience professionnelle. Le campus, situé au centre de la ville, comprend quatre immeubles distincts de grande et moyenne hauteur et abrite le jardin de sculptures Noguchi de 1,6 acre de renommée mondiale, « California Scenario », en tant que pièce maîtresse. Les options de location flexibles mettent à la portée de votre entreprise un plus grand nombre de choses importantes, notamment de grands blocs d'espaces de travail contigus, une opportunité de construction complète et une variété d'options de signalisation de marque. Choisissez les termes qui conviennent à votre entreprise aujourd'hui avec des options pour demain. Conçus pour un attrait intérieur/extérieur, les équipements attrayants de l'établissement comprennent un espace de détente extérieur prêt à travailler, un salon et une salle de jeux, ainsi que Venue, l'espace de réunion et d'événement intérieur-extérieur. Un nouveau centre de remise en forme KINETIC et un café sur place ouvriront leurs portes en 2023, rejoignant le Mastro's, un steakhouse haut de gamme et des food trucks rotatifs. Les commodités sur place comprennent un guichet automatique, un lave-auto et des services de réparation, un centre de ressources clients, un service de nettoyage à sec, la recharge des véhicules électriques, des services de colis et des solutions de stockage sécurisées. Profitez d'un accès à pied aux divertissements, à la culture et à la cuisine, notamment au célèbre Segerstrom Center for the Arts, au South Coast Plaza et au nouveau musée d'art OC, ainsi que d'une vie luxueuse. Le Pacific Arts Plaza offre un accès direct aux autoroutes 405 et 5 ainsi qu'à l'autoroute 55 et se trouve à 1,6 km de l'aéroport John Wayne.
- Accès 24 h/24
Durabilité
Durabilité
Certification LEED Établi par l’U.S. Green Building Council (USGBC, Conseil américain de l’immeuble durable), le programme de certification LEED (Leadership in Energy and Environmental Design) est axé sur la conception, la construction, l’exploitation et la maintenance d’immeubles, de maisons et de quartiers écologiques. Sa vocation est d’aider les propriétaires et les exploitants à adopter des pratiques écoresponsables et à utiliser les ressources de façon efficace. La certification LEED est un symbole mondialement reconnu de réalisation et de leadership en matière de développement durable. Pour obtenir la certification LEED, un projet doit obtenir des points en respectant des conditions préalables et un barème de crédits qui tiennent compte des émissions de carbone, de l’énergie, de l’eau, des déchets, du transport, des matériaux, de la santé et de la qualité de l’environnement intérieur. Les projets passent par un processus de vérification et d’évaluation et reçoivent un score correspondant à un niveau de certification LEED : Platine (80 points et plus) Or (60 à 79 points) Argent (50 à 59 points) Certifié (40 à 49 points)
Présenté par
Pacific Arts Plaza | Costa Mesa, CA 92626
Hum, une erreur s’est produite lors de l’envoi de votre message. Veuillez réessayer.
Merci ! Votre message a été envoyé.






































