Votre e-mail a été envoyé.
Certaines informations ont été traduites automatiquement.
Informations principales
- Centre à usage mixte de 3 étages de 40 000 pieds carrés avec des locataires et des opportunités de vente au détail, de restaurants, de services et de bureaux
- À quelques minutes de Charles Street, Roland Avenue, I-695 et I-83
- Rejoignez The Corner Pantry, Sushi Hana, Aluma Yoga, Long & Foster Real Estate, Mason-Mayes, Al Pacino Pizza, KCO Salon/Day Spa, Serenity Nails
- Emplacement privilégié au centre de Mount Washington/Roland Park
- Stationnement en surface ouvert et spacieux
Disponibilité de l’espace (2)
Afficher le tarif en
- Espace
- Surface
- Durée
- Loyer
- Type de loyer
| Espace | Surface | Durée | Loyer | Type de loyer | ||
| 2e étage, bureau 200A | 130 m² | Négociable | Sur demande Sur demande Sur demande Sur demande | Négociable | ||
| 2e étage, bureau 200B | 246 m² | Négociable | Sur demande Sur demande Sur demande Sur demande | Négociable |
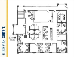
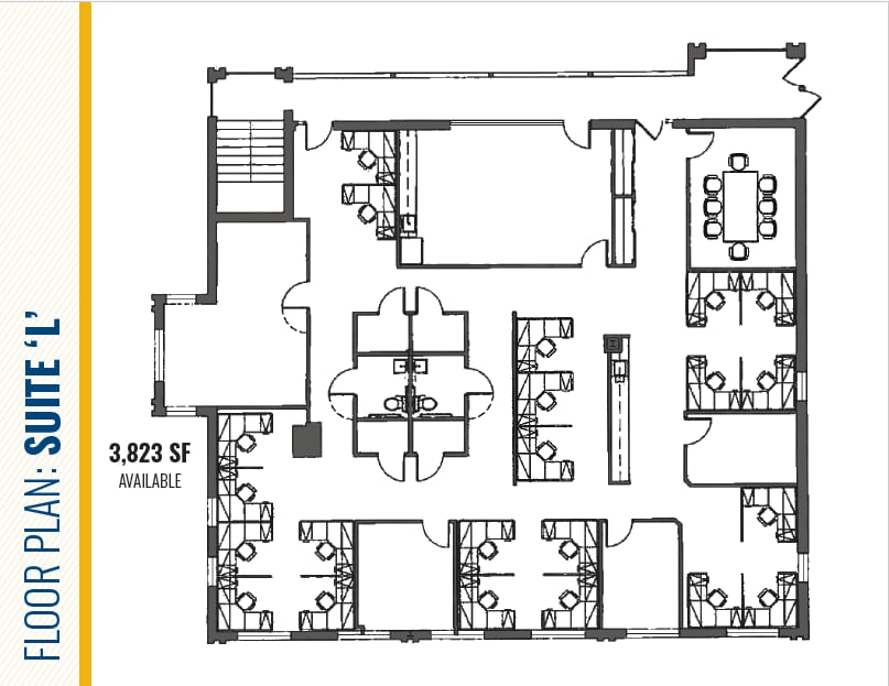
2e étage, bureau 200A
Proposed floor plan
- Entièrement aménagé comme Bureau standard
- Peut être associé à un ou plusieurs espaces supplémentaires pour obtenir jusqu’à 376 m² d’espace adjacent.
- Proposed floor plan
2e étage, bureau 200B
Proposed floor plan
- Entièrement aménagé comme Bureau standard
- Peut être associé à un ou plusieurs espaces supplémentaires pour obtenir jusqu’à 376 m² d’espace adjacent.
- Proposed floor plan
Types de loyers
Le montant et le type de loyer que l’occupant (locataire) est tenu de payer au propriétaire (bailleur) sur la durée du bail sont négociés avant la signature du bail par les deux parties. Le type de loyer varie selon les services fournis. Par exemple, le prix d’un loyer triple net est habituellement inférieur à celui d’un bail à service complet puisque l’occupant est tenu d’assumer des dépenses supplémentaires par rapport au loyer de base. Contacter le broker chargé de l’annonce pour bien comprendre les coûts associés ou les dépenses supplémentaires pour chaque type de loyer.
1. Service complet: Un loyer qui comprend des services d’immeuble standards normaux fournis par le propriétaire dans le cadre d’une location annuelle de base.
2. Double net (NN): L’occupant paie seulement deux des frais de l’immeuble. Le propriétaire et l’occupant déterminent ces frais spécifiques avant la signature du bail.
3. Triple net (NNN): Un bail selon lequel l’occupant est responsable de tous les frais liés à sa part proportionnelle d’occupation de l’immeuble.
4. Brut modifié: Le brut modifié est un type général de bail dans lequel l’occupant est en général responsable de sa part proportionnelle d’une ou de plusieurs dépenses. C’est le propriétaire qui paie les frais restants. Consultez la liste ci-dessous pour connaître les structures de loyers bruts modifiés les plus courantes : 4. Plus services publics: Un type de bail brut modifié, où l’occupant est responsable à hauteur de sa part proportionnelle des services publics en plus du loyer. 4. Plus nettoyage: Un type de bail brut modifié, où l’occupant est responsable à hauteur de sa part proportionnelle du nettoyage en plus du loyer. 4. Plus électricité: Un type de bail brut modifié, où l’occupant est responsable à hauteur de sa part proportionnelle du coût de la consommation électrique en plus du loyer. 4. Plus électricité et nettoyage: Un type de bail brut modifié, où l’occupant est responsable à hauteur de sa part proportionnelle du coût de la consommation électrique et du nettoyage en plus du loyer. 4. Plus services publics et charges: Un type de bail brut modifié où l’occupant est responsable à hauteur de sa part proportionnelle des services publics et du coût de nettoyage en plus du loyer. 4. Bail industriel brut: Un type de bail brut modifié dans lequel l’occupant paie un ou plusieurs des frais en plus du loyer. Le propriétaire et l’occupant déterminent ces frais spécifiques avant la signature du bail.
5. Électricité à la charge de l’occupant: Le propriétaire paie pour tous les services et l’occupant est responsable de sa propre utilisation de l’éclairage et des prises électriques dans l’espace qu’il occupe.
6. Négociable ou sur demande: Cette option est utilisée lorsque le contact de location n’indique pas le type de loyer ou de service.
7. À déterminer: À déterminer : utilisé pour les immeubles dont le type de services ou de loyer n’est pas connu, souvent quand l’immeuble n’est pas encore construit.
Informations sur l’immeuble
| Espace total disponible | 376 m² | Année de construction/rénovation | 1981/2020 |
| Type de bien | Local commercial | Ratio de stationnement | 0,09/1 000 m² |
| Surface commerciale utile | 3 910 m² |
| Espace total disponible | 376 m² |
| Type de bien | Local commercial |
| Surface commerciale utile | 3 910 m² |
| Année de construction/rénovation | 1981/2020 |
| Ratio de stationnement | 0,09/1 000 m² |
À propos du bien
MacKenzie Retail, LLC est heureuse de présenter l'opportunité de louer un espace commercial de premier ordre à Lake Falls Village, un centre à usage mixte de 3 étages de 40 000 pieds carrés abritant des locataires de commerces de détail, de restaurants, de services et de bureaux sur Falls Road, juste au nord de la limite de Baltimore City. Le centre est situé dans la zone commerciale de Mount Washington/Roland Park, à quelques minutes de Charles Street, Roland Avenue, de l'I-695 et de l'I-83. Lake Falls Village dispose d'un vaste parking ouvert et propose actuellement des boutiques de détail idéales pour les utilisateurs de mode ou de services.
- Signalisation
- Climatisation
Principaux commerces à proximité
Présenté par
Lake Falls Village | 6080 Falls Rd
Hum, une erreur s’est produite lors de l’envoi de votre message. Veuillez réessayer.
Merci ! Votre message a été envoyé.





