Votre e-mail a été envoyé.
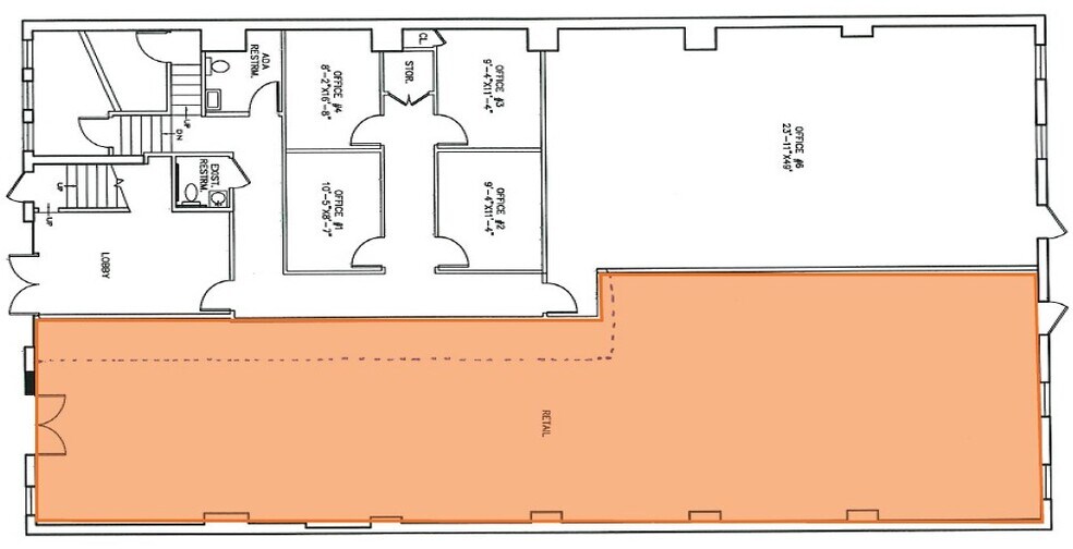
603 Bergen St Local commercial | 186 m² | À louer | Brooklyn, NY 11238



Certaines informations ont été traduites automatiquement.
TOUS LES ESPACE DISPONIBLES(1)
Afficher les loyers en
- ESPACE
- SURFACE
- DURÉE
- LOYER
- TYPE DE BIEN
- ÉTAT
- DISPONIBLE
• Steps away from Barclays Center & Atlantic Terminal Mall • High foot & vehicle traffic area • Dense residential neighborhood • Neighboring tenants include: Just Salad, Pure Green, Tend Dental, Chick-fil-A, Shake Shack, Warby Parker, Restore Hyper Welness, KITH, Savage x Fenty, Chip City, Lifetime Fitness, & many more!
- 15' of frontage
| Espace | Surface | Durée | Loyer | Type de bien | État | Disponible |
| 1er étage | 186 m² | Négociable | Sur demande Sur demande Sur demande Sur demande | Local commercial | - | 30 jours |
1er étage
| Surface |
| 186 m² |
| Durée |
| Négociable |
| Loyer |
| Sur demande Sur demande Sur demande Sur demande |
| Type de bien |
| Local commercial |
| État |
| - |
| Disponible |
| 30 jours |
1er étage
| Surface | 186 m² |
| Durée | Négociable |
| Loyer | Sur demande |
| Type de bien | Local commercial |
| État | - |
| Disponible | 30 jours |
• Steps away from Barclays Center & Atlantic Terminal Mall • High foot & vehicle traffic area • Dense residential neighborhood • Neighboring tenants include: Just Salad, Pure Green, Tend Dental, Chick-fil-A, Shake Shack, Warby Parker, Restore Hyper Welness, KITH, Savage x Fenty, Chip City, Lifetime Fitness, & many more!
- 15' of frontage
OCCUPANTS
- ÉTAGE
- NOM DE L’OCCUPANT
- SECTEUR D’ACTIVITÉ
- 1er
- Ancestral Traditions
- Santé et assistance sociale
- 2e
- Blackshear
- Enseigne
- 1er
- Brooklyn Peoples Pottery
- Enseigne
- 2e
- InnerYin
- Enseigne
- 1er
- Jean Bowen Therapy
- Services
- 1er
- LHG Creative & Lisah Graziano
- -
- 2e
- MaMassage Brooklyn
- Santé et assistance sociale
- 2e
- Neil Donnelly Studio Llc
- Services professionnels, scientifiques et techniques
- Inconnu
- Richard Baronio
- -
INFORMATIONS SUR L’IMMEUBLE
APERÇU DU BIEN
• À quelques pas du Barclays Center et du centre commercial Atlantic Terminal • Zone à fort trafic piétonnier et automobile • Quartier résidentiel dense
- Climatisation
PRINCIPAUX COMMERCES À PROXIMITÉ
Présenté par
603 Bergen St
Hum, une erreur s’est produite lors de l’envoi de votre message. Veuillez réessayer.
Merci ! Votre message a été envoyé.



