Votre e-mail a été envoyé.
Certaines informations ont été traduites automatiquement.
Informations principales
- Bureau professionnel et exécutif de ±1 000 à 10 000 pieds carrés
- 2e étage - Bureau exécutif
- Parking couvert
- 1er et 3e étages - Bureau traditionnel
- Gestionnaire immobilier sur place
- Idéalement situé à proximité de l'autoroute 114 et de l'autoroute E John Carpenter
Tous les espaces disponibles(7)
Afficher les loyers en
- Espace
- Surface
- Durée
- Loyer
- Type de bien
- Aménagement
- Disponible
1st & 3rd Floor - Traditional Office
- Loyer annoncé plus part proportionnelle des coûts de la consommation électrique
- Convient pour 6 à 19 personnes
- Espace en excellent état
- Entièrement aménagé comme Bureau standard
- 7 bureaux privés
- Communal Conference & Lounge area
1st & 3rd Floor - Traditional Office
- Loyer annoncé plus part proportionnelle des coûts de la consommation électrique
- Convient pour 7 à 22 personnes
- Espace en excellent état
- Entièrement aménagé comme Bureau standard
- 7 bureaux privés
- Salle de conférence et salon communs
1st & 3rd Floor - Traditional Office
- Loyer annoncé plus part proportionnelle des coûts de la consommation électrique
- Convient pour 5 à 15 personnes
- Espace en excellent état
- Entièrement aménagé comme Bureau standard
- 7 bureaux privés
- Salle de conférence et salon communs
1st & 3rd Floor - Traditional Office
- Loyer annoncé plus part proportionnelle des coûts de la consommation électrique
- Plan d’étage avec bureaux fermés
- Espace en excellent état
- Entièrement aménagé comme Bureau standard
- Convient pour 4 à 11 personnes
- Salle de conférence et salon communs
1st & 3rd Floor - Traditional Office
- Loyer annoncé plus part proportionnelle des coûts de la consommation électrique
- Disposition open space
- Espace en excellent état
- Entièrement aménagé comme Bureau standard
- Convient pour 3 à 9 personnes
- Communal Conference & Lounge area
1st & 3rd Floor - Traditional Office
- Loyer annoncé plus part proportionnelle des coûts de la consommation électrique
- Plan d’étage avec bureaux fermés
- Espace en excellent état
- Entièrement aménagé comme Bureau standard
- Convient pour 9 à 28 personnes
- Salle de conférence et salon communs
1st & 3rd Floor - Traditional Office
- Loyer annoncé plus part proportionnelle des coûts de la consommation électrique
- Disposition open space
- Espace en excellent état
- Entièrement aménagé comme Bureau standard
- Convient pour 4 à 11 personnes
- Salle de conférence et salon communs
| Espace | Surface | Durée | Loyer | Type de bien | Aménagement | Disponible |
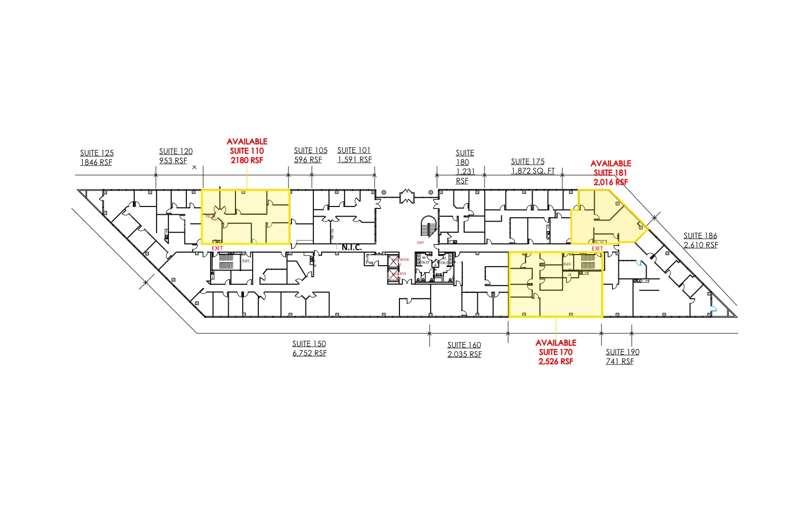
| 1er étage, bureau 110 | 211 m² | 3-6 Ans | 196,18 € /m²/an 16,35 € /m²/mois 41 482 € /an 3 457 € /mois | Bureau | Construction achevée | Maintenant |
| 1er étage, bureau 170 | 247 m² | 3-6 Ans | 196,18 € /m²/an 16,35 € /m²/mois 48 426 € /an 4 036 € /mois | Bureau | Construction achevée | Maintenant |
| 1er étage, bureau 181 | 165 m² | 3-6 Ans | 196,18 € /m²/an 16,35 € /m²/mois 32 442 € /an 2 704 € /mois | Bureau | Construction achevée | Maintenant |
| 3e étage, bureau 310 | 127 m² | 3-6 Ans | 196,18 € /m²/an 16,35 € /m²/mois 25 006 € /an 2 084 € /mois | Bureau | Construction achevée | Maintenant |
| 3e étage, bureau 320 | 104 m² | 3-6 Ans | 196,18 € /m²/an 16,35 € /m²/mois 20 431 € /an 1 703 € /mois | Bureau | Construction achevée | Maintenant |
| 3e étage, bureau 333 | 325 m² | 3-6 Ans | 196,18 € /m²/an 16,35 € /m²/mois 63 791 € /an 5 316 € /mois | Bureau | Construction achevée | Maintenant |
| 3e étage, bureau 375 | 124 m² | 3-6 Ans | 196,18 € /m²/an 16,35 € /m²/mois 24 277 € /an 2 023 € /mois | Bureau | Construction achevée | Maintenant |
1er étage, bureau 110
| Surface |
| 211 m² |
| Durée |
| 3-6 Ans |
| Loyer |
| 196,18 € /m²/an 16,35 € /m²/mois 41 482 € /an 3 457 € /mois |
| Type de bien |
| Bureau |
| Aménagement |
| Construction achevée |
| Disponible |
| Maintenant |
1er étage, bureau 170
| Surface |
| 247 m² |
| Durée |
| 3-6 Ans |
| Loyer |
| 196,18 € /m²/an 16,35 € /m²/mois 48 426 € /an 4 036 € /mois |
| Type de bien |
| Bureau |
| Aménagement |
| Construction achevée |
| Disponible |
| Maintenant |
1er étage, bureau 181
| Surface |
| 165 m² |
| Durée |
| 3-6 Ans |
| Loyer |
| 196,18 € /m²/an 16,35 € /m²/mois 32 442 € /an 2 704 € /mois |
| Type de bien |
| Bureau |
| Aménagement |
| Construction achevée |
| Disponible |
| Maintenant |
3e étage, bureau 310
| Surface |
| 127 m² |
| Durée |
| 3-6 Ans |
| Loyer |
| 196,18 € /m²/an 16,35 € /m²/mois 25 006 € /an 2 084 € /mois |
| Type de bien |
| Bureau |
| Aménagement |
| Construction achevée |
| Disponible |
| Maintenant |
3e étage, bureau 320
| Surface |
| 104 m² |
| Durée |
| 3-6 Ans |
| Loyer |
| 196,18 € /m²/an 16,35 € /m²/mois 20 431 € /an 1 703 € /mois |
| Type de bien |
| Bureau |
| Aménagement |
| Construction achevée |
| Disponible |
| Maintenant |
3e étage, bureau 333
| Surface |
| 325 m² |
| Durée |
| 3-6 Ans |
| Loyer |
| 196,18 € /m²/an 16,35 € /m²/mois 63 791 € /an 5 316 € /mois |
| Type de bien |
| Bureau |
| Aménagement |
| Construction achevée |
| Disponible |
| Maintenant |
3e étage, bureau 375
| Surface |
| 124 m² |
| Durée |
| 3-6 Ans |
| Loyer |
| 196,18 € /m²/an 16,35 € /m²/mois 24 277 € /an 2 023 € /mois |
| Type de bien |
| Bureau |
| Aménagement |
| Construction achevée |
| Disponible |
| Maintenant |
1er étage, bureau 110
| Surface | 211 m² |
| Durée | 3-6 Ans |
| Loyer | 196,18 € /m²/an |
| Type de bien | Bureau |
| Aménagement | Construction achevée |
| Disponible | Maintenant |
1st & 3rd Floor - Traditional Office
- Loyer annoncé plus part proportionnelle des coûts de la consommation électrique
- Entièrement aménagé comme Bureau standard
- Convient pour 6 à 19 personnes
- 7 bureaux privés
- Espace en excellent état
- Communal Conference & Lounge area
1er étage, bureau 170
| Surface | 247 m² |
| Durée | 3-6 Ans |
| Loyer | 196,18 € /m²/an |
| Type de bien | Bureau |
| Aménagement | Construction achevée |
| Disponible | Maintenant |
1st & 3rd Floor - Traditional Office
- Loyer annoncé plus part proportionnelle des coûts de la consommation électrique
- Entièrement aménagé comme Bureau standard
- Convient pour 7 à 22 personnes
- 7 bureaux privés
- Espace en excellent état
- Salle de conférence et salon communs
1er étage, bureau 181
| Surface | 165 m² |
| Durée | 3-6 Ans |
| Loyer | 196,18 € /m²/an |
| Type de bien | Bureau |
| Aménagement | Construction achevée |
| Disponible | Maintenant |
1st & 3rd Floor - Traditional Office
- Loyer annoncé plus part proportionnelle des coûts de la consommation électrique
- Entièrement aménagé comme Bureau standard
- Convient pour 5 à 15 personnes
- 7 bureaux privés
- Espace en excellent état
- Salle de conférence et salon communs
3e étage, bureau 310
| Surface | 127 m² |
| Durée | 3-6 Ans |
| Loyer | 196,18 € /m²/an |
| Type de bien | Bureau |
| Aménagement | Construction achevée |
| Disponible | Maintenant |
1st & 3rd Floor - Traditional Office
- Loyer annoncé plus part proportionnelle des coûts de la consommation électrique
- Entièrement aménagé comme Bureau standard
- Plan d’étage avec bureaux fermés
- Convient pour 4 à 11 personnes
- Espace en excellent état
- Salle de conférence et salon communs
3e étage, bureau 320
| Surface | 104 m² |
| Durée | 3-6 Ans |
| Loyer | 196,18 € /m²/an |
| Type de bien | Bureau |
| Aménagement | Construction achevée |
| Disponible | Maintenant |
1st & 3rd Floor - Traditional Office
- Loyer annoncé plus part proportionnelle des coûts de la consommation électrique
- Entièrement aménagé comme Bureau standard
- Disposition open space
- Convient pour 3 à 9 personnes
- Espace en excellent état
- Communal Conference & Lounge area
3e étage, bureau 333
| Surface | 325 m² |
| Durée | 3-6 Ans |
| Loyer | 196,18 € /m²/an |
| Type de bien | Bureau |
| Aménagement | Construction achevée |
| Disponible | Maintenant |
1st & 3rd Floor - Traditional Office
- Loyer annoncé plus part proportionnelle des coûts de la consommation électrique
- Entièrement aménagé comme Bureau standard
- Plan d’étage avec bureaux fermés
- Convient pour 9 à 28 personnes
- Espace en excellent état
- Salle de conférence et salon communs
3e étage, bureau 375
| Surface | 124 m² |
| Durée | 3-6 Ans |
| Loyer | 196,18 € /m²/an |
| Type de bien | Bureau |
| Aménagement | Construction achevée |
| Disponible | Maintenant |
1st & 3rd Floor - Traditional Office
- Loyer annoncé plus part proportionnelle des coûts de la consommation électrique
- Entièrement aménagé comme Bureau standard
- Disposition open space
- Convient pour 4 à 11 personnes
- Espace en excellent état
- Salle de conférence et salon communs
Aperçu du bien
Champions DFW Commercial Realty a le plaisir de présenter Rochelle Park situé au 600 E John Carpenter Fwy, un parc de bureaux professionnel proposant plusieurs espaces disponibles à la location. Rochelle Park est un immeuble de bureaux de 3 étages riche en équipements situé à l'angle du boulevard Rochelle et de l'autoroute E John Carpenter à Irving, au Texas. Le bâtiment récemment rénové dispose d'un accès contrôlé, d'un espace de rangement, d'un espace de conférence et d'un salon communs disponibles pour tous les locataires, et plus encore. Les 1er et 3e étages disposent d'espaces de bureaux traditionnels et le 2e étage comprend des bureaux exécutifs. Cet emplacement idéal offre aux locataires un accès direct à l'autoroute 114 et un emplacement idéal pour rejoindre Mandalay Canal Walk, un quartier de restaurants et de boutiques de style européen du vieux monde proposant des boutiques haut de gamme et des restaurants pendant les pauses déjeuner ou après le travail.
- Accès contrôlé
- Installations de conférences
- Property Manager sur place
- Espace d’entreposage
- Chauffage central
- Panneau monumental
- Climatisation
Informations sur l’immeuble
Présenté par
Rochelle Park | 600 E John Carpenter Fwy
Hum, une erreur s’est produite lors de l’envoi de votre message. Veuillez réessayer.
Merci ! Votre message a été envoyé.












