Votre e-mail a été envoyé.
Bldg A 6 Journey 198–1 627 m² | À louer | Aliso Viejo, CA 92656



Certaines informations ont été traduites automatiquement.
Informations principales
- Espace libre d'entrepôt d'environ 16 à 26 pieds
- Accès immédiat à l'autoroute 73/133
- Chargement au niveau du sol (10 pi L x 10 pi H)
- À quelques minutes du centre-ville d'Aliso Viejo et d'autres commodités
Caractéristiques
Tous les espaces disponibles(3)
Afficher les loyers en
- Espace
- Surface
- Durée
- Loyer
- Type de bien
- Aménagement
- Disponible
Corner unit with three ground-level doors. Two-story office space with large breakroom and high clear warehouse. Agents—Please contact Travis Haining with any questions or touring instructions.
- Le loyer ne comprend pas les services publics, les frais immobiliers ou les services de l’immeuble.
- Espace d’angle
- Comprend 502 m² d’espace de bureau dédié
- Suite 100 includes 3 ground-level doors.
Single Story Unit, High Clear Warehouse, Two (2) GL Doors, Two (2) Private Offices, Large Open Office Area, Large Breakroom, Nice Glass Line and Natural Light.
- Le loyer ne comprend pas les services publics, les frais immobiliers ou les services de l’immeuble.
- 2 accès plain-pied
- Comprend 219 m² d’espace de bureau dédié
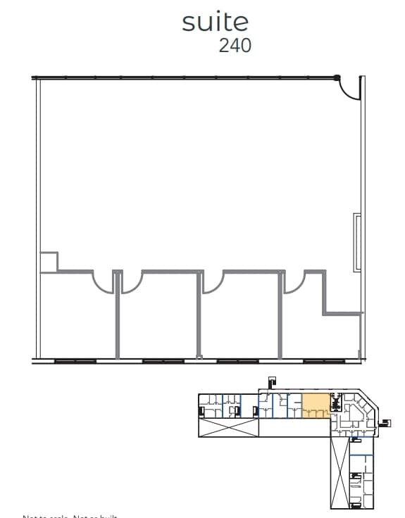
Second Floor Suite, 100% Office, Four (4) Private Offices, Large Open Office Area, Nice Glass Line and Natural Light Agents—Please contact Travis Haining with any questions or touring instructions.
- Le loyer ne comprend pas les services publics, les frais immobiliers ou les services de l’immeuble.
- Principalement open space
- 4 bureaux privés
- Lumière naturelle
- 4 Private Offices
- Partiellement aménagé comme Bureau standard
- Convient pour 6 à 18 personnes
- Climatisation centrale
- Appelez le courtier pour le montrer
| Espace | Surface | Durée | Loyer | Type de bien | Aménagement | Disponible |
| 1er étage – 100 | 964 m² | Négociable | 154,23 € /m²/an 12,85 € /m²/mois 148 718 € /an 12 393 € /mois | Local d’activités | Construction achevée | Maintenant |
| 1er étage – 350 | 465 m² | Négociable | 154,23 € /m²/an 12,85 € /m²/mois 71 758 € /an 5 980 € /mois | Industriel/Logistique | - | Maintenant |
| 2e étage, bureau 240 | 198 m² | 2-5 Ans | 154,23 € /m²/an 12,85 € /m²/mois 30 492 € /an 2 541 € /mois | Bureau | Construction partielle | 30 jours |
1er étage – 100
| Surface |
| 964 m² |
| Durée |
| Négociable |
| Loyer |
| 154,23 € /m²/an 12,85 € /m²/mois 148 718 € /an 12 393 € /mois |
| Type de bien |
| Local d’activités |
| Aménagement |
| Construction achevée |
| Disponible |
| Maintenant |
1er étage – 350
| Surface |
| 465 m² |
| Durée |
| Négociable |
| Loyer |
| 154,23 € /m²/an 12,85 € /m²/mois 71 758 € /an 5 980 € /mois |
| Type de bien |
| Industriel/Logistique |
| Aménagement |
| - |
| Disponible |
| Maintenant |
2e étage, bureau 240
| Surface |
| 198 m² |
| Durée |
| 2-5 Ans |
| Loyer |
| 154,23 € /m²/an 12,85 € /m²/mois 30 492 € /an 2 541 € /mois |
| Type de bien |
| Bureau |
| Aménagement |
| Construction partielle |
| Disponible |
| 30 jours |
1er étage – 100
| Surface | 964 m² |
| Durée | Négociable |
| Loyer | 154,23 € /m²/an |
| Type de bien | Local d’activités |
| Aménagement | Construction achevée |
| Disponible | Maintenant |
Corner unit with three ground-level doors. Two-story office space with large breakroom and high clear warehouse. Agents—Please contact Travis Haining with any questions or touring instructions.
- Le loyer ne comprend pas les services publics, les frais immobiliers ou les services de l’immeuble.
- Comprend 502 m² d’espace de bureau dédié
- Espace d’angle
- Suite 100 includes 3 ground-level doors.
1er étage – 350
| Surface | 465 m² |
| Durée | Négociable |
| Loyer | 154,23 € /m²/an |
| Type de bien | Industriel/Logistique |
| Aménagement | - |
| Disponible | Maintenant |
Single Story Unit, High Clear Warehouse, Two (2) GL Doors, Two (2) Private Offices, Large Open Office Area, Large Breakroom, Nice Glass Line and Natural Light.
- Le loyer ne comprend pas les services publics, les frais immobiliers ou les services de l’immeuble.
- Comprend 219 m² d’espace de bureau dédié
- 2 accès plain-pied
2e étage, bureau 240
| Surface | 198 m² |
| Durée | 2-5 Ans |
| Loyer | 154,23 € /m²/an |
| Type de bien | Bureau |
| Aménagement | Construction partielle |
| Disponible | 30 jours |
Second Floor Suite, 100% Office, Four (4) Private Offices, Large Open Office Area, Nice Glass Line and Natural Light Agents—Please contact Travis Haining with any questions or touring instructions.
- Le loyer ne comprend pas les services publics, les frais immobiliers ou les services de l’immeuble.
- Partiellement aménagé comme Bureau standard
- Principalement open space
- Convient pour 6 à 18 personnes
- 4 bureaux privés
- Climatisation centrale
- Lumière naturelle
- Appelez le courtier pour le montrer
- 4 Private Offices
Aperçu du bien
High Image Flex/Parc d'activités de R&D Rapport de stationnement de 3. 4:1 000 Entrepôt d'environ 16 à 26 pieds Dédouanement Chargement au niveau du sol (10 pi L x 10 pi H) Entièrement arrosée Accès immédiat à l'autoroute 73/133 À quelques minutes de la ville d'Aliso Viejo Centre et autres équipements Détenu et exploité par une famille
Informations sur l’immeuble
Présenté par
Bldg A | 6 Journey
Hum, une erreur s’est produite lors de l’envoi de votre message. Veuillez réessayer.
Merci ! Votre message a été envoyé.





