Votre e-mail a été envoyé.
Certaines informations ont été traduites automatiquement.
Informations principales
- 100-seat conference and training room available for use
- High-end vending
- Onsite fitness center
Tous les espaces disponibles(4)
Afficher les loyers en
- Espace
- Surface
- Durée
- Loyer
- Type de bien
- Aménagement
- Disponible
High ceilings. Direct access to parking lot through side door. Large conference room can serve as a training room. Large kitchen/break area. Prewired for IT.
- Il est possible que le loyer annoncé ne comprenne pas certains services publics, services d’immeuble et frais immobiliers.
- Principalement open space
- 1 salle de conférence
- Espace en excellent état
- Ventilation et chauffage centraux
- Salle d’impression/photocopie
- Espace d’angle
- Plafonds suspendus
- Entreposage sécurisé
- CVC disponible en-dehors des heures ouvrables
- Éclairage d’appoint
- Planchers en bois
- Accessible fauteuils roulants
- Entièrement aménagé comme Bureau de services professionnels
- 6 bureaux privés
- Plafonds finis: 3,66 mètres
- Plug & Play
- Aire de réception
- Entièrement moquetté
- Hauts plafonds
- Plafond apparent
- Éclairage encastré
- Éclairage d’urgence
- Open space
- Détecteur de fumée
- Il est possible que le loyer annoncé ne comprenne pas certains services publics, services d’immeuble et frais immobiliers.
- 16 bureaux privés
- Plafonds finis: 2,74 mètres
- Plug & Play
- Salle d’impression/photocopie
- Hauts plafonds
- Entreposage sécurisé
- Lumière naturelle
- Atrium
- Détecteur de fumée
- Entièrement aménagé comme Bureau de services professionnels
- 2 salles de conférence
- Espace en excellent état
- Ventilation et chauffage centraux
- Entièrement moquetté
- Plafonds suspendus
- Éclairage encastré
- CVC disponible en-dehors des heures ouvrables
- Service de restauration
- Accessible fauteuils roulants
Fully furnished with high end workstations including standing desks and chairs. 40 seat kitchen/break area. Collaboration rooms, telephone rooms. Floor can be accessible only by key card access if desired.
- Il est possible que le loyer annoncé ne comprenne pas certains services publics, services d’immeuble et frais immobiliers.
- Disposition open space
- 8 salles de conférence
- Plafonds finis: 2,74 mètres
- Plug & Play
- Aire de réception
- Salle d’impression/photocopie
- Entièrement moquetté
- Hauts plafonds
- Plafond apparent
- Éclairage encastré
- CVC disponible en-dehors des heures ouvrables
- Éclairage d’appoint
- Toilettes dans les parties communes
- Service de restauration
- Planchers en bois
- Accessible fauteuils roulants
- Entièrement aménagé comme Bureau de services professionnels
- 10 bureaux privés
- 160 postes de travail
- Espace en excellent état
- Ventilation et chauffage centraux
- Accès aux ascenseurs
- Toilettes privées
- Espace d’angle
- Plafonds suspendus
- Entreposage sécurisé
- Lumière naturelle
- Éclairage d’urgence
- Atrium
- Toilettes incluses dans le bail
- Open space
- Détecteur de fumée
Fully furnished with high quality workstations, lift desks, chairs. High end breakroom and kitchen with seating for approximately forty. Card key access only via elevator.
- Il est possible que le loyer annoncé ne comprenne pas certains services publics, services d’immeuble et frais immobiliers.
- Principalement open space
- 2 salles de conférence
- Plafonds finis: 2,74 mètres
- Plug & Play
- Aire de réception
- Entièrement moquetté
- Plafonds suspendus
- Entreposage sécurisé
- Lumière naturelle
- Éclairage d’urgence
- Atrium
- Toilettes incluses dans le bail
- Open space
- Détecteur de fumée
- Entièrement aménagé comme Bureau de services professionnels
- 12 bureaux privés
- 168 postes de travail
- Espace en excellent état
- Ventilation et chauffage centraux
- Accès aux ascenseurs
- Hauts plafonds
- Plafond apparent
- Éclairage encastré
- CVC disponible en-dehors des heures ouvrables
- Éclairage d’appoint
- Toilettes dans les parties communes
- Service de restauration
- Planchers en bois
- Accessible fauteuils roulants
| Espace | Surface | Durée | Loyer | Type de bien | Aménagement | Disponible |
| 1er étage, bureau 101 | 470 m² | Négociable | Sur demande Sur demande Sur demande Sur demande | Bureau | Construction achevée | Maintenant |
| 2e étage, bureau 260 | 342 m² | Négociable | Sur demande Sur demande Sur demande Sur demande | Bureau | Construction achevée | Maintenant |
| 4e étage, bureau 400 | 2 345 m² | Négociable | Sur demande Sur demande Sur demande Sur demande | Bureau | Construction achevée | Maintenant |
| 6e étage, bureau 600 | 2 335 m² | Négociable | Sur demande Sur demande Sur demande Sur demande | Bureau | Construction achevée | Maintenant |
1er étage, bureau 101
| Surface |
| 470 m² |
| Durée |
| Négociable |
| Loyer |
| Sur demande Sur demande Sur demande Sur demande |
| Type de bien |
| Bureau |
| Aménagement |
| Construction achevée |
| Disponible |
| Maintenant |
2e étage, bureau 260
| Surface |
| 342 m² |
| Durée |
| Négociable |
| Loyer |
| Sur demande Sur demande Sur demande Sur demande |
| Type de bien |
| Bureau |
| Aménagement |
| Construction achevée |
| Disponible |
| Maintenant |
4e étage, bureau 400
| Surface |
| 2 345 m² |
| Durée |
| Négociable |
| Loyer |
| Sur demande Sur demande Sur demande Sur demande |
| Type de bien |
| Bureau |
| Aménagement |
| Construction achevée |
| Disponible |
| Maintenant |
6e étage, bureau 600
| Surface |
| 2 335 m² |
| Durée |
| Négociable |
| Loyer |
| Sur demande Sur demande Sur demande Sur demande |
| Type de bien |
| Bureau |
| Aménagement |
| Construction achevée |
| Disponible |
| Maintenant |
1er étage, bureau 101
| Surface | 470 m² |
| Durée | Négociable |
| Loyer | Sur demande |
| Type de bien | Bureau |
| Aménagement | Construction achevée |
| Disponible | Maintenant |
High ceilings. Direct access to parking lot through side door. Large conference room can serve as a training room. Large kitchen/break area. Prewired for IT.
- Il est possible que le loyer annoncé ne comprenne pas certains services publics, services d’immeuble et frais immobiliers.
- Entièrement aménagé comme Bureau de services professionnels
- Principalement open space
- 6 bureaux privés
- 1 salle de conférence
- Plafonds finis: 3,66 mètres
- Espace en excellent état
- Plug & Play
- Ventilation et chauffage centraux
- Aire de réception
- Salle d’impression/photocopie
- Entièrement moquetté
- Espace d’angle
- Hauts plafonds
- Plafonds suspendus
- Plafond apparent
- Entreposage sécurisé
- Éclairage encastré
- CVC disponible en-dehors des heures ouvrables
- Éclairage d’urgence
- Éclairage d’appoint
- Open space
- Planchers en bois
- Détecteur de fumée
- Accessible fauteuils roulants
2e étage, bureau 260
| Surface | 342 m² |
| Durée | Négociable |
| Loyer | Sur demande |
| Type de bien | Bureau |
| Aménagement | Construction achevée |
| Disponible | Maintenant |
- Il est possible que le loyer annoncé ne comprenne pas certains services publics, services d’immeuble et frais immobiliers.
- Entièrement aménagé comme Bureau de services professionnels
- 16 bureaux privés
- 2 salles de conférence
- Plafonds finis: 2,74 mètres
- Espace en excellent état
- Plug & Play
- Ventilation et chauffage centraux
- Salle d’impression/photocopie
- Entièrement moquetté
- Hauts plafonds
- Plafonds suspendus
- Entreposage sécurisé
- Éclairage encastré
- Lumière naturelle
- CVC disponible en-dehors des heures ouvrables
- Atrium
- Service de restauration
- Détecteur de fumée
- Accessible fauteuils roulants
4e étage, bureau 400
| Surface | 2 345 m² |
| Durée | Négociable |
| Loyer | Sur demande |
| Type de bien | Bureau |
| Aménagement | Construction achevée |
| Disponible | Maintenant |
Fully furnished with high end workstations including standing desks and chairs. 40 seat kitchen/break area. Collaboration rooms, telephone rooms. Floor can be accessible only by key card access if desired.
- Il est possible que le loyer annoncé ne comprenne pas certains services publics, services d’immeuble et frais immobiliers.
- Entièrement aménagé comme Bureau de services professionnels
- Disposition open space
- 10 bureaux privés
- 8 salles de conférence
- 160 postes de travail
- Plafonds finis: 2,74 mètres
- Espace en excellent état
- Plug & Play
- Ventilation et chauffage centraux
- Aire de réception
- Accès aux ascenseurs
- Salle d’impression/photocopie
- Toilettes privées
- Entièrement moquetté
- Espace d’angle
- Hauts plafonds
- Plafonds suspendus
- Plafond apparent
- Entreposage sécurisé
- Éclairage encastré
- Lumière naturelle
- CVC disponible en-dehors des heures ouvrables
- Éclairage d’urgence
- Éclairage d’appoint
- Atrium
- Toilettes dans les parties communes
- Toilettes incluses dans le bail
- Service de restauration
- Open space
- Planchers en bois
- Détecteur de fumée
- Accessible fauteuils roulants
6e étage, bureau 600
| Surface | 2 335 m² |
| Durée | Négociable |
| Loyer | Sur demande |
| Type de bien | Bureau |
| Aménagement | Construction achevée |
| Disponible | Maintenant |
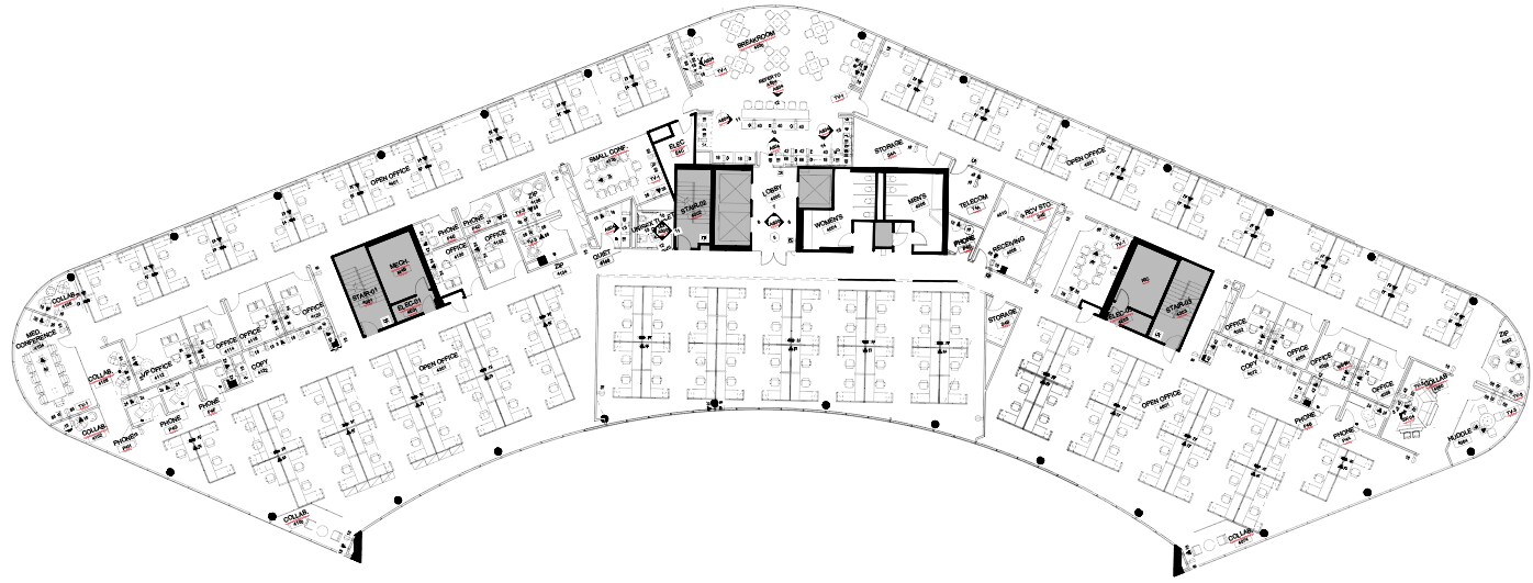
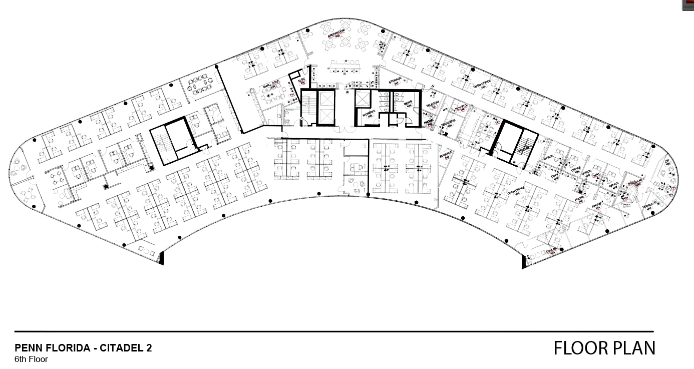
Fully furnished with high quality workstations, lift desks, chairs. High end breakroom and kitchen with seating for approximately forty. Card key access only via elevator.
- Il est possible que le loyer annoncé ne comprenne pas certains services publics, services d’immeuble et frais immobiliers.
- Entièrement aménagé comme Bureau de services professionnels
- Principalement open space
- 12 bureaux privés
- 2 salles de conférence
- 168 postes de travail
- Plafonds finis: 2,74 mètres
- Espace en excellent état
- Plug & Play
- Ventilation et chauffage centraux
- Aire de réception
- Accès aux ascenseurs
- Entièrement moquetté
- Hauts plafonds
- Plafonds suspendus
- Plafond apparent
- Entreposage sécurisé
- Éclairage encastré
- Lumière naturelle
- CVC disponible en-dehors des heures ouvrables
- Éclairage d’urgence
- Éclairage d’appoint
- Atrium
- Toilettes dans les parties communes
- Toilettes incluses dans le bail
- Service de restauration
- Open space
- Planchers en bois
- Détecteur de fumée
- Accessible fauteuils roulants
Aperçu du bien
Located one mile north of Orlando International Airport and within walking distance of over 4,000 hotel rooms and 30 plus restaurants.
- Centre de fitness
- Service de restauration
- Property Manager sur place
- Open space
- Plug & Play
- Climatisation
Informations sur l’immeuble
Occupants
- Étage
- Nom de l’occupant
- Secteur d’activité
- 1er
- Another Broken Egg
- Hébergement et restauration
- 2e
- Grant Thornton
- Services professionnels, scientifiques et techniques
- 3e
- Mass Virtual
- Information
- 2e
- Mint Software Systems
- Information
- 5e
- National Airlines
- Transport et entreposage
Présenté par
Citadel II | 5955 T G Lee Blvd
Hum, une erreur s’est produite lors de l’envoi de votre message. Veuillez réessayer.
Merci ! Votre message a été envoyé.








