Votre e-mail a été envoyé.
Atrium on Bay 595 Bay St Bureau | 150–54 928 m² | 4 étoiles | À louer | Toronto, ON M5G 1M6



Certaines informations ont été traduites automatiquement.
Informations principales
- 530 places de stationnement souterraines
- Direct PATH access to Dundas Station and Toronto Eaton Centre.
- Turnkey improvement allowances up to $126 PSF.
- One million square feet of integrated office and retail ecosystem.
- Flexible floor plates with contiguous options exceeding 90,000 SF.
- Rooftop patio and premium tenant amenities for work-life balance
Tous les espaces disponibles(22)
Afficher les loyers en
- Espace
- Surface
- Durée
- Loyer
- Type de bien
- Aménagement
- Disponible
Constructed in 1985, 595 Bay Street (14 floors), 40 Dundas Street W. (9 floors), and 20 Dundas Street W. (15 floors), is collectively 1,060,000 sq. ft Typical floor plate ranges from 25,000 to 90,000 square feet.
- Le loyer ne comprend pas les services publics, les frais immobiliers ou les services de l’immeuble.
- Disposition open space
- Peut être associé à un ou plusieurs espaces supplémentaires pour obtenir jusqu’à 12 278 m² d’espace adjacent.
- Hauts plafonds
- La plaque de sol varie généralement de 25 000 à 90 000 s.
- Partiellement aménagé comme Bureau standard
- Plafonds finis: 3,58 mètres
- Ventilation et chauffage centraux
- Atrium est certifié Wired Gold
595 Bay. Double glass door entrance off elevators. Open concept layout with modern bench style seating for 137 people. Features 2 boardrooms, 6 office/meeting rooms on glass overlooking atrium, a kitchenette with seating area, print/copy rooms, and LAN room. Contiguous with suites 403, 421B, and 502 for a total of 78,961 sq. ft. VT: https://cbre.qumucloud.com/view/595-Bay-Atrium-Suite-300B#/
- Le loyer ne comprend pas les services publics, les frais immobiliers ou les services de l’immeuble.
- Disposition open space
- Peut être associé à un ou plusieurs espaces supplémentaires pour obtenir jusqu’à 12 278 m² d’espace adjacent.
- Hauts plafonds
- La plaque de sol varie généralement de 25 000 à 90 000 s.
- Partiellement aménagé comme Bureau standard
- Plafonds finis: 3,58 mètres
- Ventilation et chauffage centraux
- Atrium est certifié Wired Gold
- Le loyer ne comprend pas les services publics, les frais immobiliers ou les services de l’immeuble.
- Principalement open space
- Entièrement aménagé comme Bureau standard
- Le loyer ne comprend pas les services publics, les frais immobiliers ou les services de l’immeuble.
- Disposition open space
- Entièrement aménagé comme Bureau standard
- Peut être associé à un ou plusieurs espaces supplémentaires pour obtenir jusqu’à 12 278 m² d’espace adjacent.
- Le loyer ne comprend pas les services publics, les frais immobiliers ou les services de l’immeuble.
- Disposition open space
- Entièrement aménagé comme Bureau standard
3D Video Tour: https://cbre.qumucloud.com/view/595-Bay-Atrium-Suite-403#/
- Le loyer ne comprend pas les services publics, les frais immobiliers ou les services de l’immeuble.
- Disposition open space
- Entièrement aménagé comme Bureau standard
- 3 salles de conférence
Constructed in 1985, 595 Bay Street (14 floors), 40 Dundas Street W. (9 floors), and 20 Dundas Street W. (15 floors), is collectively 1,060,000 sq. ft Typical floor plate ranges from 25,000 to 90,000 square feet.
- Le loyer ne comprend pas les services publics, les frais immobiliers ou les services de l’immeuble.
- Disposition open space
- Peut être associé à un ou plusieurs espaces supplémentaires pour obtenir jusqu’à 22 442 m² d’espace adjacent.
- Hauts plafonds
- La plaque de sol varie généralement de 25 000 à 90 000 s.
- Partiellement aménagé comme Bureau standard
- Plafonds finis: 3,58 mètres
- Ventilation et chauffage centraux
- Atrium est certifié Wired Gold
- Le loyer ne comprend pas les services publics, les frais immobiliers ou les services de l’immeuble.
- Principalement open space
- Entièrement aménagé comme Bureau standard
- Peut être associé à un ou plusieurs espaces supplémentaires pour obtenir jusqu’à 22 442 m² d’espace adjacent.
- Le loyer ne comprend pas les services publics, les frais immobiliers ou les services de l’immeuble.
- Disposition open space
- Entièrement aménagé comme Bureau standard
- Peut être associé à un ou plusieurs espaces supplémentaires pour obtenir jusqu’à 22 442 m² d’espace adjacent.
- Le loyer ne comprend pas les services publics, les frais immobiliers ou les services de l’immeuble.
- Disposition open space
- Entièrement aménagé comme Bureau standard
- Peut être associé à un ou plusieurs espaces supplémentaires pour obtenir jusqu’à 22 442 m² d’espace adjacent.
Constructed in 1985, 595 Bay Street (14 floors), 40 Dundas Street W. (9 floors), and 20 Dundas Street W. (15 floors), is collectively 1,060,000 sq. ft Typical floor plate ranges from 25,000 to 90,000 square feet.
- Le loyer ne comprend pas les services publics, les frais immobiliers ou les services de l’immeuble.
- Disposition open space
- Ventilation et chauffage centraux
- Atrium est certifié Wired Gold
- Partiellement aménagé comme Bureau standard
- Plafonds finis: 3,58 mètres
- Hauts plafonds
- La plaque de sol varie généralement de 25 000 à 90 000 s.
Constructed in 1985, 595 Bay Street (14 floors), 40 Dundas Street W. (9 floors), and 20 Dundas Street W. (15 floors), is collectively 1,060,000 sq. ft Typical floor plate ranges from 25,000 to 90,000 square feet.
- Le loyer ne comprend pas les services publics, les frais immobiliers ou les services de l’immeuble.
- Disposition open space
- Peut être associé à un ou plusieurs espaces supplémentaires pour obtenir jusqu’à 7 086 m² d’espace adjacent.
- Hauts plafonds
- Typical floor plate ranges from 25,000 to 90,000 s
- Partiellement aménagé comme Bureau standard
- Plafonds finis: 3,58 mètres
- Ventilation et chauffage centraux
- Atrium is Wired Certified Gold
- Le loyer ne comprend pas les services publics, les frais immobiliers ou les services de l’immeuble.
- Disposition open space
- Entièrement aménagé comme Bureau standard
- Peut être associé à un ou plusieurs espaces supplémentaires pour obtenir jusqu’à 7 086 m² d’espace adjacent.
- Le loyer ne comprend pas les services publics, les frais immobiliers ou les services de l’immeuble.
- Disposition open space
- Entièrement aménagé comme Bureau standard
- Peut être associé à un ou plusieurs espaces supplémentaires pour obtenir jusqu’à 7 086 m² d’espace adjacent.
- Le loyer ne comprend pas les services publics, les frais immobiliers ou les services de l’immeuble.
- Principalement open space
- Entièrement aménagé comme Bureau standard
- Peut être associé à un ou plusieurs espaces supplémentaires pour obtenir jusqu’à 7 086 m² d’espace adjacent.
- Le loyer ne comprend pas les services publics, les frais immobiliers ou les services de l’immeuble.
- Principalement open space
- Entièrement aménagé comme Bureau standard
Constructed in 1985, 595 Bay Street (14 floors), 40 Dundas Street W. (9 floors), and 20 Dundas Street W. (15 floors), is collectively 1,060,000 sq. ft Typical floor plate ranges from 25,000 to 90,000 square feet.
- Le loyer ne comprend pas les services publics, les frais immobiliers ou les services de l’immeuble.
- Disposition open space
- Ventilation et chauffage centraux
- Atrium est certifié Wired Gold
- Partiellement aménagé comme Bureau standard
- Plafonds finis: 3,58 mètres
- Hauts plafonds
- La plaque de sol varie généralement de 25 000 à 90 000 s.
595 Bay. Reception area with double glass door entrance off elevators. Features 5 boardrooms for 10 people each, and a large training room with 5 round tables directly off reception. The remainder of the suite is predominately open concept (168 seats), with a few offices/meeting rooms, a kitchenette with seating area, LAN room, and a print/copy room. East side of the suite overlooks the rooftop garden. All furniture including data cabling available at no cost. VT: https://cbre.qumucloud.com/view/595-Bay-Atrium-Suite-1100#/
- Le loyer ne comprend pas les services publics, les frais immobiliers ou les services de l’immeuble.
- Disposition open space
- Ventilation et chauffage centraux
- Atrium est certifié Wired Gold
- Partiellement aménagé comme Bureau standard
- Plafonds finis: 3,58 mètres
- Hauts plafonds
- La plaque de sol varie généralement de 25 000 à 90 000 s.
Constructed in 1985, 595 Bay Street (14 floors), 40 Dundas Street W. (9 floors), and 20 Dundas Street W. (15 floors), is collectively 1,060,000 sq. ft Typical floor plate ranges from 25,000 to 90,000 square feet.
- Le loyer ne comprend pas les services publics, les frais immobiliers ou les services de l’immeuble.
- Disposition open space
- Ventilation et chauffage centraux
- Atrium est certifié Wired Gold
- Partiellement aménagé comme Bureau standard
- Plafonds finis: 3,58 mètres
- Hauts plafonds
- La plaque de sol varie généralement de 25 000 à 90 000 s.
- Le loyer ne comprend pas les services publics, les frais immobiliers ou les services de l’immeuble.
- Disposition open space
- Entièrement aménagé comme Bureau standard
595 Bay. Full floor opportunity with reception and large café off elevators. Features 3 boardrooms with removeable partitions, 2 large training/team rooms, and a few additional offices/meeting rooms. Also includes workstations for 204 people, 2nd kitchenette with seating, multiple print/copy rooms, and soft seating throughout. North East corner views of rooftop garden. All furniture including data cabling available at no cost. VT: https://cbre.qumucloud.com/view/595-Bay-Atrium-Suite-1400#/
- Le loyer ne comprend pas les services publics, les frais immobiliers ou les services de l’immeuble.
- Disposition open space
- Ventilation et chauffage centraux
- Atrium est certifié Wired Gold
- Partiellement aménagé comme Bureau standard
- Plafonds finis: 3,58 mètres
- Hauts plafonds
- La plaque de sol varie généralement de 25 000 à 90 000 s.
Constructed in 1985, 595 Bay Street (14 floors), 40 Dundas Street W. (9 floors), and 20 Dundas Street W. (15 floors), is collectively 1,060,000 sq. ft Typical floor plate ranges from 25,000 to 90,000 square feet.
- Le loyer ne comprend pas les services publics, les frais immobiliers ou les services de l’immeuble.
- Disposition open space
- Ventilation et chauffage centraux
- Atrium est certifié Wired Gold
- Partiellement aménagé comme Bureau standard
- Plafonds finis: 3,58 mètres
- Hauts plafonds
- La plaque de sol varie généralement de 25 000 à 90 000 s.
| Espace | Surface | Durée | Loyer | Type de bien | Aménagement | Disponible |
| 2e étage, bureau 200 | 6 311 m² | 1-10 Ans | Sur demande Sur demande Sur demande Sur demande | Bureau | Construction partielle | Maintenant |
| 3e étage, bureau 300B | 1 589 m² | 1-10 Ans | Sur demande Sur demande Sur demande Sur demande | Bureau | Construction partielle | Maintenant |
| 3e étage, bureau 323 | 227 m² | 1-10 Ans | Sur demande Sur demande Sur demande Sur demande | Bureau | Construction achevée | Maintenant |
| 3e étage, bureau 331 | 4 379 m² | Négociable | Sur demande Sur demande Sur demande Sur demande | Bureau | Construction achevée | Maintenant |
| 4e étage, bureau 401 | 456 m² | Négociable | Sur demande Sur demande Sur demande Sur demande | Bureau | Construction achevée | Maintenant |
| 4e étage, bureau 403 | 1 154 m² | Négociable | Sur demande Sur demande Sur demande Sur demande | Bureau | Construction achevée | En attente |
| 5e étage, bureau 500 | 6 345 m² | 1-10 Ans | Sur demande Sur demande Sur demande Sur demande | Bureau | Construction partielle | Maintenant |
| 5e étage, bureau 530 | 2 079 m² | 1-10 Ans | Sur demande Sur demande Sur demande Sur demande | Bureau | Construction achevée | En attente |
| 6e étage, bureau 600 | 8 477 m² | Négociable | Sur demande Sur demande Sur demande Sur demande | Bureau | Construction achevée | 01/11/2027 |
| 7e étage, bureau 700 | 5 542 m² | Négociable | Sur demande Sur demande Sur demande Sur demande | Bureau | Construction achevée | En attente |
| 8e étage, bureau 804 | 1 023 m² | 1-10 Ans | Sur demande Sur demande Sur demande Sur demande | Bureau | Construction partielle | Maintenant |
| 9e étage, bureau 900 | 5 507 m² | 1-10 Ans | Sur demande Sur demande Sur demande Sur demande | Bureau | Construction partielle | Maintenant |
| 9e étage, bureau 900A | 706 m² | Négociable | Sur demande Sur demande Sur demande Sur demande | Bureau | Construction achevée | Maintenant |
| 9e étage, bureau 900B | 430 m² | Négociable | Sur demande Sur demande Sur demande Sur demande | Bureau | Construction achevée | Maintenant |
| 9e étage, bureau 910 | 444 m² | 1-10 Ans | Sur demande Sur demande Sur demande Sur demande | Bureau | Construction achevée | Maintenant |
| 10e étage, bureau 1030 | 932 m² | 1-10 Ans | Sur demande Sur demande Sur demande Sur demande | Bureau | Construction achevée | En attente |
| 10e étage, bureau 1036 | 475 m² | 1-10 Ans | Sur demande Sur demande Sur demande Sur demande | Bureau | Construction partielle | Maintenant |
| 11e étage, bureau 1100 | 2 148 m² | 1-10 Ans | Sur demande Sur demande Sur demande Sur demande | Bureau | Construction partielle | Maintenant |
| 12e étage, bureau 1200 | 1 060 m² | 1-10 Ans | Sur demande Sur demande Sur demande Sur demande | Bureau | Construction partielle | Maintenant |
| 12e étage, bureau 1204 | 150 m² | Négociable | Sur demande Sur demande Sur demande Sur demande | Bureau | Construction achevée | Maintenant |
| 14e étage, bureau 1400 | 2 947 m² | 1-10 Ans | Sur demande Sur demande Sur demande Sur demande | Bureau | Construction partielle | Maintenant |
| 14e étage, bureau 1401 | 2 550 m² | 1-10 Ans | Sur demande Sur demande Sur demande Sur demande | Bureau | Construction partielle | Maintenant |
2e étage, bureau 200
| Surface |
| 6 311 m² |
| Durée |
| 1-10 Ans |
| Loyer |
| Sur demande Sur demande Sur demande Sur demande |
| Type de bien |
| Bureau |
| Aménagement |
| Construction partielle |
| Disponible |
| Maintenant |
3e étage, bureau 300B
| Surface |
| 1 589 m² |
| Durée |
| 1-10 Ans |
| Loyer |
| Sur demande Sur demande Sur demande Sur demande |
| Type de bien |
| Bureau |
| Aménagement |
| Construction partielle |
| Disponible |
| Maintenant |
3e étage, bureau 323
| Surface |
| 227 m² |
| Durée |
| 1-10 Ans |
| Loyer |
| Sur demande Sur demande Sur demande Sur demande |
| Type de bien |
| Bureau |
| Aménagement |
| Construction achevée |
| Disponible |
| Maintenant |
3e étage, bureau 331
| Surface |
| 4 379 m² |
| Durée |
| Négociable |
| Loyer |
| Sur demande Sur demande Sur demande Sur demande |
| Type de bien |
| Bureau |
| Aménagement |
| Construction achevée |
| Disponible |
| Maintenant |
4e étage, bureau 401
| Surface |
| 456 m² |
| Durée |
| Négociable |
| Loyer |
| Sur demande Sur demande Sur demande Sur demande |
| Type de bien |
| Bureau |
| Aménagement |
| Construction achevée |
| Disponible |
| Maintenant |
4e étage, bureau 403
| Surface |
| 1 154 m² |
| Durée |
| Négociable |
| Loyer |
| Sur demande Sur demande Sur demande Sur demande |
| Type de bien |
| Bureau |
| Aménagement |
| Construction achevée |
| Disponible |
| En attente |
5e étage, bureau 500
| Surface |
| 6 345 m² |
| Durée |
| 1-10 Ans |
| Loyer |
| Sur demande Sur demande Sur demande Sur demande |
| Type de bien |
| Bureau |
| Aménagement |
| Construction partielle |
| Disponible |
| Maintenant |
5e étage, bureau 530
| Surface |
| 2 079 m² |
| Durée |
| 1-10 Ans |
| Loyer |
| Sur demande Sur demande Sur demande Sur demande |
| Type de bien |
| Bureau |
| Aménagement |
| Construction achevée |
| Disponible |
| En attente |
6e étage, bureau 600
| Surface |
| 8 477 m² |
| Durée |
| Négociable |
| Loyer |
| Sur demande Sur demande Sur demande Sur demande |
| Type de bien |
| Bureau |
| Aménagement |
| Construction achevée |
| Disponible |
| 01/11/2027 |
7e étage, bureau 700
| Surface |
| 5 542 m² |
| Durée |
| Négociable |
| Loyer |
| Sur demande Sur demande Sur demande Sur demande |
| Type de bien |
| Bureau |
| Aménagement |
| Construction achevée |
| Disponible |
| En attente |
8e étage, bureau 804
| Surface |
| 1 023 m² |
| Durée |
| 1-10 Ans |
| Loyer |
| Sur demande Sur demande Sur demande Sur demande |
| Type de bien |
| Bureau |
| Aménagement |
| Construction partielle |
| Disponible |
| Maintenant |
9e étage, bureau 900
| Surface |
| 5 507 m² |
| Durée |
| 1-10 Ans |
| Loyer |
| Sur demande Sur demande Sur demande Sur demande |
| Type de bien |
| Bureau |
| Aménagement |
| Construction partielle |
| Disponible |
| Maintenant |
9e étage, bureau 900A
| Surface |
| 706 m² |
| Durée |
| Négociable |
| Loyer |
| Sur demande Sur demande Sur demande Sur demande |
| Type de bien |
| Bureau |
| Aménagement |
| Construction achevée |
| Disponible |
| Maintenant |
9e étage, bureau 900B
| Surface |
| 430 m² |
| Durée |
| Négociable |
| Loyer |
| Sur demande Sur demande Sur demande Sur demande |
| Type de bien |
| Bureau |
| Aménagement |
| Construction achevée |
| Disponible |
| Maintenant |
9e étage, bureau 910
| Surface |
| 444 m² |
| Durée |
| 1-10 Ans |
| Loyer |
| Sur demande Sur demande Sur demande Sur demande |
| Type de bien |
| Bureau |
| Aménagement |
| Construction achevée |
| Disponible |
| Maintenant |
10e étage, bureau 1030
| Surface |
| 932 m² |
| Durée |
| 1-10 Ans |
| Loyer |
| Sur demande Sur demande Sur demande Sur demande |
| Type de bien |
| Bureau |
| Aménagement |
| Construction achevée |
| Disponible |
| En attente |
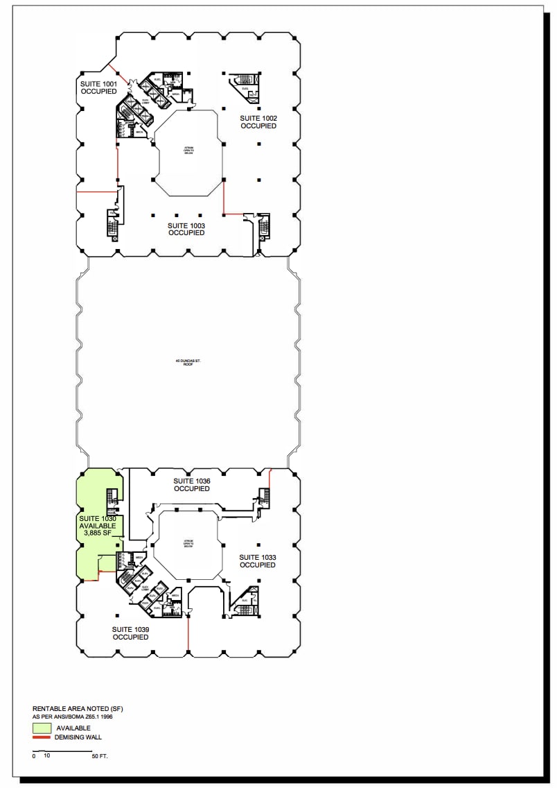
10e étage, bureau 1036
| Surface |
| 475 m² |
| Durée |
| 1-10 Ans |
| Loyer |
| Sur demande Sur demande Sur demande Sur demande |
| Type de bien |
| Bureau |
| Aménagement |
| Construction partielle |
| Disponible |
| Maintenant |
11e étage, bureau 1100
| Surface |
| 2 148 m² |
| Durée |
| 1-10 Ans |
| Loyer |
| Sur demande Sur demande Sur demande Sur demande |
| Type de bien |
| Bureau |
| Aménagement |
| Construction partielle |
| Disponible |
| Maintenant |
12e étage, bureau 1200
| Surface |
| 1 060 m² |
| Durée |
| 1-10 Ans |
| Loyer |
| Sur demande Sur demande Sur demande Sur demande |
| Type de bien |
| Bureau |
| Aménagement |
| Construction partielle |
| Disponible |
| Maintenant |
12e étage, bureau 1204
| Surface |
| 150 m² |
| Durée |
| Négociable |
| Loyer |
| Sur demande Sur demande Sur demande Sur demande |
| Type de bien |
| Bureau |
| Aménagement |
| Construction achevée |
| Disponible |
| Maintenant |
14e étage, bureau 1400
| Surface |
| 2 947 m² |
| Durée |
| 1-10 Ans |
| Loyer |
| Sur demande Sur demande Sur demande Sur demande |
| Type de bien |
| Bureau |
| Aménagement |
| Construction partielle |
| Disponible |
| Maintenant |
14e étage, bureau 1401
| Surface |
| 2 550 m² |
| Durée |
| 1-10 Ans |
| Loyer |
| Sur demande Sur demande Sur demande Sur demande |
| Type de bien |
| Bureau |
| Aménagement |
| Construction partielle |
| Disponible |
| Maintenant |
2e étage, bureau 200
| Surface | 6 311 m² |
| Durée | 1-10 Ans |
| Loyer | Sur demande |
| Type de bien | Bureau |
| Aménagement | Construction partielle |
| Disponible | Maintenant |
Constructed in 1985, 595 Bay Street (14 floors), 40 Dundas Street W. (9 floors), and 20 Dundas Street W. (15 floors), is collectively 1,060,000 sq. ft Typical floor plate ranges from 25,000 to 90,000 square feet.
- Le loyer ne comprend pas les services publics, les frais immobiliers ou les services de l’immeuble.
- Partiellement aménagé comme Bureau standard
- Disposition open space
- Plafonds finis: 3,58 mètres
- Peut être associé à un ou plusieurs espaces supplémentaires pour obtenir jusqu’à 12 278 m² d’espace adjacent.
- Ventilation et chauffage centraux
- Hauts plafonds
- Atrium est certifié Wired Gold
- La plaque de sol varie généralement de 25 000 à 90 000 s.
3e étage, bureau 300B
| Surface | 1 589 m² |
| Durée | 1-10 Ans |
| Loyer | Sur demande |
| Type de bien | Bureau |
| Aménagement | Construction partielle |
| Disponible | Maintenant |
595 Bay. Double glass door entrance off elevators. Open concept layout with modern bench style seating for 137 people. Features 2 boardrooms, 6 office/meeting rooms on glass overlooking atrium, a kitchenette with seating area, print/copy rooms, and LAN room. Contiguous with suites 403, 421B, and 502 for a total of 78,961 sq. ft. VT: https://cbre.qumucloud.com/view/595-Bay-Atrium-Suite-300B#/
- Le loyer ne comprend pas les services publics, les frais immobiliers ou les services de l’immeuble.
- Partiellement aménagé comme Bureau standard
- Disposition open space
- Plafonds finis: 3,58 mètres
- Peut être associé à un ou plusieurs espaces supplémentaires pour obtenir jusqu’à 12 278 m² d’espace adjacent.
- Ventilation et chauffage centraux
- Hauts plafonds
- Atrium est certifié Wired Gold
- La plaque de sol varie généralement de 25 000 à 90 000 s.
3e étage, bureau 323
| Surface | 227 m² |
| Durée | 1-10 Ans |
| Loyer | Sur demande |
| Type de bien | Bureau |
| Aménagement | Construction achevée |
| Disponible | Maintenant |
- Le loyer ne comprend pas les services publics, les frais immobiliers ou les services de l’immeuble.
- Entièrement aménagé comme Bureau standard
- Principalement open space
3e étage, bureau 331
| Surface | 4 379 m² |
| Durée | Négociable |
| Loyer | Sur demande |
| Type de bien | Bureau |
| Aménagement | Construction achevée |
| Disponible | Maintenant |
- Le loyer ne comprend pas les services publics, les frais immobiliers ou les services de l’immeuble.
- Entièrement aménagé comme Bureau standard
- Disposition open space
- Peut être associé à un ou plusieurs espaces supplémentaires pour obtenir jusqu’à 12 278 m² d’espace adjacent.
4e étage, bureau 401
| Surface | 456 m² |
| Durée | Négociable |
| Loyer | Sur demande |
| Type de bien | Bureau |
| Aménagement | Construction achevée |
| Disponible | Maintenant |
- Le loyer ne comprend pas les services publics, les frais immobiliers ou les services de l’immeuble.
- Entièrement aménagé comme Bureau standard
- Disposition open space
4e étage, bureau 403
| Surface | 1 154 m² |
| Durée | Négociable |
| Loyer | Sur demande |
| Type de bien | Bureau |
| Aménagement | Construction achevée |
| Disponible | En attente |
3D Video Tour: https://cbre.qumucloud.com/view/595-Bay-Atrium-Suite-403#/
- Le loyer ne comprend pas les services publics, les frais immobiliers ou les services de l’immeuble.
- Entièrement aménagé comme Bureau standard
- Disposition open space
- 3 salles de conférence
5e étage, bureau 500
| Surface | 6 345 m² |
| Durée | 1-10 Ans |
| Loyer | Sur demande |
| Type de bien | Bureau |
| Aménagement | Construction partielle |
| Disponible | Maintenant |
Constructed in 1985, 595 Bay Street (14 floors), 40 Dundas Street W. (9 floors), and 20 Dundas Street W. (15 floors), is collectively 1,060,000 sq. ft Typical floor plate ranges from 25,000 to 90,000 square feet.
- Le loyer ne comprend pas les services publics, les frais immobiliers ou les services de l’immeuble.
- Partiellement aménagé comme Bureau standard
- Disposition open space
- Plafonds finis: 3,58 mètres
- Peut être associé à un ou plusieurs espaces supplémentaires pour obtenir jusqu’à 22 442 m² d’espace adjacent.
- Ventilation et chauffage centraux
- Hauts plafonds
- Atrium est certifié Wired Gold
- La plaque de sol varie généralement de 25 000 à 90 000 s.
5e étage, bureau 530
| Surface | 2 079 m² |
| Durée | 1-10 Ans |
| Loyer | Sur demande |
| Type de bien | Bureau |
| Aménagement | Construction achevée |
| Disponible | En attente |
- Le loyer ne comprend pas les services publics, les frais immobiliers ou les services de l’immeuble.
- Entièrement aménagé comme Bureau standard
- Principalement open space
- Peut être associé à un ou plusieurs espaces supplémentaires pour obtenir jusqu’à 22 442 m² d’espace adjacent.
6e étage, bureau 600
| Surface | 8 477 m² |
| Durée | Négociable |
| Loyer | Sur demande |
| Type de bien | Bureau |
| Aménagement | Construction achevée |
| Disponible | 01/11/2027 |
- Le loyer ne comprend pas les services publics, les frais immobiliers ou les services de l’immeuble.
- Entièrement aménagé comme Bureau standard
- Disposition open space
- Peut être associé à un ou plusieurs espaces supplémentaires pour obtenir jusqu’à 22 442 m² d’espace adjacent.
7e étage, bureau 700
| Surface | 5 542 m² |
| Durée | Négociable |
| Loyer | Sur demande |
| Type de bien | Bureau |
| Aménagement | Construction achevée |
| Disponible | En attente |
- Le loyer ne comprend pas les services publics, les frais immobiliers ou les services de l’immeuble.
- Entièrement aménagé comme Bureau standard
- Disposition open space
- Peut être associé à un ou plusieurs espaces supplémentaires pour obtenir jusqu’à 22 442 m² d’espace adjacent.
8e étage, bureau 804
| Surface | 1 023 m² |
| Durée | 1-10 Ans |
| Loyer | Sur demande |
| Type de bien | Bureau |
| Aménagement | Construction partielle |
| Disponible | Maintenant |
Constructed in 1985, 595 Bay Street (14 floors), 40 Dundas Street W. (9 floors), and 20 Dundas Street W. (15 floors), is collectively 1,060,000 sq. ft Typical floor plate ranges from 25,000 to 90,000 square feet.
- Le loyer ne comprend pas les services publics, les frais immobiliers ou les services de l’immeuble.
- Partiellement aménagé comme Bureau standard
- Disposition open space
- Plafonds finis: 3,58 mètres
- Ventilation et chauffage centraux
- Hauts plafonds
- Atrium est certifié Wired Gold
- La plaque de sol varie généralement de 25 000 à 90 000 s.
9e étage, bureau 900
| Surface | 5 507 m² |
| Durée | 1-10 Ans |
| Loyer | Sur demande |
| Type de bien | Bureau |
| Aménagement | Construction partielle |
| Disponible | Maintenant |
Constructed in 1985, 595 Bay Street (14 floors), 40 Dundas Street W. (9 floors), and 20 Dundas Street W. (15 floors), is collectively 1,060,000 sq. ft Typical floor plate ranges from 25,000 to 90,000 square feet.
- Le loyer ne comprend pas les services publics, les frais immobiliers ou les services de l’immeuble.
- Partiellement aménagé comme Bureau standard
- Disposition open space
- Plafonds finis: 3,58 mètres
- Peut être associé à un ou plusieurs espaces supplémentaires pour obtenir jusqu’à 7 086 m² d’espace adjacent.
- Ventilation et chauffage centraux
- Hauts plafonds
- Atrium is Wired Certified Gold
- Typical floor plate ranges from 25,000 to 90,000 s
9e étage, bureau 900A
| Surface | 706 m² |
| Durée | Négociable |
| Loyer | Sur demande |
| Type de bien | Bureau |
| Aménagement | Construction achevée |
| Disponible | Maintenant |
- Le loyer ne comprend pas les services publics, les frais immobiliers ou les services de l’immeuble.
- Entièrement aménagé comme Bureau standard
- Disposition open space
- Peut être associé à un ou plusieurs espaces supplémentaires pour obtenir jusqu’à 7 086 m² d’espace adjacent.
9e étage, bureau 900B
| Surface | 430 m² |
| Durée | Négociable |
| Loyer | Sur demande |
| Type de bien | Bureau |
| Aménagement | Construction achevée |
| Disponible | Maintenant |
- Le loyer ne comprend pas les services publics, les frais immobiliers ou les services de l’immeuble.
- Entièrement aménagé comme Bureau standard
- Disposition open space
- Peut être associé à un ou plusieurs espaces supplémentaires pour obtenir jusqu’à 7 086 m² d’espace adjacent.
9e étage, bureau 910
| Surface | 444 m² |
| Durée | 1-10 Ans |
| Loyer | Sur demande |
| Type de bien | Bureau |
| Aménagement | Construction achevée |
| Disponible | Maintenant |
- Le loyer ne comprend pas les services publics, les frais immobiliers ou les services de l’immeuble.
- Entièrement aménagé comme Bureau standard
- Principalement open space
- Peut être associé à un ou plusieurs espaces supplémentaires pour obtenir jusqu’à 7 086 m² d’espace adjacent.
10e étage, bureau 1030
| Surface | 932 m² |
| Durée | 1-10 Ans |
| Loyer | Sur demande |
| Type de bien | Bureau |
| Aménagement | Construction achevée |
| Disponible | En attente |
- Le loyer ne comprend pas les services publics, les frais immobiliers ou les services de l’immeuble.
- Entièrement aménagé comme Bureau standard
- Principalement open space
10e étage, bureau 1036
| Surface | 475 m² |
| Durée | 1-10 Ans |
| Loyer | Sur demande |
| Type de bien | Bureau |
| Aménagement | Construction partielle |
| Disponible | Maintenant |
Constructed in 1985, 595 Bay Street (14 floors), 40 Dundas Street W. (9 floors), and 20 Dundas Street W. (15 floors), is collectively 1,060,000 sq. ft Typical floor plate ranges from 25,000 to 90,000 square feet.
- Le loyer ne comprend pas les services publics, les frais immobiliers ou les services de l’immeuble.
- Partiellement aménagé comme Bureau standard
- Disposition open space
- Plafonds finis: 3,58 mètres
- Ventilation et chauffage centraux
- Hauts plafonds
- Atrium est certifié Wired Gold
- La plaque de sol varie généralement de 25 000 à 90 000 s.
11e étage, bureau 1100
| Surface | 2 148 m² |
| Durée | 1-10 Ans |
| Loyer | Sur demande |
| Type de bien | Bureau |
| Aménagement | Construction partielle |
| Disponible | Maintenant |
595 Bay. Reception area with double glass door entrance off elevators. Features 5 boardrooms for 10 people each, and a large training room with 5 round tables directly off reception. The remainder of the suite is predominately open concept (168 seats), with a few offices/meeting rooms, a kitchenette with seating area, LAN room, and a print/copy room. East side of the suite overlooks the rooftop garden. All furniture including data cabling available at no cost. VT: https://cbre.qumucloud.com/view/595-Bay-Atrium-Suite-1100#/
- Le loyer ne comprend pas les services publics, les frais immobiliers ou les services de l’immeuble.
- Partiellement aménagé comme Bureau standard
- Disposition open space
- Plafonds finis: 3,58 mètres
- Ventilation et chauffage centraux
- Hauts plafonds
- Atrium est certifié Wired Gold
- La plaque de sol varie généralement de 25 000 à 90 000 s.
12e étage, bureau 1200
| Surface | 1 060 m² |
| Durée | 1-10 Ans |
| Loyer | Sur demande |
| Type de bien | Bureau |
| Aménagement | Construction partielle |
| Disponible | Maintenant |
Constructed in 1985, 595 Bay Street (14 floors), 40 Dundas Street W. (9 floors), and 20 Dundas Street W. (15 floors), is collectively 1,060,000 sq. ft Typical floor plate ranges from 25,000 to 90,000 square feet.
- Le loyer ne comprend pas les services publics, les frais immobiliers ou les services de l’immeuble.
- Partiellement aménagé comme Bureau standard
- Disposition open space
- Plafonds finis: 3,58 mètres
- Ventilation et chauffage centraux
- Hauts plafonds
- Atrium est certifié Wired Gold
- La plaque de sol varie généralement de 25 000 à 90 000 s.
12e étage, bureau 1204
| Surface | 150 m² |
| Durée | Négociable |
| Loyer | Sur demande |
| Type de bien | Bureau |
| Aménagement | Construction achevée |
| Disponible | Maintenant |
- Le loyer ne comprend pas les services publics, les frais immobiliers ou les services de l’immeuble.
- Entièrement aménagé comme Bureau standard
- Disposition open space
14e étage, bureau 1400
| Surface | 2 947 m² |
| Durée | 1-10 Ans |
| Loyer | Sur demande |
| Type de bien | Bureau |
| Aménagement | Construction partielle |
| Disponible | Maintenant |
595 Bay. Full floor opportunity with reception and large café off elevators. Features 3 boardrooms with removeable partitions, 2 large training/team rooms, and a few additional offices/meeting rooms. Also includes workstations for 204 people, 2nd kitchenette with seating, multiple print/copy rooms, and soft seating throughout. North East corner views of rooftop garden. All furniture including data cabling available at no cost. VT: https://cbre.qumucloud.com/view/595-Bay-Atrium-Suite-1400#/
- Le loyer ne comprend pas les services publics, les frais immobiliers ou les services de l’immeuble.
- Partiellement aménagé comme Bureau standard
- Disposition open space
- Plafonds finis: 3,58 mètres
- Ventilation et chauffage centraux
- Hauts plafonds
- Atrium est certifié Wired Gold
- La plaque de sol varie généralement de 25 000 à 90 000 s.
14e étage, bureau 1401
| Surface | 2 550 m² |
| Durée | 1-10 Ans |
| Loyer | Sur demande |
| Type de bien | Bureau |
| Aménagement | Construction partielle |
| Disponible | Maintenant |
Constructed in 1985, 595 Bay Street (14 floors), 40 Dundas Street W. (9 floors), and 20 Dundas Street W. (15 floors), is collectively 1,060,000 sq. ft Typical floor plate ranges from 25,000 to 90,000 square feet.
- Le loyer ne comprend pas les services publics, les frais immobiliers ou les services de l’immeuble.
- Partiellement aménagé comme Bureau standard
- Disposition open space
- Plafonds finis: 3,58 mètres
- Ventilation et chauffage centraux
- Hauts plafonds
- Atrium est certifié Wired Gold
- La plaque de sol varie généralement de 25 000 à 90 000 s.
Aperçu du bien
Construits en 1985, les 595 Bay Street (14 étages), 40 Dundas Street W. (9 étages) et 20 Dundas Street W. (15 étages) couvrent collectivement 1 060 000 pieds carrés. La surface de plancher typique varie de 25 000 à 90 000 pieds carrés
- Atrium
- Ligne d’autobus
- Food court
- Métro
- Terrasse sur le toit
- PATH
- Station de recharge de voitures
- Local à vélos
- Climatisation
- Agents de sécurité sur place
Informations sur l’immeuble
Occupants
- Étage
- Nom de l’occupant
- Secteur d’activité
- Multi
- CIBC
- Finance et assurances
- 11e
- Hoffer Adler LLP
- Services professionnels, scientifiques et techniques
- 7e
- Legal Aid Ontario
- Services professionnels, scientifiques et techniques
- Multi
- Ministry of the Attorney General (Ontario)
- Administration publique
- 15e
- Office of the Auditor General of Ontario
- Administration publique
- 10e
- Office Of The Chief Digital And Data Officer
- Administration publique
- 1er
- Red Lobster
- Hébergement et restauration
- 4e
- Samsung
- Grossiste
- 6e
- Simplii Financial
- Finance et assurances
- 6e
- Thomson & Cummings
- Services administratifs et de soutien
Durabilité
Durabilité
Certification LEED Dirigé par le Conseil du Bâtiment Durable du Canada (CBDCa), le programme de certification LEED (Leadership in Energy and Environmental Design) est axé sur la conception, la construction, l’exploitation et la maintenance d’immeubles, de maisons et de quartiers écologiques. Sa vocation est d’aider les propriétaires et les exploitants à adopter des pratiques écoresponsables et à utiliser les ressources de façon efficace. La certification LEED est un symbole mondialement reconnu de réalisation et de leadership en matière de développement durable. Pour obtenir la certification LEED, un projet doit obtenir des points en respectant des conditions préalables et un barème de crédits qui tiennent compte des émissions de carbone, de l’énergie, de l’eau, des déchets, du transport, des matériaux, de la santé et de la qualité de l’environnement intérieur. Les projets passent par un processus de vérification et d’évaluation et reçoivent un score correspondant à un niveau de certification LEED : Platine (80 points et plus) Or (60 à 79 points) Argent (50 à 59 points) Certifié (40 à 49 points)
Présenté par
Société non fournie
Atrium on Bay | 595 Bay St
Hum, une erreur s’est produite lors de l’envoi de votre message. Veuillez réessayer.
Merci ! Votre message a été envoyé.











































