Votre e-mail a été envoyé.
Certaines informations ont été traduites automatiquement.
INFORMATIONS PRINCIPALES
- Chaque suite possède sa propre unité CVC, ce qui permet de l'utiliser après les heures de bureau
- Chaque suite a été prépayée pour les frais de raccordement à l'eau/aux égouts
- Le ratio de stationnement est de 4 pour 1 000 pieds carrés
- À 1 km de l'hôpital ValleyCare
TOUS LES ESPACE DISPONIBLES(1)
Afficher les loyers en
- ESPACE
- SURFACE
- DURÉE
- LOYER
- TYPE DE BIEN
- ÉTAT
- DISPONIBLE
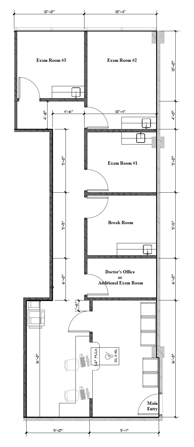
2nd generation medical suite consisting of 3 exam rooms, a reception/waiting room, doctor's office, and break room. Suite was newly constructed within the past 5 years.
- Le loyer ne comprend pas les services publics, les frais immobiliers ou les services de l’immeuble.
- Plan d’étage avec bureaux fermés
- Entièrement aménagé comme Cabinet médical standard
- Espace en excellent état
| Espace | Surface | Durée | Loyer | Type de bien | État | Disponible |
| 2e étage, bureau 204B | 105 m² | Négociable | 368,66 € /m²/an 30,72 € /m²/mois 38 804 € /an 3 234 € /mois | Médical | Construction achevée | 01/01/2026 |
2e étage, bureau 204B
| Surface |
| 105 m² |
| Durée |
| Négociable |
| Loyer |
| 368,66 € /m²/an 30,72 € /m²/mois 38 804 € /an 3 234 € /mois |
| Type de bien |
| Médical |
| État |
| Construction achevée |
| Disponible |
| 01/01/2026 |
2e étage, bureau 204B
| Surface | 105 m² |
| Durée | Négociable |
| Loyer | 368,66 € /m²/an |
| Type de bien | Médical |
| État | Construction achevée |
| Disponible | 01/01/2026 |
2nd generation medical suite consisting of 3 exam rooms, a reception/waiting room, doctor's office, and break room. Suite was newly constructed within the past 5 years.
- Le loyer ne comprend pas les services publics, les frais immobiliers ou les services de l’immeuble.
- Entièrement aménagé comme Cabinet médical standard
- Plan d’étage avec bureaux fermés
- Espace en excellent état
APERÇU DU BIEN
Bâtiment médical de classe A de 2 étages, chaque espace possède son propre boîtier VAV (c'est-à-dire un système CVC à tout moment, à vous de choisir), des suites médicales existantes disponibles, un hall extravagant, des toilettes communes, des ascenseurs et des améliorations du bâtiment conformes à l'ADA, des frais de robinet d'eau et d'égout prépayés pour usage médical (les économies peuvent aller de 10 000 à 100 000 dollars), un grand parking (4 pour 1 000 pieds carrés), une signalisation potentielle sur les monuments et bâtiments disponibles pour les grands locataires. Les locataires actuels comprennent des radiologues, des dermatologues, des orthopédistes, des optométristes, des allergologues, des psychologues, des dentistes, etc. Ils recherchent des médecins spécialistes, des professionnels de la santé, des dentistes, des laboratoires, etc. Situé à l'angle de Stoneridge Drive et Willow Road, dans le prestigieux parc d'affaires Hacienda, à moins de 800 mètres de l'hôpital Valleycare, en face de l'orthopédie Tri-Valley et du centre de chirurgie. Excellent accès à l'autoroute depuis l'I-580 et l'I-680, Bart se trouve à seulement quelques pâtés de maisons avec une navette à proximité.
INFORMATIONS SUR L’IMMEUBLE
Présenté par
Hacienda Medical Center | 5924 Stoneridge Dr
Hum, une erreur s’est produite lors de l’envoi de votre message. Veuillez réessayer.
Merci ! Votre message a été envoyé.






