Votre e-mail a été envoyé.
Carlsbad Ranch Corporate Center 5800 Armada Dr Bureau | 176–1 464 m² | 4 étoiles | À louer | Carlsbad, CA 92008



Certaines informations ont été traduites automatiquement.
Informations principales
- Accès pratique à l'autoroute et vues panoramiques sur l'océan et l'arrière-pays. Accès immédiat au réseau de sentiers de Carlsbad et au parc Promenade surplombant la
- Façade en granit et calcaire avec finitions en bois et pierre du lobby
- Finitions Premium Tenant Improvement
- Deux espaces de détente et de restauration extérieurs
- Connectivité haut débit AT&T, Cox Communications, Time Warner et Charter/Spectrum Fiber disponible
- Situé dans le premier parc de bureaux de Carlsbad, le Carlsbad Ranch
Tous les espaces disponibles(5)
Afficher les loyers en
- Espace
- Surface
- Durée
- Loyer
- Type de bien
- État
- Disponible
Double door entry off ground floor lobby, large conference room, 12 private offices and one workstation area.
- Loyer annoncé plus part proportionnelle des coûts de la consommation électrique
- Principalement open space
- 1 salle de conférence
- Entièrement aménagé comme Bureau standard
- 2 bureaux privés
Double door entry off ground floor lobby, conference, 2 private offices, kitchen and open bullpen area.
- Loyer annoncé plus part proportionnelle des coûts de la consommation électrique
- Principalement open space
- 1 salle de conférence
- Entièrement aménagé comme Bureau standard
- 2 bureaux privés
High-end finishes throughout, reception with double door entry off the second floor lobby, 3 private offices, conference room or executive office, open office area, kitchen, work room and server room.
- Loyer annoncé plus part proportionnelle des coûts de la consommation électrique
- 3 bureaux privés
- Espace en excellent état
- Cuisine
- Entreposage sécurisé
- Entièrement aménagé comme Bureau standard
- 1 salle de conférence
- Aire de réception
- Accès aux ascenseurs
- Espace de bureau de classe « A », finitions haut de gamme
High-end finishes throughout, double door entry off lobby, multiple private offices, conference room or executive office and open office area.
- Loyer annoncé plus part proportionnelle des coûts de la consommation électrique
- 8 bureaux privés
- Cuisine
- Entièrement aménagé comme Bureau standard
- 1 salle de conférence
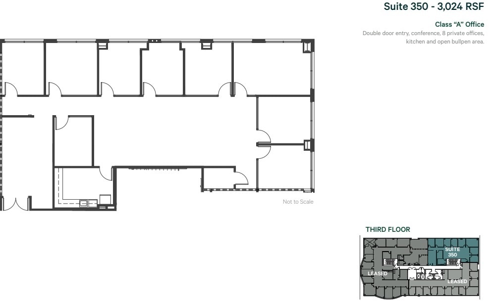
Double door entry, conference, 8 private offices, kitchen, and open bullpen area.
- Loyer annoncé plus part proportionnelle des coûts de la consommation électrique
- 8 bureaux privés
- Cuisine
- Entièrement aménagé comme Bureau standard
- 1 salle de conférence
| Espace | Surface | Durée | Loyer | Type de bien | État | Disponible |
| 1er étage, bureau 101 | 394 m² | Négociable | 366,93 € /m²/an 30,58 € /m²/mois 144 673 € /an 12 056 € /mois | Bureau | Construction achevée | 01/07/2026 |
| 1er étage, bureau 105 | 176 m² | Négociable | 366,93 € /m²/an 30,58 € /m²/mois 64 564 € /an 5 380 € /mois | Bureau | Construction achevée | Maintenant |
| 2e étage, bureau 235 | 249 m² | Négociable | 366,93 € /m²/an 30,58 € /m²/mois 91 495 € /an 7 625 € /mois | Bureau | Construction achevée | Maintenant |
| 3e étage, bureau 310 | 364 m² | Négociable | 366,93 € /m²/an 30,58 € /m²/mois 133 390 € /an 11 116 € /mois | Bureau | Construction achevée | 01/07/2026 |
| 3e étage, bureau 350 | 281 m² | Négociable | 366,93 € /m²/an 30,58 € /m²/mois 103 085 € /an 8 590 € /mois | Bureau | Construction achevée | Maintenant |
1er étage, bureau 101
| Surface |
| 394 m² |
| Durée |
| Négociable |
| Loyer |
| 366,93 € /m²/an 30,58 € /m²/mois 144 673 € /an 12 056 € /mois |
| Type de bien |
| Bureau |
| État |
| Construction achevée |
| Disponible |
| 01/07/2026 |
1er étage, bureau 105
| Surface |
| 176 m² |
| Durée |
| Négociable |
| Loyer |
| 366,93 € /m²/an 30,58 € /m²/mois 64 564 € /an 5 380 € /mois |
| Type de bien |
| Bureau |
| État |
| Construction achevée |
| Disponible |
| Maintenant |
2e étage, bureau 235
| Surface |
| 249 m² |
| Durée |
| Négociable |
| Loyer |
| 366,93 € /m²/an 30,58 € /m²/mois 91 495 € /an 7 625 € /mois |
| Type de bien |
| Bureau |
| État |
| Construction achevée |
| Disponible |
| Maintenant |
3e étage, bureau 310
| Surface |
| 364 m² |
| Durée |
| Négociable |
| Loyer |
| 366,93 € /m²/an 30,58 € /m²/mois 133 390 € /an 11 116 € /mois |
| Type de bien |
| Bureau |
| État |
| Construction achevée |
| Disponible |
| 01/07/2026 |
3e étage, bureau 350
| Surface |
| 281 m² |
| Durée |
| Négociable |
| Loyer |
| 366,93 € /m²/an 30,58 € /m²/mois 103 085 € /an 8 590 € /mois |
| Type de bien |
| Bureau |
| État |
| Construction achevée |
| Disponible |
| Maintenant |
1er étage, bureau 101
| Surface | 394 m² |
| Durée | Négociable |
| Loyer | 366,93 € /m²/an |
| Type de bien | Bureau |
| État | Construction achevée |
| Disponible | 01/07/2026 |
Double door entry off ground floor lobby, large conference room, 12 private offices and one workstation area.
- Loyer annoncé plus part proportionnelle des coûts de la consommation électrique
- Entièrement aménagé comme Bureau standard
- Principalement open space
- 2 bureaux privés
- 1 salle de conférence
1er étage, bureau 105
| Surface | 176 m² |
| Durée | Négociable |
| Loyer | 366,93 € /m²/an |
| Type de bien | Bureau |
| État | Construction achevée |
| Disponible | Maintenant |
Double door entry off ground floor lobby, conference, 2 private offices, kitchen and open bullpen area.
- Loyer annoncé plus part proportionnelle des coûts de la consommation électrique
- Entièrement aménagé comme Bureau standard
- Principalement open space
- 2 bureaux privés
- 1 salle de conférence
2e étage, bureau 235
| Surface | 249 m² |
| Durée | Négociable |
| Loyer | 366,93 € /m²/an |
| Type de bien | Bureau |
| État | Construction achevée |
| Disponible | Maintenant |
High-end finishes throughout, reception with double door entry off the second floor lobby, 3 private offices, conference room or executive office, open office area, kitchen, work room and server room.
- Loyer annoncé plus part proportionnelle des coûts de la consommation électrique
- Entièrement aménagé comme Bureau standard
- 3 bureaux privés
- 1 salle de conférence
- Espace en excellent état
- Aire de réception
- Cuisine
- Accès aux ascenseurs
- Entreposage sécurisé
- Espace de bureau de classe « A », finitions haut de gamme
3e étage, bureau 310
| Surface | 364 m² |
| Durée | Négociable |
| Loyer | 366,93 € /m²/an |
| Type de bien | Bureau |
| État | Construction achevée |
| Disponible | 01/07/2026 |
High-end finishes throughout, double door entry off lobby, multiple private offices, conference room or executive office and open office area.
- Loyer annoncé plus part proportionnelle des coûts de la consommation électrique
- Entièrement aménagé comme Bureau standard
- 8 bureaux privés
- 1 salle de conférence
- Cuisine
3e étage, bureau 350
| Surface | 281 m² |
| Durée | Négociable |
| Loyer | 366,93 € /m²/an |
| Type de bien | Bureau |
| État | Construction achevée |
| Disponible | Maintenant |
Double door entry, conference, 8 private offices, kitchen, and open bullpen area.
- Loyer annoncé plus part proportionnelle des coûts de la consommation électrique
- Entièrement aménagé comme Bureau standard
- 8 bureaux privés
- 1 salle de conférence
- Cuisine
Aperçu du bien
- Immeuble de bureaux de classe A de 3 étages de 42 960 pieds carrés - Vue panoramique sur l'océan et l'arrière-pays - Accès immédiat au réseau de sentiers de Carlsbad et au parc Promenade surplombant les célèbres champs de fleurs avec une vue à 180 degrés sur l'océan. - Façade en granit et calcaire avec finitions de lobby en bois et en pierre - Connectivité haut débit AT&T, Cox Communications, Time Warner et Charter/Spectrum Fiber disponible - Situé dans le principal parc de bureaux de Carlsbad, le Carlsbad Ranch - Deux salles à manger/détente extérieures - Accès à l'Interstate 5 via Palomar Airport Road et Cannon Road - À distance de marche des services de restauration, des commerces de détail, de l'hébergement et des installations de loisirs
- Accessible fauteuils roulants
- Lumière naturelle
- Panneau monumental
- Sièges extérieurs
- Climatisation
- Balcon
- Détecteur de fumée
Informations sur l’immeuble
Présenté par
Carlsbad Ranch Corporate Center | 5800 Armada Dr
Hum, une erreur s’est produite lors de l’envoi de votre message. Veuillez réessayer.
Merci ! Votre message a été envoyé.










