Connectez-vous/S’inscrire
Votre e-mail a été envoyé.
Certaines informations ont été traduites automatiquement.
Tous les espace disponibles(1)
Afficher les loyers en
- Espace
- Surface
- Durée
- Loyer
- Type de bien
- Aménagement
- Disponible
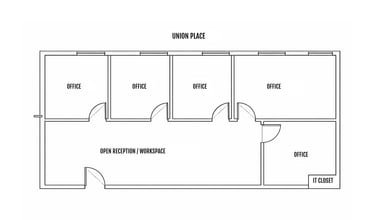
Six-room office in well-maintained Downtown Summit building overlooking iconic Union Place and Summit train station directly across the street. All of Summit's amenities at your fingertips.
- 5 bureaux privés
- Plafonds suspendus
- CVC disponible en-dehors des heures ouvrables
- Accessible fauteuils roulants
- Ventilation et chauffage centraux
- Lumière naturelle
- Détecteur de fumée
| Espace | Surface | Durée | Loyer | Type de bien | Aménagement | Disponible |
| 3e étage, bureau 310 | 101 m² | Négociable | Sur demande Sur demande Sur demande Sur demande | Bureau | - | Maintenant |
3e étage, bureau 310
| Surface |
| 101 m² |
| Durée |
| Négociable |
| Loyer |
| Sur demande Sur demande Sur demande Sur demande |
| Type de bien |
| Bureau |
| Aménagement |
| - |
| Disponible |
| Maintenant |
1 sur 1
Vidéos
Visite extérieure 3D Matterport
Visite 3D
Photos
Street view
Rue
Carte
3e étage, bureau 310
| Surface | 101 m² |
| Durée | Négociable |
| Loyer | Sur demande |
| Type de bien | Bureau |
| Aménagement | - |
| Disponible | Maintenant |
Six-room office in well-maintained Downtown Summit building overlooking iconic Union Place and Summit train station directly across the street. All of Summit's amenities at your fingertips.
- 5 bureaux privés
- Ventilation et chauffage centraux
- Plafonds suspendus
- Lumière naturelle
- CVC disponible en-dehors des heures ouvrables
- Détecteur de fumée
- Accessible fauteuils roulants
Caractéristiques
- Trains de banlieue
- Chauffage central
- Climatisation
Informations sur l’immeuble
Type d’immeuble
Bureau
Année de construction
1920
Hauteur du bâtiment
3 étages
Surface de l’immeuble
1 672 m²
Classe d’immeuble
B
Surface type par étage
541 m²
Occupants
- Étage
- Nom de l’occupant
- Secteur d’activité
- 2e
- Bassett Associates
- Manufacture
- 2e
- Bernax Corp
- Services administratifs et de soutien
- 3e
- Blazi Architect
- -
- 3e
- Communikids
- Santé et assistance sociale
- 3e
- Governance Group Inc, The
- Services professionnels, scientifiques et techniques
- 2e
- Shannon Albarelli Psy D
- Santé et assistance sociale
- 1er
- Singleterry Mansley Asset Management
- Finance et assurances
- 1er
- The Office Beer Bar & Grill
- Hébergement et restauration
- 2e
- The UPS Store
- Services administratifs et de soutien
1 1
Exceptionally walkable
90/100
Moderately drivable
70/100
Exceptional public transit
90/100
Fairly bikeable
40/100
1 sur 5
Vidéos
Visite extérieure 3D Matterport
Visite 3D
Photos
Street view
Rue
Carte
1 sur 1
Présenté par
57 Union Pl
Vous êtes déjà membre ? Connectez-vous
Hum, une erreur s’est produite lors de l’envoi de votre message. Veuillez réessayer.
Merci ! Votre message a été envoyé.






