Connectez-vous/S’inscrire
Votre e-mail a été envoyé.
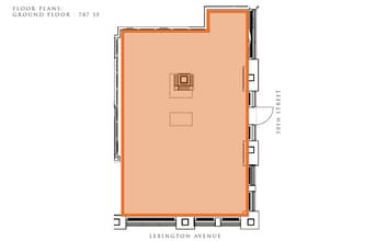
The Benjamin Royal Sonesta New York 567 Lexington Avenue Local commercial | 73 m² | 4 étoiles | À louer | New York, NY 10022

Certaines informations ont été traduites automatiquement.
Informations principales
- Adjacent to the 51st Street 6 Train
- Within close proximity to 60 hotels
- Steps from Grand Central Terminal
Tous les espace disponibles(1)
Afficher les loyers en
- Espace
- Surface
- Durée
- Loyer
- Type de bien
- Aménagement
- Disponible
At the base of The Benjamin Hotel, a 209-guest room hotel in the heart of Midtown East. No food uses allowed. Surrounded by over 40 million square feet of office space.
- Partiellement aménagé comme Local commercial standard
- 25' of frontage on Lexington, 39' on 50th ST
- Plafonds finis: 2,90 mètres
| Espace | Surface | Durée | Loyer | Type de bien | Aménagement | Disponible |
| RDC, bureau 567 Lexington | 73 m² | Négociable | Sur demande Sur demande Sur demande Sur demande | Local commercial | Construction partielle | Maintenant |
RDC, bureau 567 Lexington
| Surface |
| 73 m² |
| Durée |
| Négociable |
| Loyer |
| Sur demande Sur demande Sur demande Sur demande |
| Type de bien |
| Local commercial |
| Aménagement |
| Construction partielle |
| Disponible |
| Maintenant |
1 sur 2
Vidéos
Visite extérieure 3D Matterport
Visite 3D
Photos
Street view
Rue
Carte
RDC, bureau 567 Lexington
| Surface | 73 m² |
| Durée | Négociable |
| Loyer | Sur demande |
| Type de bien | Local commercial |
| Aménagement | Construction partielle |
| Disponible | Maintenant |
At the base of The Benjamin Hotel, a 209-guest room hotel in the heart of Midtown East. No food uses allowed. Surrounded by over 40 million square feet of office space.
- Partiellement aménagé comme Local commercial standard
- Plafonds finis: 2,90 mètres
- 25' of frontage on Lexington, 39' on 50th ST
Informations sur l’immeuble
| Espace total disponible | 73 m² | Surface de l’immeuble | 22 259 m² |
| Type de bien | Services hôteliers | Année de construction/rénovation | 1927/2026 |
| Sous-type de bien | Hôtel |
| Espace total disponible | 73 m² |
| Type de bien | Services hôteliers |
| Sous-type de bien | Hôtel |
| Surface de l’immeuble | 22 259 m² |
| Année de construction/rénovation | 1927/2026 |
À propos du bien
567 Lexington Ave is located on the NE corner of 50th Street and Lexington Ave.
Caractéristiques
- Balcon
- Centre d’affaires
- Centre de fitness
- Restaurant
- Spa
- Accès internet à haut débit
- Bar sur place
- Espace pour événements de rencontre
- Sans tabac
- Cuisine entièrement équipée
1 1
Exceptionally walkable
100/100
Somewhat drivable
30/100
Exceptional public transit
100/100
Very bikeable
80/100
Principaux commerces à proximité
1 sur 2
Vidéos
Visite extérieure 3D Matterport
Visite 3D
Photos
Street view
Rue
Carte
1 sur 1
Présenté par
The Benjamin Royal Sonesta New York | 567 Lexington Avenue
Vous êtes déjà membre ? Connectez-vous
Hum, une erreur s’est produite lors de l’envoi de votre message. Veuillez réessayer.
Merci ! Votre message a été envoyé.



