Votre e-mail a été envoyé.
Certaines informations ont été traduites automatiquement.
Informations principales
- LEED Platinum certified Class A tower with panoramic Bay views and efficient, modern floor plates.
- Premier South Financial District location with immediate access to retail, dining, culture, and major transit.
- Exceptional amenity center offering fitness, wellness, golf simulator, conferencing, and entertainment spaces.
- Floor-to-ceiling glass architecture designed by renowned firms Kohn Pedersen Fox and Heller Manus.
Tous les espaces disponibles(8)
Afficher les loyers en
- Espace
- Surface
- Durée
- Loyer
- Type de bien
- Aménagement
- Disponible
This creative floor includes high exposed ceilings, plaza views, five private offices, seven conference rooms, three phone rooms, two copy rooms, two kitchens, and an open plan layout.
- Entièrement aménagé comme Bureau standard
- 5 bureaux privés
- Plafonds finis: 3,05 mètres - 3,35 mètres
- Plafond apparent
- Vues sur la place
- Disposition open space
- 7 salles de conférence
- Espace en excellent état
- Open space
Available 9/1/26, Brand new spec suite, Creative open plan, Exposed ceiling, Abundant natural light, 2 medium conference rooms, Kitchen, and Storage/IT room
- Principalement open space
- 1 salle de conférence
- Espace en excellent état
- Salle d’impression/photocopie
- Entreposage sécurisé
- Quantité de lumière abondante
- 2 bureaux privés
- Plafonds finis: 3,05 mètres - 3,35 mètres
- Accès aux ascenseurs
- Plafond apparent
- Lumière naturelle
This provide abundant natural light along with four private offices, four conference rooms, a kitchen and break area, a copy and print room, a storage and IT room, a mother’s room, three phone rooms, and double-door identity off the elevator lobby.
- Entièrement aménagé comme Bureau standard
- 4 bureaux privés
- Plafonds finis: 3,05 mètres - 3,35 mètres
- Accès aux ascenseurs
- Entreposage sécurisé
- Principalement open space
- 4 salles de conférence
- Espace en excellent état
- Salle d’impression/photocopie
- Lumière naturelle
Available on 05/01/27, 45 private Offices, 12 workstations, 4 conference rooms, Kitchenette, and 2 teams rooms
- Entièrement aménagé comme Bureau standard
- 45 bureaux privés
- 12 postes de travail
- Principalement open space
- 4 salles de conférence
This brand-new creative spec suite features exposed ceilings, seven private offices, three conference rooms, an IT and storage closet, a reception area, an open work area with space for twenty-four workstations, and double-door identity.
- Disposition open space
- 2 salles de conférence
- Plafonds finis: 3,05 mètres - 3,35 mètres
- Aire de réception
- Salle d’impression/photocopie
- Identité à double porte
- 15 bureaux privés
- 24 postes de travail
- Espace en excellent état
- Accès aux ascenseurs
- Plafond apparent
Brand new spec suite, Incredible views, 5 private offices, 3 conference rooms, Kitchen / Break Area, Reception, and IT/storage/copy room
- Entièrement aménagé comme Bureau standard
- 5 bureaux privés
- Plafonds finis: 3,05 mètres - 3,35 mètres
- Aire de réception
- Plafond apparent
- Des vues exceptionnelles
- Principalement open space
- 3 salles de conférence
- Espace en excellent état
- Salle d’impression/photocopie
- Entreposage sécurisé
Brand new spec suite, Incredible views, 2 private offices, 2 conference rooms, Kitchen / Break area, and Reception
- Disposition open space
- 2 salles de conférence
- 2 bureaux privés
- Aire de réception
Brand new spec suite, Incredible views, 3 private offices, 2 conference rooms, Kitchen / break area, Reception, and IT/storage/copy room
- Disposition open space
- Aire de réception
- Entreposage sécurisé
- 3 bureaux privés
- Salle d’impression/photocopie
| Espace | Surface | Durée | Loyer | Type de bien | Aménagement | Disponible |
| 3e étage, bureau 300 | 929 – 2 005 m² | Négociable | Sur demande Sur demande Sur demande Sur demande | Bureau | Construction achevée | 01/07/2027 |
| 18e étage, bureau 1850 | 388 m² | Négociable | Sur demande Sur demande Sur demande Sur demande | Bureau | Meublé et équipé | Maintenant |
| 19e étage, bureau 1950 | 914 m² | Négociable | Sur demande Sur demande Sur demande Sur demande | Bureau | Construction achevée | Maintenant |
| 25e étage, bureau 2500 | 1 500 m² | Négociable | Sur demande Sur demande Sur demande Sur demande | Bureau | Construction achevée | 01/02/2027 |
| 26e étage, bureau 2600 | 705 m² | Négociable | Sur demande Sur demande Sur demande Sur demande | Bureau | Meublé et équipé | Maintenant |
| 27e étage, bureau 2700 | 696 m² | Négociable | Sur demande Sur demande Sur demande Sur demande | Bureau | Construction achevée | 01/10/2026 |
| 27e étage, bureau 2725 | 352 m² | Négociable | Sur demande Sur demande Sur demande Sur demande | Bureau | Meublé et équipé | 01/10/2026 |
| 27e étage, bureau 2750 | 456 m² | Négociable | Sur demande Sur demande Sur demande Sur demande | Bureau | Meublé et équipé | 01/10/2026 |
3e étage, bureau 300
| Surface |
| 929 – 2 005 m² |
| Durée |
| Négociable |
| Loyer |
| Sur demande Sur demande Sur demande Sur demande |
| Type de bien |
| Bureau |
| Aménagement |
| Construction achevée |
| Disponible |
| 01/07/2027 |
18e étage, bureau 1850
| Surface |
| 388 m² |
| Durée |
| Négociable |
| Loyer |
| Sur demande Sur demande Sur demande Sur demande |
| Type de bien |
| Bureau |
| Aménagement |
| Meublé et équipé |
| Disponible |
| Maintenant |
19e étage, bureau 1950
| Surface |
| 914 m² |
| Durée |
| Négociable |
| Loyer |
| Sur demande Sur demande Sur demande Sur demande |
| Type de bien |
| Bureau |
| Aménagement |
| Construction achevée |
| Disponible |
| Maintenant |
25e étage, bureau 2500
| Surface |
| 1 500 m² |
| Durée |
| Négociable |
| Loyer |
| Sur demande Sur demande Sur demande Sur demande |
| Type de bien |
| Bureau |
| Aménagement |
| Construction achevée |
| Disponible |
| 01/02/2027 |
26e étage, bureau 2600
| Surface |
| 705 m² |
| Durée |
| Négociable |
| Loyer |
| Sur demande Sur demande Sur demande Sur demande |
| Type de bien |
| Bureau |
| Aménagement |
| Meublé et équipé |
| Disponible |
| Maintenant |
27e étage, bureau 2700
| Surface |
| 696 m² |
| Durée |
| Négociable |
| Loyer |
| Sur demande Sur demande Sur demande Sur demande |
| Type de bien |
| Bureau |
| Aménagement |
| Construction achevée |
| Disponible |
| 01/10/2026 |
27e étage, bureau 2725
| Surface |
| 352 m² |
| Durée |
| Négociable |
| Loyer |
| Sur demande Sur demande Sur demande Sur demande |
| Type de bien |
| Bureau |
| Aménagement |
| Meublé et équipé |
| Disponible |
| 01/10/2026 |
27e étage, bureau 2750
| Surface |
| 456 m² |
| Durée |
| Négociable |
| Loyer |
| Sur demande Sur demande Sur demande Sur demande |
| Type de bien |
| Bureau |
| Aménagement |
| Meublé et équipé |
| Disponible |
| 01/10/2026 |
3e étage, bureau 300
| Surface | 929 – 2 005 m² |
| Durée | Négociable |
| Loyer | Sur demande |
| Type de bien | Bureau |
| Aménagement | Construction achevée |
| Disponible | 01/07/2027 |
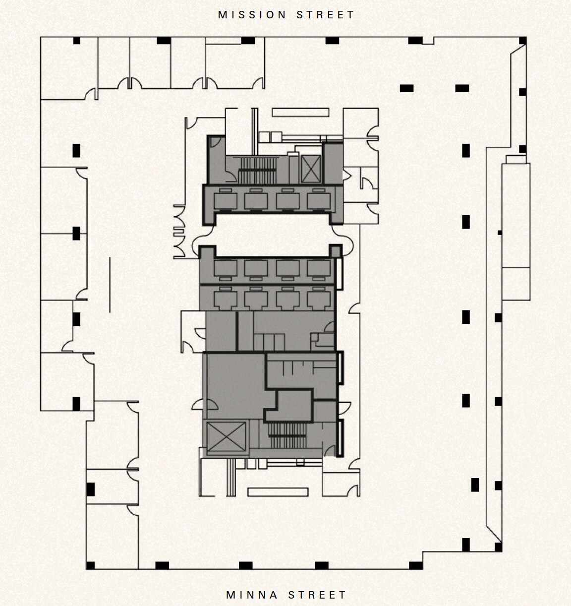
This creative floor includes high exposed ceilings, plaza views, five private offices, seven conference rooms, three phone rooms, two copy rooms, two kitchens, and an open plan layout.
- Entièrement aménagé comme Bureau standard
- Disposition open space
- 5 bureaux privés
- 7 salles de conférence
- Plafonds finis: 3,05 mètres - 3,35 mètres
- Espace en excellent état
- Plafond apparent
- Open space
- Vues sur la place
18e étage, bureau 1850
| Surface | 388 m² |
| Durée | Négociable |
| Loyer | Sur demande |
| Type de bien | Bureau |
| Aménagement | Meublé et équipé |
| Disponible | Maintenant |
Available 9/1/26, Brand new spec suite, Creative open plan, Exposed ceiling, Abundant natural light, 2 medium conference rooms, Kitchen, and Storage/IT room
- Principalement open space
- 2 bureaux privés
- 1 salle de conférence
- Plafonds finis: 3,05 mètres - 3,35 mètres
- Espace en excellent état
- Accès aux ascenseurs
- Salle d’impression/photocopie
- Plafond apparent
- Entreposage sécurisé
- Lumière naturelle
- Quantité de lumière abondante
19e étage, bureau 1950
| Surface | 914 m² |
| Durée | Négociable |
| Loyer | Sur demande |
| Type de bien | Bureau |
| Aménagement | Construction achevée |
| Disponible | Maintenant |
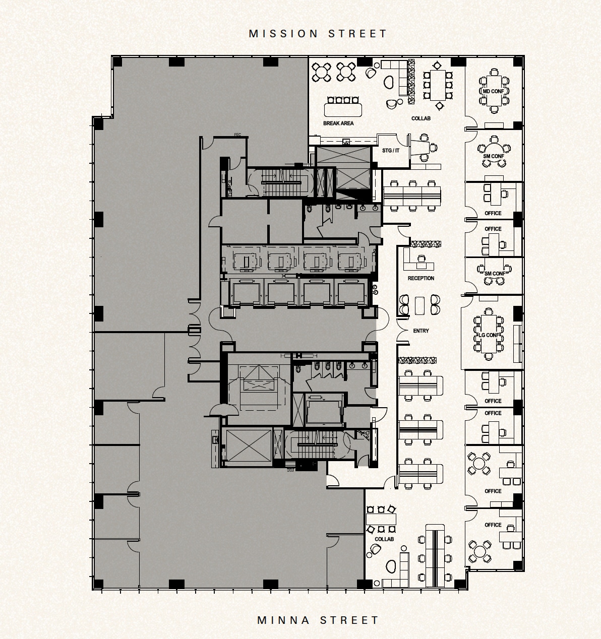
This provide abundant natural light along with four private offices, four conference rooms, a kitchen and break area, a copy and print room, a storage and IT room, a mother’s room, three phone rooms, and double-door identity off the elevator lobby.
- Entièrement aménagé comme Bureau standard
- Principalement open space
- 4 bureaux privés
- 4 salles de conférence
- Plafonds finis: 3,05 mètres - 3,35 mètres
- Espace en excellent état
- Accès aux ascenseurs
- Salle d’impression/photocopie
- Entreposage sécurisé
- Lumière naturelle
25e étage, bureau 2500
| Surface | 1 500 m² |
| Durée | Négociable |
| Loyer | Sur demande |
| Type de bien | Bureau |
| Aménagement | Construction achevée |
| Disponible | 01/02/2027 |
Available on 05/01/27, 45 private Offices, 12 workstations, 4 conference rooms, Kitchenette, and 2 teams rooms
- Entièrement aménagé comme Bureau standard
- Principalement open space
- 45 bureaux privés
- 4 salles de conférence
- 12 postes de travail
26e étage, bureau 2600
| Surface | 705 m² |
| Durée | Négociable |
| Loyer | Sur demande |
| Type de bien | Bureau |
| Aménagement | Meublé et équipé |
| Disponible | Maintenant |
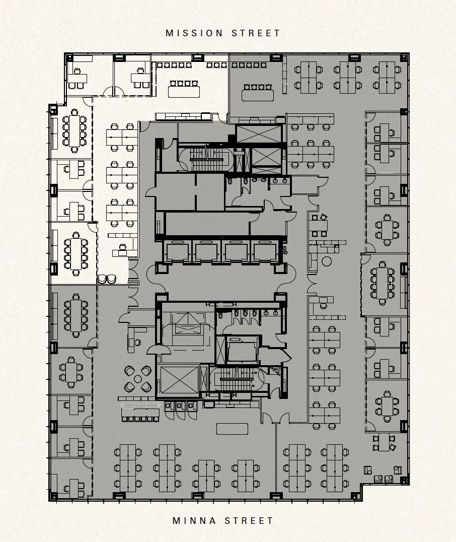
This brand-new creative spec suite features exposed ceilings, seven private offices, three conference rooms, an IT and storage closet, a reception area, an open work area with space for twenty-four workstations, and double-door identity.
- Disposition open space
- 15 bureaux privés
- 2 salles de conférence
- 24 postes de travail
- Plafonds finis: 3,05 mètres - 3,35 mètres
- Espace en excellent état
- Aire de réception
- Accès aux ascenseurs
- Salle d’impression/photocopie
- Plafond apparent
- Identité à double porte
27e étage, bureau 2700
| Surface | 696 m² |
| Durée | Négociable |
| Loyer | Sur demande |
| Type de bien | Bureau |
| Aménagement | Construction achevée |
| Disponible | 01/10/2026 |
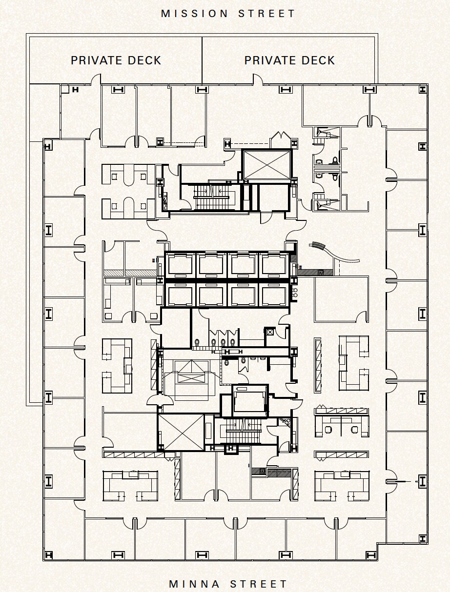
Brand new spec suite, Incredible views, 5 private offices, 3 conference rooms, Kitchen / Break Area, Reception, and IT/storage/copy room
- Entièrement aménagé comme Bureau standard
- Principalement open space
- 5 bureaux privés
- 3 salles de conférence
- Plafonds finis: 3,05 mètres - 3,35 mètres
- Espace en excellent état
- Aire de réception
- Salle d’impression/photocopie
- Plafond apparent
- Entreposage sécurisé
- Des vues exceptionnelles
27e étage, bureau 2725
| Surface | 352 m² |
| Durée | Négociable |
| Loyer | Sur demande |
| Type de bien | Bureau |
| Aménagement | Meublé et équipé |
| Disponible | 01/10/2026 |
Brand new spec suite, Incredible views, 2 private offices, 2 conference rooms, Kitchen / Break area, and Reception
- Disposition open space
- 2 bureaux privés
- 2 salles de conférence
- Aire de réception
27e étage, bureau 2750
| Surface | 456 m² |
| Durée | Négociable |
| Loyer | Sur demande |
| Type de bien | Bureau |
| Aménagement | Meublé et équipé |
| Disponible | 01/10/2026 |
Brand new spec suite, Incredible views, 3 private offices, 2 conference rooms, Kitchen / break area, Reception, and IT/storage/copy room
- Disposition open space
- 3 bureaux privés
- Aire de réception
- Salle d’impression/photocopie
- Entreposage sécurisé
Aperçu du bien
555 Mission Street stands as a signature Class A tower in San Francisco’s South Financial District, celebrated for its floor-to-ceiling glass façade, illuminated crown, and striking architectural presence crafted by Kohn Pedersen Fox and Heller Manus Architects. The building’s efficient floor plates, panoramic Bay views, and 13-foot ceiling heights create a modern workplace environment that blends functionality with aesthetic appeal. Tenants benefit from a robust amenity center that includes a state-of-the-art fitness facility, golf simulator and lounge, conference center, entertainment bar, wellness rooms, and flexible work suites, all supported by on-site property management and 24-hour security. Positioned amid a vibrant mix of retail, dining, cultural venues, and strong transit connections, 555 Mission Street offers an elevated tenant experience in one of the city’s most sought-after commercial corridors.
- Accès 24 h/24
- Atrium
- Banque
- Ligne d’autobus
- Accès contrôlé
- Trains de banlieue
- Cour
- Métro
- Property Manager sur place
- Système de sécurité
- Certifié Energy Star
- Terrasse sur le toit
- Hauts plafonds
- Lumière naturelle
- Panneau monumental
- Sièges extérieurs
- Climatisation
- Balcon
Informations sur l’immeuble
Durabilité
Durabilité
Certification LEED Établi par l’U.S. Green Building Council (USGBC, Conseil américain de l’immeuble durable), le programme de certification LEED (Leadership in Energy and Environmental Design) est axé sur la conception, la construction, l’exploitation et la maintenance d’immeubles, de maisons et de quartiers écologiques. Sa vocation est d’aider les propriétaires et les exploitants à adopter des pratiques écoresponsables et à utiliser les ressources de façon efficace. La certification LEED est un symbole mondialement reconnu de réalisation et de leadership en matière de développement durable. Pour obtenir la certification LEED, un projet doit obtenir des points en respectant des conditions préalables et un barème de crédits qui tiennent compte des émissions de carbone, de l’énergie, de l’eau, des déchets, du transport, des matériaux, de la santé et de la qualité de l’environnement intérieur. Les projets passent par un processus de vérification et d’évaluation et reçoivent un score correspondant à un niveau de certification LEED : Platine (80 points et plus) Or (60 à 79 points) Argent (50 à 59 points) Certifié (40 à 49 points)
Présenté par
555 Mission St
Hum, une erreur s’est produite lors de l’envoi de votre message. Veuillez réessayer.
Merci ! Votre message a été envoyé.



















