Votre e-mail a été envoyé.
Certaines informations ont été traduites automatiquement.
Informations principales
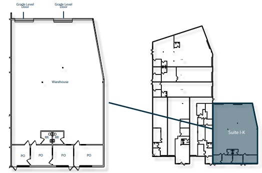
- Flexible suite size: ±4,733 SF, divisible to ±2,366 SF
- Four (4) private offices and Two (2) Restrooms
- Insulated
- Approximately 15-foot clear ceiling height in warehouse areas, maximizing vertical storage and operational flexibility
- Power: 200 AMPS (Tenant to confirm)
- HVAC system
Caractéristiques
Tous les espace disponibles(1)
Afficher les loyers en
- Espace
- Surface
- Durée
- Loyer
- Type de bien
- Aménagement
- Disponible
Suite I-K at 5542 Brisa Street is designed for versatility, offering a blend of warehouse and office space that can be tailored to a variety of industrial or manufacturing operations. The suite’s two grade-level doors facilitate smooth logistics, while the clear ceiling heights provide ample room for racking or equipment. The office component includes four private offices, ideal for management or administrative teams, and two restrooms for staff convenience. The property’s infrastructure supports a range of business activities, with robust power, HVAC, and fire safety systems in place.
- Il est possible que le loyer annoncé ne comprenne pas certains services publics, services d’immeuble et frais immobiliers.
- Bureaux cloisonnés
- 4 private offices
- 2 grade level doors
- 2 accès plain-pied
- Toilettes privées
- 2 restrooms
- Call listing brokers for more information.
| Espace | Surface | Durée | Loyer | Type de bien | Aménagement | Disponible |
| 1er étage – 5542 | 220 – 440 m² | Négociable | 176,27 € /m²/an 14,69 € /m²/mois 77 506 € /an 6 459 € /mois | Industriel/Logistique | Construction partielle | Maintenant |
1er étage – 5542
| Surface |
| 220 – 440 m² |
| Durée |
| Négociable |
| Loyer |
| 176,27 € /m²/an 14,69 € /m²/mois 77 506 € /an 6 459 € /mois |
| Type de bien |
| Industriel/Logistique |
| Aménagement |
| Construction partielle |
| Disponible |
| Maintenant |
1er étage – 5542
| Surface | 220 – 440 m² |
| Durée | Négociable |
| Loyer | 176,27 € /m²/an |
| Type de bien | Industriel/Logistique |
| Aménagement | Construction partielle |
| Disponible | Maintenant |
Suite I-K at 5542 Brisa Street is designed for versatility, offering a blend of warehouse and office space that can be tailored to a variety of industrial or manufacturing operations. The suite’s two grade-level doors facilitate smooth logistics, while the clear ceiling heights provide ample room for racking or equipment. The office component includes four private offices, ideal for management or administrative teams, and two restrooms for staff convenience. The property’s infrastructure supports a range of business activities, with robust power, HVAC, and fire safety systems in place.
- Il est possible que le loyer annoncé ne comprenne pas certains services publics, services d’immeuble et frais immobiliers.
- 2 accès plain-pied
- Bureaux cloisonnés
- Toilettes privées
- 4 private offices
- 2 restrooms
- 2 grade level doors
- Call listing brokers for more information.
Aperçu du bien
5542 Brisa Street, Suite I-K, Livermore, CA, offers a premier light industrial and manufacturing opportunity in the heart of the East Bay’s thriving industrial corridor. This flexible ±4,733 square foot office/warehouse suite can be demised to ±2,366 square feet to accommodate a range of tenant requirements. The property features a modern façade, efficient layout, and robust infrastructure, making it ideal for businesses seeking a strategic location with excellent regional and West Coast connectivity. With immediate access to major transportation routes and proximity to key ports and airports, this facility supports seamless logistics and distribution operations. The suite is professionally managed by Lee & Associates, ensuring responsive service and a high standard of property maintenance.
Faits sur l’installation entrepôt
Occupants
- Étage
- Nom de l’occupant
- Secteur d’activité
- 1er
- Eagle Air Conditioning
- Construction
- 1er
- EagleAir
- Services
- 1er
- J B Mechanical Inc
- Grossiste
- 1er
- J W Sweetness Llc
- Enseigne
- 1er
- Mechanical Air Service Corp
- Construction
- 1er
- Sidecar Sports Ltd
- Enseigne
- 1er
- Working Man Brewing Co
- Manufacture
Présenté par
5542 Brisa St
Hum, une erreur s’est produite lors de l’envoi de votre message. Veuillez réessayer.
Merci ! Votre message a été envoyé.





