Votre e-mail a été envoyé.
Certaines informations ont été traduites automatiquement.
Informations principales
- Les parties communes de la propriété ont été rénovées
- Grand espace de stationnement
- Flexible layouts with subdivision options for smaller users
- Café et garderie sur place
- Fifth-floor outdoor terrace with direct suite access
- Expansive windowlines offering panoramic views and natural light
Tous les espaces disponibles(5)
Afficher les loyers en
- Espace
- Surface
- Durée
- Loyer
- Type de bien
- Aménagement
- Disponible
Brand new efficient office-intensive pre-built office space with direct elevator exposure. Suite 440A features 3 windowed offices, expansive pantry/kitchenette and a large conference room. Expansion opportunity with the adjacent spec office, Suite 440B, for a contiguous space totaling 2,778 RSF. Suite 440A and Suite 440B are expected to deliver in Q4 2026.
- Le loyer comprend les services publics, les services de l’immeuble et les frais immobiliers.
- 8 bureaux privés
- Système de chauffage central
- Connectivité Wi-Fi
- Salle d’impression/photocopie
- Hauts plafonds
- CVC disponible en-dehors des heures ouvrables
- Éclairage d’appoint
- Suite bureautique préconstruite de deuxième génération
- Entièrement aménagé comme Bureau standard
- 1 salle de conférence
- Aire de réception
- Accès aux ascenseurs
- Espace d’angle
- Entreposage sécurisé
- Éclairage d’urgence
- Accessible fauteuils roulants
New corner pre-built spec office suite delivering in Q4 2026 featuring a combination of reception area, open collaboration area for workstations/cubicles, 3 windowed offices and a dual windowed corner conference room/large executive office. Suite 440B can be combined with the adjacent space, Suite 440A, for a combined office suite totaling 2,778 RSF - please call for more information on expansion opportunities!
- Le loyer comprend les services publics, les services de l’immeuble et les frais immobiliers.
RARE penthouse level (5th floor) full floor office space with direct elevator exposure and an expansive private terrace/balcony. Subdivision options down to approximately 2,500 RSF to accommodate smaller users and up to 5,800 RSF for the full floor. Please call for more information on demising options.
- Le loyer comprend les services publics, les services de l’immeuble et les frais immobiliers.
Spec suite delivering in Q4 2026 features 5 private offices, large corner conference room, spacious open area with 4 workstations, a pantry and reception.
- Le loyer comprend les services publics, les services de l’immeuble et les frais immobiliers.
- 4 bureaux privés
- 4 postes de travail
- Principalement open space
- 1 salle de conférence
- Espace en excellent état
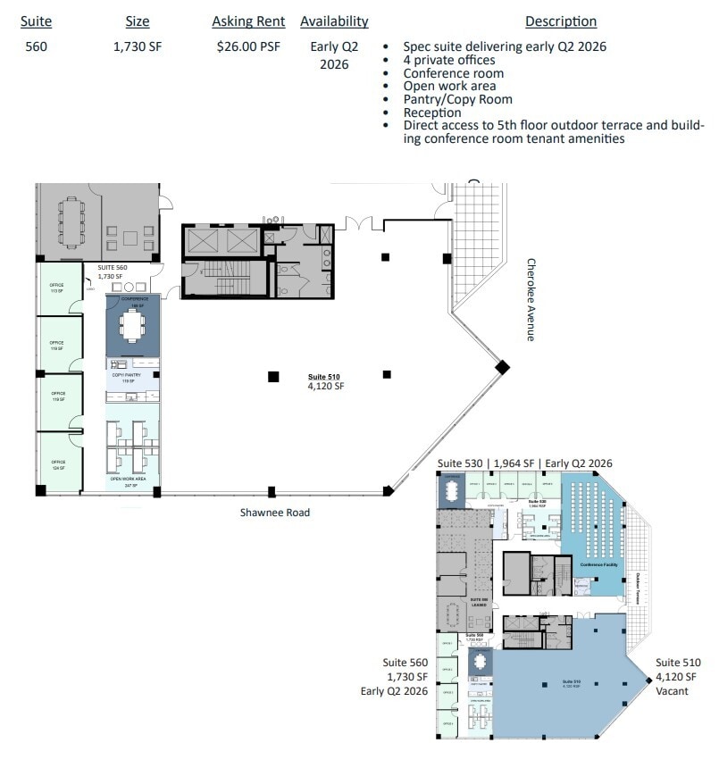
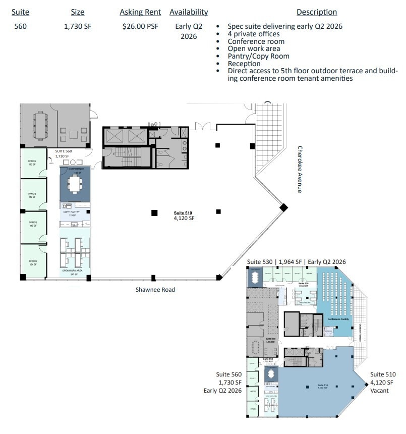
Spec suite delivering in Q4 2026 features 4 private offices, conference room, open area with 4 workstations, copy/pantry room.
- Le loyer comprend les services publics, les services de l’immeuble et les frais immobiliers.
| Espace | Surface | Durée | Loyer | Type de bien | Aménagement | Disponible |
| 4e étage, bureau 440A | 117 – 258 m² | Négociable | 237,22 € /m²/an 19,77 € /m²/mois 61 223 € /an 5 102 € /mois | Bureau | Construction achevée | 15/12/2026 |
| 4e étage, bureau 440B | 141 – 258 m² | Négociable | 237,22 € /m²/an 19,77 € /m²/mois 61 223 € /an 5 102 € /mois | Bureau | - | 15/12/2026 |
| 5e étage, bureau 510 | 319 – 544 m² | Négociable | 239,53 € /m²/an 19,96 € /m²/mois 130 289 € /an 10 857 € /mois | Bureau | - | Maintenant |
| 5e étage, bureau 560A | 76 – 224 m² | Négociable | 239,53 € /m²/an 19,96 € /m²/mois 53 673 € /an 4 473 € /mois | Bureau | Meublé et équipé | 15/12/2026 |
| 5e étage, bureau 565 | 148 – 224 m² | Négociable | 239,53 € /m²/an 19,96 € /m²/mois 53 673 € /an 4 473 € /mois | Bureau | - | 15/12/2026 |
4e étage, bureau 440A
| Surface |
| 117 – 258 m² |
| Durée |
| Négociable |
| Loyer |
| 237,22 € /m²/an 19,77 € /m²/mois 61 223 € /an 5 102 € /mois |
| Type de bien |
| Bureau |
| Aménagement |
| Construction achevée |
| Disponible |
| 15/12/2026 |
4e étage, bureau 440B
| Surface |
| 141 – 258 m² |
| Durée |
| Négociable |
| Loyer |
| 237,22 € /m²/an 19,77 € /m²/mois 61 223 € /an 5 102 € /mois |
| Type de bien |
| Bureau |
| Aménagement |
| - |
| Disponible |
| 15/12/2026 |
5e étage, bureau 510
| Surface |
| 319 – 544 m² |
| Durée |
| Négociable |
| Loyer |
| 239,53 € /m²/an 19,96 € /m²/mois 130 289 € /an 10 857 € /mois |
| Type de bien |
| Bureau |
| Aménagement |
| - |
| Disponible |
| Maintenant |
5e étage, bureau 560A
| Surface |
| 76 – 224 m² |
| Durée |
| Négociable |
| Loyer |
| 239,53 € /m²/an 19,96 € /m²/mois 53 673 € /an 4 473 € /mois |
| Type de bien |
| Bureau |
| Aménagement |
| Meublé et équipé |
| Disponible |
| 15/12/2026 |
5e étage, bureau 565
| Surface |
| 148 – 224 m² |
| Durée |
| Négociable |
| Loyer |
| 239,53 € /m²/an 19,96 € /m²/mois 53 673 € /an 4 473 € /mois |
| Type de bien |
| Bureau |
| Aménagement |
| - |
| Disponible |
| 15/12/2026 |
4e étage, bureau 440A
| Surface | 117 – 258 m² |
| Durée | Négociable |
| Loyer | 237,22 € /m²/an |
| Type de bien | Bureau |
| Aménagement | Construction achevée |
| Disponible | 15/12/2026 |
Brand new efficient office-intensive pre-built office space with direct elevator exposure. Suite 440A features 3 windowed offices, expansive pantry/kitchenette and a large conference room. Expansion opportunity with the adjacent spec office, Suite 440B, for a contiguous space totaling 2,778 RSF. Suite 440A and Suite 440B are expected to deliver in Q4 2026.
- Le loyer comprend les services publics, les services de l’immeuble et les frais immobiliers.
- Entièrement aménagé comme Bureau standard
- 8 bureaux privés
- 1 salle de conférence
- Système de chauffage central
- Aire de réception
- Connectivité Wi-Fi
- Accès aux ascenseurs
- Salle d’impression/photocopie
- Espace d’angle
- Hauts plafonds
- Entreposage sécurisé
- CVC disponible en-dehors des heures ouvrables
- Éclairage d’urgence
- Éclairage d’appoint
- Accessible fauteuils roulants
- Suite bureautique préconstruite de deuxième génération
4e étage, bureau 440B
| Surface | 141 – 258 m² |
| Durée | Négociable |
| Loyer | 237,22 € /m²/an |
| Type de bien | Bureau |
| Aménagement | - |
| Disponible | 15/12/2026 |
New corner pre-built spec office suite delivering in Q4 2026 featuring a combination of reception area, open collaboration area for workstations/cubicles, 3 windowed offices and a dual windowed corner conference room/large executive office. Suite 440B can be combined with the adjacent space, Suite 440A, for a combined office suite totaling 2,778 RSF - please call for more information on expansion opportunities!
- Le loyer comprend les services publics, les services de l’immeuble et les frais immobiliers.
5e étage, bureau 510
| Surface | 319 – 544 m² |
| Durée | Négociable |
| Loyer | 239,53 € /m²/an |
| Type de bien | Bureau |
| Aménagement | - |
| Disponible | Maintenant |
RARE penthouse level (5th floor) full floor office space with direct elevator exposure and an expansive private terrace/balcony. Subdivision options down to approximately 2,500 RSF to accommodate smaller users and up to 5,800 RSF for the full floor. Please call for more information on demising options.
- Le loyer comprend les services publics, les services de l’immeuble et les frais immobiliers.
5e étage, bureau 560A
| Surface | 76 – 224 m² |
| Durée | Négociable |
| Loyer | 239,53 € /m²/an |
| Type de bien | Bureau |
| Aménagement | Meublé et équipé |
| Disponible | 15/12/2026 |
Spec suite delivering in Q4 2026 features 5 private offices, large corner conference room, spacious open area with 4 workstations, a pantry and reception.
- Le loyer comprend les services publics, les services de l’immeuble et les frais immobiliers.
- Principalement open space
- 4 bureaux privés
- 1 salle de conférence
- 4 postes de travail
- Espace en excellent état
5e étage, bureau 565
| Surface | 148 – 224 m² |
| Durée | Négociable |
| Loyer | 239,53 € /m²/an |
| Type de bien | Bureau |
| Aménagement | - |
| Disponible | 15/12/2026 |
Spec suite delivering in Q4 2026 features 4 private offices, conference room, open area with 4 workstations, copy/pantry room.
- Le loyer comprend les services publics, les services de l’immeuble et les frais immobiliers.
Aperçu du bien
Le 5500 Cherokee Avenue offre aux locataires un emplacement de bureau compétitif à l'intérieur du périphérique. Il bénéficie d'un emplacement central avec un accès facile à toutes les routes principales, ce qui facilite les déplacements. Situé à l'angle de Cherokee Ave et de Shawnee Road, l'établissement se trouve à sept minutes en voiture du métro Van Dorn.
- Cour
- Service de restauration
Informations sur l’immeuble
Présenté par
Cherokee I | 5500 Cherokee Ave
Hum, une erreur s’est produite lors de l’envoi de votre message. Veuillez réessayer.
Merci ! Votre message a été envoyé.








