Votre e-mail a été envoyé.
Certaines informations ont été traduites automatiquement.
Informations principales
- Situé juste à côté de Broadway.
- Surrounded by established retail, residential, and neighborhood services.
- Easily accessible via nearby public transportation options.
- Positioned in a dense, mixed-use neighborhood with strong local demand.
- Benefits from consistent pedestrian and vehicular traffic.
Tous les espace disponibles(1)
Afficher les loyers en
- Espace
- Surface
- Durée
- Loyer
- Type de bien
- Aménagement
- Disponible
- Located within a mixed-use commercial complex - On site parking garage - Centrally located located between 1-subway stations at 225th Street and 231st Street - Accessible via I-87/Major Deegan Expressway, exit 10/West 230th Street; and immediately off U.S. 9N/Broadway Exterior Street exit
- Entièrement aménagé comme Bureau standard
- Convient pour 6 à 19 personnes
- Principalement open space
- Très bien situé au centre des stations de métro.
| Espace | Surface | Durée | Loyer | Type de bien | Aménagement | Disponible |
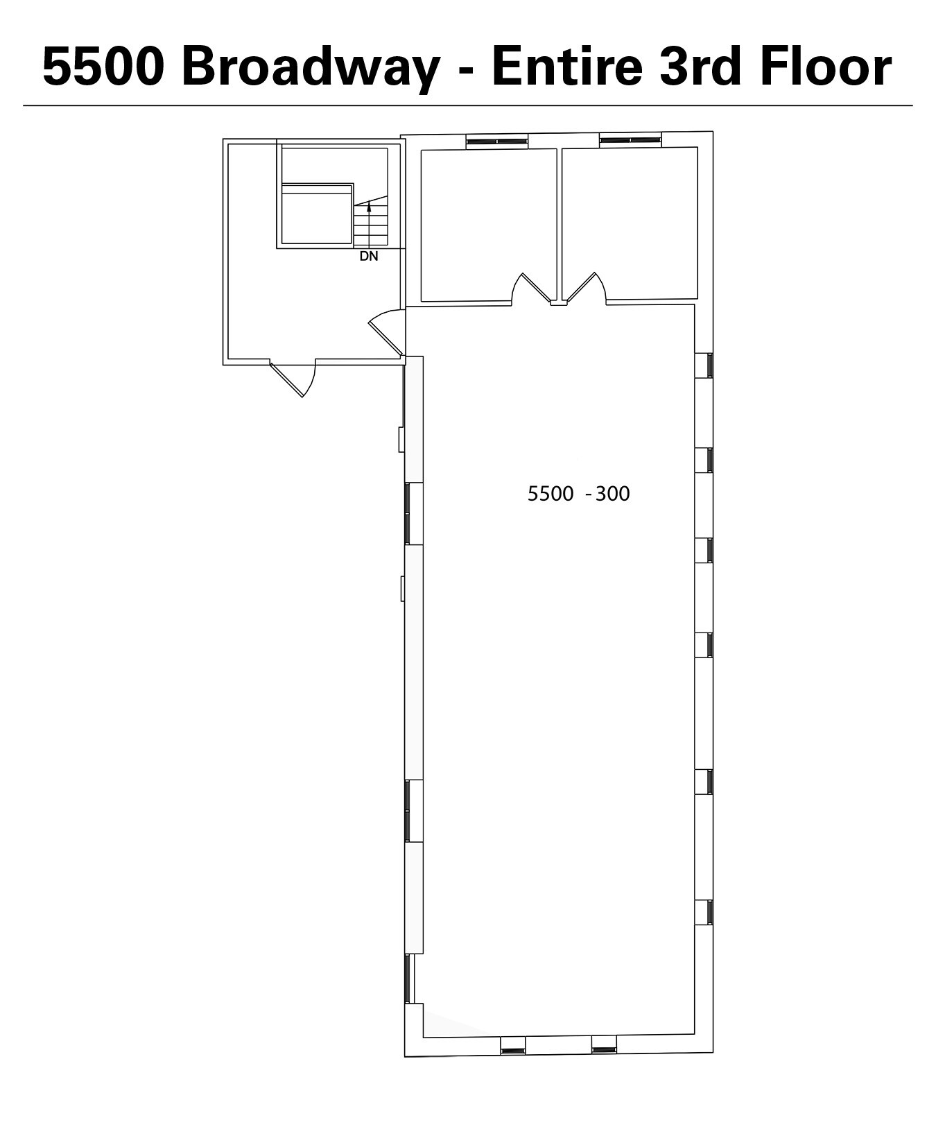
| Mezzanine, bureau 3rd Fl | 214 m² | Négociable | Sur demande Sur demande Sur demande Sur demande | Bureau | Construction achevée | Maintenant |
Mezzanine, bureau 3rd Fl
| Surface |
| 214 m² |
| Durée |
| Négociable |
| Loyer |
| Sur demande Sur demande Sur demande Sur demande |
| Type de bien |
| Bureau |
| Aménagement |
| Construction achevée |
| Disponible |
| Maintenant |
Mezzanine, bureau 3rd Fl
| Surface | 214 m² |
| Durée | Négociable |
| Loyer | Sur demande |
| Type de bien | Bureau |
| Aménagement | Construction achevée |
| Disponible | Maintenant |
- Located within a mixed-use commercial complex - On site parking garage - Centrally located located between 1-subway stations at 225th Street and 231st Street - Accessible via I-87/Major Deegan Expressway, exit 10/West 230th Street; and immediately off U.S. 9N/Broadway Exterior Street exit
- Entièrement aménagé comme Bureau standard
- Principalement open space
- Convient pour 6 à 19 personnes
- Très bien situé au centre des stations de métro.
Aperçu du bien
Cet établissement est situé juste à côté de Broadway. Il a été construit en 1921 et a été classé M1-1.
- Ligne d’autobus
- Métro
Informations sur l’immeuble
Présenté par
Broadway Crossing, 5500 Broadway | 5500 Broadway
Hum, une erreur s’est produite lors de l’envoi de votre message. Veuillez réessayer.
Merci ! Votre message a été envoyé.





