Votre e-mail a été envoyé.
11,540± SF Mixed-Use Building On 1.6± Acres 5430 Peach St Local commercial 1 072 m² À vendre Erie, PA 16509 4 298 600 € (4 009,51 €/m²)



Certaines informations ont été traduites automatiquement.
INFORMATIONS PRINCIPALES SUR L'INVESTISSEMENT
- 11,540± SF Mixed-Use Building On 1.6± Acres For Sale Or Lease
- At A Signalized Corner Intersection With 3 Curb Cuts For Easy Access
- Drive-Thru Window, Overhead Door & Public Utilities
- Along Greater Erie’s Major Retail/Service Corridor With 26,000 Average Daily Traffic
- Former Rite Aid Pharmacy – Built In 1999 – Interior Renovated 2020
- Abundant Parking With ±64 Spaces In Paved Lot
RÉSUMÉ ANALYTIQUE
TAXES ET FRAIS D’EXPLOITATION (RÉEL - 2025) Cliquez ici pour accéder à |
ANNUEL | ANNUEL PAR m² |
|---|---|---|
| Taxes |
-
|
-
|
| Frais d’exploitation |
-
|
-
|
| Total des frais |
$99,999
|
$9.99
|
TAXES ET FRAIS D’EXPLOITATION (RÉEL - 2025) Cliquez ici pour accéder à
| Taxes | |
|---|---|
| Annuel | - |
| Annuel par m² | - |
| Frais d’exploitation | |
|---|---|
| Annuel | - |
| Annuel par m² | - |
| Total des frais | |
|---|---|
| Annuel | $99,999 |
| Annuel par m² | $9.99 |
INFORMATIONS SUR L’IMMEUBLE
CARACTÉRISTIQUES
- Ligne d’autobus
- Terrain d’angle
- Voie de virage exclusive
- Visibilité de l’autoroute
- Enseigne sur pylône
- Signalisation
- Intersection avec signalisation
- Service au volant
DISPONIBILITÉ DE L’ESPACE
- ESPACE
- SURFACE
- TYPE DE BIEN
- POSTE
- DISPONIBLE
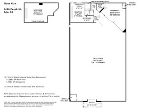
11,540± SF freestanding mixed-use building for sale or lease. Along Greater Erie’s major retail/service corridor. Former Rite Aid Pharmacy. Built in 1999. Drive-thru window, overhead door, abundant parking with ±64 spaces in paved lot & public utilities. Interior completely renovated In 2020. Excellent signage & visibility. At a signalized corner intersection for easy access with 2 curb cuts on Peach Street & 1 on Zimmerly Road. 26,000 average daily traffic along Peach Street (PennDOT AADT 2024 count year). On 1.602± acres zoned C1, Corridor Commercial. Offered for sale at $5,000,000 or for lease at $24.00/SF/YR – NNN.
| Espace | Surface | Type de bien | Poste | Disponible |
| 1er étage | 1 072 m² | Local commercial | - | Maintenant |
1er étage
| Surface |
| 1 072 m² |
| Type de bien |
| Local commercial |
| Poste |
| - |
| Disponible |
| Maintenant |
1er étage
| Surface | 1 072 m² |
| Type de bien | Local commercial |
| Poste | - |
| Disponible | Maintenant |
11,540± SF freestanding mixed-use building for sale or lease. Along Greater Erie’s major retail/service corridor. Former Rite Aid Pharmacy. Built in 1999. Drive-thru window, overhead door, abundant parking with ±64 spaces in paved lot & public utilities. Interior completely renovated In 2020. Excellent signage & visibility. At a signalized corner intersection for easy access with 2 curb cuts on Peach Street & 1 on Zimmerly Road. 26,000 average daily traffic along Peach Street (PennDOT AADT 2024 count year). On 1.602± acres zoned C1, Corridor Commercial. Offered for sale at $5,000,000 or for lease at $24.00/SF/YR – NNN.
PRINCIPAUX COMMERCES À PROXIMITÉ
TAXES FONCIÈRES
| Numéro de parcelle | 33-121-604.0-005.00 | Évaluation des aménagements | 2 648 969 € |
| Évaluation du terrain | 605 931 € | Évaluation totale | 3 254 900 € |
TAXES FONCIÈRES
Présenté par
11,540± SF Mixed-Use Building On 1.6± Acres | 5430 Peach St
Hum, une erreur s’est produite lors de l’envoi de votre message. Veuillez réessayer.
Merci ! Votre message a été envoyé.




