Connectez-vous/S’inscrire
Votre e-mail a été envoyé.
529 Austin St Bureau 209 m² À vendre Grand Prairie, TX 75051



Certaines informations ont été traduites automatiquement.
INFORMATIONS PRINCIPALES SUR L'INVESTISSEMENT
- 2,250 SF Office for Sale/Lease
- ADA Compliant Office Space
- Just Off SH-180 & Belt Line Rd
- Cubicle Space w/ 4 Private Offices
- Newly Built in 2023
RÉSUMÉ ANALYTIQUE
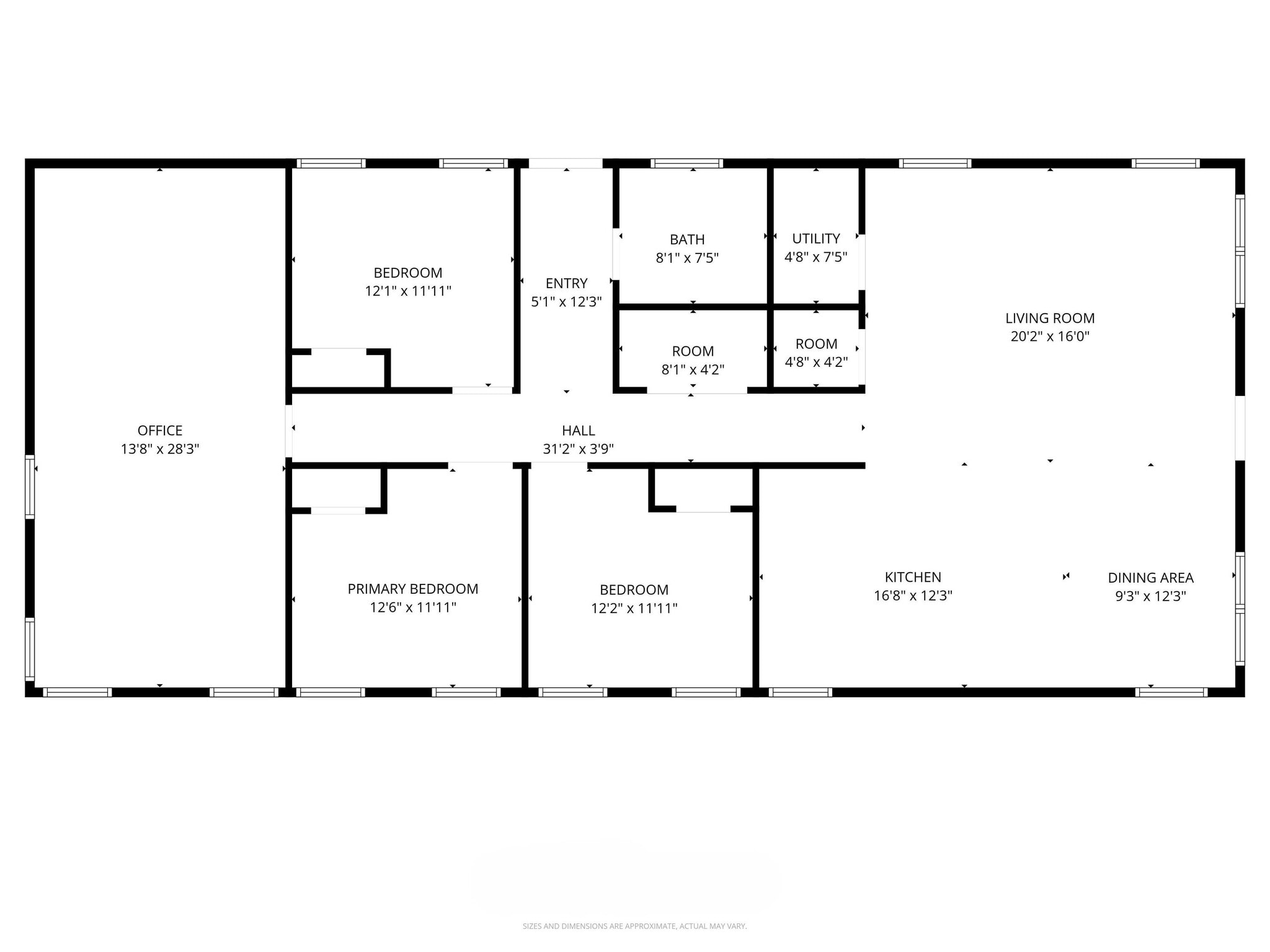
M&D CRE is pleased to offer a 2,250 SF professional office building for sale or lease in Grand Prairie, Texas. Constructed in 2023, this well-maintained asset features an open and versatile reception or collaborative work area, a full kitchen, four private offices, and one ADA-compliant restroom. The property provides four dedicated parking spaces, with additional side parking available, including motor home storage with full hookups. Strategically positioned just off State Highway 180 and Belt Line Road, the location offers excellent connectivity and convenient access. Major regional thoroughfares within a four-mile radius include Interstate 30, President George Bush Turnpike, State Highway 360, and State Highway 303—ensuring strong accessibility for employees, clients, and service providers. Contact Shane Hendrix for more information: 214.460.8926
DATA ROOM Cliquez ici pour accéder à
- Offering Memorandum
TAXES ET FRAIS D’EXPLOITATION (RÉEL - 2025) Cliquez ici pour accéder à |
ANNUEL | ANNUEL PAR m² |
|---|---|---|
| Taxes |
-
|
-
|
| Frais d’exploitation |
-
|
-
|
| Total des frais |
$99,999
|
$9.99
|
TAXES ET FRAIS D’EXPLOITATION (RÉEL - 2025) Cliquez ici pour accéder à
| Taxes | |
|---|---|
| Annuel | - |
| Annuel par m² | - |
| Frais d’exploitation | |
|---|---|
| Annuel | - |
| Annuel par m² | - |
| Total des frais | |
|---|---|
| Annuel | $99,999 |
| Annuel par m² | $9.99 |
INFORMATIONS SUR L’IMMEUBLE
Type de vente
Propriétaire occupant
Condition de vente
Location avec option d’achat
Type de bien
Surface de l’immeuble
209 m²
Classe d’immeuble
B
Année de construction
2023
Occupation
Mono
Hauteur du bâtiment
1 étage
Surface type par étage
209 m²
Coefficient d’occupation des sols de l’immeuble
0,37
Surface du lot
0,06 ha
Zonage
Office
Stationnement
4 places (19,14 places par 1 000 m² loué)
CARACTÉRISTIQUES
- Système de sécurité
- Accessible fauteuils roulants
- Espace d’entreposage
- Climatisation
DISPONIBILITÉ DE L’ESPACE
- ESPACE
- SURFACE
- TYPE DE BIEN
- ÉTAT
- DISPONIBLE
| Espace | Surface | Type de bien | État | Disponible |
| 1er étage | 209 m² | Bureau | Construction achevée | Déc. 2025 |
1er étage
| Surface |
| 209 m² |
| Type de bien |
| Bureau |
| État |
| Construction achevée |
| Disponible |
| Déc. 2025 |
1 sur 1
VIDÉOS
VISITE EXTÉRIEURE 3D MATTERPORT
VISITE 3D
PHOTOS
STREET VIEW
RUE
CARTE
1er étage
| Surface | 209 m² |
| Type de bien | Bureau |
| État | Construction achevée |
| Disponible | Déc. 2025 |
1 1
Walk Score®
Très praticable à pied (80)
1 sur 20
VIDÉOS
VISITE EXTÉRIEURE 3D MATTERPORT
VISITE 3D
PHOTOS
STREET VIEW
RUE
CARTE
1 sur 1
Présenté par
529 Austin St
Vous êtes déjà membre ? Connectez-vous
Hum, une erreur s’est produite lors de l’envoi de votre message. Veuillez réessayer.
Merci ! Votre message a été envoyé.


