Votre e-mail a été envoyé.
Brighton St. Workshops 525 S Brighton St Industriel/Logistique | 31–86 m² | À louer | Seattle, WA 98108



Certaines informations ont été traduites automatiquement.
INFORMATIONS PRINCIPALES
- Ateliers entièrement privés, murs du sol au plafond.
- La plupart des unités ont des portes extérieures enroulables 9 x 9
- Ateliers pour : artistes, fabricants de produits alimentaires commerciaux, autres petites entreprises qui fabriquent des « trucs »
CARACTÉRISTIQUES
TOUS LES ESPACES DISPONIBLES(2)
Afficher les loyers en
- ESPACE
- SURFACE
- DURÉE
- LOYER
- TYPE DE BIEN
- ÉTAT
- DISPONIBLE
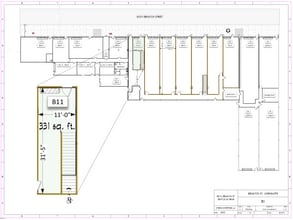
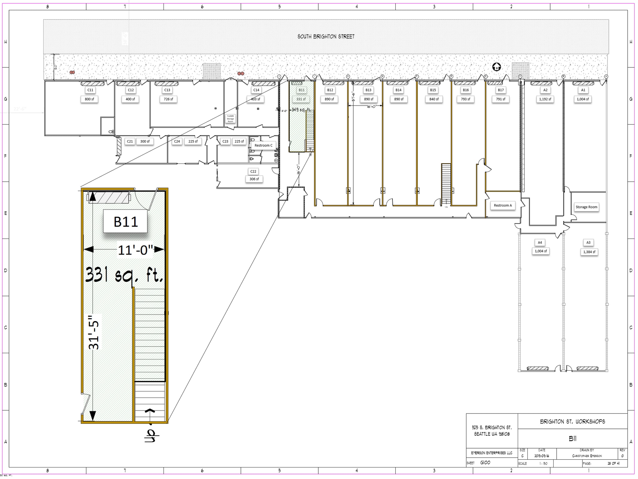
Has a 5' wide rollup door. Internet is available for $40/MO. Total rent is $800.46/MO for base rent, tax, insurance, and security. Completely private space. Will have split heat pump by early next year.
- Le loyer n’inclut pas certains frais immobiliers.
- Système de sécurité
- Toilettes dans les parties communes
- 1 accès plain-pied
- Vidéosurveillance
- Accessible fauteuils roulants
Up a flight of stairs and you have your own workshop for light manufacturing or artist studio. Larger equipment to be moved in can be lifted via a forklift (needs to fit in a standard 36" door). Should be ready mid 2026.
- Le loyer n’inclut pas certains frais immobiliers.
- Toilettes dans les parties communes
- Climatisation centrale
| Espace | Surface | Durée | Loyer | Type de bien | État | Disponible |
| 1er étage – B11 | 31 m² | 1-3 Ans | 219,92 € /m²/an 18,33 € /m²/mois 6 763 € /an 563,56 € /mois | Industriel/Logistique | Construction achevée | Maintenant |
| 2e étage – B21 | 56 m² | 1-3 Ans | 219,92 € /m²/an 18,33 € /m²/mois 12 259 € /an 1 022 € /mois | Industriel/Logistique | Construction achevée | 01/07/2026 |
1er étage – B11
| Surface |
| 31 m² |
| Durée |
| 1-3 Ans |
| Loyer |
| 219,92 € /m²/an 18,33 € /m²/mois 6 763 € /an 563,56 € /mois |
| Type de bien |
| Industriel/Logistique |
| État |
| Construction achevée |
| Disponible |
| Maintenant |
2e étage – B21
| Surface |
| 56 m² |
| Durée |
| 1-3 Ans |
| Loyer |
| 219,92 € /m²/an 18,33 € /m²/mois 12 259 € /an 1 022 € /mois |
| Type de bien |
| Industriel/Logistique |
| État |
| Construction achevée |
| Disponible |
| 01/07/2026 |
1er étage – B11
| Surface | 31 m² |
| Durée | 1-3 Ans |
| Loyer | 219,92 € /m²/an |
| Type de bien | Industriel/Logistique |
| État | Construction achevée |
| Disponible | Maintenant |
Has a 5' wide rollup door. Internet is available for $40/MO. Total rent is $800.46/MO for base rent, tax, insurance, and security. Completely private space. Will have split heat pump by early next year.
- Le loyer n’inclut pas certains frais immobiliers.
- 1 accès plain-pied
- Système de sécurité
- Vidéosurveillance
- Toilettes dans les parties communes
- Accessible fauteuils roulants
2e étage – B21
| Surface | 56 m² |
| Durée | 1-3 Ans |
| Loyer | 219,92 € /m²/an |
| Type de bien | Industriel/Logistique |
| État | Construction achevée |
| Disponible | 01/07/2026 |
Up a flight of stairs and you have your own workshop for light manufacturing or artist studio. Larger equipment to be moved in can be lifted via a forklift (needs to fit in a standard 36" door). Should be ready mid 2026.
- Le loyer n’inclut pas certains frais immobiliers.
- Climatisation centrale
- Toilettes dans les parties communes
APERÇU DU BIEN
Le bâtiment 2 (525 rue S. Brighton) est un entrepôt en bois à poutres épaisses construit à l'origine au milieu des années 1920. En 2019-2021, le bâtiment a été réparé, les murs extérieurs ont été remplacés si nécessaire, un nouveau toit, l'extérieur recouvert de T1-11, puis divisé en ateliers plus petits d'une superficie allant de 225 pieds carrés à 1 500 pieds carrés. Le caractère du bâtiment a été préservé autant que possible. Nous louons principalement aux petites entreprises (1 à 3 personnes) ; les nouvelles entreprises sont acceptées. L'utilisation de l'espace comprend, sans s'y limiter, le soudage, le travail du bois, la cuisine commerciale et l'espace à usage personnel. Nous ne louons pas pour le stockage. Certains espaces peuvent être combinés pour créer une plus grande surface. ### Lorsque vous envoyez un e-mail (BOUTON DE MESSAGE ROUGE), veuillez indiquer : exactement quel espace vous intéresse ; la durée du bail que vous souhaitez ; comment vous allez utiliser l'espace ; et toute autre information que vous jugerez utile. ### ** COURTIERS : Aucuns frais de courtage ne seront payés par nous, vous devrez les confier à votre client.
FAITS SUR L’INSTALLATION MANUFACTURE
OCCUPANTS
- ÉTAGE
- NOM DE L’OCCUPANT
- SECTEUR D’ACTIVITÉ
- 1er
- Anika Studio Art
- Manufacture
- 1er
- Botonical Ware
- Manufacture
- 1er
- Drink Addition
- Hébergement et restauration
- 1er
- Haxan Sauce
- Hébergement et restauration
- 1er
- Ibanez Painting
- Services
- 1er
- Maraki Injera
- Hébergement et restauration
- 1er
- Qin Quot LLC
- Services
- 1er
- Tom's Chocolates
- Hébergement et restauration
- 1er
- White Wolf Foods LLC
- Hébergement et restauration
Présenté par
Brighton St. Workshops | 525 S Brighton St
Hum, une erreur s’est produite lors de l’envoi de votre message. Veuillez réessayer.
Merci ! Votre message a été envoyé.


