Votre e-mail a été envoyé.
Certaines informations ont été traduites automatiquement.
DISPONIBILITÉ DE L’ESPACE (1)
Afficher le tarif en
- ESPACE
- SURFACE
- PLAFOND
- DURÉE
- LOYER
- TYPE DE LOYER
| Espace | Surface | Plafond | Durée | Loyer | Type de loyer | |
| 1er étage | 97 m² | 3,66 mètres - 4,27 mètres | 5-10 Ans | 206,24 € /m²/an 17,19 € /m²/mois 20 022 € /an 1 669 € /mois | Triple net (NNN) |
1er étage
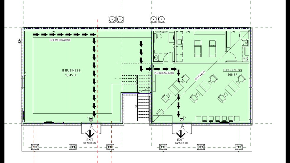
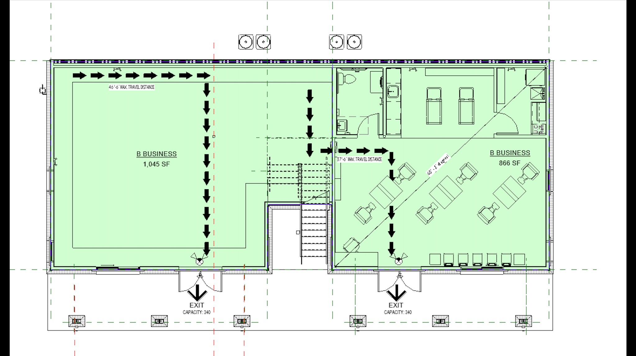
This 1,045 SF retail shell space offers an exceptional opportunity in a thriving community setting. Its flexible layout makes it ideal for restaurant use, providing ample room for a welcoming dining environment, or for medical services, offering convenience to nearby residents seeking healthcare options. Our company will provide a minimum tenant uplift allowance of $50,000.00 to build out the space to your design. This space is ground level and ADA compliant. With its prime location and adaptable design, this space is perfectly positioned to serve the growing needs of the surrounding community.
- Le loyer ne comprend pas les services publics, les frais immobiliers ou les services de l’immeuble.
- Contigu et aligné avec d’autres locaux commerciaux
- Espace en excellent état
- Plafonds finis: 3,66 mètres - 4,27 mètres
- 1,045 SF retail shell space in prime neighborhood
- Close to 700 homes
- Ideal for restaurant or medical office use
- Flexible layout ready for your custom build-out
Types de loyers
Le montant et le type de loyer que l’occupant (locataire) est tenu de payer au propriétaire (bailleur) sur la durée du bail sont négociés avant la signature du bail par les deux parties. Le type de loyer varie selon les services fournis. Par exemple, le prix d’un loyer triple net est habituellement inférieur à celui d’un bail à service complet puisque l’occupant est tenu d’assumer des dépenses supplémentaires par rapport au loyer de base. Contacter le broker chargé de l’annonce pour bien comprendre les coûts associés ou les dépenses supplémentaires pour chaque type de loyer.
1. Service complet: Un loyer qui comprend des services d’immeuble standards normaux fournis par le propriétaire dans le cadre d’une location annuelle de base.
2. Double net (NN): L’occupant paie seulement deux des frais de l’immeuble. Le propriétaire et l’occupant déterminent ces frais spécifiques avant la signature du bail.
3. Triple net (NNN): Un bail selon lequel l’occupant est responsable de tous les frais liés à sa part proportionnelle d’occupation de l’immeuble.
4. Brut modifié: Le brut modifié est un type général de bail dans lequel l’occupant est en général responsable de sa part proportionnelle d’une ou de plusieurs dépenses. C’est le propriétaire qui paie les frais restants. Consultez la liste ci-dessous pour connaître les structures de loyers bruts modifiés les plus courantes : 4. Plus services publics: Un type de bail brut modifié, où l’occupant est responsable à hauteur de sa part proportionnelle des services publics en plus du loyer. 4. Plus nettoyage: Un type de bail brut modifié, où l’occupant est responsable à hauteur de sa part proportionnelle du nettoyage en plus du loyer. 4. Plus électricité: Un type de bail brut modifié, où l’occupant est responsable à hauteur de sa part proportionnelle du coût de la consommation électrique en plus du loyer. 4. Plus électricité et nettoyage: Un type de bail brut modifié, où l’occupant est responsable à hauteur de sa part proportionnelle du coût de la consommation électrique et du nettoyage en plus du loyer. 4. Plus services publics et charges: Un type de bail brut modifié où l’occupant est responsable à hauteur de sa part proportionnelle des services publics et du coût de nettoyage en plus du loyer. 4. Bail industriel brut: Un type de bail brut modifié dans lequel l’occupant paie un ou plusieurs des frais en plus du loyer. Le propriétaire et l’occupant déterminent ces frais spécifiques avant la signature du bail.
5. Électricité à la charge de l’occupant: Le propriétaire paie pour tous les services et l’occupant est responsable de sa propre utilisation de l’éclairage et des prises électriques dans l’espace qu’il occupe.
6. Négociable ou sur demande: Cette option est utilisée lorsque le contact de location n’indique pas le type de loyer ou de service.
7. À déterminer: À déterminer : utilisé pour les immeubles dont le type de services ou de loyer n’est pas connu, souvent quand l’immeuble n’est pas encore construit.
PLAN DU SITE
INFORMATIONS SUR L’IMMEUBLE
| Espace total disponible | 97 m² | Surface commerciale utile | 376 m² |
| Type de bien | Local commercial | Année de construction | 2023 |
| Sous-type de bien | Bien à usage mixte |
| Espace total disponible | 97 m² |
| Type de bien | Local commercial |
| Sous-type de bien | Bien à usage mixte |
| Surface commerciale utile | 376 m² |
| Année de construction | 2023 |
À PROPOS DU BIEN
Newly constructed building located in close proximity to 700 homes, the site benefits from strong built-in foot traffic and neighborhood visibility. Available for office/retail use. Parking is free and close by.
Présenté par
520 Meritage St
Hum, une erreur s’est produite lors de l’envoi de votre message. Veuillez réessayer.
Merci ! Votre message a été envoyé.





