Votre e-mail a été envoyé.
Certaines informations ont été traduites automatiquement.
Informations principales
- Services de câble haut débit et de fibre Spectrum, Frontier et Crown Castle Fiber + disponibles
- Stationnement en surface et couvert disponible sur la propriété
- On-site tenant canteen
- Gestion sur site et boîte de dépôt FedEx, USPS et UPS
- Lobby Renovations in progress
Tous les espaces disponibles(4)
Afficher les loyers en
- Espace
- Surface
- Durée
- Loyer
- Type de bien
- Aménagement
- Disponible
- Le loyer comprend les services publics, les services de l’immeuble et les frais immobiliers.
Standard office space
- Le loyer comprend les services publics, les services de l’immeuble et les frais immobiliers.
- Principalement open space
- 2 salles de conférence
- Standard office space
- 2 conference rooms.
- Partiellement aménagé comme Bureau standard
- 2 bureaux privés
- Climatisation centrale
- 2 private offices.
Heavy private office count here, total of seven(7), reception area, conference room and break room. Previous tenant was a law firm.
- Le loyer comprend les services publics, les services de l’immeuble et les frais immobiliers.
- Principalement open space
- 1 salle de conférence
- Seven (7) private offices
- One (1) conference room
- Entièrement aménagé comme Bureau standard
- 7 bureaux privés
- Standard office space
- Reception area
- Break room
- Le loyer comprend les services publics, les services de l’immeuble et les frais immobiliers.
- Principalement open space
- 1 salle de conférence
- 4 private offices.
- Double door entry off elevator lobby.
- Entièrement aménagé comme Bureau standard
- 4 bureaux privés
- Climatisation centrale
- 1 conference room.
| Espace | Surface | Durée | Loyer | Type de bien | Aménagement | Disponible |
| 2e étage, bureau 250 | 831 m² | Négociable | 298,37 € /m²/an 24,86 € /m²/mois 247 838 € /an 20 653 € /mois | Bureau | - | 01/02/2027 |
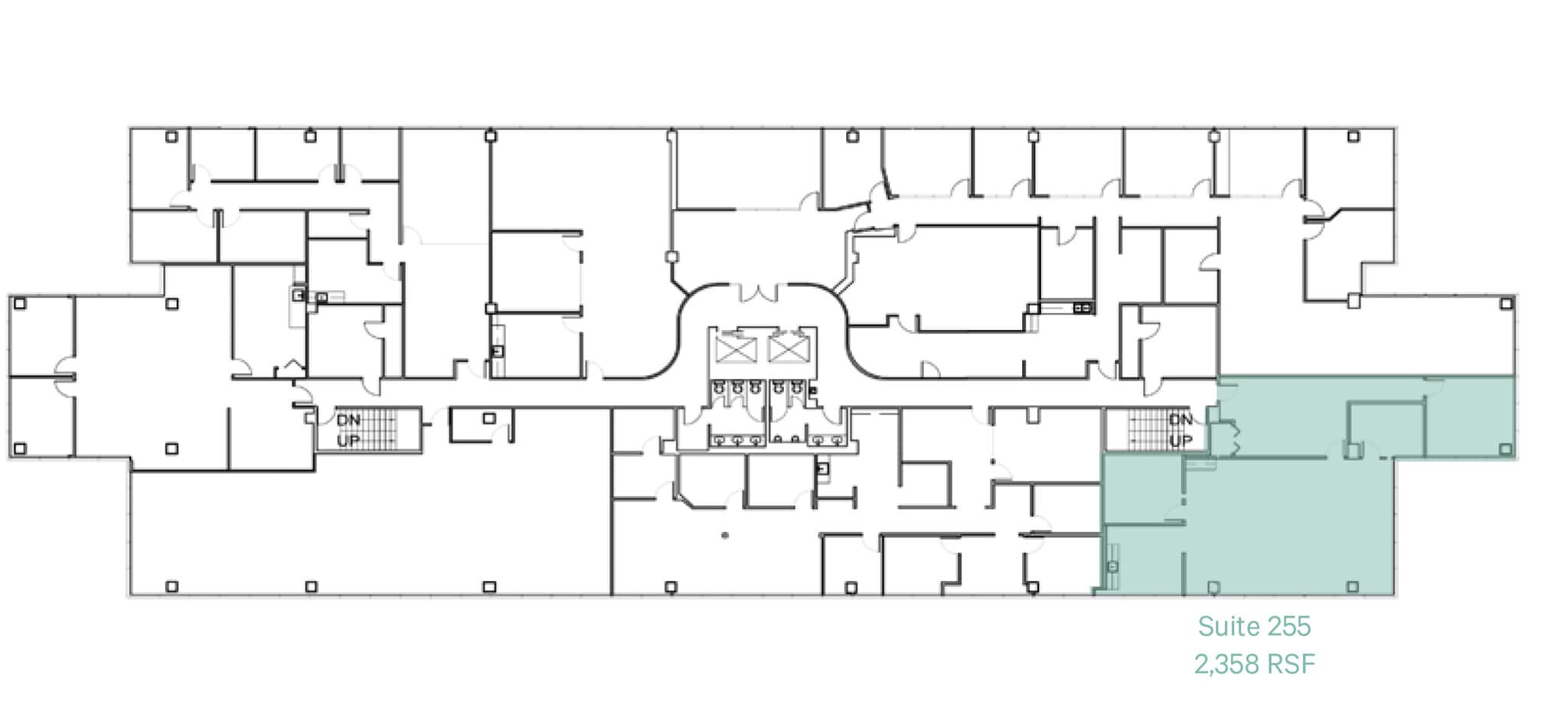
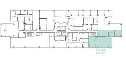
| 2e étage, bureau 255 | 219 m² | Négociable | 298,37 € /m²/an 24,86 € /m²/mois 65 362 € /an 5 447 € /mois | Bureau | Construction partielle | Maintenant |
| 2e étage, bureau 270 | 212 m² | Négociable | 298,37 € /m²/an 24,86 € /m²/mois 63 117 € /an 5 260 € /mois | Bureau | Construction achevée | 01/09/2026 |
| 3e étage, bureau 375 | 380 m² | Négociable | 298,37 € /m²/an 24,86 € /m²/mois 113 261 € /an 9 438 € /mois | Bureau | Construction achevée | Maintenant |
2e étage, bureau 250
| Surface |
| 831 m² |
| Durée |
| Négociable |
| Loyer |
| 298,37 € /m²/an 24,86 € /m²/mois 247 838 € /an 20 653 € /mois |
| Type de bien |
| Bureau |
| Aménagement |
| - |
| Disponible |
| 01/02/2027 |
2e étage, bureau 255
| Surface |
| 219 m² |
| Durée |
| Négociable |
| Loyer |
| 298,37 € /m²/an 24,86 € /m²/mois 65 362 € /an 5 447 € /mois |
| Type de bien |
| Bureau |
| Aménagement |
| Construction partielle |
| Disponible |
| Maintenant |
2e étage, bureau 270
| Surface |
| 212 m² |
| Durée |
| Négociable |
| Loyer |
| 298,37 € /m²/an 24,86 € /m²/mois 63 117 € /an 5 260 € /mois |
| Type de bien |
| Bureau |
| Aménagement |
| Construction achevée |
| Disponible |
| 01/09/2026 |
3e étage, bureau 375
| Surface |
| 380 m² |
| Durée |
| Négociable |
| Loyer |
| 298,37 € /m²/an 24,86 € /m²/mois 113 261 € /an 9 438 € /mois |
| Type de bien |
| Bureau |
| Aménagement |
| Construction achevée |
| Disponible |
| Maintenant |
2e étage, bureau 250
| Surface | 831 m² |
| Durée | Négociable |
| Loyer | 298,37 € /m²/an |
| Type de bien | Bureau |
| Aménagement | - |
| Disponible | 01/02/2027 |
- Le loyer comprend les services publics, les services de l’immeuble et les frais immobiliers.
2e étage, bureau 255
| Surface | 219 m² |
| Durée | Négociable |
| Loyer | 298,37 € /m²/an |
| Type de bien | Bureau |
| Aménagement | Construction partielle |
| Disponible | Maintenant |
Standard office space
- Le loyer comprend les services publics, les services de l’immeuble et les frais immobiliers.
- Partiellement aménagé comme Bureau standard
- Principalement open space
- 2 bureaux privés
- 2 salles de conférence
- Climatisation centrale
- Standard office space
- 2 private offices.
- 2 conference rooms.
2e étage, bureau 270
| Surface | 212 m² |
| Durée | Négociable |
| Loyer | 298,37 € /m²/an |
| Type de bien | Bureau |
| Aménagement | Construction achevée |
| Disponible | 01/09/2026 |
Heavy private office count here, total of seven(7), reception area, conference room and break room. Previous tenant was a law firm.
- Le loyer comprend les services publics, les services de l’immeuble et les frais immobiliers.
- Entièrement aménagé comme Bureau standard
- Principalement open space
- 7 bureaux privés
- 1 salle de conférence
- Standard office space
- Seven (7) private offices
- Reception area
- One (1) conference room
- Break room
3e étage, bureau 375
| Surface | 380 m² |
| Durée | Négociable |
| Loyer | 298,37 € /m²/an |
| Type de bien | Bureau |
| Aménagement | Construction achevée |
| Disponible | Maintenant |
- Le loyer comprend les services publics, les services de l’immeuble et les frais immobiliers.
- Entièrement aménagé comme Bureau standard
- Principalement open space
- 4 bureaux privés
- 1 salle de conférence
- Climatisation centrale
- 4 private offices.
- 1 conference room.
- Double door entry off elevator lobby.
Aperçu du bien
Le Kennedy Center, situé dans le quartier des affaires de Westshore, est très visible depuis le boulevard Kennedy. Le Kennedy Center se trouve à proximité de commodités accessibles à pied, notamment Westshore Plaza, de restaurants, d'hôtels, de magasins de détail, de banques, ainsi que de quartiers résidentiels et de complexes. Le Kennedy Center bénéficie d'un excellent accès à l'autoroute des anciens combattants, à l'avenue W. Hillsborough, à la chaussée Courtney Campbell, à l'I-275 et se trouve à quelques minutes de l'aéroport international de Tampa, du centre-ville de Tampa, de l'aéroport de St. Pete/Clearwater et du quartier de Carillon/Gateway.
- Service de restauration
- Property Manager sur place
Informations sur l’immeuble
Présenté par
Kennedy Center | 5100 W Kennedy Blvd
Hum, une erreur s’est produite lors de l’envoi de votre message. Veuillez réessayer.
Merci ! Votre message a été envoyé.





