Votre e-mail a été envoyé.
Certaines informations ont été traduites automatiquement.
Informations principales
- Complexe commercial d'un étage situé à l'intersection principale de Strathmore, avec un accès facile et une excellente exposition à l'autoroute 1
- Site PAD CRU
- Centres médicaux à proximité
- Options de démisage disponibles
Disponibilité de l’espace (3)
Afficher le tarif en
- Espace
- Surface
- Durée
- Loyer
- Type de loyer
| Espace | Surface | Durée | Loyer | Type de loyer | ||
| 1er étage, bureau H | 169 m² | 1-10 Ans | 167,81 € /m²/an 13,98 € /m²/mois 28 374 € /an 2 364 € /mois | Triple net (NNN) | ||
| 1er étage, bureau P | 106 m² | Négociable | 167,81 € /m²/an 13,98 € /m²/mois 17 773 € /an 1 481 € /mois | Triple net (NNN) | ||
| 1er étage, bureau Pad Site | 1 802 m² | Négociable | Sur demande Sur demande Sur demande Sur demande | Triple net (NNN) |
1er étage, bureau H
1,820 square foot fully built out retail space. Contact listing agent for additional information.
- Le loyer ne comprend pas les services publics, les frais immobiliers ou les services de l’immeuble.
- Entièrement aménagé comme Local commercial standard
- Contigu et aligné avec d’autres locaux commerciaux
- Ventilation et chauffage centraux
- Newly renovated lighting and signage.
- Drive thru potential.
- Located on prime corner with high traffic.
1er étage, bureau P
1,140 square foot retail space. Contact listing agent for additional information and availability.
- Le loyer ne comprend pas les services publics, les frais immobiliers ou les services de l’immeuble.
- Entièrement aménagé comme Local commercial standard
- Contigu et aligné avec d’autres locaux commerciaux
- Popular neighboring national tenants.
- Newly renovated lighting and signage.
1er étage, bureau Pad Site
19,397 square foot pad site. Contact listing agent for additional information.
- Le loyer ne comprend pas les services publics, les frais immobiliers ou les services de l’immeuble.
- Entièrement aménagé comme Local commercial standard
- L’espace est une parcelle indépendante de ce bien
- Popular neighboring tenants.
- Newly renovated lighting and signage.
Types de loyers
Le montant et le type de loyer que l’occupant (locataire) est tenu de payer au propriétaire (bailleur) sur la durée du bail sont négociés avant la signature du bail par les deux parties. Le type de loyer varie selon les services fournis. Par exemple, le prix d’un loyer triple net est habituellement inférieur à celui d’un bail à service complet puisque l’occupant est tenu d’assumer des dépenses supplémentaires par rapport au loyer de base. Contacter le broker chargé de l’annonce pour bien comprendre les coûts associés ou les dépenses supplémentaires pour chaque type de loyer.
1. Service complet: Un loyer qui comprend des services d’immeuble standards normaux fournis par le propriétaire dans le cadre d’une location annuelle de base.
2. Double net (NN): L’occupant paie seulement deux des frais de l’immeuble. Le propriétaire et l’occupant déterminent ces frais spécifiques avant la signature du bail.
3. Triple net (NNN): Un bail selon lequel l’occupant est responsable de tous les frais liés à sa part proportionnelle d’occupation de l’immeuble.
4. Brut modifié: Le brut modifié est un type général de bail dans lequel l’occupant est en général responsable de sa part proportionnelle d’une ou de plusieurs dépenses. C’est le propriétaire qui paie les frais restants. Consultez la liste ci-dessous pour connaître les structures de loyers bruts modifiés les plus courantes : 4. Plus services publics: Un type de bail brut modifié, où l’occupant est responsable à hauteur de sa part proportionnelle des services publics en plus du loyer. 4. Plus nettoyage: Un type de bail brut modifié, où l’occupant est responsable à hauteur de sa part proportionnelle du nettoyage en plus du loyer. 4. Plus électricité: Un type de bail brut modifié, où l’occupant est responsable à hauteur de sa part proportionnelle du coût de la consommation électrique en plus du loyer. 4. Plus électricité et nettoyage: Un type de bail brut modifié, où l’occupant est responsable à hauteur de sa part proportionnelle du coût de la consommation électrique et du nettoyage en plus du loyer. 4. Plus services publics et charges: Un type de bail brut modifié où l’occupant est responsable à hauteur de sa part proportionnelle des services publics et du coût de nettoyage en plus du loyer. 4. Bail industriel brut: Un type de bail brut modifié dans lequel l’occupant paie un ou plusieurs des frais en plus du loyer. Le propriétaire et l’occupant déterminent ces frais spécifiques avant la signature du bail.
5. Électricité à la charge de l’occupant: Le propriétaire paie pour tous les services et l’occupant est responsable de sa propre utilisation de l’éclairage et des prises électriques dans l’espace qu’il occupe.
6. Négociable ou sur demande: Cette option est utilisée lorsque le contact de location n’indique pas le type de loyer ou de service.
7. À déterminer: À déterminer : utilisé pour les immeubles dont le type de services ou de loyer n’est pas connu, souvent quand l’immeuble n’est pas encore construit.
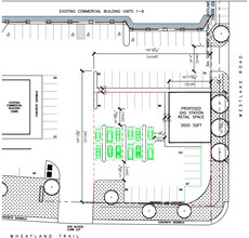
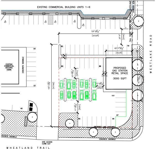
Plan du site
Informations sur l’immeuble
| Espace total disponible | 2 077 m² | Surface commerciale utile | 4 213 m² |
| Type de bien | Local commercial | Année de construction | 2000 |
| Sous-type de bien | Bien à usage mixte | Ratio de stationnement | 0,18/1 000 m² |
| Espace total disponible | 2 077 m² |
| Type de bien | Local commercial |
| Sous-type de bien | Bien à usage mixte |
| Surface commerciale utile | 4 213 m² |
| Année de construction | 2000 |
| Ratio de stationnement | 0,18/1 000 m² |
À propos du bien
Opportunité commerciale de premier ordre au Country Plaza de Strathmore, offrant une excellente visibilité le long de la Transcanadienne 1. Situé dans une zone commerciale animée, cet espace est idéal pour diverses entreprises. Un grand parking, le zonage C-SC et les centres médicaux à proximité renforcent l'attrait. La possession est négociable. Contactez-nous pour plus de détails sur les prix. Ne manquez pas cet espace très fréquenté et à fort impact !
- Banque
- Supérette
- Terrain d’angle
- Service de restauration
- Visibilité de l’autoroute
- Enseigne sur pylône
- Restaurant
- Système de sécurité
- Signalisation
- Panneau monumental
- Climatisation
- Détecteur de fumée
Principaux commerces à proximité
Présenté par
Country Plaza | 510 Hwy-1 Hwy
Hum, une erreur s’est produite lors de l’envoi de votre message. Veuillez réessayer.
Merci ! Votre message a été envoyé.








