Votre e-mail a été envoyé.
Certaines informations ont été traduites automatiquement.
INFORMATIONS PRINCIPALES
- Complexe de 3 bâtiments avec parking sécurisé
- Situé sur la très visible avenue Rosecrans, à l'est du boulevard Long Beach
- Grand espace principal ouvert, bureaux privés et salle de conférence
- 17 places de stationnement sur un terrain paysager de 19 000 pieds carrés
- Auparavant utilisé comme centre de remise en forme et bureaux pour une association caritative pour enfants
DISPONIBILITÉ DE L’ESPACE (1)
Afficher le tarif en
- ESPACE
- SURFACE
- DURÉE
- LOYER
- TYPE DE LOYER
| Espace | Surface | Durée | Loyer | Type de loyer | ||
| 1er étage | 686 m² | Négociable | 177,03 € /m²/an 14,75 € /m²/mois 121 411 € /an 10 118 € /mois | Triple net (NNN) |
1er étage
Vacant commercial property available for an owner-user or investor. Great property on a busy street that has a variety of potential uses. Gated Office Complex formerly occupied by the Children’s Institute Inc (Cii) which was formerly Rosecrans Shopping Center in the City of Compton. Fully built out modern office space features new construction with an remote-controlled gate for secure access to parking lot including 17 parking spaces on a 19,000 sf landscaped lot. The interior include carpeting, polished concrete floors, ADA bathrooms, lots of electrical service, ample window glass space, and signage rights to the large monument sign. Location Features: Great space for non-profit corporations and local, regional, and national companies looking for a safe, secure, and clean property for their business. Just a few blocks away from Long Beach Blvd with lots of restaurants and local businesses.
- Le loyer ne comprend pas les services publics, les frais immobiliers ou les services de l’immeuble.
- Climatisation centrale
- Bureaux cloisonnés
- Toilettes privées
- Espace d’angle
- Plafonds suspendus
- Plafond apparent
- CVC disponible en-dehors des heures ouvrables
- Gated Office Complex with Large Parking Lot
- Signage rights to the large monument sign.
- ADA bathrooms and upgraded electrical service
Types de loyers
Le montant et le type de loyer que l’occupant (locataire) est tenu de payer au propriétaire (bailleur) sur la durée du bail sont négociés avant la signature du bail par les deux parties. Le type de loyer varie selon les services fournis. Par exemple, le prix d’un loyer triple net est habituellement inférieur à celui d’un bail à service complet puisque l’occupant est tenu d’assumer des dépenses supplémentaires par rapport au loyer de base. Contacter le broker chargé de l’annonce pour bien comprendre les coûts associés ou les dépenses supplémentaires pour chaque type de loyer.
1. Service complet: Un loyer qui comprend des services d’immeuble standards normaux fournis par le propriétaire dans le cadre d’une location annuelle de base.
2. Double net (NN): L’occupant paie seulement deux des frais de l’immeuble. Le propriétaire et l’occupant déterminent ces frais spécifiques avant la signature du bail.
3. Triple net (NNN): Un bail selon lequel l’occupant est responsable de tous les frais liés à sa part proportionnelle d’occupation de l’immeuble.
4. Brut modifié: Le brut modifié est un type général de bail dans lequel l’occupant est en général responsable de sa part proportionnelle d’une ou de plusieurs dépenses. C’est le propriétaire qui paie les frais restants. Consultez la liste ci-dessous pour connaître les structures de loyers bruts modifiés les plus courantes : 4. Plus services publics: Un type de bail brut modifié, où l’occupant est responsable à hauteur de sa part proportionnelle des services publics en plus du loyer. 4. Plus nettoyage: Un type de bail brut modifié, où l’occupant est responsable à hauteur de sa part proportionnelle du nettoyage en plus du loyer. 4. Plus électricité: Un type de bail brut modifié, où l’occupant est responsable à hauteur de sa part proportionnelle du coût de la consommation électrique en plus du loyer. 4. Plus électricité et nettoyage: Un type de bail brut modifié, où l’occupant est responsable à hauteur de sa part proportionnelle du coût de la consommation électrique et du nettoyage en plus du loyer. 4. Plus services publics et charges: Un type de bail brut modifié où l’occupant est responsable à hauteur de sa part proportionnelle des services publics et du coût de nettoyage en plus du loyer. 4. Bail industriel brut: Un type de bail brut modifié dans lequel l’occupant paie un ou plusieurs des frais en plus du loyer. Le propriétaire et l’occupant déterminent ces frais spécifiques avant la signature du bail.
5. Électricité à la charge de l’occupant: Le propriétaire paie pour tous les services et l’occupant est responsable de sa propre utilisation de l’éclairage et des prises électriques dans l’espace qu’il occupe.
6. Négociable ou sur demande: Cette option est utilisée lorsque le contact de location n’indique pas le type de loyer ou de service.
7. À déterminer: À déterminer : utilisé pour les immeubles dont le type de services ou de loyer n’est pas connu, souvent quand l’immeuble n’est pas encore construit.
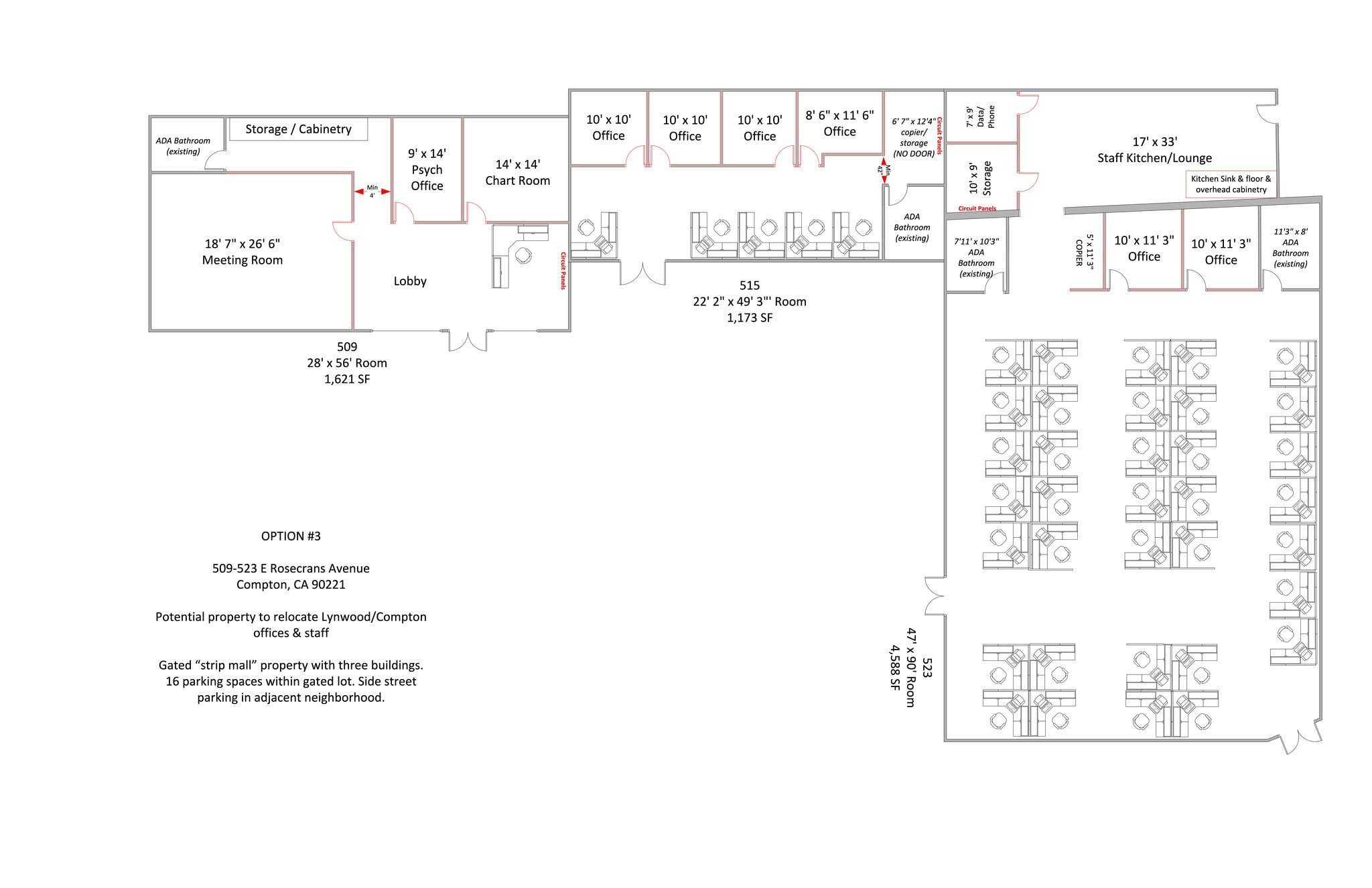
PLAN DU SITE
INFORMATIONS SUR L’IMMEUBLE
| Espace total disponible | 686 m² | Surface commerciale utile | 686 m² |
| Type de bien | Local commercial | Année de construction/rénovation | 1950/2016 |
| Sous-type de bien | Bien à usage mixte | Ratio de stationnement | 0,21/1 000 m² |
| Espace total disponible | 686 m² |
| Type de bien | Local commercial |
| Sous-type de bien | Bien à usage mixte |
| Surface commerciale utile | 686 m² |
| Année de construction/rénovation | 1950/2016 |
| Ratio de stationnement | 0,21/1 000 m² |
À PROPOS DU BIEN
Complexe de bureaux et de commerces de détail fermé dans la ville de Compton. Les bureaux modernes entièrement construits et le centre de remise en forme de commerce de détail ont été construits récemment avec un portail télécommandé pour un accès sécurisé au parking. Il était auparavant exploité comme un centre de remise en forme et des bureaux pour une grande société à but non lucratif. Grande salle de sport et petits espaces privés. Convient à de nombreuses utilisations : commerce de détail, bureau, complexe sportif, centre de fitness, association caritative, etc. Complexe de bureaux fermé autrefois occupé par le Children's Institute Inc (Cii), qui était auparavant le centre commercial Rosecrans dans la ville de Compton. Les bureaux modernes entièrement construits comprennent une nouvelle construction avec un portail télécommandé pour un accès sécurisé au parking, dont 17 places de stationnement sur un terrain paysager de 19 000 pieds carrés. L'intérieur comprend de la moquette, des sols en béton poli, des salles de bains ADA, de nombreux services électriques, de nombreux espaces vitrés et des droits de signalisation sur le grand panneau du monument. Espace idéal pour les entreprises à but non lucratif et les entreprises locales, régionales et nationales à la recherche d'une propriété sûre, sécurisée et propre pour leur entreprise. À quelques pâtés de maisons du boulevard Long Beach, qui regorge de restaurants et d'entreprises locales. Les frais NNN ne sont que de 0,15 $/SF/MOIS
- Ligne d’autobus
- Installations de conférences
- Terrain d’angle
- Terrain clôturé
- Enseigne sur pylône
- Système de sécurité
- Signalisation
- CVC contrôlé par l’occupant
- Espace d’entreposage
- Éclairage encastré
- Panneau monumental
PRINCIPAUX COMMERCES À PROXIMITÉ
Présenté par
509-523 E Rosecrans Ave
Hum, une erreur s’est produite lors de l’envoi de votre message. Veuillez réessayer.
Merci ! Votre message a été envoyé.





