Connectez-vous/S’inscrire
Votre e-mail a été envoyé.
High Exposure Building - Downtown Springfield 505 S A St Local commercial 366 m² À vendre Springfield, OR 97477 671 676 € (1 836,85 €/m²)



Certaines informations ont été traduites automatiquement.
INFORMATIONS PRINCIPALES SUR L'INVESTISSEMENT
- Bâtiment autonome situé à l'angle signalisé de la 5e rue et de la rue S. A
- Plus de 20 places de stationnement
- La propriété pourrait facilement être convertie en bureaux ou en commerces
RÉSUMÉ ANALYTIQUE
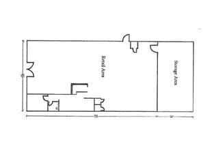
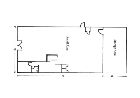
Le 505 S A Street, Springfield, est un bâtiment autonome situé au cœur du centre-ville
Springfield. Le bâtiment de 3 936 pieds carrés se trouve à un coin balisé de la 5e rue
de Dutch Bros Coffee and Chow. La propriété s'étend sur 0,51 acres et ne compte qu'un seul pâté de maisons
au sud du principal corridor commercial de Springfield (Main Street). Main Street abrite
certains des magasins préférés de Springfield : Washburn Cafe, Tavern on Main, Lovely,
et bien plus encore. La propriété dispose d'un grand parking, d'un accès facile et le plan d'étage comprend
flexibilité qui permet de répondre à de multiples utilisations.
Springfield. Le bâtiment de 3 936 pieds carrés se trouve à un coin balisé de la 5e rue
de Dutch Bros Coffee and Chow. La propriété s'étend sur 0,51 acres et ne compte qu'un seul pâté de maisons
au sud du principal corridor commercial de Springfield (Main Street). Main Street abrite
certains des magasins préférés de Springfield : Washburn Cafe, Tavern on Main, Lovely,
et bien plus encore. La propriété dispose d'un grand parking, d'un accès facile et le plan d'étage comprend
flexibilité qui permet de répondre à de multiples utilisations.
INFORMATIONS SUR L’IMMEUBLE
Type de vente
Investissement ou propriétaire occupant
Condition de vente
Location avec option d’achat
Type de bien
Local commercial
Sous-type de bien
Surface de l’immeuble
366 m²
Classe d’immeuble
C
Année de construction
1953
Prix
671 676 €
Prix par m²
1 836,85 €
Occupation
Mono
Hauteur du bâtiment
1 étage
Coefficient d’occupation des sols de l’immeuble
0,18
Surface du lot
0,21 ha
Zone de développement économique [USA]
Oui
Zonage
MCU (Mixed Use Comm.)
Stationnement
30 places (82,04 places par 1 000 m² loué)
Façade
CARACTÉRISTIQUES
- Ligne d’autobus
- Enseigne sur pylône
- Signalisation
- Intersection avec signalisation
- Service au volant
DISPONIBILITÉ DE L’ESPACE
- ESPACE
- SURFACE
- TYPE DE BIEN
- POSTE
- DISPONIBLE
| Espace | Surface | Type de bien | Poste | Disponible |
| 1er étage | 366 m² | Bureaux/Local commercial | - | Maintenant |
1er étage
| Surface |
| 366 m² |
| Type de bien |
| Bureaux/Local commercial |
| Poste |
| - |
| Disponible |
| Maintenant |
1 sur 13
VIDÉOS
VISITE EXTÉRIEURE 3D MATTERPORT
VISITE 3D
PHOTOS
STREET VIEW
RUE
CARTE
1er étage
| Surface | 366 m² |
| Type de bien | Bureaux/Local commercial |
| Poste | - |
| Disponible | Maintenant |
1 1
Walk Score®
Idéal pour les promeneurs (91)
Bike Score®
Très praticable en vélo (74)
PRINCIPAUX COMMERCES À PROXIMITÉ
TAXES FONCIÈRES
| Numéro de parcelle | 1418779 | Évaluation des aménagements | 0 € |
| Évaluation du terrain | 0 € | Évaluation totale | 472 283 € |
TAXES FONCIÈRES
Numéro de parcelle
1418779
Évaluation du terrain
0 €
Évaluation des aménagements
0 €
Évaluation totale
472 283 €
1 sur 14
VIDÉOS
VISITE EXTÉRIEURE 3D MATTERPORT
VISITE 3D
PHOTOS
STREET VIEW
RUE
CARTE
1 sur 1
Présenté par
High Exposure Building - Downtown Springfield | 505 S A St
Vous êtes déjà membre ? Connectez-vous
Hum, une erreur s’est produite lors de l’envoi de votre message. Veuillez réessayer.
Merci ! Votre message a été envoyé.



