Votre e-mail a été envoyé.
Certaines informations ont été traduites automatiquement.
Tous les espaces disponibles(4)
Afficher les loyers en
- Espace
- Surface
- Durée
- Loyer
- Type de bien
- Aménagement
- Disponible
- Loyer annoncé plus part proportionnelle des coûts de la consommation électrique
Internal restroom. 3 private offices, IT room, break room.
- Partiellement aménagé comme Bureau standard
- Climatisation centrale
- 3 bureaux privés
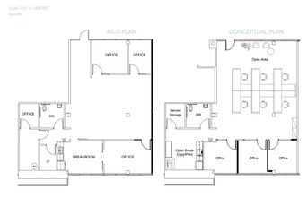
5 private offices, conference room, break room, and open bullpen area. Contiguous with Suite 404 for 5,967 SF
- Loyer annoncé plus part proportionnelle des services publics
- 5 bureaux privés
- Peut être associé à un ou plusieurs espaces supplémentaires pour obtenir jusqu’à 554 m² d’espace adjacent.
- Partiellement aménagé comme Bureau standard
- 1 salle de conférence
Large open area, 6 offices, breakdown,IT/storage closet
- Loyer annoncé plus part proportionnelle des services publics
- 6 bureaux privés
- Climatisation centrale
- Entièrement aménagé comme Bureau standard
- Peut être associé à un ou plusieurs espaces supplémentaires pour obtenir jusqu’à 554 m² d’espace adjacent.
| Espace | Surface | Durée | Loyer | Type de bien | Aménagement | Disponible |
| 2e étage, bureau 207 | 150 m² | Négociable | 291,94 € /m²/an 24,33 € /m²/mois 43 721 € /an 3 643 € /mois | Bureau | - | 01/05/2026 |
| 2e étage, bureau 210 | 168 m² | Négociable | Sur demande Sur demande Sur demande Sur demande | Bureaux/Médical | Construction partielle | Maintenant |
| 4e étage, bureau 400 | 260 m² | Négociable | 291,94 € /m²/an 24,33 € /m²/mois 75 807 € /an 6 317 € /mois | Bureaux/Médical | Construction partielle | Maintenant |
| 4e étage, bureau 404 | 295 m² | Négociable | 291,94 € /m²/an 24,33 € /m²/mois 86 032 € /an 7 169 € /mois | Bureaux/Médical | Construction achevée | Maintenant |
2e étage, bureau 207
| Surface |
| 150 m² |
| Durée |
| Négociable |
| Loyer |
| 291,94 € /m²/an 24,33 € /m²/mois 43 721 € /an 3 643 € /mois |
| Type de bien |
| Bureau |
| Aménagement |
| - |
| Disponible |
| 01/05/2026 |
2e étage, bureau 210
| Surface |
| 168 m² |
| Durée |
| Négociable |
| Loyer |
| Sur demande Sur demande Sur demande Sur demande |
| Type de bien |
| Bureaux/Médical |
| Aménagement |
| Construction partielle |
| Disponible |
| Maintenant |
4e étage, bureau 400
| Surface |
| 260 m² |
| Durée |
| Négociable |
| Loyer |
| 291,94 € /m²/an 24,33 € /m²/mois 75 807 € /an 6 317 € /mois |
| Type de bien |
| Bureaux/Médical |
| Aménagement |
| Construction partielle |
| Disponible |
| Maintenant |
4e étage, bureau 404
| Surface |
| 295 m² |
| Durée |
| Négociable |
| Loyer |
| 291,94 € /m²/an 24,33 € /m²/mois 86 032 € /an 7 169 € /mois |
| Type de bien |
| Bureaux/Médical |
| Aménagement |
| Construction achevée |
| Disponible |
| Maintenant |
2e étage, bureau 207
| Surface | 150 m² |
| Durée | Négociable |
| Loyer | 291,94 € /m²/an |
| Type de bien | Bureau |
| Aménagement | - |
| Disponible | 01/05/2026 |
- Loyer annoncé plus part proportionnelle des coûts de la consommation électrique
2e étage, bureau 210
| Surface | 168 m² |
| Durée | Négociable |
| Loyer | Sur demande |
| Type de bien | Bureaux/Médical |
| Aménagement | Construction partielle |
| Disponible | Maintenant |
Internal restroom. 3 private offices, IT room, break room.
- Partiellement aménagé comme Bureau standard
- 3 bureaux privés
- Climatisation centrale
4e étage, bureau 400
| Surface | 260 m² |
| Durée | Négociable |
| Loyer | 291,94 € /m²/an |
| Type de bien | Bureaux/Médical |
| Aménagement | Construction partielle |
| Disponible | Maintenant |
5 private offices, conference room, break room, and open bullpen area. Contiguous with Suite 404 for 5,967 SF
- Loyer annoncé plus part proportionnelle des services publics
- Partiellement aménagé comme Bureau standard
- 5 bureaux privés
- 1 salle de conférence
- Peut être associé à un ou plusieurs espaces supplémentaires pour obtenir jusqu’à 554 m² d’espace adjacent.
4e étage, bureau 404
| Surface | 295 m² |
| Durée | Négociable |
| Loyer | 291,94 € /m²/an |
| Type de bien | Bureaux/Médical |
| Aménagement | Construction achevée |
| Disponible | Maintenant |
Large open area, 6 offices, breakdown,IT/storage closet
- Loyer annoncé plus part proportionnelle des services publics
- Entièrement aménagé comme Bureau standard
- 6 bureaux privés
- Peut être associé à un ou plusieurs espaces supplémentaires pour obtenir jusqu’à 554 m² d’espace adjacent.
- Climatisation centrale
Aperçu du bien
Taux de stationnement : 5,0/1 000 Atrium avec cour et aménagement paysager luxuriant Beaux espaces communs Barista de café sur place avec plats de charcuterie Expérience de bureau conviviale et professionnelle Gestion réactive sur site - The Brookhollow Group Stationnement abondant sur place avec parking couvert également disponible Récipiendaire de nombreuses désignations Energy Star, dont la plus récente a été nommée championne de l'énergie de la ville de San Diego en 2020
- Atrium
- Ligne d’autobus
- Cour
- Property Manager sur place
Informations sur l’immeuble
Présenté par
Mission Courtyard | 5030 Camino de la Siesta
Hum, une erreur s’est produite lors de l’envoi de votre message. Veuillez réessayer.
Merci ! Votre message a été envoyé.







