Votre e-mail a été envoyé.
Certaines informations ont été traduites automatiquement.
Informations principales
- À distance de marche de nombreuses commodités, notamment CVS, Chipotle, Panera, Tropical Smoothie Café et plus encore
- Energy Star Certified building.
- Ride On bus stop in front of building. 3.5 Miles to Shady Grove METRO
- Located Right off I-270 & Montgomery Village Ave
- Ample free parking
- Local ownership and management
Tous les espaces disponibles(4)
Afficher les loyers en
- Espace
- Surface
- Durée
- Loyer
- Type de bien
- Aménagement
- Disponible
Shell condition, ready for build-out. Suitable for medical, retail, or office uses. Located in Designated HUB Zone. Ample free parking.
- Loyer annoncé plus part proportionnelle des coûts de la consommation électrique et du nettoyage
- Principalement open space
Fully built-out ground floor medical office suite with direct entrance from on-site parking.
- Loyer annoncé plus part proportionnelle des coûts de la consommation électrique et du nettoyage
Fully built-out medical office suite. On-site doctor's lounge. Located in Designated HUB Zone. Ample free parking.
- Loyer annoncé plus part proportionnelle des coûts de nettoyage
- Plan d’étage avec bureaux fermés
- Entièrement aménagé comme Cabinet médical standard
Fully built-out former therapy office. On-site doctor's lounge. Located in Designated HUB Zone. Ample free parking.
- Loyer annoncé plus part proportionnelle des coûts de nettoyage
- Plan d’étage avec bureaux fermés
- Entièrement aménagé comme Cabinet médical standard
| Espace | Surface | Durée | Loyer | Type de bien | Aménagement | Disponible |
| 1er étage, bureau 103 | 129 m² | Négociable | 321,32 € /m²/an 26,78 € /m²/mois 41 464 € /an 3 455 € /mois | Bureaux/Local commercial | Espace brut | Maintenant |
| 1er étage, bureau 106 | 156 m² | Négociable | 321,32 € /m²/an 26,78 € /m²/mois 50 121 € /an 4 177 € /mois | Médical | - | 01/03/2027 |
| 2e étage, bureau 216 | 127 m² | Négociable | 270,83 € /m²/an 22,57 € /m²/mois 34 495 € /an 2 875 € /mois | Bureaux/Médical | Construction achevée | Maintenant |
| 3e étage, bureau 300 | 182 m² | Négociable | 270,83 € /m²/an 22,57 € /m²/mois 49 390 € /an 4 116 € /mois | Bureaux/Médical | Construction achevée | Maintenant |
1er étage, bureau 103
| Surface |
| 129 m² |
| Durée |
| Négociable |
| Loyer |
| 321,32 € /m²/an 26,78 € /m²/mois 41 464 € /an 3 455 € /mois |
| Type de bien |
| Bureaux/Local commercial |
| Aménagement |
| Espace brut |
| Disponible |
| Maintenant |
1er étage, bureau 106
| Surface |
| 156 m² |
| Durée |
| Négociable |
| Loyer |
| 321,32 € /m²/an 26,78 € /m²/mois 50 121 € /an 4 177 € /mois |
| Type de bien |
| Médical |
| Aménagement |
| - |
| Disponible |
| 01/03/2027 |
2e étage, bureau 216
| Surface |
| 127 m² |
| Durée |
| Négociable |
| Loyer |
| 270,83 € /m²/an 22,57 € /m²/mois 34 495 € /an 2 875 € /mois |
| Type de bien |
| Bureaux/Médical |
| Aménagement |
| Construction achevée |
| Disponible |
| Maintenant |
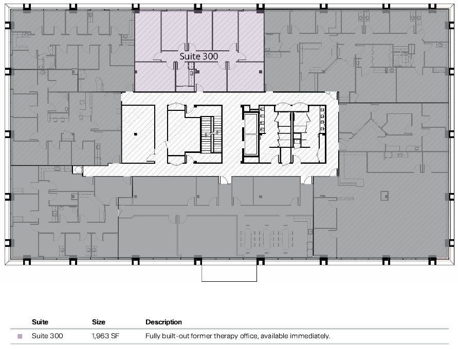
3e étage, bureau 300
| Surface |
| 182 m² |
| Durée |
| Négociable |
| Loyer |
| 270,83 € /m²/an 22,57 € /m²/mois 49 390 € /an 4 116 € /mois |
| Type de bien |
| Bureaux/Médical |
| Aménagement |
| Construction achevée |
| Disponible |
| Maintenant |
1er étage, bureau 103
| Surface | 129 m² |
| Durée | Négociable |
| Loyer | 321,32 € /m²/an |
| Type de bien | Bureaux/Local commercial |
| Aménagement | Espace brut |
| Disponible | Maintenant |
Shell condition, ready for build-out. Suitable for medical, retail, or office uses. Located in Designated HUB Zone. Ample free parking.
- Loyer annoncé plus part proportionnelle des coûts de la consommation électrique et du nettoyage
- Principalement open space
1er étage, bureau 106
| Surface | 156 m² |
| Durée | Négociable |
| Loyer | 321,32 € /m²/an |
| Type de bien | Médical |
| Aménagement | - |
| Disponible | 01/03/2027 |
Fully built-out ground floor medical office suite with direct entrance from on-site parking.
- Loyer annoncé plus part proportionnelle des coûts de la consommation électrique et du nettoyage
2e étage, bureau 216
| Surface | 127 m² |
| Durée | Négociable |
| Loyer | 270,83 € /m²/an |
| Type de bien | Bureaux/Médical |
| Aménagement | Construction achevée |
| Disponible | Maintenant |
Fully built-out medical office suite. On-site doctor's lounge. Located in Designated HUB Zone. Ample free parking.
- Loyer annoncé plus part proportionnelle des coûts de nettoyage
- Entièrement aménagé comme Cabinet médical standard
- Plan d’étage avec bureaux fermés
3e étage, bureau 300
| Surface | 182 m² |
| Durée | Négociable |
| Loyer | 270,83 € /m²/an |
| Type de bien | Bureaux/Médical |
| Aménagement | Construction achevée |
| Disponible | Maintenant |
Fully built-out former therapy office. On-site doctor's lounge. Located in Designated HUB Zone. Ample free parking.
- Loyer annoncé plus part proportionnelle des coûts de nettoyage
- Entièrement aménagé comme Cabinet médical standard
- Plan d’étage avec bureaux fermés
Aperçu du bien
L'établissement dispose de suites médicales prêtes à emménager. Situé dans une zone HUB désignée. Il s'agit d'un bâtiment certifié Energy Star.
- Certifié Energy Star
- Wi-Fi
- Climatisation
Informations sur l’immeuble
Occupants
- Étage
- Nom de l’occupant
- Secteur d’activité
- 1er
- Embrace Orthodontics LLC
- Santé et assistance sociale
- 1er
- First National Bank
- Finance et assurances
- 3e
- Foster Medical Care, Kamala A. Foster, M.D.
- Santé et assistance sociale
- 1er
- Green Pharmacy
- Enseigne
- 1er
- Huntington Learning Center
- Services éducatifs
- 2e
- International Pediatrics
- Santé et assistance sociale
- 2e
- Medstar
- Santé et assistance sociale
- 1er
- OneMain Financial
- Finance et assurances
- 3e
- Pain Spine & Rehab Associates LLC
- Santé et assistance sociale
- 3e
- Park Pediatrics & Travel Clnc
- Santé et assistance sociale
Présenté par
Société non fournie
501 North Frederick | 501 N Frederick Ave
Hum, une erreur s’est produite lors de l’envoi de votre message. Veuillez réessayer.
Merci ! Votre message a été envoyé.












