Votre e-mail a été envoyé.
Certaines informations ont été traduites automatiquement.
CARACTÉRISTIQUES
TOUS LES ESPACES DISPONIBLES(4)
Afficher les loyers en
- ESPACE
- SURFACE
- DURÉE
- LOYER
- TYPE DE BIEN
- ÉTAT
- DISPONIBLE
Ceiling height 14'-21'. 2 loading docks & 2 drive-in doors
- Le loyer ne comprend pas les services publics, les frais immobiliers ou les services de l’immeuble.
- Peut être associé à un ou plusieurs espaces supplémentaires pour obtenir jusqu’à 6 857 m² d’espace adjacent.
- 2 accès plain-pied
- 2 quais de chargement
Ceiling height is 16'6". Exposed brick & beam office w/1 loading dock
- Le loyer ne comprend pas les services publics, les frais immobiliers ou les services de l’immeuble.
- 1 quai de chargement
- Peut être associé à un ou plusieurs espaces supplémentaires pour obtenir jusqu’à 6 857 m² d’espace adjacent.
Ceiling height is 16'6". Exposed brick and beam office with 1 loading dock
- Le loyer ne comprend pas les services publics, les frais immobiliers ou les services de l’immeuble.
- 1 quai de chargement
- Peut être associé à un ou plusieurs espaces supplémentaires pour obtenir jusqu’à 6 857 m² d’espace adjacent.
Available on 1/31/26. Ceiling height 17' and 21' 3 loading docks & 1 large drive-in door
- Le loyer ne comprend pas les services publics, les frais immobiliers ou les services de l’immeuble.
- Peut être associé à un ou plusieurs espaces supplémentaires pour obtenir jusqu’à 6 857 m² d’espace adjacent.
- 1 accès plain-pied
- 3 quais de chargement
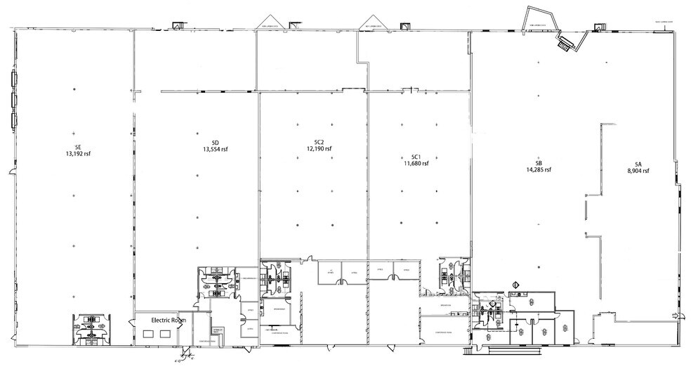
| Espace | Surface | Durée | Loyer | Type de bien | État | Disponible |
| 1er étage – AB | 2 154 m² | Négociable | 89,32 € /m²/an 7,44 € /m²/mois 192 425 € /an 16 035 € /mois | Industriel/Logistique | - | Maintenant |
| 1er étage – C1 | 1 085 m² | Négociable | 89,32 € /m²/an 7,44 € /m²/mois 96 922 € /an 8 077 € /mois | Industriel/Logistique | - | 31/01/2026 |
| 1er étage – C2 | 1 132 m² | Négociable | 89,32 € /m²/an 7,44 € /m²/mois 101 154 € /an 8 430 € /mois | Industriel/Logistique | - | 31/01/2026 |
| 1er étage – DE | 2 485 m² | Négociable | 96,19 € /m²/an 8,02 € /m²/mois 239 014 € /an 19 918 € /mois | Industriel/Logistique | - | Maintenant |
1er étage – AB
| Surface |
| 2 154 m² |
| Durée |
| Négociable |
| Loyer |
| 89,32 € /m²/an 7,44 € /m²/mois 192 425 € /an 16 035 € /mois |
| Type de bien |
| Industriel/Logistique |
| État |
| - |
| Disponible |
| Maintenant |
1er étage – C1
| Surface |
| 1 085 m² |
| Durée |
| Négociable |
| Loyer |
| 89,32 € /m²/an 7,44 € /m²/mois 96 922 € /an 8 077 € /mois |
| Type de bien |
| Industriel/Logistique |
| État |
| - |
| Disponible |
| 31/01/2026 |
1er étage – C2
| Surface |
| 1 132 m² |
| Durée |
| Négociable |
| Loyer |
| 89,32 € /m²/an 7,44 € /m²/mois 101 154 € /an 8 430 € /mois |
| Type de bien |
| Industriel/Logistique |
| État |
| - |
| Disponible |
| 31/01/2026 |
1er étage – DE
| Surface |
| 2 485 m² |
| Durée |
| Négociable |
| Loyer |
| 96,19 € /m²/an 8,02 € /m²/mois 239 014 € /an 19 918 € /mois |
| Type de bien |
| Industriel/Logistique |
| État |
| - |
| Disponible |
| Maintenant |
1er étage – AB
| Surface | 2 154 m² |
| Durée | Négociable |
| Loyer | 89,32 € /m²/an |
| Type de bien | Industriel/Logistique |
| État | - |
| Disponible | Maintenant |
Ceiling height 14'-21'. 2 loading docks & 2 drive-in doors
- Le loyer ne comprend pas les services publics, les frais immobiliers ou les services de l’immeuble.
- 2 accès plain-pied
- Peut être associé à un ou plusieurs espaces supplémentaires pour obtenir jusqu’à 6 857 m² d’espace adjacent.
- 2 quais de chargement
1er étage – C1
| Surface | 1 085 m² |
| Durée | Négociable |
| Loyer | 89,32 € /m²/an |
| Type de bien | Industriel/Logistique |
| État | - |
| Disponible | 31/01/2026 |
Ceiling height is 16'6". Exposed brick & beam office w/1 loading dock
- Le loyer ne comprend pas les services publics, les frais immobiliers ou les services de l’immeuble.
- Peut être associé à un ou plusieurs espaces supplémentaires pour obtenir jusqu’à 6 857 m² d’espace adjacent.
- 1 quai de chargement
1er étage – C2
| Surface | 1 132 m² |
| Durée | Négociable |
| Loyer | 89,32 € /m²/an |
| Type de bien | Industriel/Logistique |
| État | - |
| Disponible | 31/01/2026 |
Ceiling height is 16'6". Exposed brick and beam office with 1 loading dock
- Le loyer ne comprend pas les services publics, les frais immobiliers ou les services de l’immeuble.
- Peut être associé à un ou plusieurs espaces supplémentaires pour obtenir jusqu’à 6 857 m² d’espace adjacent.
- 1 quai de chargement
1er étage – DE
| Surface | 2 485 m² |
| Durée | Négociable |
| Loyer | 96,19 € /m²/an |
| Type de bien | Industriel/Logistique |
| État | - |
| Disponible | Maintenant |
Available on 1/31/26. Ceiling height 17' and 21' 3 loading docks & 1 large drive-in door
- Le loyer ne comprend pas les services publics, les frais immobiliers ou les services de l’immeuble.
- 1 accès plain-pied
- Peut être associé à un ou plusieurs espaces supplémentaires pour obtenir jusqu’à 6 857 m² d’espace adjacent.
- 3 quais de chargement
APERÇU DU BIEN
Idéalement situé juste à l'extérieur du centre-ville de Franklin et juste à côté de la route 140. À environ 2,5 km des sorties 16 et 17 de la route 495. Près du Dean College et de la gare dans le centre-ville.
FAITS SUR L’INSTALLATION ENTREPÔT
Présenté par
5 Fisher St
Hum, une erreur s’est produite lors de l’envoi de votre message. Veuillez réessayer.
Merci ! Votre message a été envoyé.











