Votre e-mail a été envoyé.
Garden View Professional Center 499 N El Camino Real Bureaux/Médical | 434–802 m² | À louer | Encinitas, CA 92024



Certaines informations ont été traduites automatiquement.
Tous les espace disponibles(1)
Afficher les loyers en
- Espace
- Surface
- Durée
- Loyer
- Type de bien
- Aménagement
- Disponible
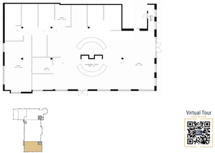
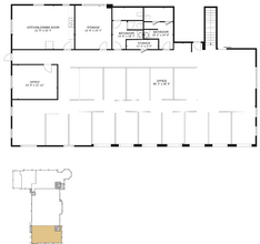
Suite A100 • Space Available: 4,668 SF - 8,630 SF • Suite Description: - Large medical office suite available with over 4,000 RSF on the first floor allowing patients and staff to simply drive up, park, and walk directly into the suite. Suite is connected via internal staircase and private elevator. - Suite can be demised as Landlord would create a vestibule separating the two floors. - Expansive window lines provide abundant natural light throughout both floors, creating an efficient, comfortable environment for multi-provider practices, specialty care, or wellness services. - Prominent building-top signage and a monument sign opportunity on high-traffic El Camino Real deliver outstanding exposure and branding for your practice. r connections to the rest of the property. Floor Plan: https://medwestrealty.com/wp-content/uploads/2026/01/MW-499-N-El-Camino-Real-SP1-1st-and-2nd-floor.png Virtual Tour: https://my.matterport.com/show/?m=nTcvjRT3Vh6
- Partiellement aménagé comme Cabinet médical standard
- Principalement open space
| Espace | Surface | Durée | Loyer | Type de bien | Aménagement | Disponible |
| 1er étage, bureau A100 | 434 – 802 m² | Négociable | Sur demande Sur demande Sur demande Sur demande | Bureaux/Médical | Construction partielle | Maintenant |
1er étage, bureau A100
| Surface |
| 434 – 802 m² |
| Durée |
| Négociable |
| Loyer |
| Sur demande Sur demande Sur demande Sur demande |
| Type de bien |
| Bureaux/Médical |
| Aménagement |
| Construction partielle |
| Disponible |
| Maintenant |
1er étage, bureau A100
| Surface | 434 – 802 m² |
| Durée | Négociable |
| Loyer | Sur demande |
| Type de bien | Bureaux/Médical |
| Aménagement | Construction partielle |
| Disponible | Maintenant |
Suite A100 • Space Available: 4,668 SF - 8,630 SF • Suite Description: - Large medical office suite available with over 4,000 RSF on the first floor allowing patients and staff to simply drive up, park, and walk directly into the suite. Suite is connected via internal staircase and private elevator. - Suite can be demised as Landlord would create a vestibule separating the two floors. - Expansive window lines provide abundant natural light throughout both floors, creating an efficient, comfortable environment for multi-provider practices, specialty care, or wellness services. - Prominent building-top signage and a monument sign opportunity on high-traffic El Camino Real deliver outstanding exposure and branding for your practice. r connections to the rest of the property. Floor Plan: https://medwestrealty.com/wp-content/uploads/2026/01/MW-499-N-El-Camino-Real-SP1-1st-and-2nd-floor.png Virtual Tour: https://my.matterport.com/show/?m=nTcvjRT3Vh6
- Partiellement aménagé comme Cabinet médical standard
- Principalement open space
Aperçu du bien
Garden View Professional Center is a highly visible, two-story medical and professional office building totaling ±34,000 SF along Encinitas’ main commercial corridor. The property offers strong corner exposure at El Camino Real and Garden View Road, providing excellent signage opportunities and easy access for patients and clients. The building features a Mediterranean architectural style, abundant surface parking, and suites designed to accommodate a wide range of medical and office users. Positioned within minutes of major retail amenities, residential communities, and regional thoroughfares, this location delivers high visibility, strong daily traffic counts, and a robust patient draw. The property sits in the heart of North County San Diego’s medical and commercial hub, making it ideal for established providers and growing practices. ------------------------ Property Features: PROMINENT LOCATION & VISIBILITY • Corner exposure at El Camino Real and Garden View Road • Excellent signage opportunities IDEAL MARKET & ACCESSIBILITY • The proximity to major throughfares enables this location to conveniently serve: • 317,000 patients within a 15 minute drive time • 160,770 patients within a 5 mile radius BUILDING HIGHLIGHTS • Strong tenant base including LabCorp, Rady’s and Simon Med Imaging • Office/medical building ideal for medical or professional tenants • Ample parking supporting both tenant and visitors • Strong road frontage/visibility along N. El Camino Real a key north-south arterial thoroughfare through Encinitas that connects to Interstate 5 • Available signage opportunities • Close proximity to Scripps Memorial Hospital Encinitas and other healthcare services
- Ligne d’autobus
- Signalisation
- Bureaux cloisonnés
Informations sur l’immeuble
Occupants
- Étage
- Nom de l’occupant
- Secteur d’activité
- 1er
- AAA
- Transport et entreposage
- 1er
- Children's Primary Care Medical Group, Inc.
- Santé et assistance sociale
- 2e
- Dental Office of James Lawson
- Santé et assistance sociale
- 1er
- LabCorp
- Santé et assistance sociale
- 2e
- OasisMD Lifestyle Healthcare
- Santé et assistance sociale
- 1er
- SimonMed Imaging
- Santé et assistance sociale
Présenté par
Garden View Professional Center | 499 N El Camino Real
Hum, une erreur s’est produite lors de l’envoi de votre message. Veuillez réessayer.
Merci ! Votre message a été envoyé.




