Votre e-mail a été envoyé.
Hannover Industrial Park Fremont, CA 94538 Espace disponible | 1 012–4 033 m² | Industriel/Logistique



Certaines informations ont été traduites automatiquement.
Informations principales sur le parc
- 19’6” - 22’ clear height
- Great proximity to I-880
- Market Ready Renovations Underway
- Sprinklered
- Shopping and dining nearby
Faits sur le parc
| Espace total disponible | 4 033 m² | Type de parc | Parc industriel |
| Espace total disponible | 4 033 m² |
| Type de parc | Parc industriel |
Tous les espaces disponibles(3)
Afficher les loyers en
- Espace
- Surface
- Durée
- Loyer
- Type de bien
- Aménagement
- Disponible
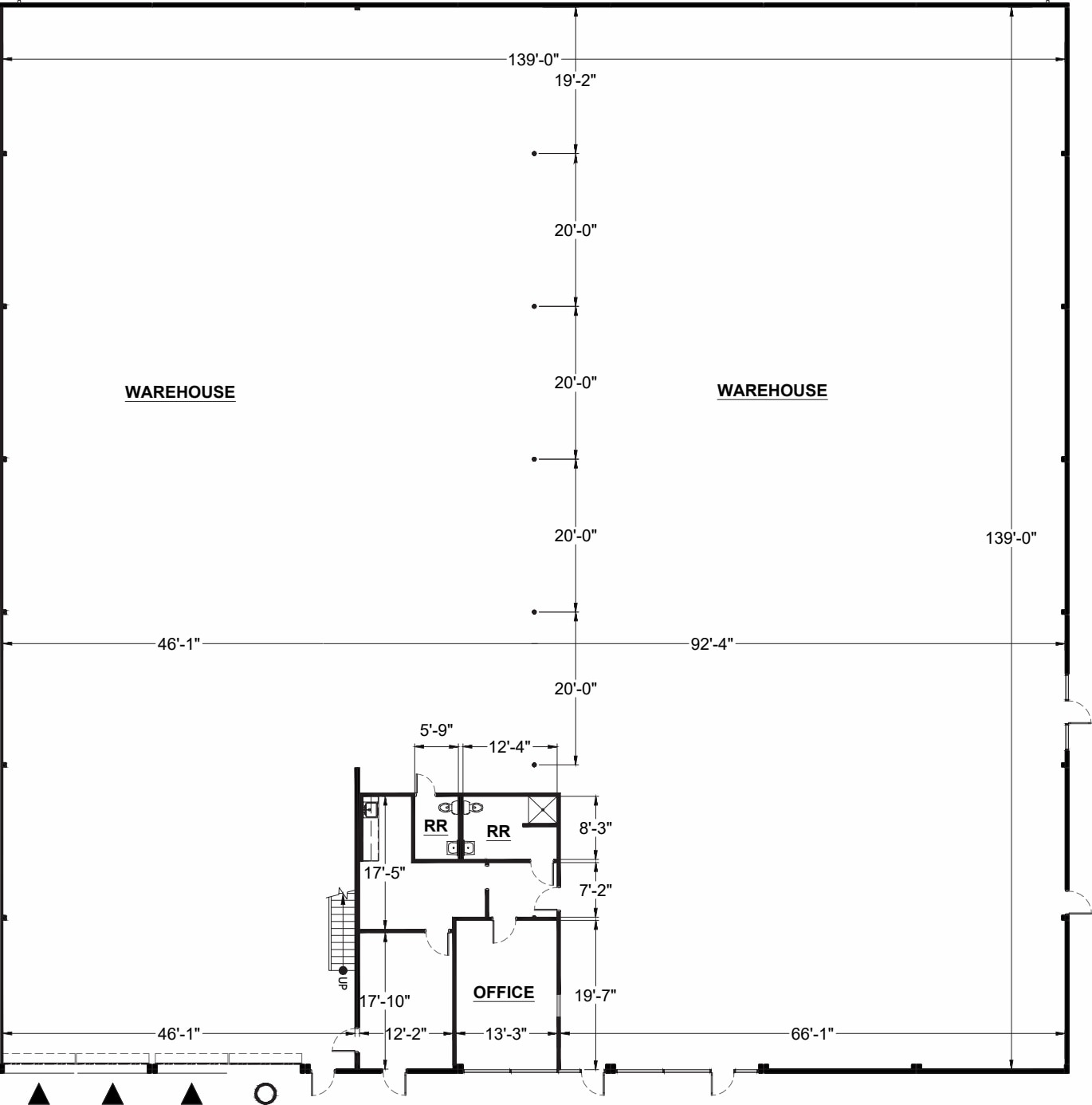
• 1,247 SF Office (plus 1,247 SF Mezzanine Office) • 10,273 SF Clear Span Warehouse • 3 Private Offices • Open Office Area • One Dock Door with Dock Leveler • One Grade Level Door • 20’ - 22’ Clear Height • Sprinklered • Power: 400amps @ 120/208v, 3 Phase • Great Proximity to I-880 • Available Now
- Le loyer ne comprend pas les services publics, les frais immobiliers ou les services de l’immeuble.
- 1 accès plain-pied
- Comprend 116 m² d’espace de bureau dédié
- 1 quai de chargement
• Market Ready Renovations Complete - including new lighting, new flooring and new paint • 1,247 SF Office (plus 1,247 SF Mezzanine Office) • 9,467 SF Clear Span Warehouse • 5,000 SF Paved and Secured Side Yard • 20’ - 22’ Clear Height • Sprinklered • Power: 600amps @ 120/208v, 3 Phase • Great Proximity to I-880 • Available Now
- Le loyer ne comprend pas les services publics, les frais immobiliers ou les services de l’immeuble.
- 2 accès plain-pied
- Cour
- 2 salles de conférence
- Comprend 116 m² d’espace de bureau dédié
- 1 quai de chargement
- 5 bureaux privés
- Hauteur libre de 20 à 22 pi
| Espace | Surface | Durée | Loyer | Type de bien | Aménagement | Disponible |
| 1er étage – 4755 | 1 012 m² | Négociable | 181,77 € /m²/an 15,15 € /m²/mois 183 972 € /an 15 331 € /mois | Industriel/Logistique | Construction partielle | Maintenant |
| 1er étage – 4775 | 1 070 m² | Négociable | 181,77 € /m²/an 15,15 € /m²/mois 194 543 € /an 16 212 € /mois | Industriel/Logistique | Construction achevée | Maintenant |
4755-4805 Hannover Pl - 1er étage – 4755
4755-4805 Hannover Pl - 1er étage – 4775
- Espace
- Surface
- Durée
- Loyer
- Type de bien
- Aménagement
- Disponible
19,013 SF warehouse I-880 frontage and signage 20’6” - 23’6” clear height Three dock doors with two dock levelers One grade-level door (with additional glassed-in grade) Break-room Restrooms with shower Potential side yard Ample parking Power: 1,200 amps @ 120/208 3-phase
- Le loyer ne comprend pas les services publics, les frais immobiliers ou les services de l’immeuble.
- 2 accès plain-pied
- 3 quais de chargement
- Comprend 184 m² d’espace de bureau dédié
- Espace en excellent état
| Espace | Surface | Durée | Loyer | Type de bien | Aménagement | Disponible |
| 1er étage – 4811 | 1 950 m² | Négociable | 181,77 € /m²/an 15,15 € /m²/mois 354 501 € /an 29 542 € /mois | Industriel/Logistique | Construction achevée | Maintenant |
4811-4817 Hannover Pl - 1er étage – 4811
4755-4805 Hannover Pl - 1er étage – 4755
| Surface | 1 012 m² |
| Durée | Négociable |
| Loyer | 181,77 € /m²/an |
| Type de bien | Industriel/Logistique |
| Aménagement | Construction partielle |
| Disponible | Maintenant |
• 1,247 SF Office (plus 1,247 SF Mezzanine Office) • 10,273 SF Clear Span Warehouse • 3 Private Offices • Open Office Area • One Dock Door with Dock Leveler • One Grade Level Door • 20’ - 22’ Clear Height • Sprinklered • Power: 400amps @ 120/208v, 3 Phase • Great Proximity to I-880 • Available Now
- Le loyer ne comprend pas les services publics, les frais immobiliers ou les services de l’immeuble.
- Comprend 116 m² d’espace de bureau dédié
- 1 accès plain-pied
- 1 quai de chargement
4755-4805 Hannover Pl - 1er étage – 4775
| Surface | 1 070 m² |
| Durée | Négociable |
| Loyer | 181,77 € /m²/an |
| Type de bien | Industriel/Logistique |
| Aménagement | Construction achevée |
| Disponible | Maintenant |
• Market Ready Renovations Complete - including new lighting, new flooring and new paint • 1,247 SF Office (plus 1,247 SF Mezzanine Office) • 9,467 SF Clear Span Warehouse • 5,000 SF Paved and Secured Side Yard • 20’ - 22’ Clear Height • Sprinklered • Power: 600amps @ 120/208v, 3 Phase • Great Proximity to I-880 • Available Now
- Le loyer ne comprend pas les services publics, les frais immobiliers ou les services de l’immeuble.
- Comprend 116 m² d’espace de bureau dédié
- 2 accès plain-pied
- 1 quai de chargement
- Cour
- 5 bureaux privés
- 2 salles de conférence
- Hauteur libre de 20 à 22 pi
4811-4817 Hannover Pl - 1er étage – 4811
| Surface | 1 950 m² |
| Durée | Négociable |
| Loyer | 181,77 € /m²/an |
| Type de bien | Industriel/Logistique |
| Aménagement | Construction achevée |
| Disponible | Maintenant |
19,013 SF warehouse I-880 frontage and signage 20’6” - 23’6” clear height Three dock doors with two dock levelers One grade-level door (with additional glassed-in grade) Break-room Restrooms with shower Potential side yard Ample parking Power: 1,200 amps @ 120/208 3-phase
- Le loyer ne comprend pas les services publics, les frais immobiliers ou les services de l’immeuble.
- Comprend 184 m² d’espace de bureau dédié
- 2 accès plain-pied
- Espace en excellent état
- 3 quais de chargement
Vue d’ensemble du parc
Situé sur l'Interstate 880, juste à côté de l'Auto Mall Parkway
Présenté par
Hannover Industrial Park | Fremont, CA 94538
Hum, une erreur s’est produite lors de l’envoi de votre message. Veuillez réessayer.
Merci ! Votre message a été envoyé.








