Votre e-mail a été envoyé.
4900-4906 Lankershim Blvd Local commercial | 584 m² | À louer | North Hollywood, CA 91601



Certaines informations ont été traduites automatiquement.
Informations principales
- Hauteur de dégagement intérieur de 18 pi
- Emplacement dans un coin difficile
- Cour arrière avec stationnement, chargement
- 112 pieds de façade bordée de fenêtres le long de Lankershim
- Accessibilité à pied, taux de trafic et démographie exceptionnels
- Rénové en 2018
Disponibilité de l’espace (1)
Afficher le tarif en
- Espace
- Surface
- Plafond
- Durée
- Loyer
- Type de loyer
| Espace | Surface | Plafond | Durée | Loyer | Type de loyer | |
| 1er étage, bureau 4900 | 584 m² | 4,27 mètres - 5,49 mètres | 3-10 Ans | 276,38 € /m²/an 23,03 € /m²/mois 161 503 € /an 13 459 € /mois | Triple net (NNN) |
1er étage, bureau 4900
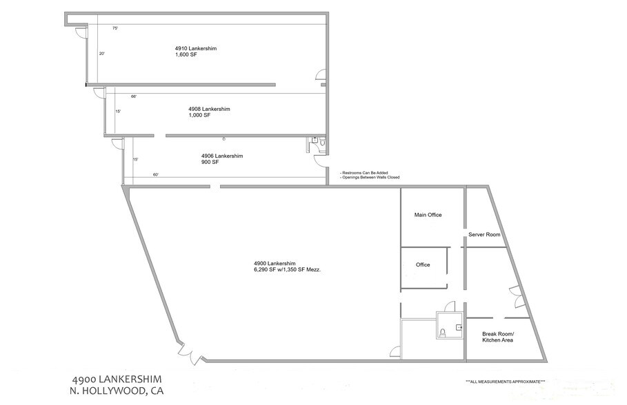
6,290 Sq. Ft. Hard Corner Retail Space in the Heart of NoHo Arts District Can be Combined with 3,655 Sq. Ft. at 4906 Lankershim for a Total of 9,945 Sq. Ft. 14' Clearance Height Renovated in 2018 93 Walkability Score, 25K Car Per Day Traffic Count, $105K+ Household Income in 2 Mi. Radius 110'+ of Window Lined Frontage Along Lankershim Blvd. Currently Vacant & Ready for Immediate Occupancy Offices, Break Room, Kitchen, and Restroom Includes Approximately 1,350 Sq. Ft. of Finished Office Mezzanine Located at the Gateway to NoHo Arts District at SE Corner of Lankershim & Huston Located Between Riverside Dr. & Magnolia Blvd. NoHo Business Improvement District (BID) State Enterprise Zone
- Le loyer ne comprend pas les services publics, les frais immobiliers ou les services de l’immeuble.
- Entièrement aménagé comme Local commercial standard
- Espace en excellent état
- Ventilation et chauffage centraux
- Espace d’angle
- Plafonds finis: 4,27 mètres - 5,49 mètres
- Cour
- Hauteur de dégagement interne de 18 pi
- Entièrement climatisé
- Rénové en 2018
- Hard Corner dans le quartier artistique de NoHo
- Nombre de trafic de 25 000 par jour
- Cour arrière avec stationnement et chargement
Types de loyers
Le montant et le type de loyer que l’occupant (locataire) est tenu de payer au propriétaire (bailleur) sur la durée du bail sont négociés avant la signature du bail par les deux parties. Le type de loyer varie selon les services fournis. Par exemple, le prix d’un loyer triple net est habituellement inférieur à celui d’un bail à service complet puisque l’occupant est tenu d’assumer des dépenses supplémentaires par rapport au loyer de base. Contacter le broker chargé de l’annonce pour bien comprendre les coûts associés ou les dépenses supplémentaires pour chaque type de loyer.
1. Service complet: Un loyer qui comprend des services d’immeuble standards normaux fournis par le propriétaire dans le cadre d’une location annuelle de base.
2. Double net (NN): L’occupant paie seulement deux des frais de l’immeuble. Le propriétaire et l’occupant déterminent ces frais spécifiques avant la signature du bail.
3. Triple net (NNN): Un bail selon lequel l’occupant est responsable de tous les frais liés à sa part proportionnelle d’occupation de l’immeuble.
4. Brut modifié: Le brut modifié est un type général de bail dans lequel l’occupant est en général responsable de sa part proportionnelle d’une ou de plusieurs dépenses. C’est le propriétaire qui paie les frais restants. Consultez la liste ci-dessous pour connaître les structures de loyers bruts modifiés les plus courantes : 4. Plus services publics: Un type de bail brut modifié, où l’occupant est responsable à hauteur de sa part proportionnelle des services publics en plus du loyer. 4. Plus nettoyage: Un type de bail brut modifié, où l’occupant est responsable à hauteur de sa part proportionnelle du nettoyage en plus du loyer. 4. Plus électricité: Un type de bail brut modifié, où l’occupant est responsable à hauteur de sa part proportionnelle du coût de la consommation électrique en plus du loyer. 4. Plus électricité et nettoyage: Un type de bail brut modifié, où l’occupant est responsable à hauteur de sa part proportionnelle du coût de la consommation électrique et du nettoyage en plus du loyer. 4. Plus services publics et charges: Un type de bail brut modifié où l’occupant est responsable à hauteur de sa part proportionnelle des services publics et du coût de nettoyage en plus du loyer. 4. Bail industriel brut: Un type de bail brut modifié dans lequel l’occupant paie un ou plusieurs des frais en plus du loyer. Le propriétaire et l’occupant déterminent ces frais spécifiques avant la signature du bail.
5. Électricité à la charge de l’occupant: Le propriétaire paie pour tous les services et l’occupant est responsable de sa propre utilisation de l’éclairage et des prises électriques dans l’espace qu’il occupe.
6. Négociable ou sur demande: Cette option est utilisée lorsque le contact de location n’indique pas le type de loyer ou de service.
7. À déterminer: À déterminer : utilisé pour les immeubles dont le type de services ou de loyer n’est pas connu, souvent quand l’immeuble n’est pas encore construit.
Plan du site
Informations sur l’immeuble
| Espace total disponible | 584 m² | Surface totale du terrain | 0,11 ha |
| Type de bien | Local commercial | Année de construction | 1938 |
| Sous-type de bien | Immeuble de commerce | Ratio de stationnement | 0,09/1 000 m² |
| Surface commerciale utile | 1 035 m² |
| Espace total disponible | 584 m² |
| Type de bien | Local commercial |
| Sous-type de bien | Immeuble de commerce |
| Surface commerciale utile | 1 035 m² |
| Surface totale du terrain | 0,11 ha |
| Année de construction | 1938 |
| Ratio de stationnement | 0,09/1 000 m² |
À propos du bien
Une superficie d'environ 9 945 mètres carrés Fort. Bâtiment autoportant en maçonnerie Situé sur environ 12 008 mètres carrés Pieds de terrain Peut être divisé en deux unités de 6 290 m² Pieds (4900 Lankershim) et 3 655 mètres carrés Fort (4906 Lankershim) Emplacement en angle dur avec 112 pieds de façade le long de Lankershim Situé à l'angle sud-est de Lankershim et Huston, entre Riverside Dr. et Magnolia Blvd. Hauteur de dégagement de 18 pieds, bureaux, salle de repos, cuisine et toilettes Système CVC complet partout Situé à 800 mètres de la station de métro North Hollywood Zone des entreprises d'État
- CVC contrôlé par l’occupant
- Panneau monumental
- Climatisation
Principaux commerces à proximité
Présenté par
The Herman Company
4900-4906 Lankershim Blvd
Hum, une erreur s’est produite lors de l’envoi de votre message. Veuillez réessayer.
Merci ! Votre message a été envoyé.



