Votre e-mail a été envoyé.
Built-to-Suit Medical Building 489 E Main St Bureaux/Médical | 2 903 m² | À louer | Jefferson Valley, NY 10535



Certaines informations ont été traduites automatiquement.
Disponibilité de l’espace (1)
Afficher le tarif en
- Espace
- Surface
- Durée
- Loyer
- Type de loyer
| Espace | Surface | Durée | Loyer | Type de loyer | ||
| 1er étage | 2 903 m² | Négociable | Sur demande Sur demande Sur demande Sur demande | À déterminer |
1er étage
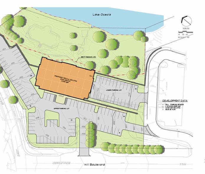
Rare medical office leasing opportunity in the heart of Jefferson Valley. Situated on approximately 2.5 acres just moments from Route 6, Route 6N, and the Taconic State Parkway, this highly accessible site offers exceptional visibility and connectivity within one of Northern Westchester’s primary commercial corridors. The project will deliver just over 30,000 gross square feet of modern medical office space and is being offered for lease on a build-to-suit basis, allowing future tenants to customize layout, infrastructure, and finishes to meet their specific operational needs. Ideal for medical practices, outpatient services, specialty providers, and healthcare groups seeking a strategically located facility with strong surrounding demographics and convenient regional access. A rare opportunity to secure purpose-built medical space in a supply-constrained market. For more information on lease terms, build-to-suit options, and delivery timelines, please inquire.
- 31,250 SF proposed medical office building
- To be built-to-suit as per tenants specifications
- 2.5 acre lot
- 125 on-site parking spaces
- Direct access to Rte 6, Rte 6N, Taconic
Types de loyers
Le montant et le type de loyer que l’occupant (locataire) est tenu de payer au propriétaire (bailleur) sur la durée du bail sont négociés avant la signature du bail par les deux parties. Le type de loyer varie selon les services fournis. Par exemple, le prix d’un loyer triple net est habituellement inférieur à celui d’un bail à service complet puisque l’occupant est tenu d’assumer des dépenses supplémentaires par rapport au loyer de base. Contacter le broker chargé de l’annonce pour bien comprendre les coûts associés ou les dépenses supplémentaires pour chaque type de loyer.
1. Service complet: Un loyer qui comprend des services d’immeuble standards normaux fournis par le propriétaire dans le cadre d’une location annuelle de base.
2. Double net (NN): L’occupant paie seulement deux des frais de l’immeuble. Le propriétaire et l’occupant déterminent ces frais spécifiques avant la signature du bail.
3. Triple net (NNN): Un bail selon lequel l’occupant est responsable de tous les frais liés à sa part proportionnelle d’occupation de l’immeuble.
4. Brut modifié: Le brut modifié est un type général de bail dans lequel l’occupant est en général responsable de sa part proportionnelle d’une ou de plusieurs dépenses. C’est le propriétaire qui paie les frais restants. Consultez la liste ci-dessous pour connaître les structures de loyers bruts modifiés les plus courantes : 4. Plus services publics: Un type de bail brut modifié, où l’occupant est responsable à hauteur de sa part proportionnelle des services publics en plus du loyer. 4. Plus nettoyage: Un type de bail brut modifié, où l’occupant est responsable à hauteur de sa part proportionnelle du nettoyage en plus du loyer. 4. Plus électricité: Un type de bail brut modifié, où l’occupant est responsable à hauteur de sa part proportionnelle du coût de la consommation électrique en plus du loyer. 4. Plus électricité et nettoyage: Un type de bail brut modifié, où l’occupant est responsable à hauteur de sa part proportionnelle du coût de la consommation électrique et du nettoyage en plus du loyer. 4. Plus services publics et charges: Un type de bail brut modifié où l’occupant est responsable à hauteur de sa part proportionnelle des services publics et du coût de nettoyage en plus du loyer. 4. Bail industriel brut: Un type de bail brut modifié dans lequel l’occupant paie un ou plusieurs des frais en plus du loyer. Le propriétaire et l’occupant déterminent ces frais spécifiques avant la signature du bail.
5. Électricité à la charge de l’occupant: Le propriétaire paie pour tous les services et l’occupant est responsable de sa propre utilisation de l’éclairage et des prises électriques dans l’espace qu’il occupe.
6. Négociable ou sur demande: Cette option est utilisée lorsque le contact de location n’indique pas le type de loyer ou de service.
7. À déterminer: À déterminer : utilisé pour les immeubles dont le type de services ou de loyer n’est pas connu, souvent quand l’immeuble n’est pas encore construit.
Plan du site
Sélectionner des occupants à Built-to-Suit Medical Building
- Occupant
- Description
- US localisations
- Couverture
- Jefferson Valley Manor
- Hébergement et restauration
- 1
- -
| Occupant | Description | US localisations | Couverture |
| Jefferson Valley Manor | Hébergement et restauration | 1 | - |
Informations sur l’immeuble
| Espace total disponible | 2 903 m² | Année de construction | 1970 |
| Type de bien | Local commercial | Ratio de stationnement | 0,63/1 000 m² |
| Sous-type de bien | Immeuble de commerce | Statut de la construction | En cours de rénovation |
| Surface commerciale utile | 2 903 m² |
| Espace total disponible | 2 903 m² |
| Type de bien | Local commercial |
| Sous-type de bien | Immeuble de commerce |
| Surface commerciale utile | 2 903 m² |
| Année de construction | 1970 |
| Ratio de stationnement | 0,63/1 000 m² |
| Statut de la construction | En cours de rénovation |
À propos du bien
The Klein Lefkowitz Commercial Team at Houlihan Lawrence Commercial is pleased to present a rare medical office leasing opportunity at 489 E Main Street in Jefferson Valley, New York. Situated on approximately 2.5 acres within one of Northern Westchester's established healthcare corridors, this proposed development will deliver just over 31,000 gross square feet of modern, purpose built medical office space designed to meet the evolving needs of today's healthcare providers. The project is being offered on a build to suit basis, providing future tenants with the ability to fully customize floor plans, mechanical and IT infrastructure, and interior finishes to align with their specific clinical and operational requirements. With 125 on site parking spaces and direct access to Route 6, Route 6N, and proximity to the Taconic State Parkway, the property offers the accessibility and visibility that healthcare tenants and their patients require. The development is well suited for a wide range of healthcare related tenants, including medical office and specialty practices, primary care facilities, ambulatory and outpatient service providers, physical therapy and rehabilitation centers, diagnostic and imaging operations, urgent care and walk in clinics, laboratory and testing facilities, behavioral health and wellness practices, and pharmacy and complementary healthcare retail uses. Modern healthcare development trends emphasize centralized medical campuses and outpatient care hubs where patients can access multiple services in a single location. The proposed project at 489 E Main Street is designed to serve as exactly that type of environment, improving patient access, reducing travel time, encouraging collaboration among providers, and expanding outpatient healthcare infrastructure in a supply constrained submarket.
- Climatisation
Principaux commerces à proximité
Présenté par
Built-to-Suit Medical Building | 489 E Main St
Hum, une erreur s’est produite lors de l’envoi de votre message. Veuillez réessayer.
Merci ! Votre message a été envoyé.



