Votre e-mail a été envoyé.
Certaines informations ont été traduites automatiquement.
Informations principales sur le parc
- Idéalement situé dans le quartier d'Innsbrook avec un accès direct à l'I-295, l'échangeur de Nuckols Road avec accès direct à l'I-64 et à l'I-95.
- Douches et vestiaires pour hommes et femmes au 1er étage.
- Coin salon privé avec terrasse.
- Un grand parking gratuit pour les locataires et les visiteurs.
Faits sur le parc
| Espace total disponible | 2 691 m² | Type de parc | Parc de bureaux |
| Espace total disponible | 2 691 m² |
| Type de parc | Parc de bureaux |
Tous les espaces disponibles(5)
Afficher les loyers en
- Espace
- Surface
- Durée
- Loyer
- Type de bien
- Aménagement
- Disponible
- Convient pour 19 à 60 personnes
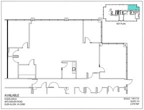
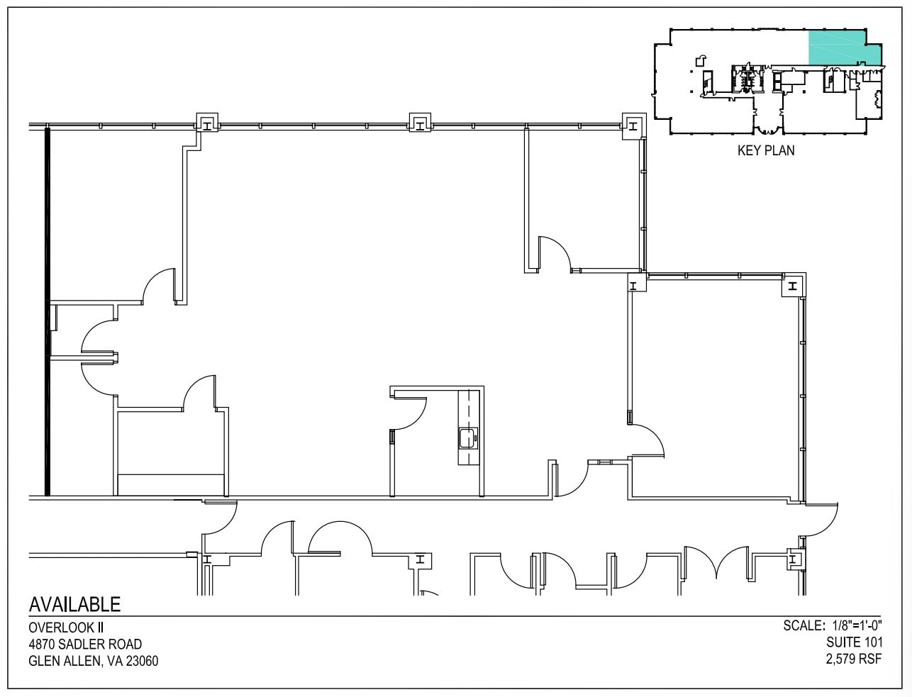
Suite 101 2,579 square feet available
- Entièrement aménagé comme Bureau standard
- Convient pour 7 à 21 personnes
- 1 salle de conférence
- Principalement open space
- 2 bureaux privés
- Kitchen/Break Area
6,338 square feet for lease.
- Entièrement aménagé comme Bureau standard
- Convient pour 16 à 51 personnes
- Wellness Room
- Disposition open space
- 2 bureaux privés
| Espace | Surface | Durée | Loyer | Type de bien | Aménagement | Disponible |
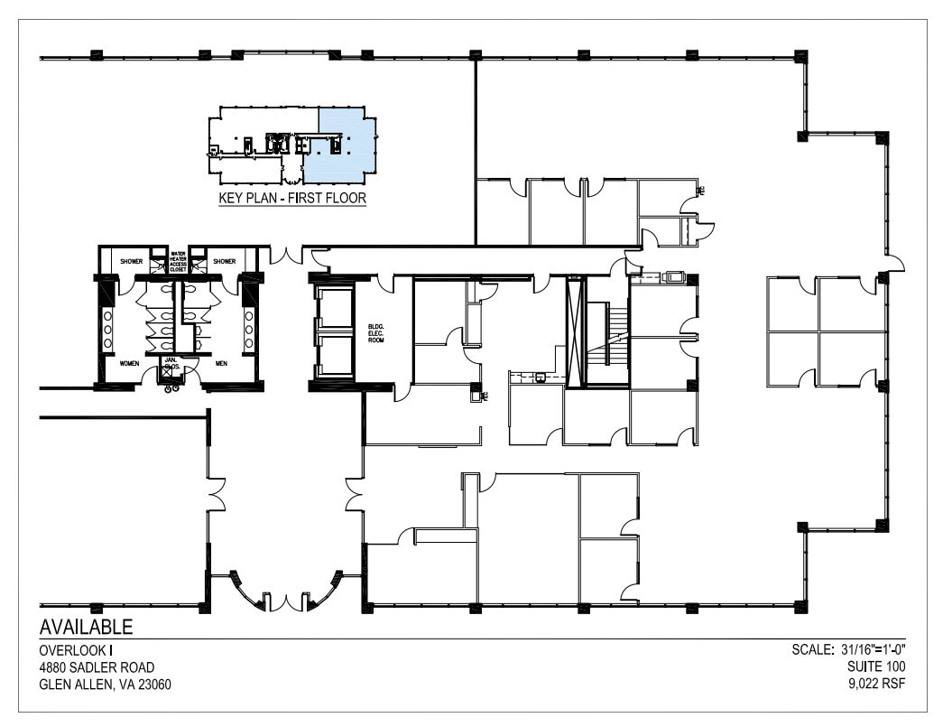
| 1er étage, bureau 100 | 686 m² | Négociable | Sur demande Sur demande Sur demande Sur demande | Bureau | - | Maintenant |
| 1er étage, bureau 101 | 240 m² | Négociable | Sur demande Sur demande Sur demande Sur demande | Bureau | Construction achevée | Maintenant |
| 2e étage, bureau 250 | 589 m² | Négociable | Sur demande Sur demande Sur demande Sur demande | Bureau | Construction achevée | 30 jours |
4870 Sadler Rd - 1er étage – Bureau 100
4870 Sadler Rd - 1er étage – Bureau 101
4870 Sadler Rd - 2e étage – Bureau 250
- Espace
- Surface
- Durée
- Loyer
- Type de bien
- Aménagement
- Disponible
This property is part of a two-building office park and provides tenants with modern amenities and professional management. The building features a web-based tenant resource system, eTenants, ensuring streamlined communication and services.
- Entièrement aménagé comme Bureau standard
- Convient pour 23 à 73 personnes
- Exceptional connectivity
- Principalement open space
- 12 bureaux privés
This property is part of a two-building office park and provides tenants with modern amenities and professional management. The building features a web-based tenant resource system, eTenants, ensuring streamlined communication and services.
- Entièrement aménagé comme Bureau standard
- Convient pour 10 à 30 personnes
- Exceptional connectivity
- Principalement open space
- 5 bureaux privés
| Espace | Surface | Durée | Loyer | Type de bien | Aménagement | Disponible |
| 1er étage, bureau 100 | 838 m² | Négociable | Sur demande Sur demande Sur demande Sur demande | Bureau | Construction achevée | Maintenant |
| 1er étage, bureau 120 | 339 m² | Négociable | Sur demande Sur demande Sur demande Sur demande | Bureau | Construction achevée | Maintenant |
4880 Sadler Rd - 1er étage – Bureau 100
4880 Sadler Rd - 1er étage – Bureau 120
4870 Sadler Rd - 1er étage – Bureau 100
| Surface | 686 m² |
| Durée | Négociable |
| Loyer | Sur demande |
| Type de bien | Bureau |
| Aménagement | - |
| Disponible | Maintenant |
- Convient pour 19 à 60 personnes
4870 Sadler Rd - 1er étage – Bureau 101
| Surface | 240 m² |
| Durée | Négociable |
| Loyer | Sur demande |
| Type de bien | Bureau |
| Aménagement | Construction achevée |
| Disponible | Maintenant |
Suite 101 2,579 square feet available
- Entièrement aménagé comme Bureau standard
- Principalement open space
- Convient pour 7 à 21 personnes
- 2 bureaux privés
- 1 salle de conférence
- Kitchen/Break Area
4870 Sadler Rd - 2e étage – Bureau 250
| Surface | 589 m² |
| Durée | Négociable |
| Loyer | Sur demande |
| Type de bien | Bureau |
| Aménagement | Construction achevée |
| Disponible | 30 jours |
6,338 square feet for lease.
- Entièrement aménagé comme Bureau standard
- Disposition open space
- Convient pour 16 à 51 personnes
- 2 bureaux privés
- Wellness Room
4880 Sadler Rd - 1er étage – Bureau 100
| Surface | 838 m² |
| Durée | Négociable |
| Loyer | Sur demande |
| Type de bien | Bureau |
| Aménagement | Construction achevée |
| Disponible | Maintenant |
This property is part of a two-building office park and provides tenants with modern amenities and professional management. The building features a web-based tenant resource system, eTenants, ensuring streamlined communication and services.
- Entièrement aménagé comme Bureau standard
- Principalement open space
- Convient pour 23 à 73 personnes
- 12 bureaux privés
- Exceptional connectivity
4880 Sadler Rd - 1er étage – Bureau 120
| Surface | 339 m² |
| Durée | Négociable |
| Loyer | Sur demande |
| Type de bien | Bureau |
| Aménagement | Construction achevée |
| Disponible | Maintenant |
This property is part of a two-building office park and provides tenants with modern amenities and professional management. The building features a web-based tenant resource system, eTenants, ensuring streamlined communication and services.
- Entièrement aménagé comme Bureau standard
- Principalement open space
- Convient pour 10 à 30 personnes
- 5 bureaux privés
- Exceptional connectivity
Vue d’ensemble du parc
Situé au 4880 Sadler Rd, l'Overlook I est l'un des deux immeubles de bureaux de classe A de 63 000 pieds carrés dotés d'une gestion des bâtiments de qualité supérieure grâce à eTenants, une ressource Web exclusive pour les locataires. Vous trouverez un grand choix de restaurants, de boutiques et de services de proximité dans un rayon de huit kilomètres.
Présenté par
Overlook | Glen Allen, VA 23060
Hum, une erreur s’est produite lors de l’envoi de votre message. Veuillez réessayer.
Merci ! Votre message a été envoyé.













