Votre e-mail a été envoyé.
Certaines informations ont été traduites automatiquement.
Informations principales
- Newly constructed Class A freestanding building with design flexibility for single or multi-tenant occupancy.
- Surrounding area includes strong demographics: high-income households and significant population growth.
- Suitable for medical, wellness, education, fitness, professional office, and financial service uses.
- High visibility location within a major residential corridor and a 4,000+ home community.
- Ample on-site parking and convenient access to neighborhood roadways.
Tous les espace disponibles(1)
Afficher les loyers en
- Espace
- Surface
- Durée
- Loyer
- Type de bien
- Aménagement
- Disponible
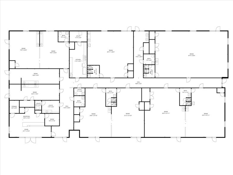
This property offers flexible leasing configurations within a newly constructed freestanding building in St. Augustine. The available space can accommodate either a full-building, single-tenant user or multiple suites beginning at approximately 1,500 SF. The building was completed in 2025 and includes a modern layout with adaptable plans to suit medical, office, or professional service requirements. Current lease options are structured to provide flexibility for tenant needs, with the ability to customize interiors and layout.
- Le loyer ne comprend pas les services publics, les frais immobiliers ou les services de l’immeuble.
- Convient pour 4 à 80 personnes
- Espace en excellent état
- Système de sécurité
- Éclairage d’urgence
- Accessible fauteuils roulants
- Full-building or multi-tenant layout
- NNN lease structure applies
- Entièrement aménagé comme Bureau de services professionnels
- Bureaux cloisonnés
- Ventilation et chauffage centraux
- CVC disponible en-dehors des heures ouvrables
- Détecteur de fumée
- New construction completed in 2025
- Flexible design for medical and office
- Ample on-site parking provided
| Espace | Surface | Durée | Loyer | Type de bien | Aménagement | Disponible |
| 1er étage | 139 – 929 m² | 5-10 Ans | 261,65 € /m²/an 21,80 € /m²/mois 243 077 € /an 20 256 € /mois | Bureaux/Médical | Construction achevée | Maintenant |
1er étage
| Surface |
| 139 – 929 m² |
| Durée |
| 5-10 Ans |
| Loyer |
| 261,65 € /m²/an 21,80 € /m²/mois 243 077 € /an 20 256 € /mois |
| Type de bien |
| Bureaux/Médical |
| Aménagement |
| Construction achevée |
| Disponible |
| Maintenant |
1er étage
| Surface | 139 – 929 m² |
| Durée | 5-10 Ans |
| Loyer | 261,65 € /m²/an |
| Type de bien | Bureaux/Médical |
| Aménagement | Construction achevée |
| Disponible | Maintenant |
This property offers flexible leasing configurations within a newly constructed freestanding building in St. Augustine. The available space can accommodate either a full-building, single-tenant user or multiple suites beginning at approximately 1,500 SF. The building was completed in 2025 and includes a modern layout with adaptable plans to suit medical, office, or professional service requirements. Current lease options are structured to provide flexibility for tenant needs, with the ability to customize interiors and layout.
- Le loyer ne comprend pas les services publics, les frais immobiliers ou les services de l’immeuble.
- Entièrement aménagé comme Bureau de services professionnels
- Convient pour 4 à 80 personnes
- Bureaux cloisonnés
- Espace en excellent état
- Ventilation et chauffage centraux
- Système de sécurité
- CVC disponible en-dehors des heures ouvrables
- Éclairage d’urgence
- Détecteur de fumée
- Accessible fauteuils roulants
- New construction completed in 2025
- Full-building or multi-tenant layout
- Flexible design for medical and office
- NNN lease structure applies
- Ample on-site parking provided
Aperçu du bien
481 Shores Blvd is a newly constructed 10,000 SF freestanding building available for lease, offering either a full-building opportunity or configurable multi-tenant suites starting at approximately 1,500 SF. Located within one of St. Augustine’s most established and high-income residential corridors, the property is positioned to serve immediate demand for medical, wellness, and service-based users. The surrounding trade area includes more than 30,000 residents within three miles and over 55,000 within five miles, supported by approximately $2.5 billion in local buying power and population growth exceeding 16 percent. With limited availability of large-format space in St. Johns County, this property presents a rare opportunity to secure up to 10,000 SF in a high-demand market with minimal direct competition and a built-in customer base from day one. The building can accommodate a single full-building user seeking a standalone presence with complete control over branding and layout, or it can be configured for multiple tenants with flexible suite sizes ranging from approximately 1,500 SF up to the full 10,000 SF. Constructed in 2025, the property features ample parking, easy neighborhood access, and high visibility within a 4,000+ home community. The adaptable floor plan is well suited for medical, dental, behavioral health, education, wellness, fitness, professional office, and financial service uses. The area includes more than 17,000 households within three miles, an average household income exceeding $100,000, and an owner-occupied rate of approximately 80 percent, supporting strong repeat clientele. With a median age in the 50s, the surrounding population is particularly well aligned with medical and service-oriented businesses. Ownership is prepared to structure flexible lease terms based on tenant needs, including customized suite configurations, build-out considerations, and both single-tenant and multi-tenant occupancy options. Suites are available now from approximately 1,500 SF up to 10,000 SF, with full-building availability for qualified users. Opportunities of this size and location are limited, and serious inquiries are encouraged to schedule a tour and explore layout options.
- Accès 24 h/24
- Accès contrôlé
- Garderie
- Terrain clôturé
- Système de sécurité
- Accessible fauteuils roulants
- Réception
- Espace d’entreposage
- Climatisation
- Détecteur de fumée
Informations sur l’immeuble
Présenté par
481 Shores Blvd
Hum, une erreur s’est produite lors de l’envoi de votre message. Veuillez réessayer.
Merci ! Votre message a été envoyé.







