Votre e-mail a été envoyé.
La Quinta Medical Center 47647 Caleo Bay Dr Bureaux/Médical | 164–890 m² | À louer | La Quinta, CA 92253



Certaines informations ont été traduites automatiquement.
Informations principales
- Bâtiment médical de classe A de 2 étages
- Gestion professionnelle de la propriété institutionnelle
- De généreuses allocations informatiques
- Stationnement en surface avec cabines couvertes
- À proximité des commerces de détail, façade de Washington Street
Tous les espaces disponibles(3)
Afficher les loyers en
- Espace
- Surface
- Durée
- Loyer
- Type de bien
- Aménagement
- Disponible
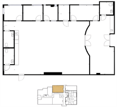
Suite 100 • Space Available: 5,085 RSF • Lease Rate: $2.50/SF • Lease Type: MG • Suite Description: Previous Imaging Center. MRI. X-Ray. CT-Scan. Ultrasound/Bone Density. Scan Rooms. Waiting/Reception. Breakroom. Nurses’ Station. 3 In-Suite Restrooms. 3 Patient Dressing Rooms. 2 Storage Closets. IT Closet. 2 Doctor’s Office. Reading Room. Floor Plan: https://medwestrealty.com/wp-content/uploads/2022/01/Suite-100.png Virtual Tour: https://my.matterport.com/show/?m=mKuyw8B9hd8
- Entièrement aménagé comme Cabinet médical standard
- Aire de réception
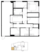
Suite 150 • Space Available: 2,729 RSF • Lease Rate: $2.50/SF • Lease Type: FSG • Suite Description: 3 Offices. Exam Room. 3 In-Suite Restroom. Reception. Floor Plan: https://medwestrealty.com/wp-content/uploads/2022/01/Suite-150-1.png Virtual Tour: https://matterport.com/discover/space/NSefb3oPAJK
- Entièrement aménagé comme Espace de santé
- Espace en excellent état
- Toilettes privées
- 3 bureaux privés
- Aire de réception
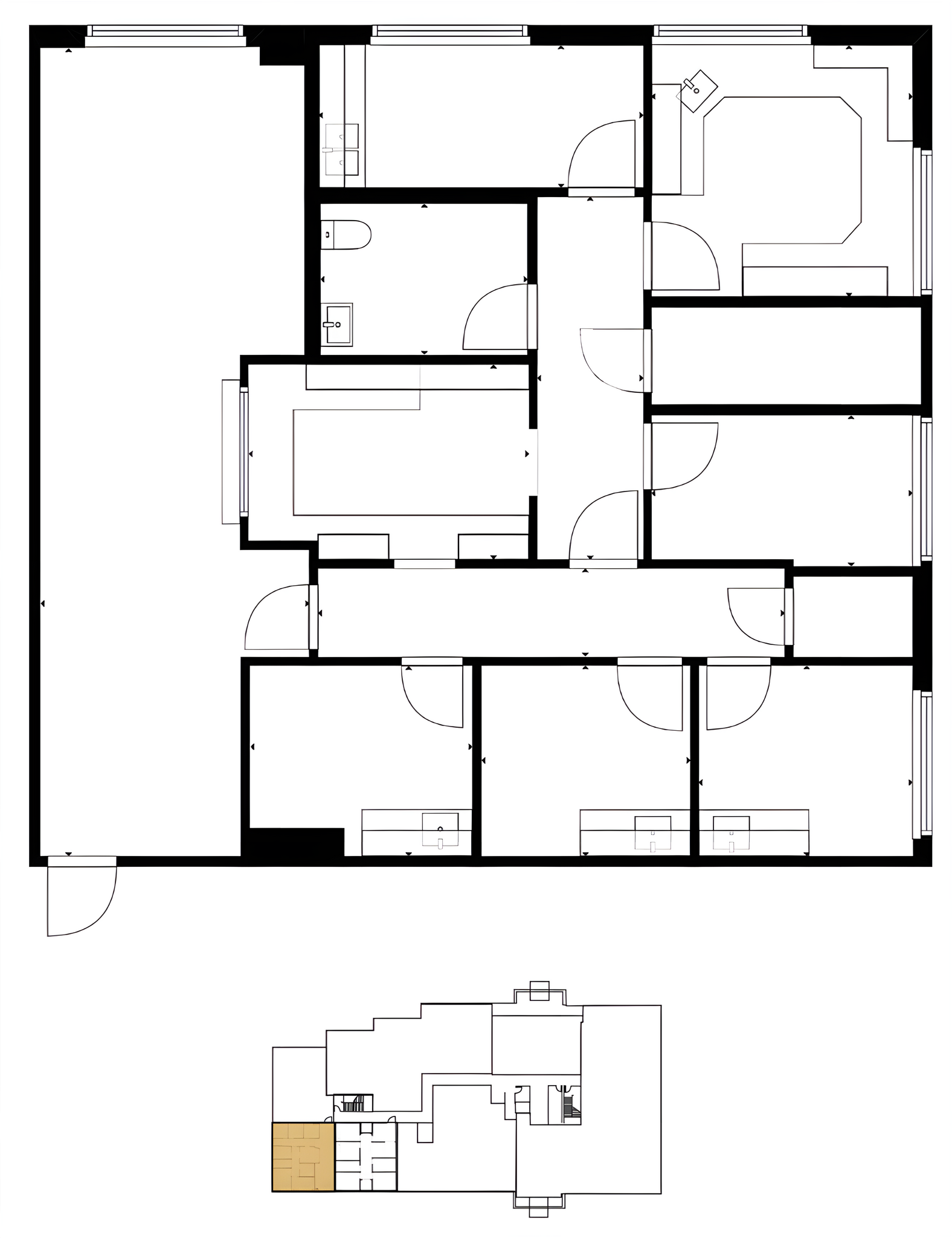
Suite 230 • Space Available: 1,768 RSF • Lease Rate: $2.50/SF • Lease Type: FSG • Suite Description: 4 Exam Rooms. Private Office. In-Suite Restroom. Waiting Room. Reception/Admin. Breakroom, and 2 Storage Rooms. Floor Plan: https://medwestrealty.com/wp-content/uploads/2022/01/Suite-230-scaled.png Virtual Tour: https://my.matterport.com/show/?m=LddHMNiyPvb Available 5/1/2026
- Le loyer comprend les services publics, les services de l’immeuble et les frais immobiliers.
| Espace | Surface | Durée | Loyer | Type de bien | Aménagement | Disponible |
| 1er étage, bureau 100 | 472 m² | Négociable | Sur demande Sur demande Sur demande Sur demande | Bureaux/Médical | Construction achevée | Maintenant |
| 1er étage, bureau 150 | 254 m² | Négociable | Sur demande Sur demande Sur demande Sur demande | Bureaux/Médical | Construction achevée | Maintenant |
| 2e étage, bureau 230 | 164 m² | Négociable | 275,42 € /m²/an 22,95 € /m²/mois 45 238 € /an 3 770 € /mois | Bureaux/Médical | - | 01/05/2026 |
1er étage, bureau 100
| Surface |
| 472 m² |
| Durée |
| Négociable |
| Loyer |
| Sur demande Sur demande Sur demande Sur demande |
| Type de bien |
| Bureaux/Médical |
| Aménagement |
| Construction achevée |
| Disponible |
| Maintenant |
1er étage, bureau 150
| Surface |
| 254 m² |
| Durée |
| Négociable |
| Loyer |
| Sur demande Sur demande Sur demande Sur demande |
| Type de bien |
| Bureaux/Médical |
| Aménagement |
| Construction achevée |
| Disponible |
| Maintenant |
2e étage, bureau 230
| Surface |
| 164 m² |
| Durée |
| Négociable |
| Loyer |
| 275,42 € /m²/an 22,95 € /m²/mois 45 238 € /an 3 770 € /mois |
| Type de bien |
| Bureaux/Médical |
| Aménagement |
| - |
| Disponible |
| 01/05/2026 |
1er étage, bureau 100
| Surface | 472 m² |
| Durée | Négociable |
| Loyer | Sur demande |
| Type de bien | Bureaux/Médical |
| Aménagement | Construction achevée |
| Disponible | Maintenant |
Suite 100 • Space Available: 5,085 RSF • Lease Rate: $2.50/SF • Lease Type: MG • Suite Description: Previous Imaging Center. MRI. X-Ray. CT-Scan. Ultrasound/Bone Density. Scan Rooms. Waiting/Reception. Breakroom. Nurses’ Station. 3 In-Suite Restrooms. 3 Patient Dressing Rooms. 2 Storage Closets. IT Closet. 2 Doctor’s Office. Reading Room. Floor Plan: https://medwestrealty.com/wp-content/uploads/2022/01/Suite-100.png Virtual Tour: https://my.matterport.com/show/?m=mKuyw8B9hd8
- Entièrement aménagé comme Cabinet médical standard
- Aire de réception
1er étage, bureau 150
| Surface | 254 m² |
| Durée | Négociable |
| Loyer | Sur demande |
| Type de bien | Bureaux/Médical |
| Aménagement | Construction achevée |
| Disponible | Maintenant |
Suite 150 • Space Available: 2,729 RSF • Lease Rate: $2.50/SF • Lease Type: FSG • Suite Description: 3 Offices. Exam Room. 3 In-Suite Restroom. Reception. Floor Plan: https://medwestrealty.com/wp-content/uploads/2022/01/Suite-150-1.png Virtual Tour: https://matterport.com/discover/space/NSefb3oPAJK
- Entièrement aménagé comme Espace de santé
- 3 bureaux privés
- Espace en excellent état
- Aire de réception
- Toilettes privées
2e étage, bureau 230
| Surface | 164 m² |
| Durée | Négociable |
| Loyer | 275,42 € /m²/an |
| Type de bien | Bureaux/Médical |
| Aménagement | - |
| Disponible | 01/05/2026 |
Suite 230 • Space Available: 1,768 RSF • Lease Rate: $2.50/SF • Lease Type: FSG • Suite Description: 4 Exam Rooms. Private Office. In-Suite Restroom. Waiting Room. Reception/Admin. Breakroom, and 2 Storage Rooms. Floor Plan: https://medwestrealty.com/wp-content/uploads/2022/01/Suite-230-scaled.png Virtual Tour: https://my.matterport.com/show/?m=LddHMNiyPvb Available 5/1/2026
- Le loyer comprend les services publics, les services de l’immeuble et les frais immobiliers.
Aperçu du bien
Centre médical La Quinta 47647 Caleo Bay, La Quinta, CA 92253 ------------------------ Le centre médical La Quinta est un immeuble de bureaux médicaux de 41 600 pieds carrés de deux étages, idéalement situé au cœur de La Quinta. Le site se trouve à proximité de l'autoroute 111 et de nombreux grands détaillants de la région. Cet établissement médical haut de gamme dispose de deux suites, dont un centre d'imagerie prêt à l'emploi avec signalisation des monuments. Le bâtiment est dédié aux professionnels de la santé, avec une forte composition de locataires, et dessert une importante base de patients de La Quinta, Indio et Coachella. Caractéristiques de la propriété : EMPLACEMENT ET ACCESSIBILITÉ DE PREMIER PLAN • Façade de la rue Washington • Proximité de l'autoroute 111 • Commodités commerciales voisines EMPLACEMENT IDÉAL DU MARCHÉ ET DU SITE • Capable de servir plus de 226 800 patients dans un délai de 15 minutes de route PARKING ABONDANT • Stationnement en surface avec places couvertes • Ratio de stationnement de 5,74/1000 FAITS SAILLANTS • Appropriation institutionnelle • Gestion professionnelle • De généreuses allocations informatiques • Signalisation des monuments disponible ------------------------ 2 suites disponibles : ------------------------ Suite 100 • Espace disponible : 5 085 RSF • Taux de location : 2,50 $/pied carré • Type de bail : MG • Description de la suite : Ancien centre d'imagerie : salles d'IRM, de radiographie, de tomodensitométrie, d'échographie/de densité osseuse. Attente/Réception. Salle de pause. Poste de soins infirmiers. 3 toilettes privatives. 3 vestiaires pour patients. 2 placards de rangement. Armoire informatique et 2 cabinets de médecin/salle de lecture. Plan d'étage : https://medicalofficeproperty.com/wp-content/uploads/2022/01/La-Quinta-Suite-100.pdf Visite virtuelle : https://my.matterport.com/show/?m=mKuyw8B9hd8 ------------------------ Suite 150 • Espace disponible : 2 729 RSF • Taux de location : 2,50 $/pied carré • Type de bail : MG • Description de la suite : 3 bureaux. Salle d'examen. 3 toilettes privatives. Réception Plan d'étage : https://medicalofficeproperty.com/wp-content/uploads/2022/01/STE150-2729RSF-LaQuintaMedicalCenter.pdf Visite virtuelle : https://matterport.com/discover/space/NSefb3oPAJK ------------------------ PLUS DE DÉTAILS : https://medwestrealty.com/property/la-quinta-medical-center/ TÉLÉCHARGER LA BROCHURE : https://medwestrealty.com/wp-content/uploads/2022/01/La-Quinta-Medical-Center_LB9_WL.pdf
- Accès 24 h/24
- Biotech/Laboratoire
- Ligne d’autobus
- Signalisation
- Certifié Energy Star
- Espace d’entreposage
- Réception
- Panneau monumental
- Climatisation
Informations sur l’immeuble
Présenté par
La Quinta Medical Center | 47647 Caleo Bay Dr
Hum, une erreur s’est produite lors de l’envoi de votre message. Veuillez réessayer.
Merci ! Votre message a été envoyé.






