Votre e-mail a été envoyé.
Montgomery Building 4720 Montgomery Ln Bureau | 173–4 811 m² | 4 étoiles | À louer | Bethesda, MD 20814



Certaines informations ont été traduites automatiquement.
Informations principales
- Proximate to the Bethesda Metro Station and other transit
- Shared conference room
- Ready to go suites
- Class A Office building located in downtown Bethesda
Tous les espaces disponibles(11)
Afficher les loyers en
- Espace
- Surface
- Durée
- Loyer
- Type de bien
- Aménagement
- Disponible
Highlights - Ready-to-go suites of all sizes - 1, 2, or 3 year terms - Shared conference room -Steps away from Bethesda Row Click to virtually tour - https://my.matterport.com/show/?m=Voan3yBF4dx
- Le loyer comprend les services publics, les services de l’immeuble et les frais immobiliers.
- Principalement open space
- 1 salle de conférence
- Entièrement aménagé comme Bureau standard
- 4 bureaux privés
Highlights - Ready-to-go suites of all sizes - 1, 2, or 3 year terms - Shared conference room -Steps away from Bethesda Row
- Le loyer comprend les services publics, les services de l’immeuble et les frais immobiliers.
- 3 bureaux privés
- Espace en excellent état
- Entièrement aménagé comme Bureau standard
- 2 salles de conférence
Highlights - Ready-to-go suites of all sizes - 1, 2, or 3 year terms - Shared conference room -Steps away from Bethesda Row Click to virtually tour - https://my.matterport.com/show/?m=Li4gJLdLyyR
- Le loyer comprend les services publics, les services de l’immeuble et les frais immobiliers.
- Principalement open space
- 1 salle de conférence
- Entièrement aménagé comme Bureau standard
- 3 bureaux privés
Highlights - Ready-to-go suites of all sizes - 1, 2, or 3 year terms - Shared conference room -Steps away from Bethesda Row
- Le loyer comprend les services publics, les services de l’immeuble et les frais immobiliers.
- 6 bureaux privés
- Peut être associé à un ou plusieurs espaces supplémentaires pour obtenir jusqu’à 2 592 m² d’espace adjacent.
- Entièrement aménagé comme Bureau standard
- 1 poste de travail
Highlights - Ready-to-go suites of all sizes - 1, 2, or 3 year terms - Shared conference room -Steps away from Bethesda Row
- Le loyer comprend les services publics, les services de l’immeuble et les frais immobiliers.
- 5 bureaux privés
- Peut être associé à un ou plusieurs espaces supplémentaires pour obtenir jusqu’à 2 592 m² d’espace adjacent.
- Entièrement aménagé comme Bureau standard
- 1 salle de conférence
Highlights - Ready-to-go suites of all sizes - 1, 2, or 3 year terms - Shared conference room -Steps away from Bethesda Row
- Le loyer comprend les services publics, les services de l’immeuble et les frais immobiliers.
- Principalement open space
- 2 salles de conférence
- Entièrement aménagé comme Bureau standard
- 17 bureaux privés
- Peut être associé à un ou plusieurs espaces supplémentaires pour obtenir jusqu’à 2 592 m² d’espace adjacent.
Highlights - Ready-to-go suites of all sizes - 1, 2, or 3 year terms - Shared conference room -Steps away from Bethesda Row
- Le loyer comprend les services publics, les services de l’immeuble et les frais immobiliers.
- Principalement open space
- 2 salles de conférence
- Entièrement aménagé comme Bureau standard
- 17 bureaux privés
- Peut être associé à un ou plusieurs espaces supplémentaires pour obtenir jusqu’à 2 592 m² d’espace adjacent.
Highlights - Ready-to-go suites of all sizes - 1, 2, or 3 year terms - Shared conference room -Steps away from Bethesda Row
- Le loyer comprend les services publics, les services de l’immeuble et les frais immobiliers.
- Principalement open space
- 3 salles de conférence
- Espace en excellent état
- Entièrement aménagé comme Bureau standard
- 12 bureaux privés
- 1 poste de travail
- Peut être associé à un ou plusieurs espaces supplémentaires pour obtenir jusqu’à 2 592 m² d’espace adjacent.
Highlights - Ready-to-go suites of all sizes - 1, 2, or 3 year terms - Shared conference room -Steps away from Bethesda Row
- Le loyer comprend les services publics, les services de l’immeuble et les frais immobiliers.
- 20 bureaux privés
- Espace en excellent état
- Entièrement aménagé comme Bureau de services professionnels
- 2 salles de conférence
Highlights - Ready-to-go suites of all sizes - 1, 2, or 3 year terms - Shared conference room -Steps away from Bethesda Row Click to virtually tour - https://my.matterport.com/show/?m=ztfPwExJ1VE
- Le loyer comprend les services publics, les services de l’immeuble et les frais immobiliers.
- 12 bureaux privés
- Peut être associé à un ou plusieurs espaces supplémentaires pour obtenir jusqu’à 774 m² d’espace adjacent.
- Entièrement aménagé comme Bureau standard
- 1 salle de conférence
Highlights - Ready-to-go suites of all sizes - 1, 2, or 3 year terms - Shared conference room -Steps away from Bethesda Row Click to virtually tour - https://my.matterport.com/show/?m=XgynR3szaGA
- Le loyer comprend les services publics, les services de l’immeuble et les frais immobiliers.
- 8 bureaux privés
- Peut être associé à un ou plusieurs espaces supplémentaires pour obtenir jusqu’à 774 m² d’espace adjacent.
- Entièrement aménagé comme Bureau standard
- 2 salles de conférence
| Espace | Surface | Durée | Loyer | Type de bien | Aménagement | Disponible |
| 2e étage, bureau 200 | 293 m² | 1-3 Ans | 184,25 € /m²/an 15,35 € /m²/mois 53 937 € /an 4 495 € /mois | Bureau | Construction achevée | Maintenant |
| 2e étage, bureau 210 | 184 m² | Négociable | 184,25 € /m²/an 15,35 € /m²/mois 33 824 € /an 2 819 € /mois | Bureau | Construction achevée | Maintenant |
| 3e étage, bureau 330 | 195 m² | 1-3 Ans | 184,25 € /m²/an 15,35 € /m²/mois 35 964 € /an 2 997 € /mois | Bureau | Construction achevée | Maintenant |
| 4e étage, bureau 420 | 177 m² | 1-3 Ans | 184,25 € /m²/an 15,35 € /m²/mois 32 557 € /an 2 713 € /mois | Bureau | Construction achevée | Maintenant |
| 4e étage, bureau 430 | 173 m² | 1-3 Ans | 184,25 € /m²/an 15,35 € /m²/mois 31 907 € /an 2 659 € /mois | Bureau | Construction achevée | Maintenant |
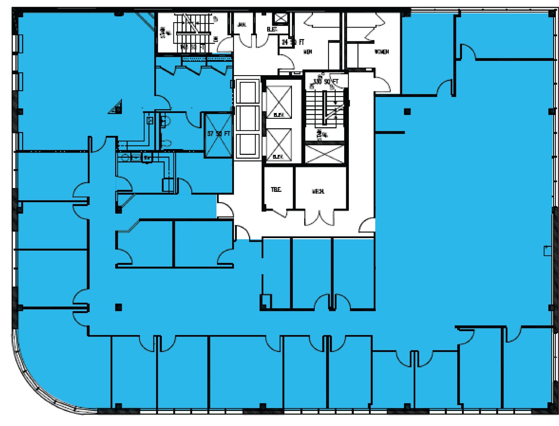
| 5e étage, bureau 500 | 693 m² | 1-3 Ans | 184,25 € /m²/an 15,35 € /m²/mois 127 747 € /an 10 646 € /mois | Bureau | Construction achevée | Maintenant |
| 6e étage, bureau 600 | 774 m² | 1-3 Ans | 184,25 € /m²/an 15,35 € /m²/mois 142 639 € /an 11 887 € /mois | Bureau | Construction achevée | Maintenant |
| 7e étage, bureau 700 | 774 m² | 1-3 Ans | 184,25 € /m²/an 15,35 € /m²/mois 142 639 € /an 11 887 € /mois | Bureau | Construction achevée | Maintenant |
| 8e étage, bureau 800 | 774 m² | 1-3 Ans | 184,25 € /m²/an 15,35 € /m²/mois 142 639 € /an 11 887 € /mois | Bureau | Construction achevée | 30 jours |
| 9e étage, bureau 900 | 416 m² | 1-3 Ans | 184,25 € /m²/an 15,35 € /m²/mois 76 566 € /an 6 381 € /mois | Bureau | Construction achevée | Maintenant |
| 9e étage, bureau 950 | 359 m² | 1-3 Ans | 184,25 € /m²/an 15,35 € /m²/mois 66 073 € /an 5 506 € /mois | Bureau | Construction achevée | Maintenant |
2e étage, bureau 200
| Surface |
| 293 m² |
| Durée |
| 1-3 Ans |
| Loyer |
| 184,25 € /m²/an 15,35 € /m²/mois 53 937 € /an 4 495 € /mois |
| Type de bien |
| Bureau |
| Aménagement |
| Construction achevée |
| Disponible |
| Maintenant |
2e étage, bureau 210
| Surface |
| 184 m² |
| Durée |
| Négociable |
| Loyer |
| 184,25 € /m²/an 15,35 € /m²/mois 33 824 € /an 2 819 € /mois |
| Type de bien |
| Bureau |
| Aménagement |
| Construction achevée |
| Disponible |
| Maintenant |
3e étage, bureau 330
| Surface |
| 195 m² |
| Durée |
| 1-3 Ans |
| Loyer |
| 184,25 € /m²/an 15,35 € /m²/mois 35 964 € /an 2 997 € /mois |
| Type de bien |
| Bureau |
| Aménagement |
| Construction achevée |
| Disponible |
| Maintenant |
4e étage, bureau 420
| Surface |
| 177 m² |
| Durée |
| 1-3 Ans |
| Loyer |
| 184,25 € /m²/an 15,35 € /m²/mois 32 557 € /an 2 713 € /mois |
| Type de bien |
| Bureau |
| Aménagement |
| Construction achevée |
| Disponible |
| Maintenant |
4e étage, bureau 430
| Surface |
| 173 m² |
| Durée |
| 1-3 Ans |
| Loyer |
| 184,25 € /m²/an 15,35 € /m²/mois 31 907 € /an 2 659 € /mois |
| Type de bien |
| Bureau |
| Aménagement |
| Construction achevée |
| Disponible |
| Maintenant |
5e étage, bureau 500
| Surface |
| 693 m² |
| Durée |
| 1-3 Ans |
| Loyer |
| 184,25 € /m²/an 15,35 € /m²/mois 127 747 € /an 10 646 € /mois |
| Type de bien |
| Bureau |
| Aménagement |
| Construction achevée |
| Disponible |
| Maintenant |
6e étage, bureau 600
| Surface |
| 774 m² |
| Durée |
| 1-3 Ans |
| Loyer |
| 184,25 € /m²/an 15,35 € /m²/mois 142 639 € /an 11 887 € /mois |
| Type de bien |
| Bureau |
| Aménagement |
| Construction achevée |
| Disponible |
| Maintenant |
7e étage, bureau 700
| Surface |
| 774 m² |
| Durée |
| 1-3 Ans |
| Loyer |
| 184,25 € /m²/an 15,35 € /m²/mois 142 639 € /an 11 887 € /mois |
| Type de bien |
| Bureau |
| Aménagement |
| Construction achevée |
| Disponible |
| Maintenant |
8e étage, bureau 800
| Surface |
| 774 m² |
| Durée |
| 1-3 Ans |
| Loyer |
| 184,25 € /m²/an 15,35 € /m²/mois 142 639 € /an 11 887 € /mois |
| Type de bien |
| Bureau |
| Aménagement |
| Construction achevée |
| Disponible |
| 30 jours |
9e étage, bureau 900
| Surface |
| 416 m² |
| Durée |
| 1-3 Ans |
| Loyer |
| 184,25 € /m²/an 15,35 € /m²/mois 76 566 € /an 6 381 € /mois |
| Type de bien |
| Bureau |
| Aménagement |
| Construction achevée |
| Disponible |
| Maintenant |
9e étage, bureau 950
| Surface |
| 359 m² |
| Durée |
| 1-3 Ans |
| Loyer |
| 184,25 € /m²/an 15,35 € /m²/mois 66 073 € /an 5 506 € /mois |
| Type de bien |
| Bureau |
| Aménagement |
| Construction achevée |
| Disponible |
| Maintenant |
2e étage, bureau 200
| Surface | 293 m² |
| Durée | 1-3 Ans |
| Loyer | 184,25 € /m²/an |
| Type de bien | Bureau |
| Aménagement | Construction achevée |
| Disponible | Maintenant |
Highlights - Ready-to-go suites of all sizes - 1, 2, or 3 year terms - Shared conference room -Steps away from Bethesda Row Click to virtually tour - https://my.matterport.com/show/?m=Voan3yBF4dx
- Le loyer comprend les services publics, les services de l’immeuble et les frais immobiliers.
- Entièrement aménagé comme Bureau standard
- Principalement open space
- 4 bureaux privés
- 1 salle de conférence
2e étage, bureau 210
| Surface | 184 m² |
| Durée | Négociable |
| Loyer | 184,25 € /m²/an |
| Type de bien | Bureau |
| Aménagement | Construction achevée |
| Disponible | Maintenant |
Highlights - Ready-to-go suites of all sizes - 1, 2, or 3 year terms - Shared conference room -Steps away from Bethesda Row
- Le loyer comprend les services publics, les services de l’immeuble et les frais immobiliers.
- Entièrement aménagé comme Bureau standard
- 3 bureaux privés
- 2 salles de conférence
- Espace en excellent état
3e étage, bureau 330
| Surface | 195 m² |
| Durée | 1-3 Ans |
| Loyer | 184,25 € /m²/an |
| Type de bien | Bureau |
| Aménagement | Construction achevée |
| Disponible | Maintenant |
Highlights - Ready-to-go suites of all sizes - 1, 2, or 3 year terms - Shared conference room -Steps away from Bethesda Row Click to virtually tour - https://my.matterport.com/show/?m=Li4gJLdLyyR
- Le loyer comprend les services publics, les services de l’immeuble et les frais immobiliers.
- Entièrement aménagé comme Bureau standard
- Principalement open space
- 3 bureaux privés
- 1 salle de conférence
4e étage, bureau 420
| Surface | 177 m² |
| Durée | 1-3 Ans |
| Loyer | 184,25 € /m²/an |
| Type de bien | Bureau |
| Aménagement | Construction achevée |
| Disponible | Maintenant |
Highlights - Ready-to-go suites of all sizes - 1, 2, or 3 year terms - Shared conference room -Steps away from Bethesda Row
- Le loyer comprend les services publics, les services de l’immeuble et les frais immobiliers.
- Entièrement aménagé comme Bureau standard
- 6 bureaux privés
- 1 poste de travail
- Peut être associé à un ou plusieurs espaces supplémentaires pour obtenir jusqu’à 2 592 m² d’espace adjacent.
4e étage, bureau 430
| Surface | 173 m² |
| Durée | 1-3 Ans |
| Loyer | 184,25 € /m²/an |
| Type de bien | Bureau |
| Aménagement | Construction achevée |
| Disponible | Maintenant |
Highlights - Ready-to-go suites of all sizes - 1, 2, or 3 year terms - Shared conference room -Steps away from Bethesda Row
- Le loyer comprend les services publics, les services de l’immeuble et les frais immobiliers.
- Entièrement aménagé comme Bureau standard
- 5 bureaux privés
- 1 salle de conférence
- Peut être associé à un ou plusieurs espaces supplémentaires pour obtenir jusqu’à 2 592 m² d’espace adjacent.
5e étage, bureau 500
| Surface | 693 m² |
| Durée | 1-3 Ans |
| Loyer | 184,25 € /m²/an |
| Type de bien | Bureau |
| Aménagement | Construction achevée |
| Disponible | Maintenant |
Highlights - Ready-to-go suites of all sizes - 1, 2, or 3 year terms - Shared conference room -Steps away from Bethesda Row
- Le loyer comprend les services publics, les services de l’immeuble et les frais immobiliers.
- Entièrement aménagé comme Bureau standard
- Principalement open space
- 17 bureaux privés
- 2 salles de conférence
- Peut être associé à un ou plusieurs espaces supplémentaires pour obtenir jusqu’à 2 592 m² d’espace adjacent.
6e étage, bureau 600
| Surface | 774 m² |
| Durée | 1-3 Ans |
| Loyer | 184,25 € /m²/an |
| Type de bien | Bureau |
| Aménagement | Construction achevée |
| Disponible | Maintenant |
Highlights - Ready-to-go suites of all sizes - 1, 2, or 3 year terms - Shared conference room -Steps away from Bethesda Row
- Le loyer comprend les services publics, les services de l’immeuble et les frais immobiliers.
- Entièrement aménagé comme Bureau standard
- Principalement open space
- 17 bureaux privés
- 2 salles de conférence
- Peut être associé à un ou plusieurs espaces supplémentaires pour obtenir jusqu’à 2 592 m² d’espace adjacent.
7e étage, bureau 700
| Surface | 774 m² |
| Durée | 1-3 Ans |
| Loyer | 184,25 € /m²/an |
| Type de bien | Bureau |
| Aménagement | Construction achevée |
| Disponible | Maintenant |
Highlights - Ready-to-go suites of all sizes - 1, 2, or 3 year terms - Shared conference room -Steps away from Bethesda Row
- Le loyer comprend les services publics, les services de l’immeuble et les frais immobiliers.
- Entièrement aménagé comme Bureau standard
- Principalement open space
- 12 bureaux privés
- 3 salles de conférence
- 1 poste de travail
- Espace en excellent état
- Peut être associé à un ou plusieurs espaces supplémentaires pour obtenir jusqu’à 2 592 m² d’espace adjacent.
8e étage, bureau 800
| Surface | 774 m² |
| Durée | 1-3 Ans |
| Loyer | 184,25 € /m²/an |
| Type de bien | Bureau |
| Aménagement | Construction achevée |
| Disponible | 30 jours |
Highlights - Ready-to-go suites of all sizes - 1, 2, or 3 year terms - Shared conference room -Steps away from Bethesda Row
- Le loyer comprend les services publics, les services de l’immeuble et les frais immobiliers.
- Entièrement aménagé comme Bureau de services professionnels
- 20 bureaux privés
- 2 salles de conférence
- Espace en excellent état
9e étage, bureau 900
| Surface | 416 m² |
| Durée | 1-3 Ans |
| Loyer | 184,25 € /m²/an |
| Type de bien | Bureau |
| Aménagement | Construction achevée |
| Disponible | Maintenant |
Highlights - Ready-to-go suites of all sizes - 1, 2, or 3 year terms - Shared conference room -Steps away from Bethesda Row Click to virtually tour - https://my.matterport.com/show/?m=ztfPwExJ1VE
- Le loyer comprend les services publics, les services de l’immeuble et les frais immobiliers.
- Entièrement aménagé comme Bureau standard
- 12 bureaux privés
- 1 salle de conférence
- Peut être associé à un ou plusieurs espaces supplémentaires pour obtenir jusqu’à 774 m² d’espace adjacent.
9e étage, bureau 950
| Surface | 359 m² |
| Durée | 1-3 Ans |
| Loyer | 184,25 € /m²/an |
| Type de bien | Bureau |
| Aménagement | Construction achevée |
| Disponible | Maintenant |
Highlights - Ready-to-go suites of all sizes - 1, 2, or 3 year terms - Shared conference room -Steps away from Bethesda Row Click to virtually tour - https://my.matterport.com/show/?m=XgynR3szaGA
- Le loyer comprend les services publics, les services de l’immeuble et les frais immobiliers.
- Entièrement aménagé comme Bureau standard
- 8 bureaux privés
- 2 salles de conférence
- Peut être associé à un ou plusieurs espaces supplémentaires pour obtenir jusqu’à 774 m² d’espace adjacent.
Aperçu du bien
4720 Montgomery Lane, an eleven story Class A Office building, is located near the intersection of Wisconsin Avenue and Montgomery Lane. The building is located less than one block from the primary entrance to the Bethesda Metro Station, and directly across Montgomery Lane from the Metro elevator access point on Wisconsin Avenue. In addition to providing access to the Metrorail Red line, the Bethesda Metro Station is a hub for Metrobus and Montgomery County' s Ride-On bus service. Structured parking is available at 4800 Montgomery Lane. Parking ratio: 2.0/1,000 SF. Monthly self park rates are currently $130/space/month. This building was awarded an Energy Star label in 2015 for its operating efficiency. Located in Suburban Maryland, adjacent to Washington, DC.
- Installations de conférences
- Service de restauration
- Chauffage central
- Climatisation
- Détecteur de fumée
Informations sur l’immeuble
Présenté par
Montgomery Building | 4720 Montgomery Ln
Hum, une erreur s’est produite lors de l’envoi de votre message. Veuillez réessayer.
Merci ! Votre message a été envoyé.























