Votre e-mail a été envoyé.
Certaines informations ont été traduites automatiquement.
Tous les espaces disponibles(4)
Afficher les loyers en
- Espace
- Surface
- Durée
- Loyer
- Type de bien
- Aménagement
- Disponible
This space has three windowed office, a pantry, a private restroom, two conference room (one with wet bar), reception, and a large windowed work area.
- Loyer annoncé plus part proportionnelle des coûts de la consommation électrique
- Principalement open space
- Cuisine
- Partiellement aménagé comme Bureau standard
- 3 bureaux privés
- Toilettes privées
Move in ready. Fully built space. Suite is ready to go with five windowed office, conference room, pantry, open work area, storage, and reception.
- Loyer annoncé plus part proportionnelle des coûts de la consommation électrique
- Principalement open space
- 1 salle de conférence
- Partiellement aménagé comme Bureau standard
- 5 bureaux privés
- Aire de réception
Fully built space. Move in ready.
- Loyer annoncé plus part proportionnelle des coûts de la consommation électrique
- Principalement open space
- 1 salle de conférence
- Climatisation centrale
- Atrium
- Entièrement aménagé comme Bureau standard
- 14 bureaux privés
- Espace en excellent état
- Espace d’angle
- Service de restauration
Raw Space
- Loyer annoncé plus part proportionnelle des coûts de la consommation électrique
- Lumière naturelle
- Principalement open space
| Espace | Surface | Durée | Loyer | Type de bien | Aménagement | Disponible |
| 2e étage, bureau 205 | 418 m² | 3-10 Ans | Sur demande Sur demande Sur demande Sur demande | Bureaux/Médical | Construction partielle | Maintenant |
| 2e étage, bureau 280 | 271 m² | 3-10 Ans | Sur demande Sur demande Sur demande Sur demande | Bureaux/Médical | Construction partielle | Maintenant |
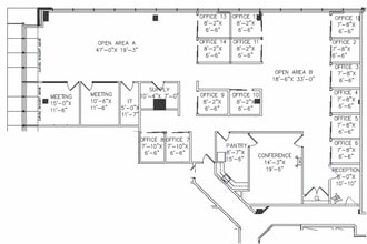
| 3e étage, bureau 340 | 464 m² | 3-10 Ans | Sur demande Sur demande Sur demande Sur demande | Bureaux/Médical | Construction achevée | Maintenant |
| 3e étage, bureau 390 | 185 m² | 3-10 Ans | Sur demande Sur demande Sur demande Sur demande | Bureau | Espace brut | Maintenant |
2e étage, bureau 205
| Surface |
| 418 m² |
| Durée |
| 3-10 Ans |
| Loyer |
| Sur demande Sur demande Sur demande Sur demande |
| Type de bien |
| Bureaux/Médical |
| Aménagement |
| Construction partielle |
| Disponible |
| Maintenant |
2e étage, bureau 280
| Surface |
| 271 m² |
| Durée |
| 3-10 Ans |
| Loyer |
| Sur demande Sur demande Sur demande Sur demande |
| Type de bien |
| Bureaux/Médical |
| Aménagement |
| Construction partielle |
| Disponible |
| Maintenant |
3e étage, bureau 340
| Surface |
| 464 m² |
| Durée |
| 3-10 Ans |
| Loyer |
| Sur demande Sur demande Sur demande Sur demande |
| Type de bien |
| Bureaux/Médical |
| Aménagement |
| Construction achevée |
| Disponible |
| Maintenant |
3e étage, bureau 390
| Surface |
| 185 m² |
| Durée |
| 3-10 Ans |
| Loyer |
| Sur demande Sur demande Sur demande Sur demande |
| Type de bien |
| Bureau |
| Aménagement |
| Espace brut |
| Disponible |
| Maintenant |
2e étage, bureau 205
| Surface | 418 m² |
| Durée | 3-10 Ans |
| Loyer | Sur demande |
| Type de bien | Bureaux/Médical |
| Aménagement | Construction partielle |
| Disponible | Maintenant |
This space has three windowed office, a pantry, a private restroom, two conference room (one with wet bar), reception, and a large windowed work area.
- Loyer annoncé plus part proportionnelle des coûts de la consommation électrique
- Partiellement aménagé comme Bureau standard
- Principalement open space
- 3 bureaux privés
- Cuisine
- Toilettes privées
2e étage, bureau 280
| Surface | 271 m² |
| Durée | 3-10 Ans |
| Loyer | Sur demande |
| Type de bien | Bureaux/Médical |
| Aménagement | Construction partielle |
| Disponible | Maintenant |
Move in ready. Fully built space. Suite is ready to go with five windowed office, conference room, pantry, open work area, storage, and reception.
- Loyer annoncé plus part proportionnelle des coûts de la consommation électrique
- Partiellement aménagé comme Bureau standard
- Principalement open space
- 5 bureaux privés
- 1 salle de conférence
- Aire de réception
3e étage, bureau 340
| Surface | 464 m² |
| Durée | 3-10 Ans |
| Loyer | Sur demande |
| Type de bien | Bureaux/Médical |
| Aménagement | Construction achevée |
| Disponible | Maintenant |
Fully built space. Move in ready.
- Loyer annoncé plus part proportionnelle des coûts de la consommation électrique
- Entièrement aménagé comme Bureau standard
- Principalement open space
- 14 bureaux privés
- 1 salle de conférence
- Espace en excellent état
- Climatisation centrale
- Espace d’angle
- Atrium
- Service de restauration
3e étage, bureau 390
| Surface | 185 m² |
| Durée | 3-10 Ans |
| Loyer | Sur demande |
| Type de bien | Bureau |
| Aménagement | Espace brut |
| Disponible | Maintenant |
Raw Space
- Loyer annoncé plus part proportionnelle des coûts de la consommation électrique
- Principalement open space
- Lumière naturelle
Caractéristiques
- Atrium
- Installations de conférences
- Service de restauration
- Étang
- Property Manager sur place
Informations sur l’immeuble
Occupants
- Étage
- Nom de l’occupant
- Secteur d’activité
- 3e
- Atmosphere Design Group
- Services professionnels, scientifiques et techniques
- Inconnu
- Mt Pleasant Medical Group
- Santé et assistance sociale
- 3e
- Northwell Health Medicine For Women
- Santé et assistance sociale
- Multi
- NYC Department of Environmental Protection
- Administration publique
- 1er
- Proactive Physical Therapy
- Santé et assistance sociale
- 3e
- Pure Dermatology & Surgery Pc
- Santé et assistance sociale
- 3e
- Signify
- Manufacture
- 1er
- Westchester Health Associates
- Santé et assistance sociale
Présenté par
465 Columbus Ave
Hum, une erreur s’est produite lors de l’envoi de votre message. Veuillez réessayer.
Merci ! Votre message a été envoyé.












