Connectez-vous/S’inscrire
Votre e-mail a été envoyé.
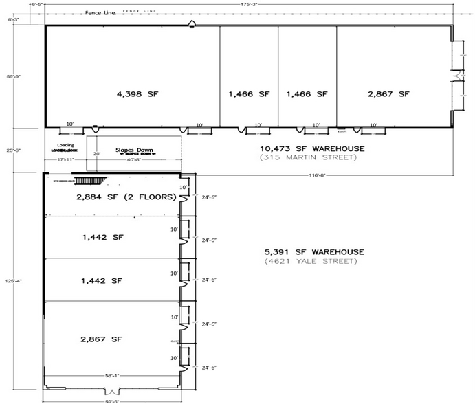
4621 Yale St Industriel/Logistique | 134–973 m² | À louer | Houston, TX 77018



Certaines informations ont été traduites automatiquement.
Caractéristiques
Hauteur libre
3,66 m
Tous les espace disponibles(1)
Afficher les loyers en
- Espace
- Surface
- Durée
- Loyer
- Type de bien
- Aménagement
- Disponible
- Espace en excellent état
| Espace | Surface | Durée | Loyer | Type de bien | Aménagement | Disponible |
| 1er étage | 134 – 973 m² | 3-10 Ans | Sur demande Sur demande Sur demande Sur demande | Industriel/Logistique | - | Maintenant |
1er étage
| Surface |
| 134 – 973 m² |
| Durée |
| 3-10 Ans |
| Loyer |
| Sur demande Sur demande Sur demande Sur demande |
| Type de bien |
| Industriel/Logistique |
| Aménagement |
| - |
| Disponible |
| Maintenant |
1 sur 5
Vidéos
Visite extérieure 3D Matterport
Visite 3D
Photos
Street view
Rue
Carte
1er étage
| Surface | 134 – 973 m² |
| Durée | 3-10 Ans |
| Loyer | Sur demande |
| Type de bien | Industriel/Logistique |
| Aménagement | - |
| Disponible | Maintenant |
- Espace en excellent état
Aperçu du bien
New Industrial, Office, Retail Development. Retail opportunities on endcaps fronting Yale and Martin Street.
Faits sur l’installation entrepôt
Surface de l’immeuble
1 394 m²
Année de construction
1970
Développement et livraisons
Métal
Zonage
N/A - S/O
1 1
Moderately walkable
60/100
Exceptionally drivable
100/100
Some public transit
40/100
Fairly bikeable
40/100
1 sur 5
Vidéos
Visite extérieure 3D Matterport
Visite 3D
Photos
Street view
Rue
Carte
1 sur 1
Présenté par
Resource Commercial Real Estate
4621 Yale St
Vous êtes déjà membre ? Connectez-vous
Hum, une erreur s’est produite lors de l’envoi de votre message. Veuillez réessayer.
Merci ! Votre message a été envoyé.



