Connectez-vous/S’inscrire
Votre e-mail a été envoyé.
Certaines informations ont été traduites automatiquement.
INFORMATIONS PRINCIPALES
- Visibilité depuis Loop 610
- Projets commerciaux et multifamiliaux adjacents à la zone
LOT DISPONIBLE
Afficher les loyers en
| Loyer |
|
Surface du lot | 1,85 ha |
| Durée du bail | Négociable |
| Loyer | |
| Durée du bail | Négociable |
| Surface du lot | 1,85 ha |
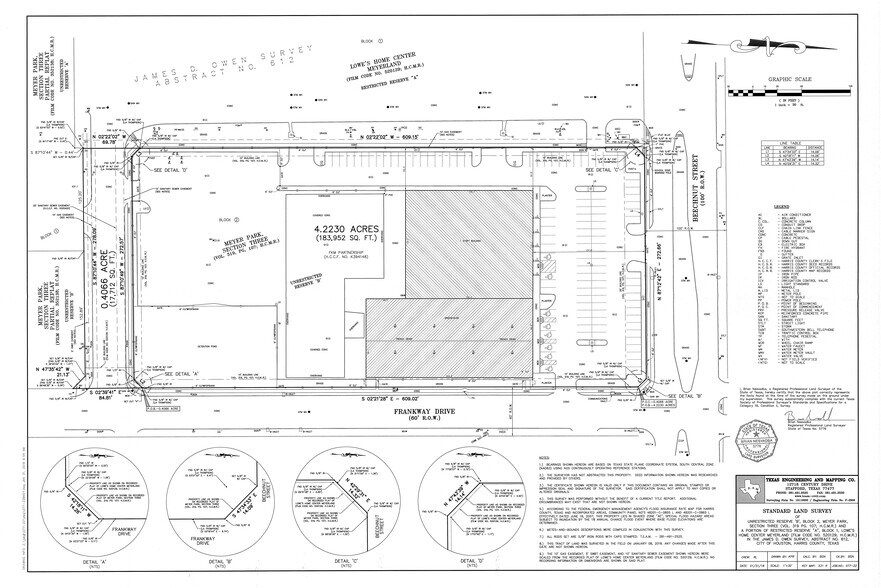
4.56-acre site ideally located just inside the 610 Loop at Beechnut and Frankway, east of Meyerland Plaza. This prime location offers convenient access to major employment centers such as The Texas Medical Center and Greenway Plaza, as well as a variety of dining and shopping options in Meyerland Plaza, Rice Village, West U, and The Galleria. With its expansive size and strategic location, 4545 Beechnut is suitable for a wide range of uses, including medical and traditional office, retail or multi-family.
APERÇU DU BIEN
Environ 4,63 acres situés au cœur de Meyerland sont disponibles pour le développement intercalaire.
INFORMATIONS SUR L’IMMEUBLE
| Espace total disponible | 1,85 ha | Sous-type de bien | Terrain commercial |
| Type de bien | Terrain | Usage proposé | Commercial |
| Espace total disponible | 1,85 ha |
| Type de bien | Terrain |
| Sous-type de bien | Terrain commercial |
| Usage proposé | Commercial |
1 1
Walk Score®
Très praticable à pied (71)
Bike Score®
Très praticable en vélo (80)
1 sur 6
VIDÉOS
VISITE EXTÉRIEURE 3D MATTERPORT
VISITE 3D
PHOTOS
STREET VIEW
RUE
CARTE
1 sur 1
Présenté par
4545 Beechnut St
Vous êtes déjà membre ? Connectez-vous
Hum, une erreur s’est produite lors de l’envoi de votre message. Veuillez réessayer.
Merci ! Votre message a été envoyé.



