Votre e-mail a été envoyé.
Macro Distribution Center San Antonio, TX 78218 Espace disponible | 1 858–6 721 m² | Industriel/Logistique



Certaines informations ont été traduites automatiquement.
Informations principales sur le parc
- Zonage : I-2 (industrie lourde)
- Excellente visibilité et accès direct au Loop 410. Moins d'une minute vers/depuis l'I-35.
- Configuration à chargement frontal
- Suites prêtes à emménager disponibles (éclairage LED d'entrepôt, nouvelles finitions de bureau)
- Rangement extérieur clôturé disponible
- Situé à quelques minutes du centre-ville de San Antonio et du campus industriel de HEB.
Faits sur le parc
Caractéristiques
- Terrain clôturé
- Visibilité de l’autoroute
Tous les espaces disponibles(3)
Afficher les loyers en
- Espace
- Surface
- Durée
- Loyer
- Type de bien
- Aménagement
- Disponible
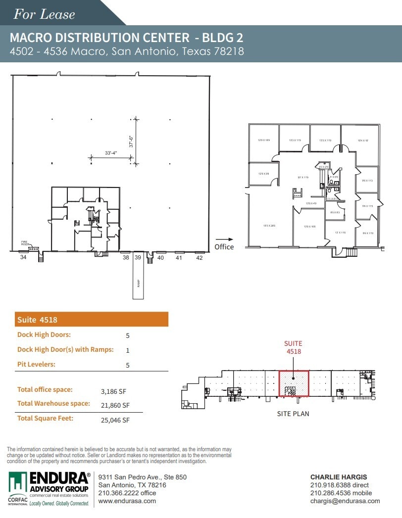
Position your operations at Macro Distribution Center – Building 2, a premier industrial facility strategically located in San Antonio’s thriving distribution corridor. This property offers exceptional functionality for logistics and warehousing, featuring a generous clear height of 22 feet and five dock-high doors equipped with pit levelers for efficient loading and unloading. A dedicated ramp and rear overhead doors enhance ventilation and operational flexibility. Suite 4518 delivers a balanced configuration of warehouse and office space, ideal for businesses seeking streamlined distribution capabilities with administrative convenience. The site’s proximity to major transportation arteries ensures seamless regional connectivity, supporting rapid access to I-35, I-10, and Loop 410 for efficient freight movement across Texas and beyond. San Antonio’s robust industrial market, coupled with its central location and growing population base, makes this an optimal choice for companies looking to expand or consolidate operations. Benefit from a business-friendly environment and strong labor pool while positioning your enterprise in a facility designed for performance and scalability.
- 1 accès plain-pied
- 5 quais de chargement
- Five dock-high doors with pit levelers
- Dedicated office space
- Espace en excellent état
- Strategic location
- 22-foot clear height
- Easy access to major highways
| Espace | Surface | Durée | Loyer | Type de bien | Aménagement | Disponible |
| 1er étage – 4518 | 2 327 m² | Négociable | Sur demande Sur demande Sur demande Sur demande | Industriel/Logistique | Construction partielle | Maintenant |
4502-4536 Macro - 1er étage – 4518
- Espace
- Surface
- Durée
- Loyer
- Type de bien
- Aménagement
- Disponible
Contact Broker for Pricing
- Le loyer ne comprend pas les services publics, les frais immobiliers ou les services de l’immeuble.
- 2 accès plain-pied
- Climatisation centrale
- Portes de quai avec rampes : 3
- Surface totale des bureaux : 2 756 pieds carrés
- Comprend 121 m² d’espace de bureau dédié
- 6 quais de chargement
- Portes de quai : 3
- Portes de rail : 3
| Espace | Surface | Durée | Loyer | Type de bien | Aménagement | Disponible |
| 1er étage – 4519 | 1 858 m² | Négociable | Sur demande Sur demande Sur demande Sur demande | Industriel/Logistique | Construction achevée | Maintenant |
4501-4525 Macro - 1er étage – 4519
- Espace
- Surface
- Durée
- Loyer
- Type de bien
- Aménagement
- Disponible
Contact Broker for Pricing
- Le loyer ne comprend pas les services publics, les frais immobiliers ou les services de l’immeuble.
- 1 accès plain-pied
- Climatisation centrale
- Comprend 187 m² d’espace de bureau dédié
- 5 quais de chargement
| Espace | Surface | Durée | Loyer | Type de bien | Aménagement | Disponible |
| 1er étage – 4706 | 2 536 m² | Négociable | Sur demande Sur demande Sur demande Sur demande | Industriel/Logistique | Construction achevée | Maintenant |
4700-4718 Macro - 1er étage – 4706
4502-4536 Macro - 1er étage – 4518
| Surface | 2 327 m² |
| Durée | Négociable |
| Loyer | Sur demande |
| Type de bien | Industriel/Logistique |
| Aménagement | Construction partielle |
| Disponible | Maintenant |
Position your operations at Macro Distribution Center – Building 2, a premier industrial facility strategically located in San Antonio’s thriving distribution corridor. This property offers exceptional functionality for logistics and warehousing, featuring a generous clear height of 22 feet and five dock-high doors equipped with pit levelers for efficient loading and unloading. A dedicated ramp and rear overhead doors enhance ventilation and operational flexibility. Suite 4518 delivers a balanced configuration of warehouse and office space, ideal for businesses seeking streamlined distribution capabilities with administrative convenience. The site’s proximity to major transportation arteries ensures seamless regional connectivity, supporting rapid access to I-35, I-10, and Loop 410 for efficient freight movement across Texas and beyond. San Antonio’s robust industrial market, coupled with its central location and growing population base, makes this an optimal choice for companies looking to expand or consolidate operations. Benefit from a business-friendly environment and strong labor pool while positioning your enterprise in a facility designed for performance and scalability.
- 1 accès plain-pied
- Espace en excellent état
- 5 quais de chargement
- Strategic location
- Five dock-high doors with pit levelers
- 22-foot clear height
- Dedicated office space
- Easy access to major highways
4501-4525 Macro - 1er étage – 4519
| Surface | 1 858 m² |
| Durée | Négociable |
| Loyer | Sur demande |
| Type de bien | Industriel/Logistique |
| Aménagement | Construction achevée |
| Disponible | Maintenant |
Contact Broker for Pricing
- Le loyer ne comprend pas les services publics, les frais immobiliers ou les services de l’immeuble.
- Comprend 121 m² d’espace de bureau dédié
- 2 accès plain-pied
- 6 quais de chargement
- Climatisation centrale
- Portes de quai : 3
- Portes de quai avec rampes : 3
- Portes de rail : 3
- Surface totale des bureaux : 2 756 pieds carrés
4700-4718 Macro - 1er étage – 4706
| Surface | 2 536 m² |
| Durée | Négociable |
| Loyer | Sur demande |
| Type de bien | Industriel/Logistique |
| Aménagement | Construction achevée |
| Disponible | Maintenant |
Contact Broker for Pricing
- Le loyer ne comprend pas les services publics, les frais immobiliers ou les services de l’immeuble.
- Comprend 187 m² d’espace de bureau dédié
- 1 accès plain-pied
- 5 quais de chargement
- Climatisation centrale
Vue d’ensemble du parc
Le Macro Distribution Center est situé près de l'intersection de l'Interstate 35 et de la Loop 410, dans le nord-est de San Antonio. Dans la zone de service de Fort Sam Houston, du centre médical militaire de San Antonio et de la zone de distribution de Rittiman. Le projet offre un accès immédiat entre les États et des configurations fonctionnelles à chargement frontal. Situé à quelques minutes du centre-ville de San Antonio et du campus industriel de HEB.
Présenté par
Macro Distribution Center | San Antonio, TX 78218
Hum, une erreur s’est produite lors de l’envoi de votre message. Veuillez réessayer.
Merci ! Votre message a été envoyé.






