Connectez-vous/S’inscrire
Votre e-mail a été envoyé.
Corporate Center II 4456 Corporation Ln Bureau 5 020 m² À vendre Virginia Beach, VA 23462 4 856 229 € (967,41 €/m²)



Certaines informations ont été traduites automatiquement.
INFORMATIONS PRINCIPALES SUR L'INVESTISSEMENT
- Immeuble de bureaux de classe de qualité B+
- Excellente gamme de fenêtres avec configuration flexible de l'aménagement des bureaux
- Situé dans le sous-marché le plus réputé de la MSA ; emplacement régional très accessible
- Deuxième étage complet disponible, parfait pour les utilisateurs propriétaires
- Emplacement privilégié en centre-ville ; à proximité des commodités du centre-ville
- Financement attractif ; Assumable
RÉSUMÉ ANALYTIQUE
Colliers a le plaisir de présenter Corporate Center 2 à vendre pour la première fois depuis plus de dix ans. Le bâtiment est situé dans le quartier animé du centre-ville de Virginia Beach, l'un des sous-marchés les moins vacants de la région. D'une superficie de ± 53 000 pieds carrés, le bâtiment est de taille moyenne avec des plaques de sol flexibles et une ligne entièrement vitrée. Cela facilite l'aménagement des bureaux, que ce soit dans un espace ouvert ou dans un bureau privé. À quelques minutes en voiture de l'I-264, vous pourrez accéder facilement à la région et toutes les commodités du centre-ville et du centre commercial Pembroke en font un endroit formidable
emplacement.
Dans son état actuel, il s'agit d'une occasion idéale pour un propriétaire-utilisateur d'acheter le bâtiment et de permettre aux autres locataires de payer une part importante du service de la dette. Le bâtiment a également le potentiel d'être repositionné et remis sur le marché en tant qu'immeuble de bureaux à locataires multiples dans l'un des sous-marchés les plus prisés de la région.
emplacement.
Dans son état actuel, il s'agit d'une occasion idéale pour un propriétaire-utilisateur d'acheter le bâtiment et de permettre aux autres locataires de payer une part importante du service de la dette. Le bâtiment a également le potentiel d'être repositionné et remis sur le marché en tant qu'immeuble de bureaux à locataires multiples dans l'un des sous-marchés les plus prisés de la région.
INFORMATIONS SUR L’IMMEUBLE
Type de vente
Propriétaire occupant
Condition de vente
Bien à vacance élevée
Type de bien
Bureau
Surface de l’immeuble
5 020 m²
Classe d’immeuble
B
Année de construction/rénovation
1982/1999
Prix
4 856 229 €
Prix par m²
967,41 €
Occupation
Multi
Hauteur du bâtiment
3 étages
Surface type par étage
1 673 m²
Dalle à dalle
3,35 m
Coefficient d’occupation des sols de l’immeuble
0,35
Surface du lot
1,45 ha
Zonage
B3 - Mixed Use
Stationnement
212 places (42,23 places par 1 000 m² loué)
CARACTÉRISTIQUES
- Accès 24 h/24
- Atrium
- Banque
- Ligne d’autobus
- Accès contrôlé
- Signalisation
DISPONIBILITÉ DE L’ESPACE
- ESPACE
- SURFACE
- TYPE DE BIEN
- ÉTAT
- DISPONIBLE
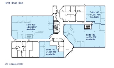
- 1er Ét.-bureau 100
- 430 m²
- Bureau
- -
- Maintenant
- 1er Ét.-bureau 142
- 154 m²
- Bureau
- -
- Maintenant
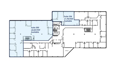
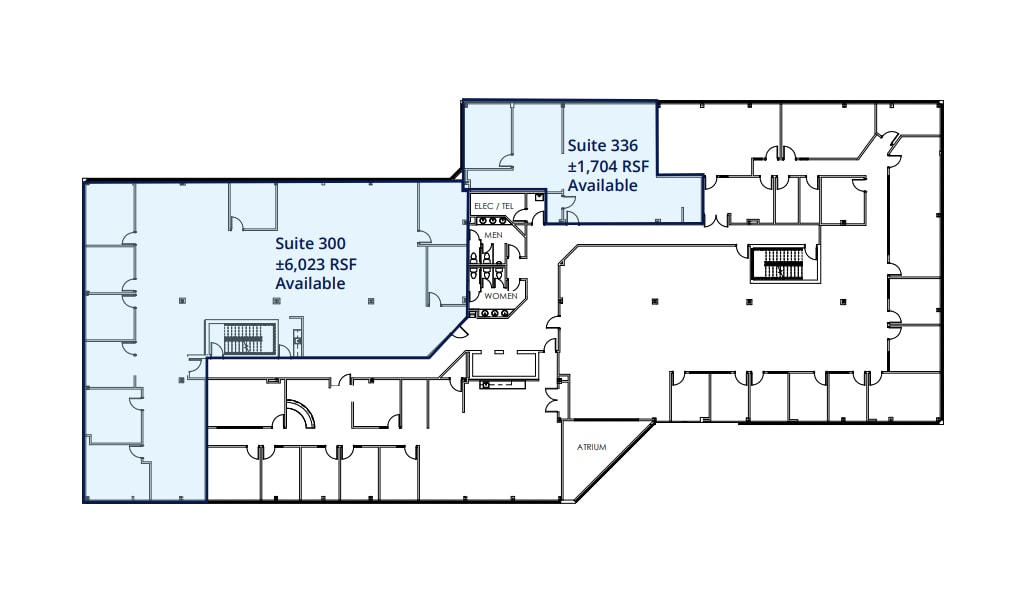
- 3e Ét.-bureau 300
- 560 m²
- Bureau
- -
- Maintenant
| Espace | Surface | Type de bien | État | Disponible |
| 1er Ét.-bureau 100 | 430 m² | Bureau | - | Maintenant |
| 1er Ét.-bureau 120 | 403 m² | Bureau | - | Maintenant |
| 1er Ét.-bureau 142 | 154 m² | Bureau | - | Maintenant |
| 2e Ét.-bureau 200 | 1 673 m² | Bureau | - | Maintenant |
| 3e Ét.-bureau 300 | 560 m² | Bureau | - | Maintenant |
| 3e Ét.-bureau 336 | 158 m² | Bureau | - | Maintenant |
1er Ét.-bureau 100
| Surface |
| 430 m² |
| Type de bien |
| Bureau |
| État |
| - |
| Disponible |
| Maintenant |
1er Ét.-bureau 120
| Surface |
| 403 m² |
| Type de bien |
| Bureau |
| État |
| - |
| Disponible |
| Maintenant |
1er Ét.-bureau 142
| Surface |
| 154 m² |
| Type de bien |
| Bureau |
| État |
| - |
| Disponible |
| Maintenant |
2e Ét.-bureau 200
| Surface |
| 1 673 m² |
| Type de bien |
| Bureau |
| État |
| - |
| Disponible |
| Maintenant |
3e Ét.-bureau 300
| Surface |
| 560 m² |
| Type de bien |
| Bureau |
| État |
| - |
| Disponible |
| Maintenant |
3e Ét.-bureau 336
| Surface |
| 158 m² |
| Type de bien |
| Bureau |
| État |
| - |
| Disponible |
| Maintenant |
1 sur 1
VIDÉOS
VISITE EXTÉRIEURE 3D MATTERPORT
VISITE 3D
PHOTOS
STREET VIEW
RUE
CARTE
1er Ét.-bureau 120
| Surface | 403 m² |
| Type de bien | Bureau |
| État | - |
| Disponible | Maintenant |
1 sur 1
VIDÉOS
VISITE EXTÉRIEURE 3D MATTERPORT
VISITE 3D
PHOTOS
STREET VIEW
RUE
CARTE
2e Ét.-bureau 200
| Surface | 1 673 m² |
| Type de bien | Bureau |
| État | - |
| Disponible | Maintenant |
1 sur 1
VIDÉOS
VISITE EXTÉRIEURE 3D MATTERPORT
VISITE 3D
PHOTOS
STREET VIEW
RUE
CARTE
3e Ét.-bureau 336
| Surface | 158 m² |
| Type de bien | Bureau |
| État | - |
| Disponible | Maintenant |
1 1
TAXES FONCIÈRES
| Numéro de parcelle | 1477-66-6747 | Évaluation des aménagements | 3 860 787 € |
| Évaluation du terrain | 1 056 358 € | Évaluation totale | 4 917 145 € |
TAXES FONCIÈRES
Numéro de parcelle
1477-66-6747
Évaluation du terrain
1 056 358 €
Évaluation des aménagements
3 860 787 €
Évaluation totale
4 917 145 €
1 sur 8
VIDÉOS
VISITE EXTÉRIEURE 3D MATTERPORT
VISITE 3D
PHOTOS
STREET VIEW
RUE
CARTE
1 sur 1
Présenté par
Corporate Center II | 4456 Corporation Ln
Vous êtes déjà membre ? Connectez-vous
Hum, une erreur s’est produite lors de l’envoi de votre message. Veuillez réessayer.
Merci ! Votre message a été envoyé.







