Votre e-mail a été envoyé.
Barclay Centre 444 7th Ave SW Bureau | 369–6 838 m² | 4 étoiles | À louer | Calgary, AB T2P 0X8



Certaines informations ont été traduites automatiquement.
Informations principales
- High end fitness and well appointed conference facilities available for tenants use
- +15 Connected to First Canadian Centre, TD Square and The CORE
Tous les espaces disponibles(4)
Afficher les loyers en
- Espace
- Surface
- Durée
- Loyer
- Type de bien
- Aménagement
- Disponible
- Entièrement aménagé comme Bureau standard
- Disposition open space
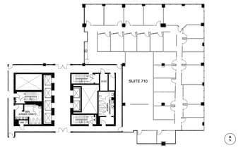
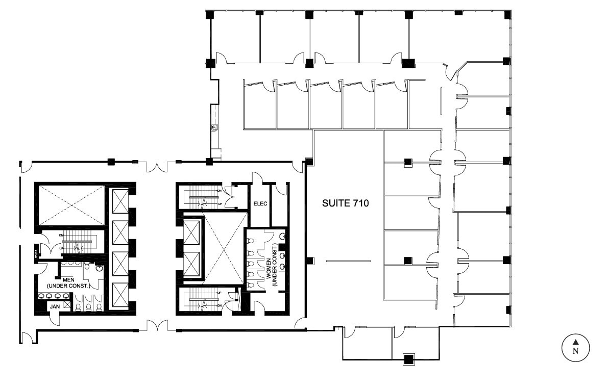
Suite 710 offer 8,366 square feet of office intensive space with 13 exterior offices, 10 interior offices, a boardroom, rolling file storage, copy area, storage area, kitchen, and reception.
- Entièrement aménagé comme Bureau standard
- 1 salle de conférence
- Climatisation centrale
- Salle d’impression/photocopie
- Entreposage sécurisé
- 23 bureaux privés
- Espace en excellent état
- Aire de réception
- Toilettes privées
Suite 850 offers 3,968 square feet of open office space with 2 private offices, 12 workstations, and a reception.
- Entièrement aménagé comme Bureau standard
- 2 bureaux privés
- Espace en excellent état
- Espace d’angle
- Disposition open space
- 12 postes de travail
- Aire de réception
- Partiellement aménagé comme Bureau standard
- Disposition open space
| Espace | Surface | Durée | Loyer | Type de bien | Aménagement | Disponible |
| 6e étage, bureau 600 | 2 579 m² | Négociable | Sur demande Sur demande Sur demande Sur demande | Bureau | Construction achevée | Maintenant |
| 7e étage, bureau 710 | 777 m² | Négociable | Sur demande Sur demande Sur demande Sur demande | Bureau | Construction achevée | Maintenant |
| 8e étage, bureau 810 | 369 m² | Négociable | Sur demande Sur demande Sur demande Sur demande | Bureau | Construction achevée | Maintenant |
| 10e étage, bureau 1010 | 1 568 – 3 113 m² | Négociable | Sur demande Sur demande Sur demande Sur demande | Bureau | Construction partielle | Maintenant |
6e étage, bureau 600
| Surface |
| 2 579 m² |
| Durée |
| Négociable |
| Loyer |
| Sur demande Sur demande Sur demande Sur demande |
| Type de bien |
| Bureau |
| Aménagement |
| Construction achevée |
| Disponible |
| Maintenant |
7e étage, bureau 710
| Surface |
| 777 m² |
| Durée |
| Négociable |
| Loyer |
| Sur demande Sur demande Sur demande Sur demande |
| Type de bien |
| Bureau |
| Aménagement |
| Construction achevée |
| Disponible |
| Maintenant |
8e étage, bureau 810
| Surface |
| 369 m² |
| Durée |
| Négociable |
| Loyer |
| Sur demande Sur demande Sur demande Sur demande |
| Type de bien |
| Bureau |
| Aménagement |
| Construction achevée |
| Disponible |
| Maintenant |
10e étage, bureau 1010
| Surface |
| 1 568 – 3 113 m² |
| Durée |
| Négociable |
| Loyer |
| Sur demande Sur demande Sur demande Sur demande |
| Type de bien |
| Bureau |
| Aménagement |
| Construction partielle |
| Disponible |
| Maintenant |
6e étage, bureau 600
| Surface | 2 579 m² |
| Durée | Négociable |
| Loyer | Sur demande |
| Type de bien | Bureau |
| Aménagement | Construction achevée |
| Disponible | Maintenant |
- Entièrement aménagé comme Bureau standard
- Disposition open space
7e étage, bureau 710
| Surface | 777 m² |
| Durée | Négociable |
| Loyer | Sur demande |
| Type de bien | Bureau |
| Aménagement | Construction achevée |
| Disponible | Maintenant |
Suite 710 offer 8,366 square feet of office intensive space with 13 exterior offices, 10 interior offices, a boardroom, rolling file storage, copy area, storage area, kitchen, and reception.
- Entièrement aménagé comme Bureau standard
- 23 bureaux privés
- 1 salle de conférence
- Espace en excellent état
- Climatisation centrale
- Aire de réception
- Salle d’impression/photocopie
- Toilettes privées
- Entreposage sécurisé
8e étage, bureau 810
| Surface | 369 m² |
| Durée | Négociable |
| Loyer | Sur demande |
| Type de bien | Bureau |
| Aménagement | Construction achevée |
| Disponible | Maintenant |
Suite 850 offers 3,968 square feet of open office space with 2 private offices, 12 workstations, and a reception.
- Entièrement aménagé comme Bureau standard
- Disposition open space
- 2 bureaux privés
- 12 postes de travail
- Espace en excellent état
- Aire de réception
- Espace d’angle
10e étage, bureau 1010
| Surface | 1 568 – 3 113 m² |
| Durée | Négociable |
| Loyer | Sur demande |
| Type de bien | Bureau |
| Aménagement | Construction partielle |
| Disponible | Maintenant |
- Partiellement aménagé comme Bureau standard
- Disposition open space
Aperçu du bien
444 7th Ave SW is a 245,000 square foot, 10-story office building. The property is BOMA Best Certified Gold and was WELL Health and Safety Rated in 2020.
- Centre de fitness
- Métro
Informations sur l’immeuble
Occupants
- Étage
- Nom de l’occupant
- Secteur d’activité
- 6e
- ATB Financial
- Finance et assurances
- 5e
- CGI
- Services professionnels, scientifiques et techniques
- 8e
- CPA Alberta
- Services
- 7e
- Explore
- Services professionnels, scientifiques et techniques
- Multi
- Field Law
- Services professionnels, scientifiques et techniques
- 2e
- FRESH!
- Arts, divertissement et loisirs
- 9e
- Office of the Public Guardian and Trustee
- Administration publique
- 7e
- Prospera Energy
- Exploitation minière, carrière et extraction de pétrole et de gaz
- Multi
- Southern Alberta Institute of Technology
- Services éducatifs
- 2e
- The Downtown Sports Clinic
- Santé et assistance sociale
Présenté par
Barclay Centre | 444 7th Ave SW
Hum, une erreur s’est produite lors de l’envoi de votre message. Veuillez réessayer.
Merci ! Votre message a été envoyé.







