Votre e-mail a été envoyé.
Certaines informations ont été traduites automatiquement.
Informations principales
- Professional office space in a prime Bucks County suburban location
- Turn-key delivery and custom design options
- Close to Oxford Valley Mall, Jefferson Bucks Hospital and Sesame Place
- Recently upgraded lobby and common areas
- Excellent access to Oxford Valley Rd, U.S. Hwy 1, I-295/I-95, & PA/NJ Turnpike
- Minutes from Holiday Inn Express, Courtyard by Marriott, and Sheraton
Tous les espaces disponibles(2)
Afficher les loyers en
- Espace
- Surface
- Durée
- Loyer
- Type de bien
- Aménagement
- Disponible
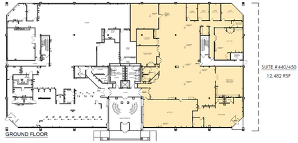
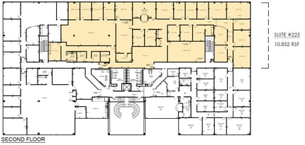
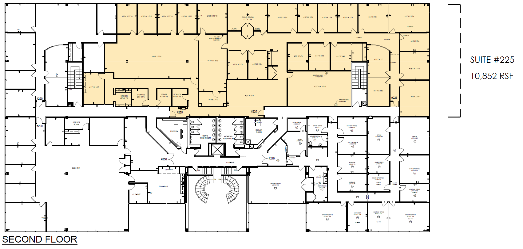
SVN is pleased to present a high-quality office building in a prime location, offering a functional and versatile layout ideal for a wide range of professional uses. The property is anchored by the Social Security Administration and has recently undergone renovations. It features turn-key suites with 12,482 RSF on the first floor and 10,852 RSF on the second floor, subdividable. Tenants enjoy modern conveniences including keyless entry, 24-hour access, elevator service, full sprinkler coverage, and ADA compliance. Strategically located in an amenity-rich area, the building is surrounded by numerous restaurants and hotels, with excellent access to major commuter routes and public transportation.
- Il est possible que le loyer annoncé ne comprenne pas certains services publics, services d’immeuble et frais immobiliers.
- Convient pour 32 à 100 personnes
- Plan d’étage avec bureaux fermés
SVN is pleased to present a high-quality office building in a prime location, offering a functional and versatile layout ideal for a wide range of professional uses. The property is anchored by the Social Security Administration and has recently undergone renovations. It features turn-key suites with 12,482 RSF on the first floor and 10,852 RSF on the second floor, subdividable. Tenants enjoy modern conveniences including keyless entry, 24-hour access, elevator service, full sprinkler coverage, and ADA compliance. Strategically located in an amenity-rich area, the building is surrounded by numerous restaurants and hotels, with excellent access to major commuter routes and public transportation.
- Il est possible que le loyer annoncé ne comprenne pas certains services publics, services d’immeuble et frais immobiliers.
- Convient pour 28 à 87 personnes
- Plan d’étage avec bureaux fermés
| Espace | Surface | Durée | Loyer | Type de bien | Aménagement | Disponible |
| 1er étage | 1 160 m² | Négociable | 179,02 € /m²/an 14,92 € /m²/mois 207 595 € /an 17 300 € /mois | Bureau | - | Maintenant |
| 2e étage, bureau 225 | 1 008 m² | Négociable | 179,02 € /m²/an 14,92 € /m²/mois 180 486 € /an 15 040 € /mois | Bureau | - | Maintenant |
1er étage
| Surface |
| 1 160 m² |
| Durée |
| Négociable |
| Loyer |
| 179,02 € /m²/an 14,92 € /m²/mois 207 595 € /an 17 300 € /mois |
| Type de bien |
| Bureau |
| Aménagement |
| - |
| Disponible |
| Maintenant |
2e étage, bureau 225
| Surface |
| 1 008 m² |
| Durée |
| Négociable |
| Loyer |
| 179,02 € /m²/an 14,92 € /m²/mois 180 486 € /an 15 040 € /mois |
| Type de bien |
| Bureau |
| Aménagement |
| - |
| Disponible |
| Maintenant |
1er étage
| Surface | 1 160 m² |
| Durée | Négociable |
| Loyer | 179,02 € /m²/an |
| Type de bien | Bureau |
| Aménagement | - |
| Disponible | Maintenant |
SVN is pleased to present a high-quality office building in a prime location, offering a functional and versatile layout ideal for a wide range of professional uses. The property is anchored by the Social Security Administration and has recently undergone renovations. It features turn-key suites with 12,482 RSF on the first floor and 10,852 RSF on the second floor, subdividable. Tenants enjoy modern conveniences including keyless entry, 24-hour access, elevator service, full sprinkler coverage, and ADA compliance. Strategically located in an amenity-rich area, the building is surrounded by numerous restaurants and hotels, with excellent access to major commuter routes and public transportation.
- Il est possible que le loyer annoncé ne comprenne pas certains services publics, services d’immeuble et frais immobiliers.
- Plan d’étage avec bureaux fermés
- Convient pour 32 à 100 personnes
2e étage, bureau 225
| Surface | 1 008 m² |
| Durée | Négociable |
| Loyer | 179,02 € /m²/an |
| Type de bien | Bureau |
| Aménagement | - |
| Disponible | Maintenant |
SVN is pleased to present a high-quality office building in a prime location, offering a functional and versatile layout ideal for a wide range of professional uses. The property is anchored by the Social Security Administration and has recently undergone renovations. It features turn-key suites with 12,482 RSF on the first floor and 10,852 RSF on the second floor, subdividable. Tenants enjoy modern conveniences including keyless entry, 24-hour access, elevator service, full sprinkler coverage, and ADA compliance. Strategically located in an amenity-rich area, the building is surrounded by numerous restaurants and hotels, with excellent access to major commuter routes and public transportation.
- Il est possible que le loyer annoncé ne comprenne pas certains services publics, services d’immeuble et frais immobiliers.
- Plan d’étage avec bureaux fermés
- Convient pour 28 à 87 personnes
Aperçu du bien
SVN is pleased to present a high-quality office building in a prime location, offering a functional and versatile layout ideal for a wide range of professional uses. The property is anchored by the Social Security Administration and has recently undergone renovations. It features turn-key suites with 12,482 RSF on the first floor and 10,852 RSF on the second floor, subdividable. Tenants enjoy modern conveniences including keyless entry, 24-hour access, elevator service, full sprinkler coverage, and ADA compliance. Strategically located in an amenity-rich area, the building is surrounded by numerous restaurants and hotels, with excellent access to major commuter routes and public transportation. The site is located on the north side of Lincoln Highway, the area's main throughway, with excellent access to the regional highway system, including U.S. Highway 1, U.S. Route 13, I-95, Oxford Valley Road and the PA and NJ Turnpikes. Convenient location near the New Jersey state border and an easily commutable distance to Philadelphia. Accessible and convenient location sits in close proximity to dense residential developments and an abundance of neighborhood amenities.
- Property Manager sur place
- Système de sécurité
- Wi-Fi
- Climatisation
- Détecteur de fumée
Informations sur l’immeuble
Occupants
- Étage
- Nom de l’occupant
- Secteur d’activité
- 2e
- Diamatrix Inc
- Finance et assurances
- 2e
- Livengrin Foundation
- Santé et assistance sociale
- 2e
- Orion Systems Inc
- Manufacture
- 1er
- Social Security Administration
- Administration publique
- Multi
- Township of Falls
- Administration publique
Présenté par
430-450 Lincoln Hwy
Hum, une erreur s’est produite lors de l’envoi de votre message. Veuillez réessayer.
Merci ! Votre message a été envoyé.








