Votre e-mail a été envoyé.
Certaines informations ont été traduites automatiquement.
Informations principales
- Prime West 14th Street frontage in the heart of Manhattan’s highly sought-after Meatpacking/Chelsea corridor.
- Excellent pedestrian traffic driven by proximity to Hudson River Park, the High Line, and major transit hubs.
- Classic pre-war construction (1929) offering character and strong street presence.
- High-visibility location surrounded by nationally recognized retailers, restaurants, and lifestyle brands.
- Versatile commercial building suitable for retail, showroom, or creative office users.
- Located in a Walker’s and Transit Paradise, ensuring seamless accessibility for customers and employees alike.
Disponibilité de l’espace (6)
Afficher le tarif en
- Espace
- Surface
- Durée
- Loyer
- Type de loyer
| Espace | Surface | Durée | Loyer | Type de loyer | ||
| Niveau inférieur | 273 m² | 5-15 Ans | Sur demande Sur demande Sur demande Sur demande | À déterminer | ||
| RDC | 267 m² | 5-15 Ans | Sur demande Sur demande Sur demande Sur demande | À déterminer | ||
| 2e étage | 244 m² | 5-15 Ans | Sur demande Sur demande Sur demande Sur demande | À déterminer | ||
| Mezzanine | 185 m² | 5-15 Ans | Sur demande Sur demande Sur demande Sur demande | À déterminer | ||
| 3e étage | 325 m² | Négociable | Sur demande Sur demande Sur demande Sur demande | À déterminer | ||
| 4e étage | 325 m² | Négociable | Sur demande Sur demande Sur demande Sur demande | À déterminer |
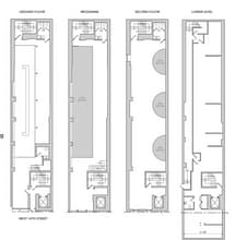
Niveau inférieur
• 10,426 SF former bar/restaurant • Potential to add the Third and Fourth Floors for a full-building flagship • Ground Floor has double-height ceiling • Lower Level with gas connection, venting infrastructure and storage/prep areas • Previous tenant had a liquor license and C of O for 299 people • Restaurant, retail, and all other uses considered
- Entièrement aménagé comme Local commercial standard
- Contigu et aligné avec d’autres locaux commerciaux
- Espace en excellent état
RDC
• 10,426 SF former bar/restaurant • Potential to add the Third and Fourth Floors for a full-building flagship • Ground Floor has double-height ceiling • Lower Level with gas connection, venting infrastructure and storage/prep areas • Previous tenant had a liquor license and C of O for 299 people • Restaurant, retail, and all other uses considered
- Entièrement aménagé comme Local commercial standard
- Contigu et aligné avec d’autres locaux commerciaux
- Espace en excellent état
2e étage
• 10,426 SF former bar/restaurant • Potential to add the Third and Fourth Floors for a full-building flagship • Ground Floor has double-height ceiling • Lower Level with gas connection, venting infrastructure and storage/prep areas • Previous tenant had a liquor license and C of O for 299 people • Restaurant, retail, and all other uses considered
- Entièrement aménagé comme Local commercial standard
- Contigu et aligné avec d’autres locaux commerciaux
- Espace en excellent état
Mezzanine
• 10,426 SF former bar/restaurant • Potential to add the Third and Fourth Floors for a full-building flagship • Ground Floor has double-height ceiling • Lower Level with gas connection, venting infrastructure and storage/prep areas • Previous tenant had a liquor license and C of O for 299 people • Restaurant, retail, and all other uses considered
- Entièrement aménagé comme Local commercial standard
- Contigu et aligné avec d’autres locaux commerciaux
- Espace en excellent état
3e étage
Entire 3rd and 4th Floors can be leased individually or together
- Entièrement aménagé comme Bureau standard
- Principalement open space
- Convient pour 9 à 28 personnes
- Espace en excellent état
4e étage
Entire 3rd and 4th Floors can be leased individually or together
- Entièrement aménagé comme Bureau standard
- Principalement open space
- Convient pour 9 à 28 personnes
- Espace en excellent état
Types de loyers
Le montant et le type de loyer que l’occupant (locataire) est tenu de payer au propriétaire (bailleur) sur la durée du bail sont négociés avant la signature du bail par les deux parties. Le type de loyer varie selon les services fournis. Par exemple, le prix d’un loyer triple net est habituellement inférieur à celui d’un bail à service complet puisque l’occupant est tenu d’assumer des dépenses supplémentaires par rapport au loyer de base. Contacter le broker chargé de l’annonce pour bien comprendre les coûts associés ou les dépenses supplémentaires pour chaque type de loyer.
1. Service complet: Un loyer qui comprend des services d’immeuble standards normaux fournis par le propriétaire dans le cadre d’une location annuelle de base.
2. Double net (NN): L’occupant paie seulement deux des frais de l’immeuble. Le propriétaire et l’occupant déterminent ces frais spécifiques avant la signature du bail.
3. Triple net (NNN): Un bail selon lequel l’occupant est responsable de tous les frais liés à sa part proportionnelle d’occupation de l’immeuble.
4. Brut modifié: Le brut modifié est un type général de bail dans lequel l’occupant est en général responsable de sa part proportionnelle d’une ou de plusieurs dépenses. C’est le propriétaire qui paie les frais restants. Consultez la liste ci-dessous pour connaître les structures de loyers bruts modifiés les plus courantes : 4. Plus services publics: Un type de bail brut modifié, où l’occupant est responsable à hauteur de sa part proportionnelle des services publics en plus du loyer. 4. Plus nettoyage: Un type de bail brut modifié, où l’occupant est responsable à hauteur de sa part proportionnelle du nettoyage en plus du loyer. 4. Plus électricité: Un type de bail brut modifié, où l’occupant est responsable à hauteur de sa part proportionnelle du coût de la consommation électrique en plus du loyer. 4. Plus électricité et nettoyage: Un type de bail brut modifié, où l’occupant est responsable à hauteur de sa part proportionnelle du coût de la consommation électrique et du nettoyage en plus du loyer. 4. Plus services publics et charges: Un type de bail brut modifié où l’occupant est responsable à hauteur de sa part proportionnelle des services publics et du coût de nettoyage en plus du loyer. 4. Bail industriel brut: Un type de bail brut modifié dans lequel l’occupant paie un ou plusieurs des frais en plus du loyer. Le propriétaire et l’occupant déterminent ces frais spécifiques avant la signature du bail.
5. Électricité à la charge de l’occupant: Le propriétaire paie pour tous les services et l’occupant est responsable de sa propre utilisation de l’éclairage et des prises électriques dans l’espace qu’il occupe.
6. Négociable ou sur demande: Cette option est utilisée lorsque le contact de location n’indique pas le type de loyer ou de service.
7. À déterminer: À déterminer : utilisé pour les immeubles dont le type de services ou de loyer n’est pas connu, souvent quand l’immeuble n’est pas encore construit.
Informations sur l’immeuble
| Espace total disponible | 1 619 m² | Surface commerciale utile | 1 842 m² |
| Type de bien | Local commercial | Année de construction | 1929 |
| Sous-type de bien | Bien à usage mixte |
| Espace total disponible | 1 619 m² |
| Type de bien | Local commercial |
| Sous-type de bien | Bien à usage mixte |
| Surface commerciale utile | 1 842 m² |
| Année de construction | 1929 |
À propos du bien
Perfectly positioned at the crossroads of Chelsea and the Meatpacking District, 407 West 14th Street offers an exceptional opportunity to own or occupy space in one of Manhattan’s most dynamic neighborhoods. Surrounded by iconic architecture, world-class dining, and premier shopping, this address places you just steps from the High Line, Hudson River Park, and vibrant West Chelsea galleries. The property blends classic New York character with modern urban energy, making it ideal for residential, commercial, or mixed-use potential (as applicable). Large windows invite abundant natural light, while the building’s presence on West 14th Street ensures strong visibility and accessibility. With convenient proximity to multiple subway lines, major avenues, and downtown destinations, this location delivers unmatched connectivity and lifestyle appeal.
Principaux commerces à proximité
Présenté par
407 W 14th St
Hum, une erreur s’est produite lors de l’envoi de votre message. Veuillez réessayer.
Merci ! Votre message a été envoyé.
















