Votre e-mail a été envoyé.
404 N Halstead St Local d’activités | 1 149 m² | À louer | Pasadena, CA 91107



Certaines informations ont été traduites automatiquement.
Informations principales sur la sous-location
- Fully air-conditioned and heated facility with cleanroom capabilities.
- Includes 20-ton water chiller and high-purity nitrogen system.
- Located across from Hastings Village Shopping Center with nearby dining options.
- Equipped with 480V, 600A electrical service and upgraded switchgear.
- 34 dedicated parking spaces on-site for convenience.
- Easy access to 210 Freeway and Gold Line Station within 10 minutes.
Caractéristiques
Tous les espace disponibles(1)
Afficher les loyers en
- Espace
- Surface
- Durée
- Loyer
- Type de bien
- Aménagement
- Disponible
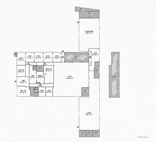
Approximately 12,365 square feet available for sublease, including 8,500 square feet of lab space and 3,500 square feet of office space. The sublease term runs through April 30, 2026, offering a short-term occupancy solution for specialized users. The space includes a 1,400 square foot bonus mezzanine and is fully equipped with lab infrastructure, including cleanroom capabilities, chilled water systems, and exhaust units.
- Espace en sous-location disponible auprès de l’occupant actuel
- Ventilation et chauffage centraux
- Fully equipped lab-ready space
- Comprend 325 m² d’espace de bureau dédié
- Sublease through April 2026
- Includes bonus mezzanine area
| Espace | Surface | Durée | Loyer | Type de bien | Aménagement | Disponible |
| 1er étage | 1 149 m² | Avr. 2028 | Sur demande Sur demande Sur demande Sur demande | Local d’activités | Construction partielle | Maintenant |
1er étage
| Surface |
| 1 149 m² |
| Durée |
| Avr. 2028 |
| Loyer |
| Sur demande Sur demande Sur demande Sur demande |
| Type de bien |
| Local d’activités |
| Aménagement |
| Construction partielle |
| Disponible |
| Maintenant |
1er étage
| Surface | 1 149 m² |
| Durée | Avr. 2028 |
| Loyer | Sur demande |
| Type de bien | Local d’activités |
| Aménagement | Construction partielle |
| Disponible | Maintenant |
Approximately 12,365 square feet available for sublease, including 8,500 square feet of lab space and 3,500 square feet of office space. The sublease term runs through April 30, 2026, offering a short-term occupancy solution for specialized users. The space includes a 1,400 square foot bonus mezzanine and is fully equipped with lab infrastructure, including cleanroom capabilities, chilled water systems, and exhaust units.
- Espace en sous-location disponible auprès de l’occupant actuel
- Comprend 325 m² d’espace de bureau dédié
- Ventilation et chauffage centraux
- Sublease through April 2026
- Fully equipped lab-ready space
- Includes bonus mezzanine area
Aperçu du bien
404 N. Halstead Street in Pasadena, CA, is a well-designed facility offering a combination of laboratory and office environments. The building features approximately 12,365 square feet of space, including a bonus mezzanine area, and is fully air-conditioned and heated for year-round comfort. It is equipped with advanced infrastructure such as a 20-ton water chiller, high-purity nitrogen distribution, and several exhaust units suitable for lab operations. Electrical capacity includes 480 volts and 600 amps, with recent upgrades to switchgear and transformers. The property provides 34 dedicated parking spaces and is located directly across from Hastings Village Shopping Center, offering convenient access to retail and dining options. Positioned less than half a mile from the 210 Freeway and within walking distance to the Sierra Madre Villa Gold Line Station, the site ensures excellent connectivity for employees and visitors.
Informations sur l’immeuble
Occupants
- Étage
- Nom de l’occupant
- Secteur d’activité
- 1er
- Caleux, Inc.
- -
- 1er
- Lusida Rubber Products, Inc.
- Manufacture
- 1er
- Polytivity Inc
- Administration publique
- 1er
- Skoy Enterprises
- Administration publique
- 1er
- Swales Aerospace
- Manufacture
- 1er
- The Neves Group, A California General Partnership
- Services
Présenté par
Pera Nova
404 N Halstead St
Hum, une erreur s’est produite lors de l’envoi de votre message. Veuillez réessayer.
Merci ! Votre message a été envoyé.


