Votre e-mail a été envoyé.
Certaines informations ont été traduites automatiquement.
Tous les espaces disponibles(3)
Afficher les loyers en
- Espace
- Surface
- Durée
- Loyer
- Type de bien
- Aménagement
- Disponible
- Loyer annoncé plus part proportionnelle des coûts de la consommation électrique
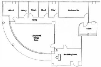
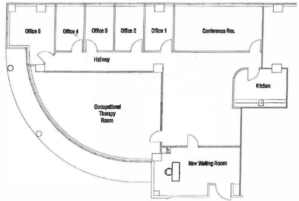
- Principalement open space
- 1 salle de conférence
- Entièrement aménagé comme Bureau standard
- 6 bureaux privés
- Aire de réception
Spacious first-floor layout with strong window line, Occupational Therapy Room, Kitchen, and an efficient workspace configuration. Available July 1, 2026.
- Loyer annoncé plus part proportionnelle des coûts de la consommation électrique
- Principalement open space
- 1 salle de conférence
- Cuisine
- Strong natural light windowline
- Partiellement aménagé comme Bureau standard
- 5 bureaux privés
- Aire de réception
- Large first-floor office layout
Suite features an open bull-pen area
- Loyer annoncé plus part proportionnelle des coûts de la consommation électrique
- Principalement open space
- Aire de réception
- Entièrement aménagé comme Bureau standard
- 2 bureaux privés
- Deux murs bordés de fenêtres
| Espace | Surface | Durée | Loyer | Type de bien | Aménagement | Disponible |
| 1er étage, bureau 100 | 322 m² | Négociable | 280,92 € /m²/an 23,41 € /m²/mois 90 589 € /an 7 549 € /mois | Bureau | Construction achevée | 01/07/2026 |
| 1er étage, bureau 101 | 318 m² | Négociable | 280,92 € /m²/an 23,41 € /m²/mois 89 414 € /an 7 451 € /mois | Bureau | Construction partielle | 01/07/2026 |
| 2e étage, bureau 215 | 156 m² | Négociable | 280,92 € /m²/an 23,41 € /m²/mois 43 872 € /an 3 656 € /mois | Bureau | Construction achevée | Maintenant |
1er étage, bureau 100
| Surface |
| 322 m² |
| Durée |
| Négociable |
| Loyer |
| 280,92 € /m²/an 23,41 € /m²/mois 90 589 € /an 7 549 € /mois |
| Type de bien |
| Bureau |
| Aménagement |
| Construction achevée |
| Disponible |
| 01/07/2026 |
1er étage, bureau 101
| Surface |
| 318 m² |
| Durée |
| Négociable |
| Loyer |
| 280,92 € /m²/an 23,41 € /m²/mois 89 414 € /an 7 451 € /mois |
| Type de bien |
| Bureau |
| Aménagement |
| Construction partielle |
| Disponible |
| 01/07/2026 |
2e étage, bureau 215
| Surface |
| 156 m² |
| Durée |
| Négociable |
| Loyer |
| 280,92 € /m²/an 23,41 € /m²/mois 43 872 € /an 3 656 € /mois |
| Type de bien |
| Bureau |
| Aménagement |
| Construction achevée |
| Disponible |
| Maintenant |
1er étage, bureau 100
| Surface | 322 m² |
| Durée | Négociable |
| Loyer | 280,92 € /m²/an |
| Type de bien | Bureau |
| Aménagement | Construction achevée |
| Disponible | 01/07/2026 |
- Loyer annoncé plus part proportionnelle des coûts de la consommation électrique
- Entièrement aménagé comme Bureau standard
- Principalement open space
- 6 bureaux privés
- 1 salle de conférence
- Aire de réception
1er étage, bureau 101
| Surface | 318 m² |
| Durée | Négociable |
| Loyer | 280,92 € /m²/an |
| Type de bien | Bureau |
| Aménagement | Construction partielle |
| Disponible | 01/07/2026 |
Spacious first-floor layout with strong window line, Occupational Therapy Room, Kitchen, and an efficient workspace configuration. Available July 1, 2026.
- Loyer annoncé plus part proportionnelle des coûts de la consommation électrique
- Partiellement aménagé comme Bureau standard
- Principalement open space
- 5 bureaux privés
- 1 salle de conférence
- Aire de réception
- Cuisine
- Large first-floor office layout
- Strong natural light windowline
2e étage, bureau 215
| Surface | 156 m² |
| Durée | Négociable |
| Loyer | 280,92 € /m²/an |
| Type de bien | Bureau |
| Aménagement | Construction achevée |
| Disponible | Maintenant |
Suite features an open bull-pen area
- Loyer annoncé plus part proportionnelle des coûts de la consommation électrique
- Entièrement aménagé comme Bureau standard
- Principalement open space
- 2 bureaux privés
- Aire de réception
- Deux murs bordés de fenêtres
Aperçu du bien
Atrium de la cour Lobby rénové Balçons privés Signalisation du bâtiment disponible Accès direct à l'autoroute Idéalement situé à proximité des transports en commun
- Banque
- Ligne d’autobus
- Restaurant
- Signalisation
Informations sur l’immeuble
Présenté par
4025 Camino del Rio S
Hum, une erreur s’est produite lors de l’envoi de votre message. Veuillez réessayer.
Merci ! Votre message a été envoyé.










