Votre e-mail a été envoyé.
Ruthven East Lakeland Industrial Park Lakeland, FL 33805 Espace disponible | 676 m² | Industriel/Logistique



Certaines informations ont été traduites automatiquement.
Informations principales sur le parc
- Campus industriel à bâtiments multiples offrant un minimum de deux baies à 4 680 pieds carrés et 31 baies contiguës à 87 360 pieds carrés avec certaines options à baie unique.
- Idéal pour la fabrication et la distribution grâce à un chargement abondant sur les quais et au niveau du sol, à des caméras de sécurité accessibles sur le Web, à une puissance élevée et à des plafonds de 24 pieds.
- Situé au centre entre Tampa et Orlando, il offre un accès facile et une excellente connectivité avec un grand parking et à cinq minutes en voiture de l'I-4.
- Profitez d'un accès immédiat à la MSA de Lakeland-Winter Haven, qui représente une population croissante de plus de 640 000 habitants.
Faits sur le parc
| Espace total disponible | 676 m² | Type de parc | Parc industriel |
| Espace total disponible | 676 m² |
| Type de parc | Parc industriel |
Tous les espace disponibles(1)
Afficher les loyers en
- Espace
- Surface
- Durée
- Loyer
- Type de bien
- Aménagement
- Disponible
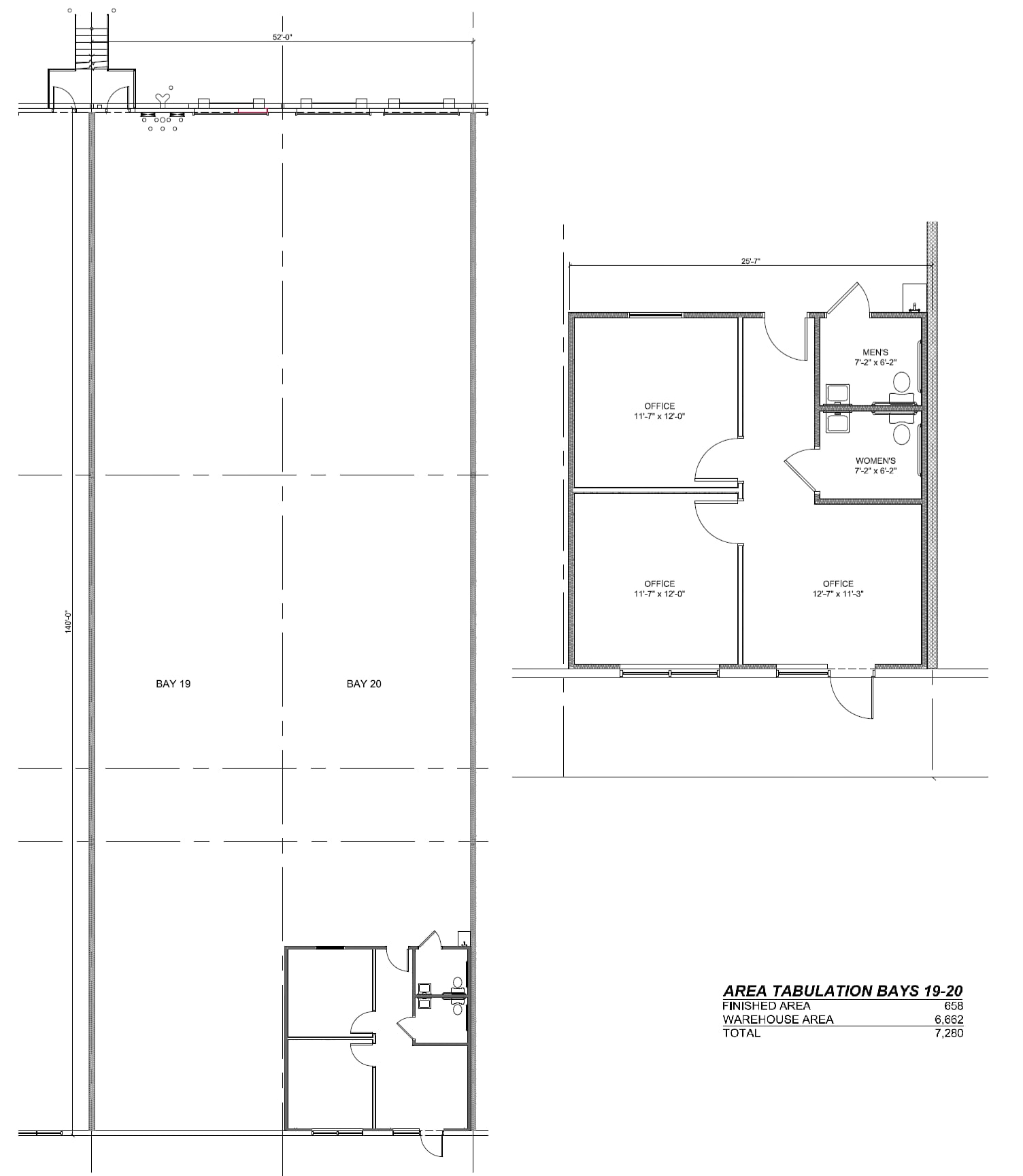
7,280 SF unit includes 659 SF of office and 2 dock high doors. 120/208V & 277/480V, 200A, 3-Phase power.
- Le loyer ne comprend pas les services publics, les frais immobiliers ou les services de l’immeuble.
- Espace en excellent état
- 7,280 SF Unit with 659 SF of Office
- 2 dock high doors
- Comprend 61 m² d’espace de bureau dédié
- 3 quais de chargement
- 7,280 SF Unit with 659 SF of Office
- 120/208V & 277/480V, 200A, 3-Phase Power
| Espace | Surface | Durée | Loyer | Type de bien | Aménagement | Disponible |
| 1er étage – 19-20 | 676 m² | Négociable | Sur demande Sur demande Sur demande Sur demande | Industriel/Logistique | Construction achevée | Maintenant |
4000 N Combee Rd - 1er étage – 19-20
4000 N Combee Rd - 1er étage – 19-20
| Surface | 676 m² |
| Durée | Négociable |
| Loyer | Sur demande |
| Type de bien | Industriel/Logistique |
| Aménagement | Construction achevée |
| Disponible | Maintenant |
7,280 SF unit includes 659 SF of office and 2 dock high doors. 120/208V & 277/480V, 200A, 3-Phase power.
- Le loyer ne comprend pas les services publics, les frais immobiliers ou les services de l’immeuble.
- Comprend 61 m² d’espace de bureau dédié
- Espace en excellent état
- 3 quais de chargement
- 7,280 SF Unit with 659 SF of Office
- 7,280 SF Unit with 659 SF of Office
- 2 dock high doors
- 120/208V & 277/480V, 200A, 3-Phase Power
Vue d’ensemble du parc
Le parc industriel Ruthven East Lakeland est un campus récemment développé composé de trois installations haut de gamme allant de 101 010 à 197 000 pieds carrés. Situé dans le centre de la Floride, le long du corridor I-4, le parc industriel de Ruthven East Lakeland offre une hauteur libre de 24 pieds, plus de 100 quais de chargement et de nombreux parkings pour remorques, ce qui en fait le lieu idéal pour les personnes ayant des besoins de distribution ou d'entreposage. Achevé au cours de la phase 1, le 4000 N Combee Road comprend des baies de 26 pieds sur 140 pieds carrés avec 7 280 pieds carrés disponibles dans les baies 9 et 10. Le 4040 N Combee Road est le dernier des trois bâtiments avec des baies de 26 pieds sur 105 pieds disponibles à la location à un minimum de deux baies avec la disponibilité d'une baie sélectionnée. Les bâtiments comprennent des portes de 10 pieds sur 10 pieds de haut sur le quai, des portes de 14 pieds sur 12 pieds au niveau du sol, des gicleurs ESFR, un système électrique triphasé de 277/480 volts et un système électrique triphasé de 120/208 volts. Le parc industriel de Ruthven East Lakeland est facilement accessible avec de multiples points d'entrée/sortie, de larges courts pour camions et cinq kilomètres jusqu'à l'I-4. Situé au centre entre Tampa (70 miles) et Orlando (58 miles), le parc industriel Ruthven East Lakeland est idéal pour la distribution, avec 10 millions de personnes dans un rayon de 100 miles et 19,5 millions de personnes dans un rayon de 200 miles, soit une hausse de 15 % en 10 ans.
Présenté par
Ruthven East Lakeland Industrial Park | Lakeland, FL 33805
Hum, une erreur s’est produite lors de l’envoi de votre message. Veuillez réessayer.
Merci ! Votre message a été envoyé.


