Votre e-mail a été envoyé.
Certaines informations ont été traduites automatiquement.
Informations principales
- Abundance of on-site parking
- Four (4) dock loading doors and one (1) grade level loading door
- Expansive windows provide abundant natural light throughout
- Accessible by transit routes
Caractéristiques
Afficher les loyers en
- Espace
- Surface
- Durée
- Loyer
- Type de bien
- Aménagement
- Disponible
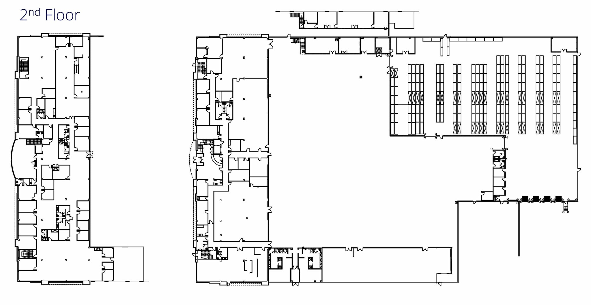
400 Hunt Club Road is a standalone fully secure high-profile light industrial building located in Ottawa’s south end, conveniently positioned between Riverside Drive and Bank Street. The property offers a blend of office and warehouse space suitable for a wide range of users. The office areas are fully built-out, featuring a combination of open workspaces and private rooms, access to multiple meeting rooms of varying sizes, and a shared cafeteria. The space can be subdivided and is fully equipped with HVAC and humidity control throughout. An elevator provides access to the second-floor offices. The location is close to numerous retail, dining, and service amenities, as well as the Ottawa International Airport.
- Le loyer ne comprend pas les services publics, les frais immobiliers ou les services de l’immeuble.
- Plan d’étage avec bureaux fermés
- Espace en excellent état
- Plafonds suspendus
- Entièrement aménagé comme Bureau standard
- Convient pour 50 à 160 personnes
- Peut être associé à un ou plusieurs espaces supplémentaires pour obtenir jusqu’à 10 815 m² d’espace adjacent.
400 Hunt Club Road is a standalone fully secure high-profile light industrial building located in Ottawa’s south end, conveniently positioned between Riverside Drive and Bank Street. The property offers a blend of office and warehouse space suitable for a wide range of users. The office areas are fully built-out, featuring a combination of open workspaces and private rooms, access to multiple meeting rooms of varying sizes, and a shared cafeteria. The space can be subdivided and is fully equipped with HVAC and humidity control throughout. An elevator provides access to the second-floor offices. The location is close to numerous retail, dining, and service amenities, as well as the Ottawa International Airport.
- Le loyer ne comprend pas les services publics, les frais immobiliers ou les services de l’immeuble.
- Principalement open space
- Espace en excellent état
- Plafonds suspendus
- Entièrement aménagé comme Bureau standard
- Convient pour 50 à 160 personnes
- Peut être associé à un ou plusieurs espaces supplémentaires pour obtenir jusqu’à 10 815 m² d’espace adjacent.
| Espace | Surface | Durée | Loyer | Type de bien | Aménagement | Disponible |
| 1er étage | 1 858 m² | Négociable | Sur demande Sur demande Sur demande Sur demande | Bureau | Construction achevée | 60 jours |
| 2e étage | 1 858 m² | Négociable | Sur demande Sur demande Sur demande Sur demande | Bureau | Construction achevée | 60 jours |
1er étage
| Surface |
| 1 858 m² |
| Durée |
| Négociable |
| Loyer |
| Sur demande Sur demande Sur demande Sur demande |
| Type de bien |
| Bureau |
| Aménagement |
| Construction achevée |
| Disponible |
| 60 jours |
2e étage
| Surface |
| 1 858 m² |
| Durée |
| Négociable |
| Loyer |
| Sur demande Sur demande Sur demande Sur demande |
| Type de bien |
| Bureau |
| Aménagement |
| Construction achevée |
| Disponible |
| 60 jours |
- Espace
- Surface
- Durée
- Loyer
- Type de bien
- Aménagement
- Disponible
400 Hunt Club Road is a standalone fully secure high-profile light industrial building located in Ottawa’s south end, conveniently positioned between Riverside Drive and Bank Street. The property offers a blend of office and warehouse space suitable for a wide range of users. The office areas are fully built-out, featuring a combination of open workspaces and private rooms, access to multiple meeting rooms of varying sizes, and a shared cafeteria. The space can be subdivided and is fully equipped with HVAC and humidity control throughout. An elevator provides access to the second-floor offices. The location is close to numerous retail, dining, and service amenities, as well as the Ottawa International Airport.
- Le loyer ne comprend pas les services publics, les frais immobiliers ou les services de l’immeuble.
- Plan d’étage avec bureaux fermés
- Espace en excellent état
- Plafonds suspendus
- Entièrement aménagé comme Bureau standard
- Convient pour 50 à 160 personnes
- Peut être associé à un ou plusieurs espaces supplémentaires pour obtenir jusqu’à 10 815 m² d’espace adjacent.
400 Hunt Club Road is a standalone fully secure high-profile light industrial building located in Ottawa’s south end, conveniently positioned between Riverside Drive and Bank Street. The property offers a blend of office and warehouse space suitable for a wide range of users. The office areas are fully built-out, featuring a combination of open workspaces and private rooms, access to multiple meeting rooms of varying sizes, and a shared cafeteria. The space can be subdivided and is fully equipped with HVAC and humidity control throughout. An elevator provides access to the second-floor offices. The location is close to numerous retail, dining, and service amenities, as well as the Ottawa International Airport.
- Le loyer ne comprend pas les services publics, les frais immobiliers ou les services de l’immeuble.
- Peut être associé à un ou plusieurs espaces supplémentaires pour obtenir jusqu’à 10 815 m² d’espace adjacent.
- Entreposage sécurisé
- 1 accès plain-pied
- 4 quais de chargement
400 Hunt Club Road is a standalone fully secure high-profile light industrial building located in Ottawa’s south end, conveniently positioned between Riverside Drive and Bank Street. The property offers a blend of office and warehouse space suitable for a wide range of users. The office areas are fully built-out, featuring a combination of open workspaces and private rooms, access to multiple meeting rooms of varying sizes, and a shared cafeteria. The space can be subdivided and is fully equipped with HVAC and humidity control throughout. An elevator provides access to the second-floor offices. The location is close to numerous retail, dining, and service amenities, as well as the Ottawa International Airport.
- Le loyer ne comprend pas les services publics, les frais immobiliers ou les services de l’immeuble.
- Principalement open space
- Espace en excellent état
- Plafonds suspendus
- Entièrement aménagé comme Bureau standard
- Convient pour 50 à 160 personnes
- Peut être associé à un ou plusieurs espaces supplémentaires pour obtenir jusqu’à 10 815 m² d’espace adjacent.
| Espace | Surface | Durée | Loyer | Type de bien | Aménagement | Disponible |
| 1er étage | 1 858 m² | Négociable | Sur demande Sur demande Sur demande Sur demande | Bureau | Construction achevée | 60 jours |
| 1er étage – Warehouse | 7 099 m² | Négociable | Sur demande Sur demande Sur demande Sur demande | Industriel/Logistique | Construction partielle | 01/09/2026 |
| 2e étage | 1 858 m² | Négociable | Sur demande Sur demande Sur demande Sur demande | Bureau | Construction achevée | 60 jours |
1er étage
| Surface |
| 1 858 m² |
| Durée |
| Négociable |
| Loyer |
| Sur demande Sur demande Sur demande Sur demande |
| Type de bien |
| Bureau |
| Aménagement |
| Construction achevée |
| Disponible |
| 60 jours |
1er étage – Warehouse
| Surface |
| 7 099 m² |
| Durée |
| Négociable |
| Loyer |
| Sur demande Sur demande Sur demande Sur demande |
| Type de bien |
| Industriel/Logistique |
| Aménagement |
| Construction partielle |
| Disponible |
| 01/09/2026 |
2e étage
| Surface |
| 1 858 m² |
| Durée |
| Négociable |
| Loyer |
| Sur demande Sur demande Sur demande Sur demande |
| Type de bien |
| Bureau |
| Aménagement |
| Construction achevée |
| Disponible |
| 60 jours |
1er étage
| Surface | 1 858 m² |
| Durée | Négociable |
| Loyer | Sur demande |
| Type de bien | Bureau |
| Aménagement | Construction achevée |
| Disponible | 60 jours |
400 Hunt Club Road is a standalone fully secure high-profile light industrial building located in Ottawa’s south end, conveniently positioned between Riverside Drive and Bank Street. The property offers a blend of office and warehouse space suitable for a wide range of users. The office areas are fully built-out, featuring a combination of open workspaces and private rooms, access to multiple meeting rooms of varying sizes, and a shared cafeteria. The space can be subdivided and is fully equipped with HVAC and humidity control throughout. An elevator provides access to the second-floor offices. The location is close to numerous retail, dining, and service amenities, as well as the Ottawa International Airport.
- Le loyer ne comprend pas les services publics, les frais immobiliers ou les services de l’immeuble.
- Entièrement aménagé comme Bureau standard
- Plan d’étage avec bureaux fermés
- Convient pour 50 à 160 personnes
- Espace en excellent état
- Peut être associé à un ou plusieurs espaces supplémentaires pour obtenir jusqu’à 10 815 m² d’espace adjacent.
- Plafonds suspendus
1er étage – Warehouse
| Surface | 7 099 m² |
| Durée | Négociable |
| Loyer | Sur demande |
| Type de bien | Industriel/Logistique |
| Aménagement | Construction partielle |
| Disponible | 01/09/2026 |
400 Hunt Club Road is a standalone fully secure high-profile light industrial building located in Ottawa’s south end, conveniently positioned between Riverside Drive and Bank Street. The property offers a blend of office and warehouse space suitable for a wide range of users. The office areas are fully built-out, featuring a combination of open workspaces and private rooms, access to multiple meeting rooms of varying sizes, and a shared cafeteria. The space can be subdivided and is fully equipped with HVAC and humidity control throughout. An elevator provides access to the second-floor offices. The location is close to numerous retail, dining, and service amenities, as well as the Ottawa International Airport.
- Le loyer ne comprend pas les services publics, les frais immobiliers ou les services de l’immeuble.
- 1 accès plain-pied
- Peut être associé à un ou plusieurs espaces supplémentaires pour obtenir jusqu’à 10 815 m² d’espace adjacent.
- 4 quais de chargement
- Entreposage sécurisé
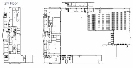
2e étage
| Surface | 1 858 m² |
| Durée | Négociable |
| Loyer | Sur demande |
| Type de bien | Bureau |
| Aménagement | Construction achevée |
| Disponible | 60 jours |
400 Hunt Club Road is a standalone fully secure high-profile light industrial building located in Ottawa’s south end, conveniently positioned between Riverside Drive and Bank Street. The property offers a blend of office and warehouse space suitable for a wide range of users. The office areas are fully built-out, featuring a combination of open workspaces and private rooms, access to multiple meeting rooms of varying sizes, and a shared cafeteria. The space can be subdivided and is fully equipped with HVAC and humidity control throughout. An elevator provides access to the second-floor offices. The location is close to numerous retail, dining, and service amenities, as well as the Ottawa International Airport.
- Le loyer ne comprend pas les services publics, les frais immobiliers ou les services de l’immeuble.
- Entièrement aménagé comme Bureau standard
- Principalement open space
- Convient pour 50 à 160 personnes
- Espace en excellent état
- Peut être associé à un ou plusieurs espaces supplémentaires pour obtenir jusqu’à 10 815 m² d’espace adjacent.
- Plafonds suspendus
Faits sur l’installation distribution
Présenté par
400 Hunt Club Rd
Hum, une erreur s’est produite lors de l’envoi de votre message. Veuillez réessayer.
Merci ! Votre message a été envoyé.






